
This stunning riverfront retreat located just upriver from the Town of South Fork, Colorado, embraces rustic mountain architectural elements with modern comforts, blending seamlessly into its breathtaking natural surroundings along the Rio Grande River. Boasting over 6,000 square feet of versatile living space on a generous plot that extends to the riverbank, this multi-level estate offers five spacious bedrooms and two fully equipped kitchens, emphasizing privacy and flexibility for large families or guests. The home includes a spacious 3-car garage and an elevator for convenient multi-level access. Outdoor living is highlighted by expansive east and west-facing porches perfect for morning coffee and sunset relaxation, along with a hilltop firepit area providing unforgettable views of the surrounding Palisades. Priced at $1,600,000, this rare Colorado mountain luxury property offers a unique lifestyle close to world-class skiing at Wolf Creek Ski Area, snowmobiling, hiking in the San Juan Mountain Range, fishing right out the back door, and golfing at the nearby Rio Grande Club and Resort.
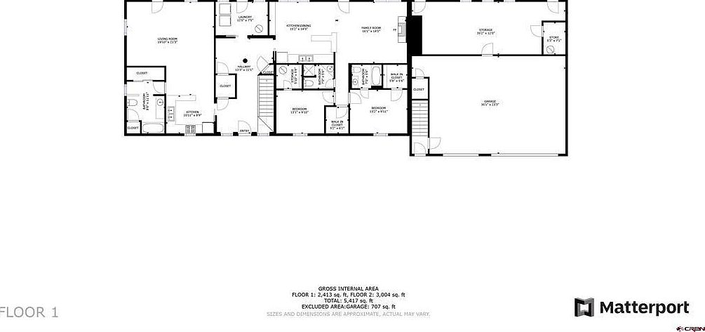
main Floor Plan

This floor plan outlines the first level of a spacious home, organized into well-defined zones. It includes a large living room, kitchen with adjoining dining space, and a cozy family room. Two bedrooms each feature walk-in closets, complemented by bathrooms equipped for convenience. A dedicated laundry area near the kitchen enhances functionality. The design incorporates extensive storage spaces and closets, emphasizing practicality. A large garage and adjoining storage rooms occupy one side, ideal for vehicles and additional household storage. Overall, the layout balances communal living areas with private spaces, facilitating comfortable living and efficient flow.
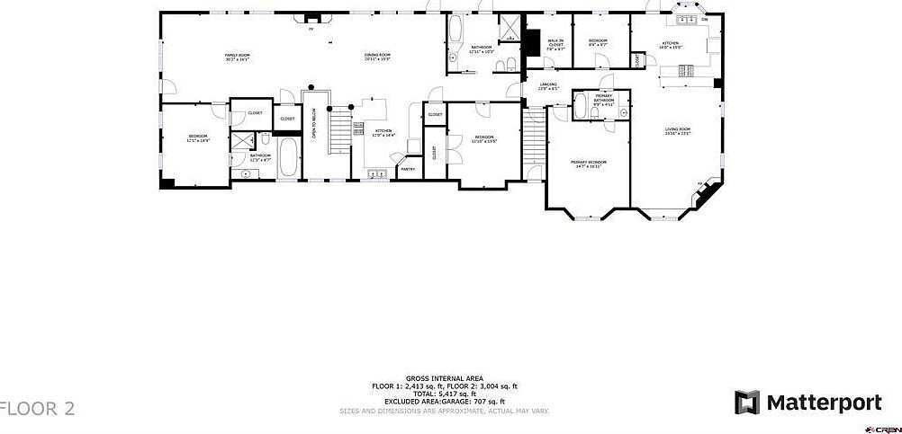
Second Floor Layout

This floor plan reveals a spacious and well-organized second floor featuring multiple bedrooms, bathrooms, and shared living spaces. The design includes a large family room and dining area positioned centrally for easy access. Bedrooms are distributed along the sides, with a primary bedroom suite prominently featured, including a walk-in closet and en-suite bathroom. The floor incorporates practical storage with multiple closets and a pantry adjacent to the kitchen. Architectural flow emphasizes functional division between private and communal areas, making this layout ideal for accommodating family living comfortably. The monochrome and clean lines reflect modern drafting style.
Front Porch and Entryway

This spacious front porch greets visitors with a rustic charm, combining natural wood and stone elements that evoke a cozy cabin feel. The warm reddish wooden siding contrasts beautifully with the stone framing around the solid wood entry door, creating a welcoming focal point. A sturdy overhang supported by thick wooden beams provides shelter and adds architectural interest, complemented by a classic lantern-style light fixture. The surrounding landscape, scattered with pine needles and tree trunks, enhances the natural, earthy aesthetics, while the concrete porch floor provides a clean and functional surface. Large windows on the home’s facade allow for ample natural light inside.
Cozy Living Room

This spacious living room features high vaulted ceilings clad in warm, natural wood planks that extend throughout the open concept area. A stunning stone fireplace dominates the center wall, framed by expansive windows that flood the room with natural light and offer sweeping views of lush green forest scenery. Two rich brown leather chairs face the fireplace, complemented by a delicate wooden side table with a floral-patterned lamp, creating a cozy seating arrangement. The hardwood floor adds warmth underfoot, while plants and tasteful decor subtly enhance the inviting mountain lodge atmosphere of this comfortable gathering space.
Open Kitchen & Dining

This warm and inviting open kitchen flows seamlessly into the dining area, showcasing natural wood finishes throughout the ceiling, cabinets, and flooring. Light wood tones create a cozy cabin-like ambiance, further enhanced by the stone fireplace visible in the living space. The kitchen features modern black and stainless steel appliances including a stove, microwave, and refrigerator, complemented by granite countertops. Large windows in the dining area bring in abundant natural light and offer serene forest views. The space balances rustic charm with functional design, highlighted by a black wrought-iron chandelier above the round dining table and comfortable wooden chairs.
Kitchen Interior

This kitchen features a warm, rustic design highlighted by natural wood cabinetry and a wood-paneled vaulted ceiling, contributing to a cozy, cabin-like atmosphere. The cabinetry is finished in light pine with a visible wood grain, adding texture and charm. Black granite countertops provide a sleek contrast, while a tile backsplash with black diamond accents adds subtle pattern and visual interest. Stainless steel appliances, including a refrigerator and a cooktop embedded in the counter, enhance functionality. Large windows above the sink bring in natural light and offer views outside, creating an inviting and well-lit workspace.
Dining Area

This cozy dining space features a round wooden table covered with an ornate tablecloth adorned in red and white patterns, surrounded by a mix of classic wooden spindle-back chairs and two upholstered armchairs that add elegance. The warm tones of the natural wood floor and ceiling promote a rustic yet refined aesthetic. A wrought iron chandelier with soft amber shades hangs above, providing ambient lighting. Large windows to the left allow ample natural light, framing greenery from outside. An arched doorway leads to a hallway, complementing the wooden cabinetry visible in the adjacent kitchen area, blending warmth and charm.
Cozy Loft Bedroom

This inviting loft bedroom combines rustic charm and comfort through abundant wooden accents and warm natural light. The space features honey-toned hardwood floors that complement the light sage green walls, framed with natural wooden trim. Two beds—a single daybed with a blue and white star quilt and a larger bed with a vintage-style patchwork quilt—are arranged to maximize the room’s cozy footprint. Large windows, including two square ones and a row of clerestory windows near the ceiling, usher in ample sunlight, highlighting the room’s airy vaulted ceiling with exposed wood beams and a ceiling fan. Simple wall art and a corner nightstand with a red lamp add subtle personal touches, creating a welcoming and peaceful retreat with mountain views.
Rustic Kitchen Space

This kitchen features a warm, rustic design with natural wood cabinetry and ceilings, enhancing a cozy cabin-like atmosphere. The vaulted ceiling and exposed wooden beams add architectural interest, while multiple stainless steel appliances provide modern convenience. A large window above the sink invites natural light and offers scenic outdoor views, brightening the room. The kitchen island on wheels, with shelves and a butcher block top, offers extra workspace and storage. Black tile countertops and backsplash contrast subtly with the wood tones, while hanging pots from an elegant wrought-iron rack add a charming, functional detail.
Cozy Bedroom Retreat

This serene bedroom features a spacious layout with a comfortable bed positioned against a clean white wall. Two wall-mounted lamps provide soft lighting on either side, complementing the quiet ambiance. A large window with wooden trim lets in natural light, enhanced by a wide built-in window seat adorned with cushions, perfect for relaxing or reading. Hardwood floors extend warmth throughout the room, paired with natural wood baseboards. Accent pieces include a small area rug under the bed, a vintage-style nightstand, a green painted dresser, and simple floral pillows, creating a charming mix of comfort and rustic simplicity.
Cozy Bedroom Nook

This peaceful bedroom features a warm wood floor and natural wood trim around both the baseboards and a large window area with built-in bench seating. The bed is centered on a white wall and dressed in light, textured bedding with mismatched floral and checkered pillows adding a soft, homey touch. Two wall-mounted lamps flank the bed, providing ambient lighting alongside the central ceiling fan fixture. A small patterned rug and dark wooden nightstand contrast gently with the muted tones, while a green dresser adds subtle color. The overall design promotes comfort with rustic and welcoming elements.
Dining Area and Living Room

This space combines a cozy dining area and adjoining living room, showcasing an open-concept layout with warm wood accents. Natural light floods through large windows framed with light wood trim, creating a bright and inviting atmosphere. The dining table, crafted from polished wood with matching benches, expresses a rustic, communal feel. The adjacent living room features a sectional sofa with neutral tones, centered around a brick accent wall with mounted artwork and a ceiling fan above. Subtle touches, such as a small indoor plant and soft window shades, enhance the home’s inviting, casual ambiance.
Guest Bedroom

This cozy guest bedroom features two twin wooden beds positioned parallel to each other with a small wooden nightstand in between. Each bed is dressed with a colorful patchwork quilt showcasing a mix of pastel and earth tones, complemented by black and red accent throws adding depth and warmth. The walls are painted a soft, calming blue that contrasts gently with the natural wood window trim, bed frames, and baseboards. A ceiling fan with wooden blades provides functional lighting and air circulation. The window allows natural light to flood the room, enhancing its inviting and rustic charm.
Cozy Living Room

This inviting living room centers around a large brick fireplace, offering a warm focal point. Natural light floods in through a wide trio of windows framed in wood, enhancing the earthy tones of the space. The furnishing includes two cushioned wooden sofas with floral upholstery, a matching armchair, and a wooden coffee table, all resting on a soft blue area rug. The ceiling fan with wooden blades complements the natural wood trim and furniture. Walls are adorned with framed artwork and a uniquely carved bear paw decoration, contributing subtle rustic charm. A small TV sits on a corner stand, blending modern convenience with the room’s cozy, cabin-inspired aesthetic.
Riverside Deck

This expansive deck features rich, reddish-brown wooden planks that complement the sturdy dark wooden posts with metal balusters. It extends along the home’s stone-clad exterior wall, offering uninterrupted views of a serene river bordered by lush pine trees. The railing design balances rustic wood with modern metal accents, providing safety without obstructing the natural scenery. Overhead, a bright blue sky dotted with fluffy white clouds enhances the outdoor ambiance. This peaceful outdoor space invites relaxation and connection to nature, ideal for enjoying fresh air and captivating mountain and forest vistas.
Covered Porch Overlooking River

This extended covered porch features exposed wooden beams and rich reddish-brown wood flooring that complements the sturdy vertical wooden support posts. Black metal railings add a touch of modern contrast while providing safety without obstructing the natural view. The porch runs the length of the exterior wall, creating a sheltered walkway and casual seating area. Beyond, panoramic views showcase a gently flowing river bordered by lush green grass and dense evergreen trees, with a bright blue sky peppered with fluffy white clouds. This outdoor space invites peaceful moments to embrace nature’s beauty.
Listing Agent: Brittany Hathorn of EXIT Silver Thread Realty via Zillow
