
Welcome to 400 Sycamore Ln N, a stunning example of contemporary lakefront living located in Plymouth, MN. This luxurious home, originally built in 1986, underwent a comprehensive remodel in 2019, showcasing a modern architectural style with clean lines and thoughtfully designed spaces that maximize natural light and panoramic lake views. Situated on a private 1-acre lot by serene Lake Cavanaugh within the esteemed Wayzata School District, the property offers an expansive 4,000+ square feet of refined living space. Currently listed at $1,250,000, this exceptional property combines elegance, comfort, and lakeside tranquility in one of Plymouth’s most sought-after settings.
Basement Floor Plan

This basement layout features a spacious family room at its center, measuring 30’10” by 28’6″, offering ample space for gatherings or entertainment. Adjacent to the family room are two bedrooms, one larger at 12’4″ by 17’11” with a closet, and a smaller bedroom measuring 11’3″ by 10’7″ with a nearby bathroom. Multiple storage areas provide practical utility, including a large 19’1″ by 17’9″ storage room and additional closets distributed throughout. The utility closet is positioned strategically for convenience. Stairs leading up connect this level with the main house, completing a well-organized, functional basement space.
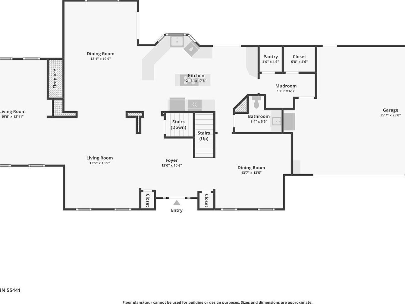
Main Floor Layout

This floor plan features a thoughtfully arranged layout that balances spaciousness and functionality. The central kitchen, measuring 21’5″ by 17’5″, includes an island and adjoins a large dining room on one side (13’1″ by 19’9″), perfect for entertaining. The living room (19’6″ by 18’11”) with a fireplace offers a cozy yet open space for relaxation. Near the entry, the foyer (13’0″ by 10’6″) connects to a smaller living room and a second dining area, creating an inviting flow. Practical zones include a mudroom, pantry, and bathroom, alongside staircases linking floors. The expansive garage (35’7″ by 23’0″) provides ample storage and vehicle space.
Upper floor layout

This expansive primary bedroom spans over 33 feet in length and nearly 20 feet in width, offering a spacious retreat. It features multiple windows along the longer walls, allowing natural light to fill the room, creating a bright and airy atmosphere. Adjacent to the bedroom is a large primary closet for ample storage. The room connects conveniently to the primary bathroom, which includes a bathtub and shower area. The layout promotes privacy and comfort, balancing functionality with a generous open space that can accommodate varied furniture arrangements and personalized décor.
Front Entrance

The front entrance features a stately, arched doorway with a taupe door surrounded by clear decorative glass sidelights and a fanlight window above, framed by white brick. Two houseplants in square beige planters flank the door, adding a touch of greenery and symmetry. The pathway is paved with bricks, complementing the concrete steps leading to the entrance. Two large vintage urn-style planters filled with trimmed, dome-shaped greenery stand on either side of the steps, paired with traditional lantern-style light fixtures on short pillars. The clean white brickwork and muted earth tones create a welcoming yet elegant curb appeal with balanced symmetry and greenery accents.
Entryway and Dining Room

This inviting entryway features a rich wooden front door with ornate glass panels and an arched stained glass transom window, casting intricate light patterns on the warm hardwood flooring. The walls are painted a soothing light gray, complemented by white trim and doors that add crisp contrast. To the left, a staircase with dark wood handrails and decorative black metal balusters leads upstairs, accompanied by a large rustic vase and an ornate mirror that enhance the traditional aesthetic. Beyond, an elegant dining room is visible, furnished with carved wooden chairs upholstered in patterned fabric, a matching china cabinet, and a classic chandelier, creating a sophisticated, cohesive feel.
Entryway and Living Room View

Sunlight floods through large windows on hardwood floors in this open and airy entryway leading to the living room. A sweeping staircase with dark wood handrails and black wrought-iron balusters creates an elegant focal point. The walls and trim are painted in soft, warm white, enhancing the clean and sophisticated atmosphere. Beyond arched openings, a cozy seating area features a leather sectional, complementing the rich wood tones. A grand piano positioned on a circular patterned rug introduces a cultured, refined touch. Decorative vases and a large ornate mirror near the staircase add subtle accents to the transitional style space.
Living Room Seating Area

This cozy living room seating area features a large, dark brown leather sectional sofa designed for comfort and accommodating multiple people. The sectional is arranged in a U-shape, centered around a rectangular coffee table with a dark marble top and black legs, resting on a light beige rug with subtle linear patterns. Surrounding the space are light gray walls complementing the rich wood flooring with a herringbone pattern. Four windows with white blinds allow natural light to softly filter in, enhanced by recessed ceiling lights, creating a bright yet warm atmosphere. Two framed botanical prints add understated decorative touches above the sofa.
Dining Room Essentials

This inviting dining room features a richly detailed wooden table surrounded by six upholstered chairs with intricate carved designs and elegant floral fabric. A classic china cabinet with glass doors houses fine dishware, enhancing the traditional aesthetic. The neutral walls provide a calm backdrop for two framed paintings: a serene landscape on one side and a vibrant still life on the other. Natural light filters through white plantation shutters, brightening the space and complementing the warm wood tones of the floor and furniture. The chandelier above adds a modern touch with its circular metal frame and glass-encased bulbs, perfectly blending classic and contemporary styles.
Dining Area & Fireplace

This bright dining space features a refined white dining table with elegantly curved chairs, sitting atop a textured gray area rug. A large window behind the table is adorned with soft gray curtains, filling the room with natural light. Adjacent, a stone-faced fireplace wall adds warmth and character, topped with a thick rustic wooden mantle displaying framed family photos. The hardwood floor stretches throughout, complementing the neutral and earthy tones. To the right, a kitchen counter with beige cushioned stools hints at an open-concept layout that encourages connection between spaces. Greenery and tasteful artwork complete the inviting aesthetic.
Modern Kitchen Island

This kitchen features a spacious layout centered around a sleek island with a black marble countertop and built-in gas cooktop. White cabinetry with traditional paneling complements the island, paired with a modern glass and steel range hood overhead. The backsplash is composed of light gray and white tiles, adding subtle texture behind the sink and counter areas. Warm hardwood flooring extends throughout, creating a cozy contrast against the predominantly white design. Adjacent living space with a stone accent wall and cozy armchair maintains an inviting atmosphere, blending contemporary finishes with classic comfort.
Entryway to Kitchen

This inviting entryway features a rustic wood bench with a matching overhead shelf adorned with gray woven baskets for storage. The wall behind the bench sports a weathered wood panel design with black metal hooks, perfect for hanging coats and bags. The soft gray walls and white trim provide a neutral, calming backdrop. Through an elegant arched doorway, the bright kitchen with light hardwood floors and exposed brick accent wall draws focus. The kitchen island topped with a decorative vase adds a fresh, stylish touch, blending modern comfort with farmhouse charm.
Master Bedroom Space

This master bedroom is spacious and features a serene, neutral color scheme with soft gray walls and a light carpet that enhances the airy ambiance. The room’s layout creates a cozy yet open feel, framed by a large archway that divides the dresser area from the sleeping space. The white dresser with a decorative mirror on top sits against one wall, adorned with vintage-style candle holders and framed photographs, adding a personal and classic touch. The bed, with a tufted gray headboard and white bedding, is positioned centrally, flanked by minimalist nightstands and wall sconces, emphasizing comfort and understated elegance.
Bathroom Vanity and Tub

This bathroom features a modern, spacious layout with a freestanding white bathtub nestled beside a tall window, allowing natural light to accentuate the space. The walls showcase a stylish two-tone design with soft gray paint on the upper half and textured stone tile halfway up, coordinated with the floor’s intricate tile pattern. White cabinetry with classic raised panel doors supports a sleek granite countertop with ample surface space. A large framed mirror above the sink is illuminated by three light fixtures, and a cozy, cushioned stool tucks neatly under a makeup vanity area, adding comfort and functionality. Decorative elements, such as a leafy metal wall art piece, enhance the elegant yet inviting ambiance.
Bathroom Vanity Area

This bathroom space features a dual-sink vanity with a granite countertop showcasing natural stone patterns in shades of white, gray, and black. White paneled cabinetry underneath adds a clean and classic touch, while the backsplash incorporates a modern horizontal arrangement of gray and black tiles. Two matching mirrors with textured black-and-white frames hang above each sink, complementing the black fixtures and faucets. Above each mirror, three-bulb light fixtures with clear glass shades provide bright, focused illumination. A small cushioned stool is tucked neatly under a vanity nook, offering a functional seating area for personal grooming. The walls are painted a soft, neutral gray, enhancing the contemporary yet welcoming aesthetic.
Bathroom Vanity Area

This cozy bathroom vanity area features a crisp, clean design emphasizing light and reflective surfaces. The countertop is crafted from granite with a mix of gray and white tones, complementing the white cabinetry below. Black hardware adds a subtle modern contrast. A large, decorative mirror surrounded by three-dimensional mirrored blocks creates both interest and an illusion of depth, while the triple light fixture above provides ample illumination. Two tall green plants in rustic pots add fresh natural accents, and framed artwork on the adjacent wall enhances the space’s stylish yet minimalistic aesthetic.
Bedroom Corner

This bedroom corner features a calming and neutral color palette dominated by soft grays and whites. The walls are painted a smooth, cool gray, complementing the rich, dark wood tones of the bed frame and matching nightstand. The bed is simply made with a plain white comforter, enhancing the clean and minimal aesthetic. Above the headboard, two framed pieces of playful, modern art bring subtle personality and contrast. To the right, a large window is framed with textured gray curtains, allowing natural light to soften the space. The area includes practical storage with a double-door white closet, blending seamlessly into the wall design.
Bathroom Vanity and Tub Area

This bathroom blends modern and rustic elements with a neutral palette. The countertop features a speckled dark granite surface paired with a white rectangular undermount sink, complemented by an oil-rubbed bronze faucet. The backsplash and surrounding walls showcase wood-look tiles in shades of gray and beige, accented with a horizontal mosaic tile border. The bathtub and toilet are classic white, with a built-in shower featuring matte black fixtures. Two corner shelves provide space for toiletries, while the shower curtain displays an ombré effect transitioning from white to black, adding a contemporary touch to the overall design.
Bathroom Vanity Area

This bathroom features a sleek, modern vanity area with a light gray marble countertop and an integrated rectangular sink. The cabinetry is white with classic raised panel doors and black hardware, providing a crisp contrast. A large, textured wooden frame mirror hangs above the sink, complementing the minimalist aesthetic. The wall is painted a soft, neutral gray that harmonizes with the cabinetry and countertop. Above the mirror is a contemporary light fixture with a curved design, offering ample illumination. A small potted plant adds a touch of greenery, while the partially open white door reveals soft gray carpeting beyond, enhancing the clean and bright atmosphere of this space.
Bedroom with Workspace

This bedroom features a cozy, minimalist design with a neutral color palette that emphasizes soft whites and natural wood tones. The bed is the centerpiece, adorned with a white comforter and a rustic-style wooden headboard framed with black metal, lending a modern industrial touch. A nightstand to the right includes a decorative photo frame and storage baskets. Near a large window draped with sheer white curtains, a sleek wooden desk with hairpin legs hosts a computer setup and a comfortable black ergonomic chair, creating a functional workspace. A saxophone by the window adds personality and artistic flair. The room is completed by a crystal and metal ceiling light fixture, enhancing its clean yet inviting atmosphere.
Modern Bathroom Features

This bathroom presents a sleek, contemporary design with a calming monochromatic color palette. Large marble-effect tiles with gray veining cover the walls and floor, creating a cohesive and luxurious atmosphere. The white bathtub is complemented by a recessed niche for toiletries and a black matte showerhead with matching faucet hardware, adding a modern contrast. A white vanity with a marble countertop features black fixtures and hardware, enhancing the elegant feel. A large decorative framed mirror rests above, reflecting natural light from the nearby window that brings a touch of greenery into the space. The overall layout is practical yet stylish, emphasizing clean lines and sophisticated detail.
Recreation Room

This spacious recreation room features a ping pong table positioned prominently in the center, inviting active play and social interaction. The walls are painted in a clean, light gray shade that enhances the room’s brightness, accentuated by recessed ceiling lights. The flooring includes soft gray carpeting under and around the table, contrasted by tiled flooring near the sliding glass door, which provides natural light and access to an outdoor area. Minimalist and functional, the space subtly extends into an adjoining room with a comfortable seating area visible in the background, enhancing the area’s versatility.
Laundry Room

This laundry room features a sleek, modern design with a narrow but efficient layout. The walls are painted a soft gray, offering a neutral backdrop that complements the glossy black front-loading washer and dryer set positioned under a small window, which provides natural light and a view of greenery outside. Along the right wall, white cabinetry with black knobs offers ample storage above and below a striking black countertop with white marbling. A stainless steel sink with a black faucet is set into the countertop, and the backsplash consists of textured gray subway tiles. The patterned black and white tile floor adds a touch of classic elegance, while a neutral rug in front of the machines adds warmth and comfort.
Bathroom Vanity and Tub

This bathroom combines modern simplicity with functional design. The white subway tile surrounds the bathtub, laid in a horizontal brick pattern that adds texture while maintaining a clean look. The bathtub is paired with matte black fixtures that contrast sharply against the white tile and tub, lending a contemporary edge. Adjacent to the tub, the toilet sits neatly under a light gray painted wall, enhancing the neutral palette. The vanity features a marble-esque countertop over white cabinetry, complemented by a rectangular mirror with a textured silver frame. Above the mirror, a sleek LED light fixture provides bright, even illumination, reinforcing the room’s fresh and minimal aesthetic.
Bedroom with Child’s Play Area

This cozy bedroom features a neutral color palette with soft gray walls and carpet flooring that enhances the room’s serene atmosphere. A large, plush bed with a tufted gray headboard anchors the space, complemented by matching bedside tables in darker shades. Recessed ceiling lights provide a clean, modern lighting solution. A wide window bathes the room in natural light while offering a view of lush greenery outside. On the right, a small blue trampoline with a soccer ball and xylophone toys introduces a playful and child-friendly element to this serene sleeping area.
Basement Game Room

This basement game room features a green ping pong table centered on plush light gray carpeting, creating a cozy and inviting recreational space. Neutral light gray walls enhance the brightness from recessed ceiling lights and natural daylight streaming through large sliding glass doors that open to a paved patio and landscaped yard. A large interior window beside the doors adds visual openness by connecting this room to an adjacent sunroom or enclosed porch area. White trim and doors offer clean, classic accents that complement the overall modern and functional design.
Basement Bedroom Details

This cozy basement bedroom features soft gray walls paired with plush light gray carpeting, creating a calming monochromatic palette. The ceiling is accented by protective beams and recessed lighting that brightens the space evenly. A white double closet with paneled doors offers storage, flanked by a rustic wooden cabinet which adds warmth and texture to the minimalist design. The bed is dressed in neutral, subtly patterned bedding that complements the room’s serene ambiance. An open doorway reveals an adjoining room, suggesting a spacious layout with comfortable flow and functional living areas.
Cozy Media Room

This inviting media room features a balanced blend of modern comfort and rustic charm. A textured wood-paneled accent wall hosts a large flat-screen television above a sleek, built-in electric fireplace that adds warmth and ambiance. The neutral color palette centers on various shades of gray and beige with soft carpeting underfoot, creating a cozy atmosphere. Two plush, velvet-like gray sofas face each other, complemented by a large, rounded bean bag for additional relaxed seating. Recessed ceiling lights provide bright yet unobtrusive illumination, while a stone-topped side table offers functionality near the seating. The white door with crisp trim adds a clean, classic architectural detail.
Outdoor Deck Dining Area

This spacious outdoor deck area features sleek gray composite decking that complements the house’s light gray siding with white trim. Sliding glass doors provide easy access to and from the home, enhancing the indoor-outdoor flow. The dining setup boasts a rectangular table with a tiled surface, surrounded by six cushioned chairs in neutral beige tones. A cozy, rounded cushioned bench with a canopy at the far end adds an inviting lounging option. Black metal framing and light fixtures offer subtle contrast and sophistication. Lush greenery surrounds the deck, creating a private and serene atmosphere for outdoor dining and relaxation.
Lakeside Fire Pit Area

This outdoor space presents a tranquil lakeside retreat with a circular fire pit as the central feature, surrounded by three simple black metal chairs. The ground is covered with fine gray gravel that contrasts softly against the lush green lawn edging the area on one side. A border of natural, irregularly shaped stones defines the gravel space, adding a rustic charm. A wooden dock extends into the calm lake, which is fringed by trees and reflected under a bright blue sky dotted with fluffy white clouds. The environment invites relaxation and connection with nature.
Covered Patio Seating Area

This inviting covered patio space features a circular stone paver floor with a repeating swirl pattern that adds a dynamic visual element. The exposed wooden beams overhead highlight the structural frame with a natural wood finish, complementing the earthy tones of the stone floor. Seating includes a round metal table surrounded by sturdy metal chairs with mesh seats and backs, perfect for outdoor dining or lounging. Also present is a dark woven armchair positioned near a large window, allowing views into the interior. The walls are painted in a soft gray, creating a calm neutral backdrop, and the surrounding greenery enhances the outdoor ambiance, making this an ideal spot for relaxing while enjoying the garden and lake view.
Listing Agent: Christopher Broz of RE/MAX Advantage Plus via Zillow
