
This exceptional home is a Tuscan-inspired villa located in San Simeon, California, nestled on a vast 6.5-acre plot surrounded by the Hearst Ranch. The single-level residence boasts unobstructed ocean and coastal landscape views, with proximity to iconic local landmarks such as the Piedras Blancas lighthouse and the elephant seal rookery, positioned just 15 miles from Cambria along the beautiful coastline. The architectural style reflects classic Tuscan elements including terracotta roof tiles, stone flooring, and a harmonious blend of indoor and outdoor living spaces. The interior highlights include custom chandeliers, multiple fireplaces throughout, and a gourmet kitchen equipped with double ovens, a prep island, and a large butler’s pantry tailored for both culinary enthusiasts and family gatherings. Additional amenities include a three-car garage with an EV charger, with all furniture, furnishings, and appliances included in the sale. The listing price is $2,895,000.
Floor Plan

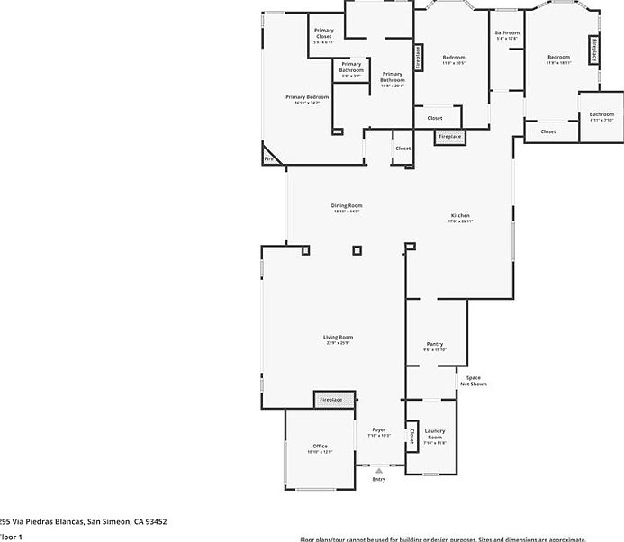
This detailed floor plan outlines a thoughtfully designed home featuring an expansive living room measuring 22’9″ by 25’9″ with a fireplace as a focal point, adjacent to the dining room and kitchen area, providing a seamless flow for entertaining and daily living. The primary bedroom is sizable with an en-suite bathroom and spacious closet, offering privacy and comfort. Additional bedrooms have their own bathrooms and closets for convenience. The layout includes functional spaces like an office, pantry, laundry room, and multiple closets, all efficiently positioned near the foyer and entry for practical access and living.
Front Entry Door

This elegant entrance features a solid wooden door with vertical panels and a charming small hinged opening at the center, adding both style and practicality. Flanking the door are two narrow, textured glass sidelights with intricate wrought iron designs, allowing natural light to filter softly into the foyer while maintaining privacy. The warm wood tones are complemented by the neutral cream-colored walls and the light beige stone tile flooring underfoot. Clean lines and a subdued color palette create a welcoming yet stately first impression, blending rustic craftsmanship with modern simplicity.
Living Room

This spacious living room exudes a warm, inviting ambiance through its exposed wooden beam ceiling and natural wood tones. Large floor-to-ceiling windows flood the room with natural light, showcasing views of lush greenery outside and complementing the neutral beige tile flooring. A rich, patterned Persian rug anchors the seating area, which consists of a large, dark brown leather sectional and two modern cream armchairs accented with colorful throw pillows in blue and floral prints. Soft white curtains frame the windows, while ornate wall sconces and classical paintings add character and an elegant touch to the traditional yet cozy design.
Formal Dining Room

This formal dining room features an elegant blend of rustic and classic design elements. The rich wood-beamed ceiling adds warmth and texture, complemented by the intricate crystal chandelier hanging over a long wooden dining table draped with a deep orange tablecloth and detailed runner. Eight high-back chairs with black leather upholstery surround the table, resting on a large floral-patterned area rug in purple and cream tones. Large glass sliding doors flank the space, providing natural light and access to a stone patio with outdoor seating. Luxurious burgundy curtains frame the windows, adding a regal touch to the bright, open layout that seamlessly connects to the adjacent living area with beige tiled flooring and white walls adorned with soft arches and light sconces.
Kitchen with Island Seating

This kitchen features a warm, traditional design highlighted by rich wooden cabinetry that wraps around the space, offering ample storage and a built-in stainless steel refrigerator and double oven. The countertops, topped with polished stone, extend to a spacious island that doubles as a breakfast bar, accommodating four wrought iron stools with leather seats. Overhead, three pendant lights provide focused illumination, complementing the natural light from a large window above the sink and a modern overhead skylight. Neutral-toned floor tiles anchor the room, creating a welcoming and functional culinary area that gracefully blends elegance with comfort.
Bedroom with Outdoor Access

This inviting bedroom features a serene color palette of whites and soft neutrals, creating a calm and airy atmosphere. A white quilted bed dominates the space, complemented by a plush carpet floor and a built-in cushioned nook adorned with blue and patterned pillows in the corner, perfect for relaxing. The wood-paneled ceiling with exposed beams adds warmth and rustic charm while a ceiling fan with a classic design ensures comfort. Glass sliding doors framed in rich wood open out to a stone patio and lush garden area, inviting natural light and scenic outdoor views. A corner fireplace with gently rounded edges and a mounted flat-screen TV add cozy, modern elements to the room.
Bathroom Vanity Area

This bathroom features an expansive vanity with rich, dark wood cabinetry that extends from floor to ceiling, creating a warm and luxurious ambiance. The beige marble countertop beautifully contrasts with the cabinetry and includes built-in sinks with traditional bronze faucets. Open shelving and drawers provide functional storage, while decorative sconces with intricate metalwork and candles add elegance. The space is brightened by soft wall colors and natural light filtering through a frosted glass door leading to a tiled shower area. Plush patterned rugs and neatly folded towels enhance the cozy, refined aesthetic.
Bedroom with Fireplace

This cozy bedroom corner features a sleek, modern fireplace set within a softly arched stone surround, providing warmth and a striking focal point. Mounted above the fireplace is a flat-screen TV, highlighting the room’s blend of comfort and functionality. A plush white armchair sits invitingly in front of a wide bay window framed in warm wood tones, allowing abundant natural light and offering serene views of the greenery outside. The bed is dressed in crisp white textured bedding accented with earth-toned and golden pillows, complementing the neutral walls and beige carpet for a calming, elegant atmosphere.
Bathroom Vanity Area

This bathroom features a warm, inviting aesthetic with natural stone tiles in beige and subtle yellow accents covering the walls around the vanity and shower area. The countertop is a smooth, light surface supporting a round, stone vessel sink with a wall-mounted bronze faucet that adds a vintage charm. Below, dark wood cabinetry with clean lines provides storage, enhancing the space’s rustic elegance. A framed mirror with a distressed gray finish hangs above the sink, accompanied by a wrought iron wall sconce with a small fabric shade. Soft olive green paint contrasts gently with the tile, creating a calm, earthy vibe.
Cozy Bedroom Retreat

This intimate bedroom exudes comfort with a soft neutral palette dominated by off-white walls and warm beige carpeting. The bed is dressed in a light, patterned quilt with coordinating pillows in cream and soft orange tones, adding subtle warmth and texture. Natural light floods the space through three large, wood-framed windows that offer panoramic views of lush greenery and distant hills. A small, dark blue accent chair is tucked into the corner, enhancing the cozy feel. The focal point is a corner fireplace with a simple stone surround, topped by a flat-screen TV mounted above, creating a perfect blend of modern convenience and rustic charm. Exposed ceiling beams and a ceiling fan contribute to the airy, inviting ambiance of this serene bedroom sanctuary.
Outdoor Patio Seating Area

This cozy outdoor patio area features a charming stone fireplace as the focal point, constructed with natural, irregularly shaped stones in warm earth tones. Surrounding the fireplace is a comfortable seating arrangement of woven wicker chairs and a matching loveseat, all with neutral gray cushions that complement the muted browns and tans of the stone and slate floor. The patio is partially enclosed with stucco walls and has a classic terracotta tile roof overhead. Red-framed sliding glass doors offer a smooth indoor-outdoor transition, while a covered barbecue grill adds a functional element for outdoor dining and gatherings. Lush greenery borders the space, adding a touch of nature and privacy.
Rooftop Terrace

This rooftop terrace offers an inviting outdoor space surrounded by warm terracotta roof tiles characteristic of Mediterranean architecture. The flat rooftop area is enclosed by beige stucco walls, providing privacy and a cozy atmosphere. Furnished with lounge chairs and a small table paired with an umbrella, it’s designed for relaxation and casual gatherings. A built-in stone chimney adds rustic charm, complementing the natural landscape beyond. Towering windswept trees and rolling hills paint a serene backdrop, blending nature seamlessly with the home’s design. The terrace also includes modern elements like a satellite dish and skylight, enhancing functionality while maintaining a rustic, timeless aesthetic.
Listing Agent: Nadine Lilley of Highway One Real Estate via Zillow
