
This stunning Chalet-style cabin is a perfect mountain retreat located in Cleveland, Georgia. Built with thoughtful craftsmanship, the home sits on a spacious 5.77-acre estate that includes two lots and over 500 feet of direct border with the Chattahoochee National Forest, offering unrivaled privacy and spectacular mountain views visible through impressive floor-to-ceiling windows. The home features rich wood finishes and towering tongue-and-groove ceilings combined with four beautiful stacked-stone fireplaces, creating a warm and inviting atmosphere. Outdoor living spaces are abundant with expansive decks, an outdoor kitchen, dining area, a hot tub under the stars, and a cozy stone fire pit, all designed to maximize enjoyment of the beautiful mountain setting. Located conveniently near local attractions such as wineries, breweries, hiking trails, fishing spots, and the quaint alpine village of Helen, this property offers both luxury and natural beauty. Listed at $1,195,000, this mountain estate combines comfort, privacy, and breathtaking views for the ultimate mountain experience.
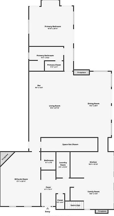
main floor plan

This floor plan presents a spacious and well-organized home layout emphasizing open living spaces and multiple functional areas. The large living room and adjoining dining room occupy the central portion, featuring a fireplace that adds warmth and a cozy focal point. To one side, a bar area creates an inviting space for socializing. The primary bedroom, set apart for privacy, includes its own bathroom and closet. Additional rooms include a billiards room, a family room with another fireplace, a kitchen conveniently located near the dining area, and practical spaces such as laundry and bathrooms near the entry and stairs. The layout balances entertaining with everyday living, framed by thoughtful spatial flow and clearly defined zones.
Upper Floor plan

This upper floor features a well-planned arrangement with three bedrooms and two bathrooms. A large primary bedroom spans 17’4″ by 23’3″ and includes a nearby bathroom and two spacious closets. Two additional bedrooms measure 17’2″ by 12’1″ each, positioned on the opposite side of the floor with a shared bathroom and closets positioned centrally. The layout also includes multiple closets and a stairwell leading downstairs, maximizing storage and accessibility. The floor plan emphasizes balanced proportions with clear room delineations, offering both private and shared spaces for family living.
Living Room and Dining Area

This spacious living area features a vaulted ceiling clad in warm, honey-toned wood planks that enhance its cozy, rustic appeal. Expansive triangular windows fill the room with natural light and frame breathtaking mountain views. On the left, a large stone fireplace with a wooden mantel serves as a centerpiece, while a high dining table with black chairs sits nearby for casual meals. The open floor plan flows seamlessly into a comfortable seating zone with a black sectional sofa facing a flat-screen TV, balanced by soft lighting and minimalist decor. Wide plank dark wood floors unify the space.
family Room and Kitchen

This inviting space combines a rustic family room with an open-concept kitchen. The warm wooden floors and knotty pine ceiling establish a cozy, cabin-inspired atmosphere. A large leather sofa and armchair embrace a natural wood coffee table atop an animal-hide rug, with cushions patterned in bear silhouettes complementing the outdoorsy style. The kitchen features muted teal cabinetry paired with white marble countertops, creating a subtle contrast. A stone range hood and modern fixtures seamlessly blend rustic charm with contemporary convenience. The dining area in the background is elevated by a few steps, maintaining an open but defined flow between spaces.
Kitchen and Living Area View

This warm, inviting open-concept space combines kitchen and living areas with natural wood tones dominating the design. The ceiling is clad in rich wood paneling that complements the polished hardwood flooring. A large white countertop island with a brass faucet anchors the kitchen, paired with rustic, round wooden stools for casual seating. To the left, a breakfast nook features a bay window with wooden chairs that look out to lush greenery. The living room in the background highlights a rustic stone fireplace surrounded by neutral walls, accented with cozy brown seating and subtle decorative elements like a hanging light fixture, wall clock, and framed photos, blending rustic charm with modern comfort.
Kitchen and Breakfast Bar

This kitchen features a warm and inviting rustic-modern design highlighted by a natural wood ceiling with exposed beams and warm hardwood flooring. The custom cabinetry is painted in a muted teal tone, complemented by sleek brass hardware, creating a stylish and cohesive look. A generous white quartz countertop island includes an integrated sink and brass faucet, paired with three natural wood stools featuring a live edge design, perfect for casual dining or entertaining. The backsplash is crafted with white stone tiles arranged in a horizontal pattern, adding texture and brightness. Track lighting and a farmhouse-style hanging light fixture enhance both functionality and charm. Through the doorway, a raised dining area can be seen, maintaining natural wood elements and an open, airy flow between the spaces.
Living Room and Bar Area

This spacious living room features a high vaulted ceiling clad in warm wood planks paired with large triangular and rectangular windows that invite abundant natural light and showcase forest views. The floor is finished in a smooth, medium-tone wood, complementing the earthy aesthetic. A large, dark leather sectional sofa anchors the seating area, arranged around a natural wood coffee table atop a soft, light-colored animal hide rug. To the right, a rustic stone fireplace with wooden mantel adds cozy charm. A turquoise sideboard and wooden accent tables maintain a cohesive rustic-modern décor. In the background, an inviting bar area with wooden beams and shelves creates a perfect entertainment spot, decorated with soft, warm lighting and nature-inspired artwork throughout.
Rustic Home Bar

This cozy home bar combines natural wood and stone elements for a warm, rustic ambiance. The bar counter features a stacked stone facade complemented by a polished stone countertop. Four sturdy wooden bar stools with log-style backs line the bar. Above, exposed dark wooden beams support hanging pendant lights with warm bulbs, creating inviting illumination. Behind the bar, open wooden shelves display an extensive collection of spirits. The ceiling is clad in knotty pine wood paneling, adding warmth to the space. The dark wood flooring contrasts nicely with light walls and natural wood accents, blending rustic charm with modern functionality.
Home Bar Area

This cozy home bar showcases warm, natural wood cabinetry with distinctive grain patterns, creating a rustic yet polished feel. A granite countertop spans the length of the bar and features a small sink with a matte black faucet, perfect for mixing drinks. Above, two sturdy wooden shelves supported by curved metal brackets display an extensive collection of liquor bottles, adding color and personality to the space. The ceiling’s exposed wooden beams add architectural interest and complement the earthy tones throughout. A large black-framed mirror reflects the bar area, enhancing the room’s depth and light. Industrial-style pendant lights hang from the ceiling, casting a warm glow and contributing to the inviting ambiance.
Fireplace Detail

This cozy living room centers around a prominent stone fireplace, featuring a rustic mantel adorned with small decorative items. The textured stone extends to the floor, complementing the wood-paneled ceiling which adds warmth and natural charm. Two mid-century modern armchairs with wooden frames and textured blankets face the hearth, creating an inviting seating area with a small black side table between them. To the right, tall dark wood bar stools line a kitchen island, visible through large windows framed in natural wood, showcasing a lush green outdoor view. The room balances rustic and modern elements with a neutral wall color and natural tones throughout.
Dining Area with Scenic Views

This bright dining space features a wooden table surrounded by six high-back chairs, all in dark rich wood tones that complement the natural wood accents framing the windows and ceiling. The ceiling is vaulted with wood paneling that enhances the cabin-like warmth of the room. Large windows on two sides offer panoramic views of lush greenery and distant hills, bringing the outdoors inside and flooding the room with natural light. A wrought iron chandelier with candle-style lights hangs above the table, adding rustic elegance. A glass door opens to a deck with bar stools, ideal for enjoying the stunning vista.
Spacious Outdoor Deck

This expansive outdoor deck offers an inviting space for dining and socializing while overlooking a scenic forested landscape with distant hills. The deck floor features warm-toned wood planks that complement the natural surroundings. Central to the space is a large rectangular dining table accompanied by eight matching chairs with wooden slats and dark frames, blending comfort with rustic charm. Along one side, a bar-height table with stools provides an alternative seating area, ideal for casual gatherings. String lights hang above, hinting at cozy evening ambiance. Black metal railings ensure safety without obstructing the panoramic view of the lush greenery and bright blue sky.
Master Bedroom Retreat

This master bedroom showcases a spacious layout with vaulted ceilings clad in warm, natural wood that enhances the rustic charm. Neutral light gray walls contrast softly with the wooden trim and furniture, creating a cozy yet open atmosphere. A large wooden bed with a natural, plank-style headboard is centered between matching bedside tables, each topped with a classic lamp. The carpeted floor adds a plush texture underfoot. Ample storage is provided by a wide dresser and closet doors made of matching wood. Large windows with blinds frame leafy views, completing the serene, lodge-like aesthetic.
Bathroom Vanity Area

This bathroom features a spacious vanity with a long granite countertop, accommodating dual under-mount sinks and oil-rubbed bronze faucets. The cabinetry below is crafted from rustic wood, complementing the warm tones of the wood trim around the windows and the ceiling, composed of natural wood planks. A large mirror spans the length of the vanity, amplifying light from the window above and a row of warm, multi-bulb vanity lights. A walk-in tiled shower with glass partition is visible, continuing the beige and natural stone color scheme. The dark wood flooring contrasts softly with the lighter wall color, tying rustic charm with modern functionality.
Game Room

This spacious game room features a warm, rustic aesthetic with wood-paneled walls and a matching wood-plank ceiling. A classic black pool table with a vibrant blue felt top anchors the center of the room, illuminated by a rectangular overhead light fixture. The flooring is a rich, dark wood laminate, complementing the wood trim around the windows. The room boasts a stone fireplace with a wooden mantel, adding cozy charm alongside a barrel-style table and stools. Games like darts and shuffleboard highlight the entertainment focus of this room, enhanced by colorful wall art and a welcoming atmosphere.
Rustic Bedroom Retreat

This spacious bedroom features a warm, rustic aesthetic highlighted by rich wood paneling covering the vaulted ceiling and lower wall sections. The polished hardwood floor complements the natural tones, balanced by a large, neutral striped area rug underfoot. A handcrafted wooden bed with a natural branch design stands as the centerpiece, flanked by two matching nightstands topped with simple ceramic lamps. Decorative pillows with bear motifs add a cozy, outdoorsy charm. Light floods in through a stained-glass window above the bed and large windows with blinds, enhancing the airy, inviting atmosphere. A plush recliner and full-length mirror complete the serene space.
Rustic Bathroom Details

This bathroom combines rustic charm with modern functionality. The ceiling features natural wood planks that add warmth and character, complementing the wooden vanity with its rough-hewn texture and dark metal handles. A stone vessel sink sits atop the wood countertop, paired with a matte black faucet for a contemporary touch. The walk-in shower boasts large gray tiles with a pebble stone floor, bordered by a sleek black metal frame and matching shower fixtures. Neutral beige walls and soft lighting above the mirror create a cozy, inviting atmosphere, while practical shelving in the shower and a woven basket enhance organization.
Cozy Bedroom with Balcony Access

This warm bedroom features a sloped ceiling and plush light beige carpeting that enhances its inviting atmosphere. A large wooden bed with a charming bear-themed quilt and matching pillows anchors the space, while two wooden nightstands with simple lamps add a rustic touch. Natural light streams through the wood-framed windows with blinds, contributing to the airy feel. A ceiling fan with a light hangs centered above for comfort. A wooden dresser occupies one corner, and a glass door beside a window on the far wall leads to a balcony with an expansive view, adding an outdoor connection to the room.
Spacious Bedroom with Balcony Access

This inviting bedroom features two full-sized beds dressed in patchwork quilts with a rustic bear motif, evoking a cozy, cabin-like ambiance. Neutral beige walls contrast softly with the textured white vaulted ceiling, adding depth and spaciousness. Natural light filters through wooden blinds on the windows and glass door, which opens to a private balcony offering scenic mountain views. A ceiling fan hangs overhead, complementing the room’s warm, earthy tones. Dark wood furniture including nightstands, a dresser, and a media console add a sturdy yet homey touch, enhancing the room’s welcoming, tranquil vibe.
Outdoor Fire Pit Area

This serene outdoor space features a circular stone fire pit surrounded by four Adirondack chairs crafted from warm-toned wood and black accents, perfectly blending functionality with rustic charm. The ground is layered with light gray gravel, providing a natural, low-maintenance base that contrasts nicely with the deep green forest backdrop. A wooden retaining wall marks the edge, framing expansive views of rolling hills and dense treetops under a blue sky dotted with soft clouds. This cozy seating area invites relaxation and intimate gatherings amid peaceful nature, embodying a balance of comfort and rugged outdoor beauty.
Backyard Patio and Deck

This inviting backyard space centers around a warm, stone fire pit, bordered by four Adirondack-style chairs placed on a bed of light gray gravel, encouraging cozy outdoor gatherings. Elevated above the patio, the wood deck features railings and two sets of black-framed French doors that connect the outdoor living area seamlessly to the home’s interior. The warm honey-toned wooden siding contrasts with the black trim and charcoal gray roof, harmonizing with the natural greenery surrounding the home. A built-in hot tub and a small serving station with stools enhance comfort and entertainment, creating a charming, rustic yet modern outdoor retreat nestled into the wooded hillside.
Listing Agent: CHERIE EDMUNDS of Century 21 Results via Zillow
