
This unique split-level home is nestled on a quiet cul-de-sac in the desirable Country Trials neighborhood, right in the heart of vibrant Gurnee, Illinois. Built with character and charm, the home features a blend of natural stone and light siding exterior complemented by a steeply pitched roofline and two prominent brick chimneys, reflecting a distinctive architectural style that melds traditional and contemporary elements. The interior boasts vaulted ceilings with a striking floor-to-ceiling fireplace and a custom oversized solarium in the kitchen, flooding the space with natural light. The separate dining area opens via an oversized sliding glass door to a deck perfect for outdoor entertaining. The spacious main level primary suite includes an oversized soaking tub and a private patio for relaxation. Upstairs, there are three additional bedrooms and a full bathroom, providing ample space for family or guests. Recent renovations add significant value and peace of mind, including a new roof installed in 2021, furnace and water heater replacements in 2022, a double-poured asphalt driveway upgraded in 2019 to accommodate heavy-duty vehicles, and fresh interior painting completed in 2025. Located adjacent to the scenic O’Plaine Park with basketball courts, walking trails, baseball fields, and playgrounds, this home offers both tranquility and convenience with easy access to I-94 and Rt 41 for commuters. Listed at $400,000, this well-maintained property presents a fantastic opportunity to enjoy a comfortable lifestyle on a spacious lot in a prime Gurnee location.
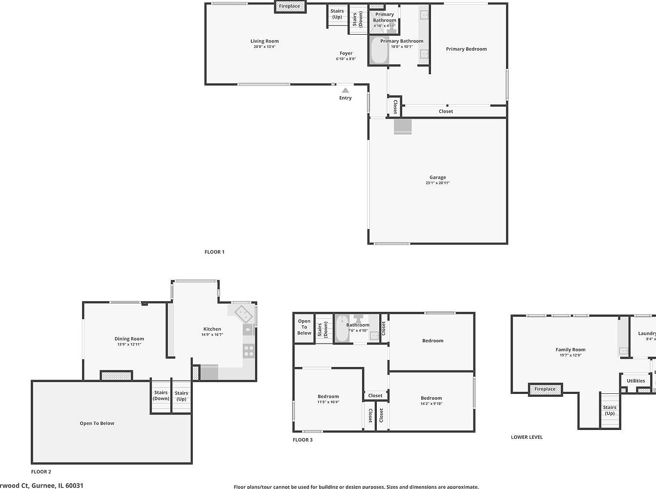
floor Plans

This serene living space blends warmth and modern minimalism, featuring a striking stone fireplace as the focal point. Neutral tones dominate the color palette, with soft beige walls complemented by light hardwood flooring that enhances the airy ambiance. A single, large window allows natural light to spill in, balancing the room’s intimate and open feel. The furniture is minimal, including a beige sofa that echoes the wall tone and a simple coffee table that maintains clear sightlines to the fireplace. Decorative elements are understated, emphasizing texture and comfort over clutter, creating a cozy yet contemporary retreat.
Living Room and Staircase

This living room presents a rustic yet airy ambiance featuring light wood paneled walls with a weathered finish that adds texture and warmth. The room transitions from a light beige carpeted area to a parquet wood floor, creating visual separation between spaces. A black-framed fireplace with a minimalist hearth centers one wall, framed by a tall vertical mirror that enhances the room’s height. Large mullioned windows allow abundant natural light to flood in, complementing the open wood staircase with its clean lines and matching wood railings. The staircase connects multiple levels, embracing an open concept that blends architectural interest with cozy charm.
Bedroom with Patio Access

This spacious bedroom offers a serene retreat with large sliding glass doors framed in warm wood that open to a small balcony overlooking lush greenery. Adjacent wooden-framed double windows provide ample natural light while enhancing the connection to the outdoors. The walls are painted a soft, neutral tone that complements the light beige carpet flooring, which features imprints from previous furniture placement. The room’s clean lines and simplicity create a blank canvas, perfect for personalization, while the natural wood trim adds a cozy, inviting touch to the airy space.
Bathroom Vanity Area

This bathroom vanity area features a long countertop with an integrated sink on one end, supported by dark wooden cabinetry that adds warmth and contrast to the space. A large mirror spans the entire length of the wall above the counter, reflecting light and enhancing the openness of the room. Above the mirror, a built-in wooden light fixture with a frosted cover provides soft, even illumination. The flooring is a light, neutral tile, complementing the white countertop and walls. Two louvered cabinet doors are mounted beside the mirror, likely hiding storage or a medicine cabinet. The space flows directly into an adjacent room with carpeted flooring and a sliding mirrored closet door, creating a sense of continuity in this mid-century inspired home.
Bathroom Tub Area

This bathroom corner features a sunken tub with a tiled step-in platform, finished in light beige porcelain tiles that blend seamlessly with the soft off-white walls. A large mirror spans the length of the wall above the bathtub, reflecting a wooden beam detail and vanity cabinetry in dark wood tones, adding warmth to the otherwise neutral palette. The adjacent space shows a plush light gray carpet leading to a wooden door and mirrored sliding closet doors, creating a clean and airy transition between bathroom and adjoining rooms.
Kitchen Area

This spacious kitchen features a U-shaped layout with a warm wooden parquet floor that contrasts nicely with the clean, white cabinetry. Stainless steel appliances including a side-by-side refrigerator, dishwasher, microwave, and a stove are seamlessly integrated, adding a modern touch. Large windows with horizontal blinds allow plenty of natural light to brighten the space. The white countertops and walls maintain a bright and airy feel, while a brushed nickel pendant light over the sink and matching chandelier provide elegant lighting options. The overall design balances functionality with a simple, timeless aesthetic.
Built-In Storage Wall

This space features a tall built-in storage wall with multiple white cabinets extending from floor to ceiling, creating a clean and organized look. The cabinetry presents simple, smooth panels with small round knobs, offering subtle functional elegance. The light hardwood parquet flooring adds warmth and texture, contrasting gently with the bright white cabinetry. To the right, a large floor-to-ceiling glass wall framed in natural wood allows abundant natural light and views of lush greenery outside, bringing a sense of openness and calm. The design emphasizes minimalism combined with practical storage and nature integration.
Sunroom with Deck Access

This bright sunroom features floor-to-ceiling sliding glass doors that open seamlessly onto a wooden deck, inviting abundant natural light and offering views of lush greenery. The walls are clad in vertical, light-toned wood planks with a softly weathered finish, paired with matching wood trim around the large window and sliding door. The parquet wood flooring adds texture underfoot, while a classic pendant light fixture with frosted glass hangs from the vaulted ceiling, creating a warm, inviting ambiance. Subtle vertical blinds frame the windows, enhancing privacy while preserving the airy feel of the space.
Bedroom Entry and Closet

This bedroom presents a clean, minimalist design with beige carpet flooring that adds warmth and softness underfoot. The walls are painted in a crisp, light shade that brightens the space, complemented by natural wood trim and doors providing a subtle classic contrast. A set of white double closet doors offers ample storage, blending smoothly into the room’s palette. Above the closet area, a modern track light fixture illuminates the space efficiently. A simple wall shelf adds a practical accent element. The entryway connects to a stairwell with wooden railings and large windows, bringing natural light from outside and enhancing openness.
Bathroom Vanity Area

This bathroom features a crisp white toilet topped with a green floral tissue box, positioned next to a broad countertop with a single sink. The vanity showcases warm wood cabinetry beneath a glossy white surface, complemented by a large mirror that extends the length of the counter. The walls are adorned with subtle vertical stripes in muted beige tones, enhancing the room’s height. Above the mirror, a wooden frame encloses the overhead light. The tiled floor sports small square patterns in white, contributing to a clean and understated design. A towel bar sits empty above the toilet, and a shower area is partially visible through a glass door.
Bedroom with Closet Space

This bedroom features a simple and functional layout with clean, neutral tones that create a calm atmosphere. Soft beige carpeting covers the floor, complementing the off-white walls. A large window with wooden framing allows ample natural light to fill the room while offering a view of the outdoors. The wooden closet doors and the matching door to the hallway add warmth with their rich wood finish and round brass knobs. The trim around the doors and baseboards echoes the wood’s color, providing cohesive design elements throughout this cozy, inviting space.
Backyard and Deck

This tranquil backyard area features a spacious green lawn bordered by mature trees and garden beds. The house’s exterior shows natural wood siding painted in a soft taupe-grey, complemented by dark window frames that add modern contrast. A raised wooden deck with simple railing extends from the upper level, accessed by a straight flight of stairs. Below the deck is a small paved patio area, ideal for storage or outdoor seating. The architecture blends contemporary angular rooflines with practical outdoor living spaces, offering a peaceful retreat with natural landscaping that enhances the home’s serene ambiance.
Listing Agent: Darren Allen of Real Broker LLC via Zillow
