
Nestled in the heart of Eagan, MN, this stunning Craftsman-style home offers the perfect blend of rustic charm and modern comfort. Set on a 0.81-acre lot surrounded by natural landscaping, this 4-bedroom, 2-bathroom retreat boasts 2,351 sq. ft. of beautifully designed living space. Inside, enjoy hardwood flooring, a floor-to-ceiling brick wood-burning fireplace, and a 3-season sunroom that immerses you in nature year-round. With multiple decks and serene wooded views, this home is a private oasis. Priced at $475,000, it’s a rare gem in a sought-after location!
1. Rustic Craftsman Retreat with Views

This beautiful Craftsman-style home blends seamlessly with its natural surroundings, featuring rich wood siding and earthy tones that complement the wooded landscape. The rear of the home showcases multiple decks, a 3-season sunroom, and large windows that invite in natural light while offering serene views. A walkout lower level adds to the spacious feel, while the expansive 0.81-acre lot provides a peaceful, private setting. With its rustic charm and modern conveniences, this home is a true retreat in nature.
2. Where is eagan?

Eagan, Minnesota, is a thriving suburb located south of the Twin Cities, just 15 miles from downtown Minneapolis and St. Paul. Positioned in Dakota County, it offers convenient access to major highways, including I-35E and I-494. Eagan is known for its beautiful parks, including Lebanon Hills Regional Park, which spans over 2,000 acres of scenic trails and lakes. The city is home to the Minnesota Vikings’ training facility and headquarters, the Twin Cities Premium Outlets, and a variety of dining, shopping, and entertainment options, making it a desirable place to live and visit.
3. Spacious Ground Level Layout Design

The ground level of this home features a spacious and well-designed layout, offering both functionality and comfort. The entryway leads into a large living room with ample space for relaxation and entertainment. The kitchen, located centrally, connects to a dining area and an inviting sunroom, providing a bright and airy atmosphere. The primary bedroom includes a walk-in closet and an attached bathroom, while an additional bedroom and second bathroom offer convenience. A hallway connects these spaces, leading to a sizable garage, completing this well-thought-out floor plan.
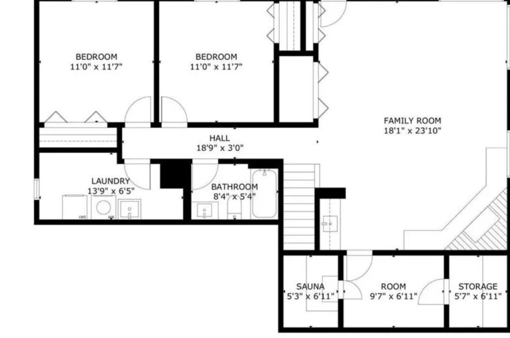
4. Spacious Lower Level with Sauna

The lower level of this home offers a functional and inviting layout. It features two well-sized bedrooms, each measuring 11’0″ x 11’7″, connected by a central hallway. A spacious family room provides ample space for relaxation and entertainment. The level also includes a full bathroom, a convenient laundry room, and additional storage areas. A dedicated sauna adds a touch of luxury, while a separate multipurpose room enhances versatility. This well-designed space ensures both comfort and practicality for everyday living.
5. Warm and Inviting Craftsman Entry

Stepping into this Craftsman-style home, you’re greeted by a warm and inviting entryway featuring a rich wood front door with decorative glass panels. The entry opens to a sunken living room with hardwood flooring, a charming floor-to-ceiling brick fireplace, and expansive windows that flood the space with natural light. A classic wrought-iron railing adds character, while the slate tile foyer provides a seamless transition into the home. With its open design and cozy elements, this entryway sets the tone for a welcoming retreat.
6. Spacious Living Room with Fireplace

The spacious living room exudes warmth and character, featuring rich hardwood floors and a striking floor-to-ceiling brick wood-burning fireplace that serves as the focal point. Vaulted ceilings enhance the airy, open feel, while large windows invite abundant natural light and offer serene views of the surrounding landscape. The seamless flow into the adjacent sunroom and dining area makes this space perfect for relaxation or entertaining, combining timeless craftsmanship with modern comfort.
7. Bright Dining Area with Views

The dining room is a bright and inviting space, featuring warm hardwood floors and large windows that fill the room with natural light. A stylish hanging light fixture adds elegance, while the sliding glass doors provide seamless access to the sunroom, blending indoor and outdoor living. The rich wood trim around the windows and doors enhances the cozy, rustic charm. With ample space for a dining table, this area is perfect for enjoying meals while taking in scenic views of the surrounding landscape.
8. Elegant Wood Kitchen with Granite

This kitchen features warm wood cabinetry with intricate detailing, creating a cozy yet elegant atmosphere. The granite countertops provide ample workspace, while a stylish backsplash adds charm. Stainless steel appliances, including a gas range and built-in microwave, enhance functionality. A large window above the sink offers a scenic outdoor view, filling the space with natural light. Thoughtful design elements, such as glass-paneled cabinet doors and unique overhead lighting, complete this inviting and well-equipped culinary space.
9. Cozy Sunroom with Scenic Views

The sunroom is a warm and inviting space featuring natural wood paneling on the walls and ceiling, creating a cozy, cabin-like feel. Large windows surround the room, allowing for abundant natural light and offering breathtaking views of the wooded landscape. A charming wood-burning stove adds both warmth and character, making this space perfect for year-round enjoyment. Soft lighting and a ceiling fan complete the ambiance, ensuring comfort and relaxation in this peaceful retreat.
10. Scenic Wooded Balcony Retreat

This balcony offers a peaceful retreat with stunning wooded views, perfect for enjoying nature in every season. The dark wooden railing and trim contrast beautifully with the surrounding trees, creating a cozy yet open feel. Large windows connect the space to the sunroom, allowing for a seamless indoor-outdoor experience. Two elegant lantern-style lights add charm and warmth, making this an ideal spot for morning coffee or evening relaxation while soaking in the scenic landscape.
11. Rustic Terrace with Cozy Ambiance

This charming terrace offers a cozy and inviting outdoor space, perfect for relaxing or entertaining. With a rustic wooden pergola overhead, it provides partial shade while allowing sunlight to filter through, creating a warm ambiance. The black metal dining set, featuring an elegant round table and matching chairs, adds a touch of vintage charm. Surrounded by nature, this terrace seamlessly blends indoor and outdoor living, making it an ideal spot for enjoying morning coffee, casual meals, or peaceful evenings under the open sky.
12. Bright and Spacious Primary Bedroom

The primary bedroom offers a bright and airy retreat with its minimalist design and large window that invites natural light while framing a serene view of the outdoors. The neutral-colored walls create a warm and inviting ambiance, complemented by rich wooden trim and gleaming hardwood floors that add a touch of elegance. Spacious and versatile, this room provides ample potential for customization, making it an ideal space for relaxation and comfort in a peaceful home setting.
13. Modern Beige-Tiled Bathroom Design

This bathroom features a modern yet simple design with beige tiled walls that extend halfway up, complemented by a soft cream-colored paint above. A glass-enclosed shower with a sliding door is situated in the corner, featuring a tiled interior with a mix of neutral tones. The white pedestal sink with a chrome faucet adds an elegant touch, positioned below a large mirror that reflects light and creates a spacious feel. A white toilet sits nearby, maintaining a cohesive look. The wooden door with a brass handle adds warmth, completing the inviting atmosphere.
14. Cozy Bedroom with Built-In Bookshelves

This cozy bedroom features a warm and inviting design with hardwood flooring and built-in wooden bookshelves that span an entire wall, offering ample storage space. A large window with a dark wood frame provides plenty of natural light and a beautiful view of the wooded landscape outside. The neutral-colored walls enhance the room’s spacious feel, while a modern square ceiling light adds a touch of elegance. The combination of natural elements and soft tones creates a peaceful and functional space perfect for reading or relaxation.
15. Stylish Bathroom with Rustic Touches

This bathroom blends modern and rustic elements, featuring a dark wood vanity with a speckled granite countertop and an undermount sink. Above the vanity, a wooden-framed mirrored cabinet adds storage and warmth to the space. A white toilet sits next to a sleek bathtub with glossy white tiled walls, creating a clean and bright atmosphere. A black shower rod contrasts subtly, while a small wooden shelf with hooks provides additional functionality. The mix of textures and tones results in a cozy yet stylish design.
16. Rustic Family Room with Fireplace

This cozy family room combines rustic charm with modern comfort. The space features rich wood-paneled walls and a striking brick fireplace, creating a warm and inviting ambiance. Large windows allow natural light to brighten the room while offering scenic outdoor views. The terracotta tile flooring adds an earthy touch, complementing the wood tones. A mounted television above the fireplace enhances functionality, making this an ideal spot for relaxation or gatherings. Recessed and track lighting provide ample illumination, ensuring a cozy yet vibrant atmosphere.
17. Cozy Wooden Sauna Retreat

This sauna exudes warmth and relaxation with its rich wooden interior and classic design. The smooth wooden planks line the walls and ceiling, creating a cozy, inviting atmosphere. A sturdy bench provides ample seating for unwinding, while a traditional wooden bucket sits nearby for an authentic sauna experience. The subtle lighting enhances the tranquil setting, making it the perfect retreat for rejuvenation. A built-in thermometer ensures the perfect temperature, promising a soothing and refreshing escape.
18. Cozy Bedroom with Scenic Views

This cozy bedroom features a serene and inviting atmosphere with soft two-tone walls—light cream on the upper half and a calming lavender-blue on the lower half, separated by warm wooden trim. The large window, framed in rich wood, allows natural light to flood the room while offering picturesque views of the surrounding wooded landscape. The wood-style laminate flooring enhances the room’s charm, providing a clean and modern touch. With its neutral tones and natural elements, this space is ideal for relaxation and personalization.
19. Bright and Functional Bathroom Design

This bathroom features a clean and functional design with a neutral color palette. The white bathtub and tiled shower area offer a bright and refreshing space, complemented by beige walls. A sleek vanity with a speckled countertop and dark wood cabinetry provides storage and style. Above the sink, a large mirror with a three-light fixture enhances brightness. The toilet is positioned conveniently beside the vanity. The overall design is simple yet practical, creating a cozy and inviting atmosphere.
Listing agent – Denise Sjoberg @ Keller Williams Select Realty via Realtor
