
Discover the charm of this brick-front ranch-style home in the heart of Old Bridge Township! With 3 bedrooms and 1.5 baths, this inviting residence offers a bright, open layout with large windows and skylights that fill the space with natural light. A partially finished basement provides extra storage and customization potential. Outside, a fully fenced backyard is perfect for relaxing or entertaining. Zoned for the Old Bridge School District, this commuter-friendly location is near major highways, train stations, and shopping centers. Enjoy easy access to parks, beaches, and recreational areas, making this home a perfect blend of convenience and comfort!
1. 3-Bedroom Ranch-Style Home

Discover the charm of this brick-front ranch-style home in the heart of Old Bridge Township! With 3 bedrooms and 1.5 baths, this inviting residence offers a bright, open layout with large windows and skylights that fill the space with natural light. A partially finished basement provides extra storage and customization potential. Outside, a fully fenced backyard is perfect for relaxing or entertaining. Zoned for the Old Bridge School District, this commuter-friendly location is near major highways, train stations, and shopping centers. Enjoy easy access to parks, beaches, and recreational areas, making this home a perfect blend of convenience and comfort!
2. Where is Old Bridge?

Old Bridge, NJ, is a lively township in Middlesex County, about 25 miles south of New York City. It blends suburban charm with convenience, offering great schools, diverse dining, and easy access to major highways like the Garden State Parkway and Route 9. Outdoor lovers enjoy Cheesequake State Park, known for its scenic trails and unique mix of forests and marshlands. With a rich history, strong community spirit, and plenty of parks and activities, Old Bridge is a welcoming place that feels like home./
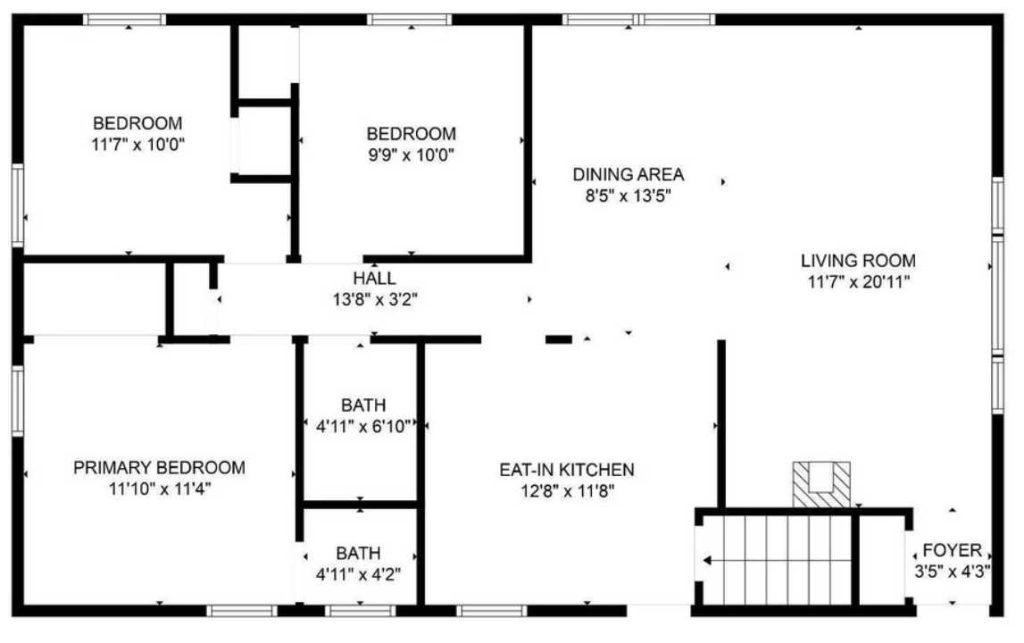
3. Main Level Layout

The foyer opens into a welcoming living room and features a staircase leading to the upper level. The open-concept layout seamlessly connects the living and dining areas, creating a spacious and airy feel. A well-appointed kitchen offers ample space for cooking and entertaining. A hallway leads to the private primary bedroom, complete with an en-suite bath and a generous closet. Two additional secondary bedrooms share a well-designed bath, providing comfort and convenience for family or guests.
4. Lower level layout

The staircase leads down to the basement, where you’ll find a functional utility room and a finished living space. This versatile area offers endless possibilities, whether you need a recreation room, home office, or additional storage. The basement enhances the home’s functionality, providing extra space for relaxation or future customization.
5. Bright and Spacious Living Area

This inviting living room offers a blend of comfort and charm with its plush seating, soft lighting, and elegant décor. Large windows allow natural light to fill the space, highlighting the high ceilings and open layout that seamlessly connects to the dining area. Classic furnishings and warm tones create a cozy yet sophisticated ambiance, perfect for relaxing or entertaining guests.
6. Elegant Dining Space with Vintage Charm

This classic dining area features a warm and inviting atmosphere, highlighted by a mid-century wooden dining set and a stylish chandelier. The natural light filtering through the draped curtains enhances the cozy ambiance, making it a perfect space for gatherings. Framed floral artwork and a vintage hutch add a touch of timeless elegance, complementing the soft color palette.
7. Kitchen with Classic Wooden Accents

This well-lit kitchen blends warmth and functionality with its wooden cabinetry and bright white appliances. Natural light streams through skylights, enhancing the cozy yet spacious feel. The tiled flooring and mosaic backsplash add texture and charm, while a round wooden dining table provides an inviting spot for casual meals. A ceiling fan and pendant lighting complete the space, creating a perfect balance of style and practicality.
8. Cozy family Space with a Classic Touch

This intimate family area exudes warmth and nostalgia with its plush beige sectional sofa adorned with soft pink and neutral throw pillows. A wooden dresser holds a classic box-style television, adding a vintage charm to the space. Natural light filters through a small window with decorative valances, while framed artwork and charming wall décor enhance the cozy atmosphere. Perfect for relaxing, this room is a delightful mix of comfort and timeless appeal.
9. Bedroom with a Cozy, Traditional Feel

This inviting bedroom features classic wooden furniture, including a beautifully carved headboard, matching nightstands, and a tall dresser. The white quilt with subtle embroidered patterns adds a touch of elegance, while soft lighting from the bedside lamps creates a warm and relaxing atmosphere. Natural light streams through the windows, dressed with delicate white valances accented in blue. Thoughtfully placed artwork and decorative elements complete the room, making it a perfect retreat for restful nights.
10. Vintage Bathroom with Floral Accents

This cozy bathroom exudes a vintage charm with its soft white and beige tones, accented by decorative floral arrangements. The lace curtains allow natural light to filter in, creating a bright and inviting space. Elegant tiled walls with subtle patterns add a touch of sophistication, while the extended vanity provides both style and function. Thoughtful decor elements, such as dried floral wreaths and neatly arranged accessories, bring warmth and personality to this delightful space.
11. Charming Bedroom with a Beach Theme

This small yet inviting bedroom features a tranquil beach theme, with a calming seascape painting as the focal point. The floral bedspread, delicate lace curtains, and soft lighting create a warm and nostalgic atmosphere. A vintage-style dresser with a stereo system adds a touch of character, while the plush teddy bear adds a cozy and personal touch. The subtle mix of textures, from the carpeted floor to the wooden furniture, enhances the room’s welcoming appeal, making it a perfect retreat.
12. Bright Bathroom with Blue Accents

This bathroom exudes elegance with its clean white tiles, accented by calming blue décor. The built-in bathtub features a unique folding shower screen, adding both function and style. A large mirror reflects the light, making the space feel larger and brighter. Thoughtful decorative touches, such as the blue floral arrangement, a delicate wreath, and framed artwork, create a cohesive and inviting ambiance. The vanity provides ample storage, while the countertop offers space for neatly placed essentials. This bathroom balances practicality with charm, making it a relaxing retreat.
13. Spacious Backyard with Patio and Storage Shed

This well-maintained backyard offers a perfect blend of open space and functionality. The lush green lawn is framed by a sturdy white fence, providing both privacy and charm. A large, mature tree adds natural beauty and shade to the area. The paved patio space is ideal for outdoor gatherings or a cozy seating area. A storage shed in the corner offers ample space for tools, lawn equipment, or seasonal items. The neatly landscaped surroundings enhance the peaceful and inviting atmosphere, making this backyard a great spot for relaxation and outdoor activities.
Listing agent – Jennifer Boncic @ RE/MAX Homeland Realtors via realtor.com
