
Nestled among towering evergreens, this elegant home on 126th Pl in Portland, OR, blends timeless Tudor-inspired charm with modern luxury. Offering 5 bedrooms, 2.5 bathrooms, and 4,238 sq. ft. of living space on a sprawling 0.52-acre lot, this residence boasts striking brick accents, grand arched windows, and warm interior lighting that enhances its inviting ambiance.
1. Elegant Tudor-Style Home Surrounded by Towering Evergreens

This striking Tudor-inspired home seamlessly blends traditional charm with modern sophistication. Its brick and wood-paneled facade is accented by grand arched windows that bathe the interiors in warm light. A stately entryway, framed by an elegant brick arch, leads into the inviting space. The steeply pitched roof and gabled design enhance its classic character, while the lush tree-lined surroundings provide a serene and private atmosphere.
2. Where is Portland?

Portland, Oregon, is a vibrant city in the Pacific Northwest, known for its lush greenery, scenic rivers, and thriving cultural scene. Nestled between the Willamette and Columbia Rivers, it offers a mix of urban energy and natural beauty. With distinct neighborhoods, top-rated restaurants, and a strong commitment to sustainability, Portland attracts outdoor enthusiasts and city dwellers alike. Its mild climate, expansive parks, and easy access to hiking and biking trails make it a haven for nature lovers.
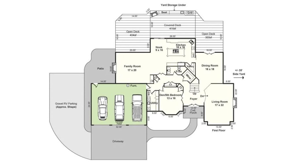
3. First Floor – Open and Functional Living

Designed for both comfort and entertaining, the first floor offers a seamless flow between spacious living areas. A grand foyer leads to a formal living room and dining space, while the open-concept kitchen connects to a cozy family room. A versatile fifth bedroom or den adds flexibility. The expansive deck and patio extend outdoor living, perfect for gatherings. With a three-car garage and ample storage, this level blends elegance and practicality.
4. Second Floor – Private and Spacious Retreat

The second floor offers a thoughtfully designed layout with four spacious bedrooms, including a luxurious primary suite with a spa-like bath and expansive walk-in closet. A generous bonus room provides flexibility for a home office, gym, or entertainment space. Ample storage, attic access, and well-placed closets ensure organization. Large windows fill each room with natural light, creating a warm and inviting atmosphere perfect for relaxation and comfort.
5. Elegant Entryway with Timeless Charm

This grand foyer welcomes guests with rich hardwood flooring and a stunning staircase that serves as the focal point. Dark wood railings and wrought-iron balusters create a sophisticated contrast against the plush, neutral-toned carpet. A warm palette of soft yellows and deep browns enhances the inviting ambiance. Natural light filters through large windows, illuminating the open-concept design. Framed artwork and classic décor add personality, while a graceful chandelier overhead completes the refined aesthetic.
6. Sophisticated Game Room with Scenic Views

This elegant game room blends recreation and refinement, featuring a sleek billiards table as the centerpiece. A striking chandelier casts a warm glow, complementing the soft gold walls. The white fireplace adds a touch of classic charm, framed by modern mirrors and curated décor. Expansive arched windows flood the space with natural light, offering picturesque views of lush greenery. Plush seating and rich drapery enhance the cozy yet luxurious ambiance, making this an inviting space for both relaxation and entertainment.
7. Refined Dining Room with Elegant Accents

This sophisticated dining room is designed for both style and comfort, featuring a rich wood table with upholstered chairs that invite conversation. A striking crystal chandelier casts a warm glow, enhancing the golden hues of the walls. Large windows frame serene outdoor views, while a globe bar cabinet adds a touch of vintage charm. Thoughtful details, from the sleek sideboard to the carefully placed décor, create a space that seamlessly blends classic elegance with modern warmth.
8. Luxurious Kitchen with Warm Accents

This refined kitchen blends rich wood cabinetry with elegant lighting and modern functionality. The spacious island, topped with speckled granite, serves as both a prep area and casual dining spot with high-backed barstools. A striking chandelier and pendant lights add warmth, while large windows invite natural light. Adjacent to the kitchen, a cozy breakfast nook with plush seating offers a tranquil retreat, enhancing the space’s seamless blend of comfort and sophistication.
9. Elegant Living Room with Rich Accents

This inviting living room blends deep teal walls with warm wooden elements, creating a bold yet cozy atmosphere. A grand fireplace with intricate wood paneling serves as the focal point, framed by large windows that flood the space with natural light. Plush seating, including vibrant teal armchairs and a textured white sofa, pairs with a leopard-print rug for an eclectic touch. Thoughtful accents, like gold-trimmed lamps and curated décor, enhance the space’s refined yet comfortable aesthetic.
10. Sophisticated Reading Nook

This refined reading nook exudes warmth with its muted olive-green walls and soft natural lighting. A plush caramel loveseat, adorned with textured pillows, sits beneath an elegant arched mirror that enhances the sense of space. Dark wood bookshelves flank the seating area, displaying curated décor and framed artwork illuminated by brass picture lights. Cozy gray armchairs and a tufted black ottoman provide additional comfort, creating an inviting retreat for relaxation or quiet conversation.
11. Elegant Under-Stair Wine Cellar

This luxurious under-stair wine cellar seamlessly integrates functionality with design. Housed behind a rich wooden-framed glass door, the space showcases an impressive wine collection neatly stored in custom racks. The deep wood tones of the staircase contrast beautifully with the sleek black iron railings, adding a timeless charm. Beyond, an open dining area with modern chandeliers enhances the home’s sophisticated yet inviting ambiance.
12. Elegant Mediterranean-Style Powder Room

This sophisticated powder room features warm, golden hues that create a cozy, inviting ambiance. The ornate, round mirror with intricate carvings adds a touch of Old World charm, complemented by a vessel sink with a metallic finish set atop a granite countertop. The wrought iron sconces with curved arms provide soft, ambient lighting, enhancing the space’s luxurious feel. A framed vintage print and small décor accents complete the refined, Mediterranean-inspired aesthetic.
13. Modern and Functional Laundry Room

This well-designed laundry room combines efficiency with warmth, featuring sleek wooden cabinetry in a rich tone that provides ample storage. A large window allows natural light to brighten the space while offering a view of the outdoors. The deep stainless-steel sink with a high-arc faucet enhances practicality, complemented by a neutral-toned countertop. Thoughtful décor elements, including blue ceramic accents and framed family photos, add a personal touch to this stylish, organized space.
14. Elegant and Cozy Bedroom

This spacious bedroom exudes tranquility with soft sage-green walls and natural light streaming through multiple windows with white shutters. A plush upholstered bed with crisp white linens and decorative pillows sits against the wall, complemented by a matching chaise lounge for relaxation. A sleek wooden media console with a mounted TV and abstract artwork adds a modern touch. Warm lighting from table lamps and a neutral-toned carpet enhance the cozy yet sophisticated atmosphere.
15. Luxurious Bathroom Vanity

This elegant bathroom features a double vanity with a rich wooden finish, topped with a sleek white countertop. A central cabinet with frosted glass doors provides additional storage, flanked by two large framed mirrors. Wall-mounted sconces add ambient lighting, while a mosaic tile backsplash enhances the sophisticated design. A glass-enclosed shower and a built-in bathtub complete the spa-like atmosphere, offering both style and functionality.
16. Cozy Spa-Like Bathtub Nook

This luxurious bathtub nook offers a serene retreat, featuring a deep soaking tub with a sleek brushed-nickel faucet. A built-in bench with a plush cushion and an elegant patterned pillow provides a relaxing spot to unwind. Large windows with white plantation shutters allow for natural light and scenic outdoor views while ensuring privacy. A soft pendant light and a mosaic tile surround enhance the spa-like ambiance, making this an ideal space for relaxation.
17. Stylish Home Theater & Entertainment Room

This cozy home theater and entertainment space is designed for relaxation and fun. A plush sectional sofa with textured pillows and a soft throw provides ample seating, complemented by ottomans for added comfort. Movie posters of classic films enhance the cinematic vibe, while ambient lighting adds warmth. A small game table near the window offers additional entertainment, making this the perfect spot for unwinding with family and friends.
18. Elegant Bedroom with Scenic Views

This serene bedroom features a plush tufted bed with a neutral-toned headboard, complemented by matching nightstands and warm lighting from stylish lamps. The cozy ambiance is enhanced by soft beige walls and carpet. Large bay windows flood the room with natural light and offer picturesque views of lush greenery. A cushioned window seat, framed photos, and a decorative vase with yellow florals add a charming, personalized touch to the space.
19. Modern Home Office with Scenic Views

This stylish home office features a spacious L-shaped wooden desk with a dual-monitor setup, a sleek black gaming chair, and a mix of professional and decorative elements. Large windows provide ample natural light and offer a peaceful outdoor view. A side cabinet, framed artwork, and sports memorabilia add a personal touch, while a warm color palette and elegant lighting create a comfortable and productive workspace.
20. Modern Bathroom with Mosaic Accents

This contemporary bathroom features a sleek double vanity with a quartz countertop, bronze fixtures, and warm wooden cabinetry. The mosaic tile backsplash adds texture and depth, complemented by a unique blue-lit wall sconce. A built-in shelving unit provides neatly organized towel storage. The bathtub and shower area is enclosed with large earthy-toned tiles and a dark shower curtain, creating a cozy yet stylish ambiance.
21. Cozy Indoor-Outdoor Living Space

This inviting indoor-outdoor space blends natural elements with modern comfort. A floor-to-ceiling stone fireplace adds rustic charm, while the wood-paneled ceiling and deck create warmth. Large sliding glass doors open to a spacious outdoor deck, furnished with cushioned chairs and a central coffee table, perfect for relaxation. Surrounded by lush greenery, this setting offers a seamless transition between indoor coziness and nature’s tranquility.
22. Luxurious Outdoor Dining & Kitchen

This elegant covered patio seamlessly blends dining, entertainment, and outdoor cooking. A spacious dining table with cushioned chairs invites gatherings, while the built-in kitchen features rich wooden cabinetry, a stone countertop, and a stainless-steel grill. A rustic stone fireplace enhances warmth and ambiance. Skylights and large windows fill the space with natural light, complementing the lush forest views for a perfect indoor-outdoor living experience.
23. Serene Outdoor Lounge

Nestled amidst towering evergreens, this inviting deck offers a perfect retreat into nature. Cozy cushioned chairs encircle a rustic wooden table, creating an intimate gathering space. The elevated design, complemented by sleek railings, provides unobstructed forest views. Potted plants and warm-toned decor elements enhance the natural ambiance, making this an ideal spot for relaxation, conversation, or enjoying a morning coffee surrounded by the tranquility of the woods.
24. Spacious Multi-Car Garage & Workshop

This well-organized garage features ample space for multiple vehicles and a dedicated workshop area. The polished epoxy flooring adds durability and a clean finish, while overhead fluorescent lighting ensures excellent visibility. A fully stocked workbench with neatly arranged tools and storage cabinets enhances functionality. With a mounted TV and hanging equipment, this space blends practicality and comfort, making it ideal for both vehicle maintenance and DIY projects.
25. Private Forest Retreat with City Views

Nestled among towering evergreens, this stunning estate offers the perfect balance of seclusion and convenience. The spacious home is set on a serene lot, surrounded by lush greenery, providing ultimate privacy. Despite its peaceful, wooded setting, the property is just minutes from a vibrant neighborhood with picturesque city and water views in the distance. This rare retreat combines luxury, nature, and accessibility in one breathtaking package.
Listing Agent – Tomas Navarro @ Keller Williams Realty Profes. via realtor.com.
