
This distinctive custom home located in the peaceful Northridge neighborhood within the thriving town of Brownsburg, Indiana, is a unique blend of character and thoughtful design that stands apart from production-built homes. Priced at $699,900, this spacious property boasts 5 large bedrooms, including two primary bedrooms on each level, offering flexibility as a multi-generational living option or an in-law suite. The residence features multiple home office spaces, two charming fireplaces, and a finished basement that enhances the overall living area. A highlight of the home is the oversized kitchen perfect for family gatherings and entertaining. The property sits on a generous 1.35-acre lot, which includes a rebuilt in-ground pool with a new liner, filter, and heater, along with a full basketball/pickleball court for outdoor recreation.
Floor Plans

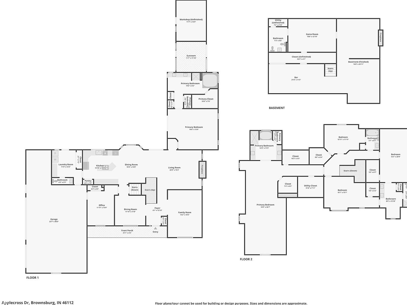
This detailed floor plan presents a multi-level home optimized for spacious living and functionality. The main floor features an expansive garage, office, kitchen with adjoining dining rooms, a large living room with a fireplace, and a family room near the entry foyer. Connected to the primary bedroom is an ensuite bathroom with a closet. The second floor includes additional bedrooms with closets, bathrooms, and a sizable primary bedroom with an ensuite. The basement is designed for entertainment, featuring a finished area, game room, bar, bathroom, utility spaces, and unfinished workshop. This home balances private and communal spaces efficiently.
Entryway and Dining Room

Warm wood tones dominate this inviting entryway, featuring a solid wood front door with three narrow arched glass panels that offer a glimpse of the lush greenery outside. The hardwood floor continues smoothly into the adjoining open dining room, framed by rich wooden trim and crown molding that add classic elegance. A large window in the dining area brings in natural light, enhancing the neutral cream walls and soft gray carpet underfoot. A sparkling crystal chandelier centered above hints at the room’s potential for formal gatherings and refined style.
Living Room Fireplace

This spacious living room centers around a classic brick fireplace with decorative arch brickwork and a raised hearth. Two narrow windows with wooden trim flank the fireplace, allowing natural light to brighten the room. The coffered ceiling, adorned with wooden beams and intricate crown molding, adds architectural interest and warmth. Earth-toned terracotta tiles cover the floor, extending through the doorway into an adjacent room, unifying the space with a rustic charm. White walls and wood trim create a neutral palette, inviting a variety of decor styles and comfortable furnishing arrangements.
Kitchen and Breakfast Nook

This spacious kitchen blends functionality with natural charm, featuring warm oak cabinetry paired with black appliances, including a dishwasher and a double oven with a vintage red finish. The central island offers extra counter space and storage, positioned under a pendant light adding a cozy ambiance. Adjacent is a bright breakfast nook framed by large windows with wood trim, allowing abundant natural light and picturesque views of the backyard with a pool and slide. The tiled floor extends smoothly throughout, reflecting light and tying the open-plan layout together with subtle earth tones.
Breakfast Nook

This breakfast nook is inviting with a charming bay window layout, offering panoramic views of the backyard and pool area. The floor is covered with light beige-toned tiles arranged in a diamond pattern, adding a subtle texture to the space. Wood-framed windows and door frames bring warmth and natural elegance, complemented by a matching wooden built-in cabinetry housing a double oven in a rich maroon tone, adding a vintage touch. A classic chandelier hangs centered above, harmonizing with the wooden ceiling beams seen nearby, creating a balanced blend of natural light and timeless design.
Laundry Room with Exterior Access

This functional laundry room features a spacious layout with warm oak cabinetry providing ample storage above and below the countertop, perfect for organizing laundry essentials. The floor is covered with large, square ceramic tiles in an earthy tone arranged in a diamond pattern, complementing the wood hues. A pair of white front-loading laundry machines sit side by side, positioned near a glass-paneled wooden door and window that allow natural light to flood the space while offering a view and easy access to the backyard. The ceiling has a textured finish with a vintage-style hanging light fixture, adding subtle character to this practical area.
Living Room Details

This spacious living room features neutral beige walls complemented by medium-toned wood trim around the windows, baseboards, and crown molding, adding warmth and classic detail to the space. The large window allows for ample natural light, offering clear views of the green, leafy outdoors, brightening the room throughout the day. A soft, light gray carpet covers the floor, enhancing the cozy and inviting atmosphere. The ceiling is plain and white, contrasting subtly with the wood trim. This versatile blank canvas is ready for personalized furnishings and decor to create a comfortable and welcoming living area.
Dining Room Features

This room presents a classic dining area characterized by warm wood trim that contrasts softly against clean, off-white walls. The wood crown molding and chair rail provide a traditional architectural detail that frames the space elegantly. A large window with divided panes allows ample natural light to enter, creating a connection with the outside garden view. The plush, light-colored carpet adds comfort underfoot and continuity throughout the room. Centered above is an ornate crystal chandelier, which provides a touch of sophistication and charm to the otherwise understated space. A doorway with matching wood trim leads to an adjacent room, enhancing flow and accessibility.
Dining Room Details

This dining space features a charming blend of traditional architectural elements and natural light. Crown molding and chair rail, both in a warm honey wood, frame the soft cream walls gracefully. The plush beige carpet adds warmth and comfort underfoot. A classic crystal chandelier hangs centrally from the ceiling, adding a touch of elegance and refinement. Large multi-pane windows with wood trim offer a clear view of lush greenery outside, creating a peaceful ambiance. The room opens seamlessly into an adjacent area with polished hardwood flooring and a solid wood door, enhancing the home’s cohesive design.
Spacious Bedroom with Patio Access

This large bedroom features a vaulted ceiling that adds volume and openness to the space. The warm wood trim around the doors, windows, and baseboards contrasts softly with the neutral cream walls, creating a cozy yet fresh atmosphere. Soft beige carpet covers the floor, enhancing comfort and inviting barefoot relaxation. Double wooden French doors lead to an outdoor patio, flooding the room with natural light. Two interior doorways on opposite sides hint at a walk-in closet and adjoining bathroom. A ceiling fan with wooden blades adds functionality and a classic touch.
Bathroom Vanity and Tub Area

This bathroom features a spacious vanity with a long marbled countertop and dual sinks, framed by warm oak cabinetry with brass hardware that adds a classic touch. A large mirror stretches across the vanity, enhancing the sense of space and light. The room’s palette combines earthy wood tones with white walls and ceiling, complemented by a high, vaulted ceiling with wood crown molding. The floor is tiled in a geometric pattern with white tiles and brown accents. Natural light flows in through wood-trimmed windows with blinds, illuminating both the vanity area and the adjacent bathtub and shower enclosure, which incorporate matching wood and tile finishes for a cohesive look.
Bathroom Shower and Tub

This bathroom corner features a spacious built-in soaking tub with a wooden veneer base and a white tiled surround accented by a beige tile trim. Positioned next to the tub is a glass-enclosed shower with a brass frame, matching the overall vintage aesthetic. The walls and floor inside the shower are tiled with square white and beige tiles, giving a clean and cohesive look. A large bay window with wooden framing and grid-patterned blinds allows natural light to brighten the space. Recessed ceiling lights add a modern touch to the crisp, neutral color palette.
Walk-In Closet

This spacious walk-in closet features an efficient and straightforward design focused on maximizing storage capacity. Dark wooden shelves span multiple walls, providing ample space for folded garments, shoes, or accessories. Multiple wooden hanging rods are installed at varying heights, allowing for diverse clothing storage options such as shirts, dresses, and pants. The walls are painted a clean, bright white which creates contrast against the rich, dark wood finishes. A neutral carpeted floor adds warmth and comfort underfoot. The closet’s layout promotes organization with easy access to all sections, making it both functional and practical for daily use.
Hallway and Closet Area

This hallway features warm wood tones with multiple paneled doors, including a prominent double-door closet with a natural oak finish. The similarly styled smaller doors lead to adjacent rooms, creating a cohesive flow. Walls are painted a clean white, enhancing spaciousness and light contrast with the wood wainscoting below. The terracotta-colored, square-pattern ceramic tile floor adds a rustic, durable foundation to the space. The framed doorways with matching wood trim and classic brass hardware maintain a timeless and inviting aesthetic throughout this transition area of the home.
Bedroom with Vaulted Ceiling

This spacious bedroom features a vaulted ceiling enhancing the airy ambiance, complemented by a ceiling fan with soft lighting. The room is carpeted in a textured, light neutral shade, harmonizing with cream-colored walls and natural wood trim around the windows and baseboards, adding warmth to the space. A notable arched window with divided panes provides an elegant focal point and allows ample natural light, creating a bright, inviting atmosphere. Additionally, a small raised section near the entryway may serve as a cozy seating or display nook, contributing architectural interest and subtle room zoning.
Bathroom Vanity Area

This bathroom features a wide double-sink vanity with a smooth, off-white countertop that complements the rich wood cabinetry below. The cabinetry, mirror frame, and surrounding doors all showcase a warm, natural wood finish with detailed trim, adding a traditional and inviting touch. Above the large mirror, a simple light fixture with globe bulbs casts bright illumination, enhancing the room’s clean and functional aesthetic. Plush, neutral-toned carpeting extends into the adjacent room visible through the doorway, softening the space and creating a cozy atmosphere. The walls are painted a crisp white, enhancing brightness and contrast with the wood accents.
Lower Level Bedroom Area

This lower level bedroom area features a simple, clean design with neutral cream walls and beige carpeting that covers the entire floor, including a slightly raised platform that defines a cozy nook ideal for a bed. Natural wood accents, such as the medium-toned wood door and window trim, add warmth and contrast to the otherwise light palette. A ceiling fan with integrated lighting provides both illumination and air circulation, while a skylight enhances daylight. The room’s layout is straightforward, emphasizing functionality with a quiet, minimalist aesthetic perfect for relaxation.
Upstairs Loft Area

This spacious loft area features a soft, light-colored carpet that enhances the open feel. The off-white walls are accented by natural wood trim around the two windows and baseboards, adding a warm, classic touch. The ceiling fan with multiple lights provides a practical source of illumination and air circulation. Two windows offer natural light and views to greenery outside, while a doorway framed with matching wood trim leads to another cozy nook with a round window, adding architectural interest. The overall design is simple, clean, and inviting, perfect for a flexible living or play space.
Bathroom Vanity and Tub

This compact bathroom blends functionality with a warm, rustic touch. The white bathtub and surrounding walls keep the space bright, while gold-toned fixtures add subtle elegance. A wooden towel rack complements the cabinetry below the sink, both featuring a natural oak finish that brings warmth to the predominantly neutral palette. The countertop is smooth and cream-colored, coordinating well with the built-in sink. A matching wooden medicine cabinet with an inset mirror hangs above, reflecting the adjoining door’s rich wood tones, enhancing the room’s cohesive, traditional charm.
Bedroom Alcove Nook

This bedroom features vaulted ceilings painted in a soft white tone that enhances the spaciousness of the room. The carpet is light gray with subtle texture, creating a cozy and neutral foundation. A raised alcove niche with a two-light fixture suggests a dedicated space suitable for a desk or sitting area. Wood trim around the doors, windows, baseboards, and doorframes adds warmth and contrast. Natural light filters in through a large window on the right, brightening the space. The simple yet functional layout balances modern and classic elements for a clean, inviting bedroom environment.
Spacious Attic Room

This large attic space features a bright and airy atmosphere with sharply sloped ceilings painted crisp white. The room is fitted with two classic ceiling fans with warm wood blades and glass light fixtures. Soft, neutral carpeting covers the floor, enhancing the room’s sense of cleanliness and comfort. Along one wall, custom-built oak bookshelves offer ample storage and showcase rich wood textures contrasted against the light walls. Natural light pours in through skylights and a window near the far end, which is bordered by a pair of wooden-framed glass French doors, leading to an adjoining room.
Bathroom with Shower and Tub

This bathroom features a warm wooden vanity with ample cabinetry beneath a long, frameless mirror that enhances the spacious feel. Adjacent is a compact shower with frosted glass and a silver frame, positioned between the vanity and a generously-sized bathtub with matching wooden paneling. The tub is set under a large window with wooden trim, allowing natural light to flood the space while offering a view of lush greenery outside. Light-colored tiles cover the floor and part of the walls around the tub, creating a clean, bright aesthetic. A white ceiling fan and skylight add ventilation and additional natural lighting.
Basement Recreation Area

This basement features a spacious recreation area highlighted by neutral tones and wooden accents. The carpeted staircase, bordered with oak trim, leads down to a wide open space with a covered pool table positioned under a rectangular light fixture. The ceiling consists of white acoustic tiles laid out in a grid pattern, which complements the clean white walls and the light gray concrete flooring. A half-wall with turned spindles separates the stair landing from a cozy brick fireplace nook, framed by sturdy wood beams that provide architectural interest and warmth to the room.
Backyard with Pool and Court

This spacious backyard features a covered rectangular pool with a blue protective cover, firmly surrounded by concrete decking. A light blue slide descends into the pool, adding an element of fun for children. The yard also includes a concrete sports court complete with a basketball hoop and a nearby basketball net, ideal for outdoor recreation. The house exterior showcases a combination of tan brick and taupe siding with classic roofing. Tall green trees and a wooden privacy fence enclose the space, creating a serene and family-friendly outdoor environment under a bright, partly cloudy sky.
Listing Agent: Ryan Radecki of Highgarden Real Estate via Zillow
