
This beautifully crafted home in Crozet, VA, showcases classic all-brick architecture, lending it a timeless and sturdy presence. Nestled on a spacious 5.46-acre manicured estate, the property offers a rare combination of privacy and convenience, situated directly across from Brownsville Elementary School and in the midst of Western Schools district. Built by a meticulous one-owner, this residence features five bedroom suites and five and a half baths, with a thoughtful design emphasizing both comfort and functionality. The home includes a recently added terrace-level apartment with a kitchenette, built in 2020, ideal for guests, a nanny, or as a rental space. The primary suite impresses with double walk-in closets and an adjoining office with French doors, making it a private retreat. A newly updated kitchen boasts freshly painted white cabinets, granite countertops, double wall ovens, an island, and an open flow to a family room and the stunning outdoor backyard, which was renovated to include new bluestone patios, a fire pit, and a deck—perfect for entertaining or quiet relaxation amid the surrounding woods. Additional features include a long winding driveway and a sweeping front lawn that enhance the country setting while maintaining easy access to local amenities. The terrace level also offers a large unfinished space for storage or potential future expansion. Listed at $950,000, this home perfectly balances upscale living with natural beauty in an exceptionally convenient location.
Entryway and Staircase

This welcoming entryway features a classic wooden front door in a deep green hue, complementing the soft beige walls and natural wood flooring. The area is naturally illuminated through large sidelights and a transom window above the door, creating a bright, airy feel. A richly patterned area rug adds warmth and elegance while anchoring the space. The traditional staircase with white spindles and polished wooden handrails curves gracefully upward, inviting guests further inside. Furnished with vintage-style wooden chairs and a dark wood chest adorned with decorative accents, this space blends timeless charm with cozy functionality.
Staircase and Entryway

This space combines a warm, traditional staircase with an inviting entryway. The rich, glossy hardwood steps and handrails contrast elegantly with the crisp white balusters, highlighting craftsmanship and classic design. The open layout provides a view from the upper level down to the front door, framed by tall sidelights that flood the area with natural light. Below, a patterned area rug anchors a cozy seating nook with a light blue upholstered settee, a small wooden side table, and a dark wood chest, accentuating a welcoming and refined charm. Neutral wall colors soften the overall look, creating a harmonious atmosphere.
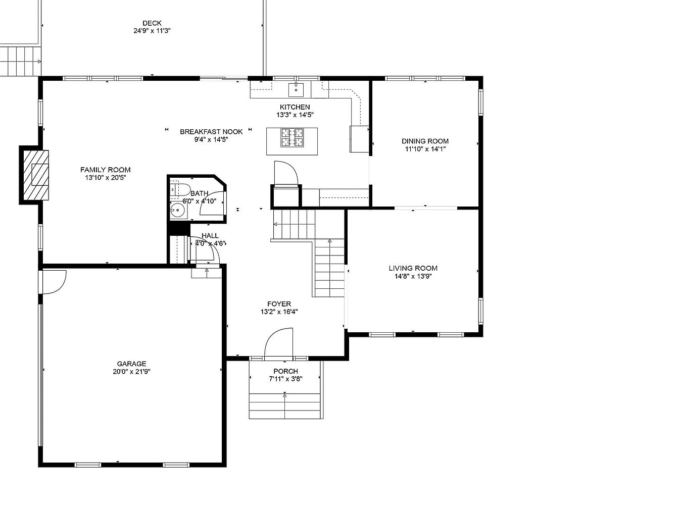
First Floor Layout

This floor plan reveals a well-organized main level designed for both functionality and comfort. Enter through a porch leading into a spacious foyer measuring 13’2″ by 16’4″, serving as central access to the living room, kitchen, and staircase. To the right is a formal living room adjacent to the dining room, allowing for elegant entertaining. The kitchen and breakfast nook form an open, flowing area at the rear, with access to a large deck. The family room is on the left side, emphasizing casual relaxation. A convenient small bathroom and garage complete this thoughtful layout.
Second Floor Layout

This floor plan organizes a spacious second-level layout including four bedrooms, multiple bathrooms, a laundry room, and an office. The primary bedroom suite is prominently sized at 20′ x 13′, featuring an adjoining primary bath and dual walk-in closets. Bedrooms 2, 3, and 4 offer good proportions, each accessible via a central hall that connects all spaces. There are three bathrooms throughout, with one conveniently placed near the laundry area. The office space is positioned separately to allow a quiet working environment. Overall, the design provides a functional flow, prioritizing privacy and ample storage options.
Basement Layout Overview

This basement floor plan features a spacious Storage and Utility area measuring 30’2″ by 20’5″, providing ample room for household systems and extra storage. Adjacent to it is a dedicated Storage room of 9’7″ by 16’4″. A central Hallway (8’3″ by 5’10”) connects these zones to a Family Room sized 14’8″ by 13’9″, ideal for recreation or relaxation. Also included is a versatile Guest Apartment or Bedroom #5 (14’0″ by 11’8″) with an adjoining Kitchenette (9’2″ by 4’0″) for convenience. The bathroom (8’7″ by 5’4″) is thoughtfully located nearby, supporting the guest suite. Entry from the backyard is 6’4″ by 8’5″, providing separate access. The layout balances functional utility with guest comfort.
Kitchen Island and Countertops

This bright kitchen features an efficient L-shaped layout with ample cabinetry finished in a soft cream hue that contrasts nicely with the grey granite countertops. The large kitchen island serves as a functional centerpiece, topped with the same polished granite and equipped with a stovetop. Two wooden bar stools provide casual seating, inviting conversation and relaxed meal prep. Natural light pours through the sizable window above the sink, highlighting the warm honey-toned hardwood flooring. Stainless steel appliances, including a double-door refrigerator, add a modern touch, while the gentle sage wall color creates a comforting backdrop. An arched doorway leads to a bold red dining room, adding vibrant depth to the space.
Dining Area and Patio Access

This dining space features a round, dark wood table paired with classic spindle-back chairs, set on a light textured rug that contrasts with the warm hardwood floor. The walls are painted in a soft, muted sage green that complements the natural greenery just outside. Large windows and a sliding glass door flood the area with natural light and provide direct access to a white-railing deck outfitted with a vibrant red patio umbrella and outdoor seating. A chandelier with three frosted glass shades hangs above the table, adding a touch of elegance to the cozy, inviting atmosphere. Additional touches include framed artwork, decorative candles, and a small floral arrangement, blending comfort with classic charm and enhancing the seamless indoor-outdoor flow.
Cozy Living Room Details

This inviting living room features a soft sage green wall color that provides a calming backdrop for the space. A combination of comfortable armchairs and a plush sofa, all in neutral beige and gray tones, are accented with floral and solid green throw pillows that enhance the cozy ambiance. The room centers around a classic white fireplace mantel with elegant molding, topped by a large wooden-framed mirror and decorative vases. Warm wooden furniture pieces, including a round side table and a tall bookshelf filled with books and decor, add richness and texture. Natural light filters through tall windows, completing the warm, welcoming atmosphere perfect for relaxing or gatherings.
Living Room Seating Area

This cozy living room features warm beige walls complemented by classic white crown molding and a large window that invites abundant natural light while offering views of lush greenery outside. The seating arrangement centers around an elegant wooden coffee table resting on a richly patterned dark blue and red oriental rug. Cream upholstered chairs and a plush sofa adorned with beige and cream cushions enhance the inviting atmosphere. Botanical art prints in simple wooden frames hang on the wall above the sofa, adding a nature-inspired touch. The adjacent red-walled dining room is visible through a graceful arched entryway, creating a sense of flow between spaces. Traditional wooden furniture and soft lighting from table lamps complete the refined, timeless appeal.
Dining Room Details

This dining room features rich, deep red walls accented by white chair rail moldings, creating a classic and inviting atmosphere. Large, multi-pane windows flood the space with natural light, offering a serene view of the lush greenery outside. The centerpiece is a polished wooden dining table paired with traditional dark wood chairs upholstered in a subtle striped fabric. Ornate furniture pieces, including sideboards with elegant curves, flank both sides of the room. A wrought iron chandelier with candle-style lights hangs above the table, blending vintage charm with timeless sophistication. Hardwood flooring complements the warm color palette.
Guest Bathroom Details

This compact guest bathroom features warm beige walls contrasted by white sanitary fixtures, including a pedestal sink and a classic toilet. Centered above the sink hangs an elegant black oval mirror, adding depth and sophistication to the space. Two dark floating shelves adorn the wall, decorated with a mix of vintage-style items such as a framed print, a silver trophy cup, and checkerboard-patterned accessories in black and white, creating a playful yet refined look. A neatly folded white towel is mounted on a towel bar beside the sink, while a lavender soap dispenser adds a subtle pop of color.
Master Bedroom Details

The spacious master bedroom features soft neutral tones with light beige carpet and pale walls, creating a calm and inviting atmosphere. A large wooden bed with a white quilted bedspread is the centerpiece, complemented by matching classic wooden dressers on either side of the room. A framed mirror above one dresser adds depth, while lamps on both sides offer warm ambient lighting. Two windows maximize natural light, highlighting greenery outside. White double doors open to an adjoining room, enhancing the open feel. Ceiling fans and subtle molding add elegant architectural interest to the space.
Cozy Home Office

This intimate office space features a charming vaulted ceiling and a large, single window that brings in natural light, creating a bright and inviting work environment. Soft neutral walls and light carpeting provide a calm backdrop. A bold red, cushioned loveseat with matching ottoman adds a cozy touch, perfect for reading or relaxing. On one side, a classic wooden side table with a brass lamp complements the warm tones of the furniture. Opposite the loveseat, a wooden desk topped with lamps and technology creates a functional workspace. A dark wooden bookshelf filled with decor and books completes the peaceful setting.
Master Bathroom Features

This spacious master bathroom showcases a warm, neutral color scheme with soft beige walls and matching floor tiles that create a calm and inviting atmosphere. The corner soaking tub is surrounded by tan stone tile, positioned beneath a large window that allows natural light to fill the room while offering a pleasant view of greenery outside. Adjacent to the tub is a sizeable white vanity with multiple drawers and cabinets, topped with a wide mirror and illuminated by a modern light fixture. Opposite the vanity, a frosted glass enclosed shower adds functionality and privacy. The overall design blends practicality with comfort, emphasizing clean lines and natural textures.
Cozy Bedroom Details

This bedroom offers a serene and inviting atmosphere, featuring soft beige walls that complement the plush white bedding and subtle textured quilt. A large window floods the room with natural light, highlighting the greenery outside and enhancing the peaceful ambiance. Opposite the bed, white double closet doors provide ample storage, while a dark wood dresser with a mirror and a small potted plant adds contrast and warmth to the space. Minimalist décor, including a framed floral artwork and a delicate bedside lamp, emphasizes simplicity and comfort within this intimate retreat.
Bathroom Details

This compact bathroom combines functionality with a soft, calming color palette dominated by light beige walls and accents of pale blue. The white vanity features a smooth countertop with a built-in sink and chrome fixtures, complemented by a matching soap dispenser. Above the sink, a large mirror brightens the space, while a white wooden shelf unit with a curved design holds neatly folded blue towels for convenience. The bathtub-shower combo is enclosed by a decorative shower curtain showcasing intricate designs in muted tones that echo the room’s color theme, enhancing the tranquil, clean aesthetic.
Bedroom Tranquil Corner

This bedroom exudes a serene and airy atmosphere with soft blue walls that complement the crisp white trim and furniture. A plush white bedspread and pillows sit atop a large bed positioned against the wall, flanked by classic white nightstands, each holding a lamp that casts a warm glow. Natural light floods in through three generously sized windows, enhancing the room’s inviting feel. A vintage-inspired white desk and chair offer a cozy workspace by the windows, accompanied by a patterned accent chair for added charm. Minimalistic décor and neutral carpeting tie the space together, creating a peaceful retreat.
Cozy Bedroom Reading Nook

This tranquil bedroom features soft sky-blue walls that create a calming atmosphere. A white metal bed frame with vertical bars and decorative finials anchors the space, dressed with white and black bedding and accented by a striped bed skirt. Adjacent to the bed, a wooden nightstand holds a blooming orchid, adding a touch of nature. Light filters in through two large windows, highlighting the natural wood trim and lush greenery outside. A sleek black desk with a quilted white swivel chair and a patterned accent chair offer functional seating options. Two whimsical framed artworks contribute personality without overpowering the serene design.
Bathroom Details

This bathroom features a refreshing and light blue wall color that contrasts nicely with the white cabinetry and fixtures. The vanity has a smooth, creamy countertop with a built-in oval sink and chrome faucet, lending a clean modern feel. Above the toilet, there is a white wall-mounted cabinet offering extra storage with both closed and open compartments. The bathtub and shower area is accented with a black and white striped shower curtain, adding a bold graphic element. A large window fills the space with natural light, highlighting the bright, airy atmosphere of the room.
Laundry Room

This compact laundry room features a side-by-side washer and dryer set with a sleek, modern design. The walls are painted a soft, neutral beige, providing a clean and calming atmosphere. A white utility sink with metal legs sits in the corner, adding a practical element for hand-washing clothes or other cleaning tasks. Above the appliances, open wire shelving holds several woven wicker baskets, combining functional storage with rustic charm. The room’s simple layout maximizes space efficiency, while the baseboard trim adds a subtle architectural detail that complements the understated, practical aesthetic.
Guest Room with Kitchenette

This bright guest room features soft, pastel blue walls paired with rich, warm hardwood floors, creating a cozy and inviting atmosphere. A white bed with textured bedding is positioned near a large window dressed with light, patterned curtains, allowing natural light to flood the space. A simple black side table adds a touch of contrast. The adjacent kitchenette is equipped with white shaker-style cabinets and sleek, dark countertops, accented by a modern stainless steel microwave. The ceiling’s decorative tiles and white ceiling fan provide charming architectural details, blending function and comfort in one compact living area.
Compact Kitchenette Area

This compact kitchenette is designed with a clean and modern aesthetic, featuring white cabinetry with simple, classic paneling and silver hardware. The upper and lower cabinets provide ample storage space, creating a neat and uncluttered look. The dark granite countertop contrasts elegantly with the light cabinetry, extending across the entire length to form a practical work surface. A stainless steel microwave is mounted above, while a small stainless steel refrigerator is tucked under the counter on the right. The backsplash and walls are painted in a soft muted mint green, adding a subtle touch of color to the neutral palette. A sleek, single-handle faucet and sink are centered, with a small potted orchid for a delicate natural accent that livens the space.
Bedroom with Workspace

This inviting bedroom blends rest and productivity within a serene space. Soft, muted sage walls complement the warm, natural light streaming through two large, side-by-side windows adorned with subtle patterned curtains. A crisp white bedspread harmonizes with the ceiling fan overhead, creating a fresh and airy atmosphere. The room offers clean lines with a sleek black desk paired with a modern ergonomic chair, perfect for work or study. The hardwood floor adds warmth and grounding contrast, while a small black side table holds a potted plant, introducing a touch of nature indoors.
Bathroom Vanity and Shower

This bathroom features a clean, modern design with a soft gray wall color creating a calming atmosphere. A white vanity with a smooth countertop houses a polished chrome faucet and ample cabinet storage. The large frameless mirror above the sink amplifies light and space, while a contemporary light fixture provides balanced illumination. Adjacent to the vanity, a frosted glass sliding door leads to a bright, tiled shower area with subtle geometric paneling. Open shelving with stylish black fabric bins offers organized storage, blending functionality with minimalistic aesthetics for a tidy, inviting space.
Family Room Seating Area

This cozy family room features a soft beige wall color creating a warm and inviting atmosphere. The spacious L-shaped dark gray sectional sofa is adorned with an assortment of patterned blue and white throw pillows, adding texture and a pop of color. A large, light ottoman serves as a central coffee table, balancing the room’s darker elements. Opposite the seating is a black media console with woven baskets and glass doors, topped by a flat-screen TV, providing entertainment. Natural light filters through sheer curtains framing a large window, and an exercise bike near the window suggests versatility in room use. The blue carpet with small white accents complements the sofa, tying the color scheme together.
Listing Agent: LORRIE K NICHOLSON of NEST REALTY GROUP via Zillow
