
This elegant brick home exemplifies a classic Colonial architectural style, characterized by its symmetrical façade, dormer windows, and traditional black shutters. Nestled in the highly desirable Heritage community in Wake Forest, North Carolina, this residence is ideally situated on a spacious corner lot within a quiet cul-de-sac, surrounded by mature landscaping that adds to its curb appeal. Listed at $675,000, this home combines a desirable location, refined architectural style, and a host of community features, making it a superb investment for buyers seeking a harmonious lifestyle with long-term appeal.
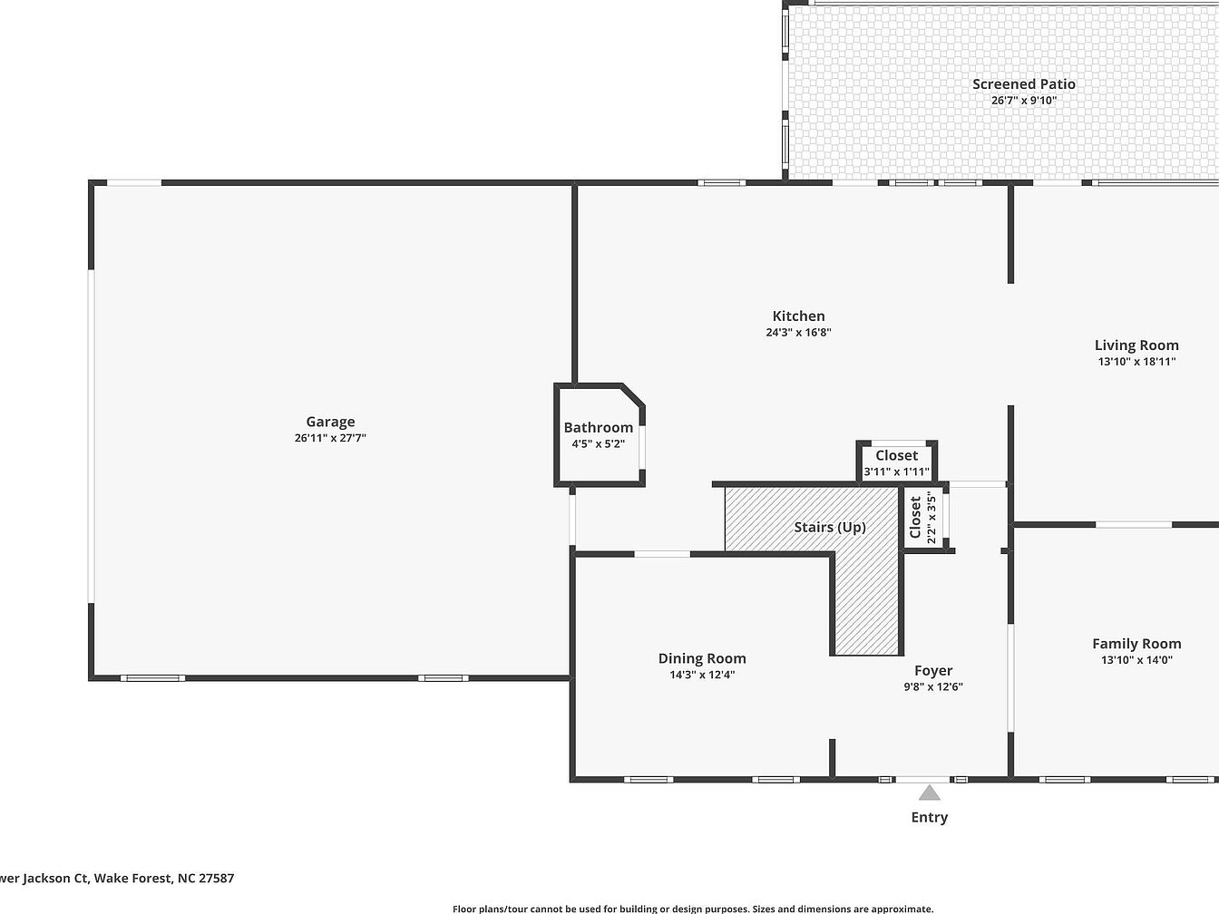
Main Floor Layout

This layout presents the main living areas of a home, centered around a prominently sized kitchen measuring 24’3″ by 16’8″. Adjacent to the kitchen is a spacious dining room with dimensions of 14’3″ x 12’4″, ideal for hosting meals. The living room and family room are positioned side-by-side, offering separate yet connected spaces for relaxation and entertainment. A foyer near the entryway provides access to stairs leading upstairs and two closets for storage. The garage occupies a substantial portion of the design at 26’11” by 27’7″, with a nearby compact bathroom. A screened patio is accessible from the kitchen area, adding outdoor living potential. The layout balances functional flow with accessibility throughout the main level.
Second Floor Layout

This floor plan highlights the second level of the home, designed efficiently to include multiple bedrooms, bathrooms, and storage spaces. Notable is the spacious bonus room measuring approximately 17 by 28 feet, ideal for flexible use such as a recreation or media room. It features three bedrooms, each with dedicated closets, offering ample storage. Two bathrooms are conveniently positioned for shared access. The laundry room is centrally located, making household chores efficient. Stairs with up and down access connect to other floors, and an “Open to Below” area creates an airy, open feel to the design. This layout balances private and communal spaces thoughtfully.
Living Room Details

This inviting living room centers around a classic fireplace flanked by built-in white shelving units, providing ample space for books or decor. Above the fireplace, a flat-screen TV integrates modern technology seamlessly into the cozy setting. The room is anchored by a deep navy textured area rug that contrasts elegantly with the light hardwood floors. Seating includes a soft white sofa accented with navy pillows and two matching white armchairs featuring transparent acrylic arms, adding a touch of contemporary style. Large windows on the left allow generous natural light, complemented by crisp white walls and crown molding, creating a bright and airy atmosphere. A sleek white coffee table with gold accents holds a simple clear vase of white flowers, enhancing the refined yet comfortable aesthetic.
Home Office

This home office showcases a bright, clean design with white walls and natural wood flooring that brings warmth to the space. The room features a large, dark wood desk with white drawer units, accentuating a modern, minimalist aesthetic. A plush, brown ergonomic office chair sits behind the desk, offering comfort and style. Natural light streams in from window blinds on one side, enhancing the airy atmosphere. The room includes French glass doors that provide a visual connection to adjacent spaces, while a beige patterned rug grounds the workspace. A contemporary table lamp and potted plant add subtle decorative touches.
Screened Porch Seating

This screened porch features a warm wooden ceiling with beadboard paneling and built-in skylights, enhancing natural light along with the large grid-style screened windows that wrap around the space. Two ceiling fans with wooden blades provide functionality and comfort for outdoor lounging. The floor is dark-stained wood complementing the natural tones of the woven rattan furniture, which includes a sofa and two armchairs with neutral beige cushions accented by bright yellow pillows. A glass-top coffee table in the center adds a modern touch, while a potted plant on a side table introduces a fresh, organic element.
Living Room Details

This living room features a spacious open layout with neutral beige carpeting that complements the light cream walls, creating a warm and inviting atmosphere. The seating arrangement centers around a wooden coffee table, flanked by a beige sofa and matching armchair adorned with blue accent pillows. A round, tufted ottoman adds texture and comfort. The space is anchored by a classic patterned area rug beneath the seating. Natural light filters through white blinds on two windows, enhancing the airy feel. Coastal-themed artwork on the walls and potted plants add color and a fresh touch, while a ceiling fan provides functional style. A wooden media console supports a flat-screen TV, balancing utility with elegant simplicity.
Kitchen and Dining Nook

This open kitchen leads seamlessly to a cozy dining nook and a spacious living area beyond. Warm wood cabinetry with black hardware complements the granite countertops, while white subway tile backsplash adds a clean, classic touch. The dining nook features a round glass table paired with four soft beige upholstered chairs, placed on a neutral area rug under an elegant black metal chandelier with frosted glass shades. Hardwood floors extend throughout, enhancing the natural light from the large window. The adjacent living room showcases a white fireplace and built-in shelving, creating a harmonious flow between spaces.
Living Room Fireplace Wall

This spacious living area centers around a classic fireplace flanked by built-in white cabinetry with open shelving above for display and storage. The walls, ceiling, and trim are painted in crisp white, complementing the warm honey-toned hardwood flooring. A large window to the left allows abundant natural light, softly illuminating the room. A dark ceiling fan with multiple lights contrasts subtly with the ceiling, adding both function and style. The room’s clean lines and neutral palette create a versatile backdrop ready for personalization with furniture and decor.
Kitchen Island and Cabinets

This spacious kitchen features warm wood cabinetry in a honey tone that lines the walls and forms the island, providing ample storage. Black knobs add a subtle, classic contrast. The countertops are polished granite with a speckled pattern that complements the wooden floors, which have a natural finish lending a cozy yet refined atmosphere. White subway tile backsplash enhances the light and bright ambiance. A large island with a small prep sink anchors the space, paired with a wrought iron light fixture boasting two frosted glass shades. Windows and glass-paneled doors bring in natural light and garden views, creating an inviting functional area for cooking and entertaining.
Home Office or Study Area

This space likely serves as a home office or study, characterized by a clean, open layout with natural light pouring in through large windows adorned with white blinds. The room features warm, polished hardwood floors that complement the crisp white walls and ceiling with detailed crown molding. Double French doors with multiple glass panes open into an adjacent room with visible stair railings and a chandelier, adding a touch of elegance. Another set of white double doors opens to a second connected area, enhancing the home’s flow and versatility for work or quiet activities.
Empty Room with Double Doors

This space features warm hardwood flooring contrasted with clean white walls and ceiling, creating a bright and inviting atmosphere. Crown molding and white baseboards add classic architectural details that elevate the simplicity. Natural light filters in through large window blinds on the right side, providing ample illumination and emphasizing the room’s spaciousness. The focal point is a pair of white double doors with gold-colored handles, opening into another room with built-in shelves and a fireplace, suggesting continuity and flow between living areas. The overall aesthetic is minimalist and versatile, ready to be personalized.
Spacious Bedroom Area

This generous bedroom features a soft beige carpet that adds warmth and comfort to the space. Crisp white walls create a bright and clean atmosphere, enhanced by natural light pouring through three symmetrically placed windows with white trim and blinds. A ceiling fan with dark wooden blades and integrated lights provides both practical air circulation and subtle elegance overhead. The room’s openness and minimalistic design offer a blank canvas ready to accommodate a variety of furniture styles and personalized décor choices, promoting a tranquil and inviting retreat.
Master Bathroom Features

This spacious master bathroom offers a clean, bright aesthetic highlighted by large frosted glass block windows that bring in natural light while maintaining privacy. The room features a corner soaking tub with gold fixtures, complemented by a separate, glass-enclosed shower framed in matching gold trim. A long white vanity with dual sinks and polished brass hardware runs along one wall, topped by a wide mirror that enhances the airy, open feel. Neutral beige floor tiles add warmth and texture, balancing the glossy white cabinetry and smooth countertops for a timeless, elegant look.
Empty Bedroom Space

This bright bedroom features a neutral palette dominated by soft white walls and beige carpet flooring, creating a calm and inviting atmosphere. Two windows on adjacent walls allow ample natural light to fill the space, highlighting the clean white trim and classic window sashes. A white ceiling fan with multiple blades provides functional comfort and minimalistic design. The room maintains a simple, versatile layout, making it ideal for personalized furnishing. Electrical outlets are conveniently placed for modern needs, and the overall effect is a blank canvas ready for style and warmth.
Bathroom Vanity and Toilet

This bathroom features a long, white countertop with dual sinks, complemented by a row of cabinets and drawers underneath for ample storage. The expansive mirror above the sinks enhances the sense of space and light. Classic chrome faucets and light fixtures with frosted glass shades provide a clean, functional aesthetic. The flooring is tiled in a neutral tone that coordinates with the soft white walls and trim. Through an open doorway, a separate toilet area is visible, illuminated by natural light from a multi-pane window framed by traditional white molding. The design is simple, bright, and practical.
Bedroom Closet Area

This bedroom area features a neutral and bright aesthetic dominated by soft beige carpeting and crisp white walls which enhance the natural light streaming through the large window with white blinds. The focal point is the double-door closet painted white with elegant, gold-toned handles that complement the understated trim and door hardware. A white ceiling fan with gold detailing offers both functionality and style. The open doorway reveals a glimpse into a hallway with warm wood flooring, creating a subtle contrast while maintaining a cohesive, clean, and inviting design throughout the home.
Laundry Area

This compact laundry nook features a clean, minimalist design with white walls and matching white ceramic floor tiles laid in a grid pattern. The space is tucked under a sloped ceiling, which adds architectural character while maintaining openness. Wall-mounted white cabinetry with simple brass knobs provides discreet storage above, complementing the overall neutral palette. Visible hookups for a washer and dryer indicate functionality, with a circular vent and practical electrical outlets. The restrained aesthetic emphasizes practicality while sustaining a fresh, bright atmosphere suitable for utility purposes.
Spacious Bedroom

This spacious bedroom features soft beige carpet flooring that adds warmth and comfort underfoot. The walls and ceiling are painted crisp white, enhancing the room’s bright and airy feel. A ceiling fan with integrated lighting is centrally positioned, providing both illumination and air circulation. Natural light floods in through two windows fitted with white blinds, framing an alcove area perfect for seating or a small desk. Subtle architectural details like the slanted ceiling and recessed panel access door add character, making this room versatile and inviting for various design styles.
Screened Porch Exterior

This exterior view focuses on a spacious screened porch attached to a light beige siding house. The porch is elevated slightly above ground level, enclosed with large, grid-patterned black framed screens, perfect for enjoying fresh air without the intrusion of insects. The base of the porch is finished with natural wood lattice panels, adding warmth and texture while providing ventilation under the structure. The roofline features clean white trim that complements the home’s simple, classic design. Surrounding lush greenery and mature trees create a serene, inviting backdrop accentuated by bright daylight and blue skies.
Want to see more from Remodr?

Drop a comment below, share this with your friends and family, and don’t forget to follow us for more fresh ideas, updates, tips, and home trends.
Listing Agent: Stirling West of Mark Spain Real Estate via Zillow
