
This elegant custom-built home is situated in the highly sought-after Escavera neighborhood of Castle Rock, Colorado. Showcasing a harmonious blend of rustic and contemporary architectural styles, the residence features exquisite wood and stone detailing that enhance its natural setting. Spanning 5,979 square feet, this home offers 6 spacious bedrooms and 6 bathrooms, designed for both comfort and luxury. The property is set on a lush 0.5-acre lot, providing privacy and stunning views of surrounding trees through Pella windows. The great room impresses with soaring 15-foot ceilings, highlighted by a Restoration Hardware chandelier and gleaming Hickory hardwood floors. This exquisite property, priced at $1,679,000, is conveniently located just 2.5 miles from downtown Castle Rock, combining peaceful living with easy access to urban conveniences.
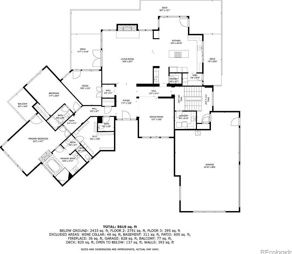
Home Floor Layout

This detailed floor plan presents a spacious, modern home layout spanning three floors with a total area of 5,619 square feet. The main floor features a large living room with direct access to multiple decks, adjacent to a generously sized kitchen designed with an island and pantry. The home includes a formal dining area right off the foyer, emphasizing an open and accessible flow. Private zones include a primary bedroom suite with a substantial walk-in closet and bathroom, an additional bedroom, and multiple baths conveniently spread throughout. A sizable garage and a dedicated laundry room add functionality, with ample hallways connecting these well-organized spaces.
Basement Floor Plan Overview

This spacious basement level features a well-organized layout with multiple functional zones. At its center lies a generous recreation room, open and versatile, ideal for entertainment or relaxation. Adjacent is a wet bar and a dedicated wine cellar, enhancing the area’s appeal for gatherings. The basement also includes two sizable basement rooms, providing flexibility for storage or additional living space. On the left side, two bedrooms with walk-in closets share a full bathroom, while the utility room is conveniently located nearby. A sauna and an additional bathroom allow for wellness and convenience, making this basement both practical and inviting.
Front Exterior and Driveway

This inviting front exterior showcases a charming stone facade house with warm exterior lighting that highlights architectural details during twilight. The home features a low-pitched multi-section roof with dark shingles, blending naturally with the surrounding tall pine trees and lush greenery. A gently curving concrete driveway leads to the entrance and garage, bordered by well-maintained landscaping with native shrubs and rock accents. The lawn is pristine, contrasting beautifully with the earthy tones of the stonework and natural wood elements, creating a harmonious and serene woodland retreat aesthetic.
Entryway and Dining Area

This space features a warm, inviting entryway seamlessly connecting to a formal dining area. Natural wood tones dominate, with a substantial, intricately paneled front door framed by tall sidelights and transom windows, allowing ample natural light in. The flooring near the entrance contrasts with the adjacent hardwood, featuring earth-toned stone tiles bordered by a mosaic trim. The dining area boasts a long wooden table surrounded by cream upholstered chairs, highlighting comfort and elegance. Crown molding and recessed ceiling details add architectural interest, while a large framed artwork with a nature motif and a modern chandelier enrich the ambiance.
Dining Room Details

This dining area features a long, dark wooden table surrounded by eight elegant, cushioned chairs with tufted detailing and light beige fabric upholstery, offering comfortable seating for larger gatherings. The room is illuminated by a modern rectangular chandelier with six frosted glass shades, suspended from a tray ceiling with wood trim accents. Large, vertically oriented windows framed in natural wood allow plenty of natural light during the day and provide scenic views. A striking painting of a stag adds a rustic touch, harmonizing with the warm wood floors and baseboards. The neutral wall color creates a balanced and inviting atmosphere.
Living Room Fireplace Area

This spacious living room centers around a large rustic stone fireplace, flanked by tall windows framed in warm wood tones, allowing ample natural light and views of the outdoors. The vaulted ceiling adds airiness, highlighted by a modern circular chandelier overhead. The flooring is light honey-toned hardwood, harmonizing with the wood trim and glass French doors to create a cozy yet open feel. A plush, gray shag area rug anchors the seating area, which includes a white tufted sectional adorned with textured cushions, blending contemporary comfort with natural, earthy design elements.
Home Office Nook

This cozy home office nook is framed by warm, natural wood built-in bookshelves and trim that complement the neutral beige carpet flooring. The space features large windows and a glass door, all bordered with wood frames, inviting plenty of natural light and offering views of the tranquil outdoors. The compact wooden desk, supported by sleek metal legs, is paired with a black rolling office chair adorned with a fluffy white cushion for comfort. Personal touches include framed photos, decorative items on the shelves, and fresh tulips in a clear vase, adding charm and personality to the room. Recessed ceiling lights provide focused illumination, creating an inviting and functional work environment.
Kitchen Island and Cabinetry

This kitchen features a spacious island with a warm wooden base and a polished granite countertop, ideal for casual dining, highlighted by three matching wood stools. Surrounding cabinetry in a rustic natural wood finish complements the light hardwood flooring, contributing to a cohesive, inviting ambiance. Stainless steel appliances including a large refrigerator and dishwasher integrate seamlessly. Under-cabinet lighting enhances the granite backsplashes and countertop workspace. The open-arced doorway leads to adjoining living areas, enhancing flow and connectivity, while recessed ceiling lights illuminate the room brightly, emphasizing the thoughtful blend of traditional warmth and modern functionality.
Master Bedroom Retreat

This master bedroom exudes comfort and elegance with its neutral color palette dominated by soft beige carpeting and warm wood trim around large windows. The expansive windows invite natural light and showcase outside views, complemented by cream-colored drapes that add a cozy touch. The room features a wrought iron bed frame topped with plush bedding in gray and green tones, along with a luxurious fur throw for added texture. A light wooden nightstand with lamps on either side enhances functionality, while a ceiling fan with wooden blades and a fireplace add warmth and style to the space.
Master Bathroom Retreat

This master bathroom combines luxury and comfort through its thoughtful layout and materials. A large corner bathtub is surrounded by polished beige marble tiles, with elegant bronze fixtures adding warmth. Adjacent to the tub is a glass-enclosed shower with matching tile and decorative inlays, lending continuity to the design. Wide wooden-framed windows allow natural light to flow in, accentuating the warm wood tones of the vanity cabinetry below a wall-to-wall mirror. The room’s earth-toned floor tiles and subtle tile accents contribute to a spa-like atmosphere, perfect for relaxation and indulgence.
Home Office Space

This home office features a cozy and inviting atmosphere with neutral beige carpeting that softens the space. Smooth, white-textured walls contrast subtly with the warm wood trim that frames the elegant tray ceiling and windows. The ceiling fan with wooden blades complements the natural wood detailing throughout the room. Large windows with wooden blinds wrap the corner, offering ample natural light and a view to the outside. Furnished with a sturdy wooden desk and ergonomic office chair, along with a lone vintage-style leather armchair, this space balances productivity and comfort effortlessly.
Cozy Living Room

This spacious living room features warm, neutral tones with soft beige carpeting and light-colored upholstered seating. The stone fireplace serves as a natural focal point, framed by a wooden mantel that adds rustic charm. Large windows and French doors with natural wood trim invite abundant natural light while offering beautiful views of the surrounding greenery and evening sky. The wooden side table with ornamental legs introduces a touch of traditional craftsmanship, balanced by modern touches like recessed ceiling lights and a large flat-screen TV mounted on the wall, creating a harmonious blend of comfort and style.
Basement Lounge Area

This spacious basement lounge features a neutral color scheme with soft beige carpeting and crisp white walls that create a bright, inviting atmosphere. Two light gray sofas with matching cushions anchor the seating area, complemented by a small, minimalist side table. The room is softly illuminated by recessed lighting and wall sconces that highlight the textured walls. A mounted flat-screen television and a dark wooden coffee table add functional touches. In the background, a breakfast bar with pendant lights and three bar stools provide an additional casual dining or social space. Natural wood trim and doors add warmth and contrast, enhancing the cozy yet modern feel.
Home Gym Nook

This compact workout area is thoughtfully designed for focused exercise sessions. The space features a Peloton bike positioned on a durable mat, emphasizing functionality and floor protection. Natural wood trim around the large windows and double glass-paneled wooden doors adds warmth and rustic charm, blending seamlessly with the neutral beige wall color and plush carpet. Recessed ceiling lights and a wooden ceiling fan provide ample lighting and ventilation. The clear sightline through the doors leads to a well-lit hallway and staircase, enhancing openness and inviting natural movement within the home.
Laundry Room

This laundry room features a functional L-shaped layout with ample cabinetry space above and below the countertop, all painted in a clean, bright white. The countertops are finished with a warm, earth-toned tile that complements the light-colored textured walls and flooring. A spacious, inset white utility sink is positioned beneath the upper cabinets for convenience. Two matching white Maytag appliances—a washing machine and dryer—sit side by side, emphasizing practicality. A simple chrome rod stretches along the wall for hanging clothes. The overall aesthetic is neat, organized, and subtle, with a neutral palette encouraging a fresh, airy atmosphere.
Wine Cellar Storage

This intimate wine cellar is designed with smooth, warm-toned wood racks that curve gently to maximize bottle storage while creating an elegant flow. Bottles are stored horizontally in dedicated slots, emphasizing careful organization and preservation. A built-in arched niche displays select bottles and decorative items, adding visual interest and sophistication. Clear glass shelves on the side hold various spirits and glassware, adding modernity through transparency. The overall color scheme combines natural wood with subtle beige walls, creating a cozy, inviting space perfect for wine enthusiasts and collectors seeking both function and understated luxury.
Powder Room Details

This powder room combines rustic charm with modern functionality through textured plaster walls and natural materials. The vanity features a beige tiled countertop with a deep, hammered metal vessel sink that adds artisanal character. Above it, a large framed mirror with a subtle, patterned border reflects light from a classic wall sconce, creating a warm, inviting glow. Neutral tones dominate, with soft whites, grays, and natural wood elements creating a calming environment. A nature-inspired painting adds visual interest and complements the outdoor aesthetic, while minimalist fixtures and accessories keep the space uncluttered and elegant.
Bedroom Corner

This cozy bedroom corner features neutral beige carpeting that showcases meticulous vacuum lines, enhancing the fresh and clean vibe. The walls are painted a soft, light gray, contributing to a calm and airy atmosphere. A wooden double closet door with natural wood grain adds warmth and rustic charm, harmonizing with matching baseboards and door trim. Two pieces of vibrant artwork, including a colorful giraffe painting, bring character and a playful touch to the otherwise understated space. Soft, diffused ceiling light brightens the area, while an armchair hints at a small sitting nook.
Cozy Bedroom Retreat

This bedroom exudes warmth with soft beige walls complemented by rich wooden window frames and baseboards, creating a natural, earthy vibe. The space is carpeted with a plush, light-toned material enhancing comfort underfoot. A slender, full-length mirror mounted on the wall adds depth and functionality, while the iron bedframe with decorative accents introduces subtle vintage charm. Generous windows offer a serene woodland view, flooding the room with natural light by day and lending a tranquil atmosphere. The room’s simplicity and clean lines make it an inviting, restful sanctuary with rustic and understated elegance.
Outdoor Deck Dining Area

This spacious outdoor deck, crafted from warm-toned wood, offers a serene dining experience surrounded by mature pine trees under a tranquil evening sky. The deck railing matches the floor and encloses a large rectangular dining table with a polished stone or tile surface, complemented by six cushioned swivel chairs in a neutral beige tone, inviting relaxed gatherings. The adjacent house exterior features dark wood siding with large windows, through which warm indoor lighting spills out, accentuating the cozy and inviting ambiance of this elevated open-air space. Subtle wall-mounted lantern fixtures add a touch of classic charm.
Spacious Outdoor Deck

This expansive outdoor deck features rich wooden flooring that extends around a dark-stained wood exterior, creating a warm and inviting atmosphere. The space is accentuated by large, floor-to-ceiling windows with black frames, allowing for abundant natural light to flow indoors and offering clear views of the interior living areas. Stone accents along part of the structure add texture and rustic charm, harmonizing with the natural wooded surroundings. Comfortable cushioned seating surrounds a rectangular table, perfect for outdoor dining or entertaining. Soft wall-mounted lantern-style lighting enhances the cozy ambiance as evening falls.
Covered Patio

This spacious covered patio features robust stone pillars supporting a rustic wooden ceiling, seamless with the natural surroundings. The large concrete floor offers a durable and easy-to-maintain surface that invites outdoor living. A simple wooden picnic table with two benches provides a cozy spot for alfresco dining or relaxation while enjoying views of the lush green trees and neighboring homes. The patio is bordered by a stone façade matching the pillars, creating a cohesive earthy aesthetic that blends the architectural elements with the forested landscape beyond. Evening light casts subtle shadows, enhancing the tranquil atmosphere.
Aerial View of Property

This elevated perspective reveals a large, multi-gabled roof home surrounded by lush greenery and mature trees. The roof features varied angles and pitches, contributing to the complex architectural design. A curved concrete driveway leads up to the house, complementing neat landscaping with rich green lawn areas and manicured garden beds lined by rocks. The presence of a spacious wooden deck on the rear side indicates outdoor living space designed for relaxation or entertaining. The harmonious blend of natural elements and manicured lawn creates an inviting, tranquil setting, emphasizing privacy and a connection to nature.
Want to see more from Remodr?

Drop a comment below, share this with your friends and family, and don’t forget to follow us for more fresh ideas, updates, tips, and home trends.
Listing Agent: Derek Thomas of Compass – Denver via Zillow
