
This beautiful home at 8 Hickory Lane in Temple, Pennsylvania, offers a striking blend of stacked stone and wood accents, characteristic of a rustic yet modern architectural style that harmonizes with its natural surroundings. Located in Alsace Township within the Oley Valley School District, this property is set on a private and mostly wooded 8.5-acre lot, featuring a serene stream that adds to the tranquil setting. The home spans over 4,000 square feet and includes 2 bedrooms, 2 full bathrooms, and 1 half bathroom, boasting a move-in ready condition with thoughtfully updated interiors. Highlights of this residence include an amazing indoor pool area with a wall of windows providing abundant natural light, a sauna, and a two-tier radiant heat patio surrounding the pool, perfect for entertaining guests. The interior features a sunken living room and dining room combination with pine board open beam cathedral ceilings and a full wall stacked stone fireplace that enhances the cozy ambiance. Modern comforts include a new high-efficiency on-demand wall-mounted propane gas HVAC system and a second washer/dryer in the basement. Additional features include a fourth bathroom prep in the unfinished lower level for future expansion, professionally maintained landscaping, multiple decks and patios, and ample natural beauty throughout the property. Listed at $650,000, this home offers a rare opportunity to own a hidden treasure nestled in nature, delivering peace and luxury in one exceptional package.
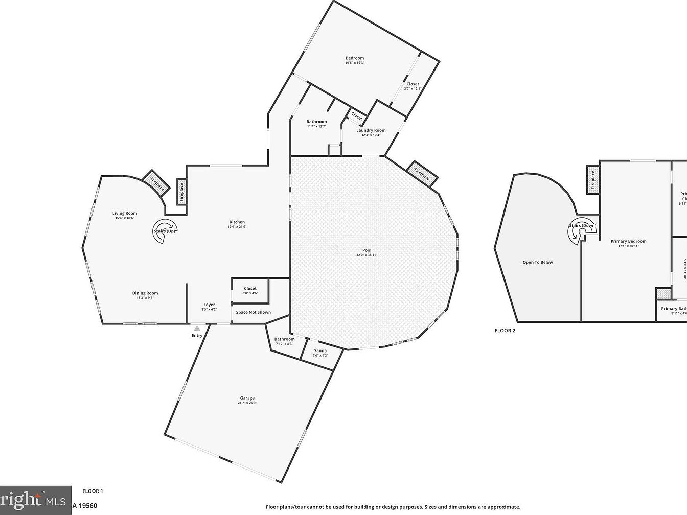
Floor Plan

This floor plan highlights a multi-functional layout with designated spaces for living, dining, kitchen, and bedrooms, linked by flowing corridors. The plan reveals an open living room with a fireplace anchor, adjacent to the dining area and a spacious kitchen. The pool area forms a central, round-edged feature surrounded by supporting rooms like sauna, bathroom, and laundry. A two-level structure is apparent, with stairs connecting open spaces and primary bedrooms upstairs offering privacy. The garage is tucked to one corner, enhancing access and organization. The design balances social and private zones, emphasizing convenience and leisure amenities.
Living and Dining Area

This open living and dining space features a striking vaulted ceiling lined with warm wooden beams and planks, enhancing the room’s rustic charm. Expansive floor-to-ceiling windows framed in wood invite abundant natural light and offer tranquil views of the surrounding greenery. The dining area includes a sturdy wooden table paired with eight leather-upholstered chairs, showcasing a rich, reddish-brown color. Adjacent, a cozy seating space with a sleek black leather sectional and modern round coffee table faces a stone accent wall where a spiral wooden staircase ascends. Light carpeting underfoot balances the earthy stone and wood elements, completing this inviting atmosphere.
Kitchen

This kitchen and dining space features a warm, inviting design with exposed wooden ceiling beams that complement the extensive oak cabinetry. The countertops are a clean white, contrasting softly with the medium-tone wood finishes. A large island with an integrated sink and modern faucet serves as both a prepping and casual dining area, complete with several black contemporary bar stools. The flooring transitions from a patterned tile in the kitchen to carpet in the adjoining dining space, where a glass double door provides natural light and access to an outdoor patio. Pendant lighting and recessed ceiling lights create a bright, functional workspace.
Master Bedroom Retreat

This spacious master bedroom features a vaulted wooden ceiling with exposed beams, adding warmth and architectural interest. A skylight above brings natural light, enhancing the serene atmosphere. The soft gray carpeting complements the muted color palette, while the wooden bed frame and nightstand introduce natural textures. French doors with wood trim open to the outdoors, fostering a connection to nature. A vintage-style wooden dresser and mirror against the far wall provide functionality without overwhelming the space. Through an open doorway, a modern bathroom with wood cabinetry is visible, continuing the warm yet airy aesthetic throughout.
Upstairs Bedroom Loft

This airy upstairs bedroom loft features a vaulted ceiling with rich wood paneling and exposed beams that add warmth and architectural interest. Skylights and a series of angled windows flood the space with natural light, enhancing the connection to the outdoors. A stone fireplace stands as a rustic focal point, contrasting beautifully with the white walls and soft, light-colored carpeting. The open railing overlooks the living area below, creating a sense of spaciousness. French doors open to an exterior view, while simple furnishings, including a wooden bed frame and minimal shelving, keep the space uncluttered and serene.
Bathroom Vanity and Adjacent Room

This bathroom features a spacious vanity with a warm wood finish and modern black hardware that contrasts with the crisp white countertop and sink. A sleek black faucet complements the minimalist look. Above the sink, a large mirror with a wooden frame reflects the room’s vaulted ceiling, showcasing exposed dark wooden beams which add architectural interest. The walls are painted soft white, enhancing the room’s brightness. A decorative metal wall art piece with floral details adds an elegant touch beside a black towel ring. Visible through an open wooden doorway is an adjoining room with floating wooden shelves, a fresh plant, and a pendant light hanging down, continuing the natural, rustic aesthetic seen throughout the home.
Bedroom Retreat

This spacious master bedroom features a vaulted, wood-paneled ceiling in warm tones, contrasted by light, neutral walls and plush carpeting that covers the entire floor. The bed, dressed in crisp white linens with subtle floral accent pillows, is flanked by two mid-century modern nightstands topped with matching lamps, creating a balanced and serene ambiance. A decorative metal wall art piece adds texture without overwhelming the simplicity of the room. Opposite the bed, two mirrored closet doors amplify the natural light and sense of openness. Additional touches include a rustic wooden chest at the foot of the bed and an armchair with classic wood and velvet upholstery. A playful corner with pastel shelving and children’s toys subtly blends comfort and family-friendly function.
Bathroom Vanity Area

This bathroom corner blends functionality with a touch of vintage charm. The countertop is an unexpected lavender shade, providing a gentle pop of color against matte gray cabinetry adorned with purple knobs. A large mirror extends across the vanity, reflecting ample light from the classic multi-bulb light fixture above. The walls are painted crisp white, contrasting with warm wood door frames and ceiling beams that add depth and natural warmth. The tiled floor features a subtle grid pattern, while a traditional wooden chair and fresh flowers soften the utilitarian space with homely elegance.
Laundry Room

This laundry room features a clean, functional layout with white walls that contrast with natural wood accents found in the door frames and cabinetry. A white LG top-loading washing machine sits prominently in the foreground, paired with a deep utility sink in the corner, which is accented by a vintage-style tile backsplash with subtle floral motifs. The light wood cabinetry above offers convenient storage. The ceiling showcases exposed wooden beams, adding warmth and architectural interest. A small mirror with a wood frame and a wall-mounted light provide extra character and practical illumination. The doorway leads to a bathroom with dark cabinetry and a vanity mirror visible.
Indoor Pool Lounge

This cozy indoor pool area highlights a spacious, curved swimming pool with an adjoining hot tub, both bordered by warm-toned stone tiling that complements the room’s natural elements. The vaulted ceiling, crafted from rich wood planks with exposed beams, adds a rustic yet refined touch. Large, slanted windows bring in abundant natural light and provide scenic views of lush greenery outside. Adjacent to the pool, a sunken seating area features modern metal-framed chairs with navy cushions accented by red pillows, positioned around a stone fireplace that offers warmth and ambiance. The neutral beige flooring and stone wall details complete the serene, retreat-like atmosphere.
Sauna Interior

This compact sauna features natural wood paneling covering the walls, ceiling, and benches, creating a warm, inviting atmosphere. The layout includes a lower slatted bench and an elevated wooden shelf for sitting or reclining comfortably. A small wall-mounted light provides a soft, soothing glow, enhancing the relaxing ambiance of the space. A woven basket with a leafy green plant adds a touch of nature and freshness. The wood’s natural grain and light finish complement the minimalist design, emphasizing simplicity while promoting a tranquil, spa-like experience in this cozy retreat.
functional Bathroom

This bathroom features a classic pedestal sink adorned with delicate floral designs and complemented by gold-toned faucet fixtures, adding subtle elegance. The walls are painted a soft white, creating a bright and clean ambiance, while two gray towels hang neatly on white towel rings. The corner reveals a matching toilet with floral accents and a beige seat, harmonizing with the tan baseboard and carpeted floor. Above the toilet, a wooden cabinet with glass-front doors provides storage and displays decorative items, balancing function and traditional charm. The etched glass mirror above the sink adds a refined touch.
Listing Agent: Ed Spayd of RE/MAX Of Reading via Zillow
