
This elegant single-story home is nestled in the prestigious guard-gated Siena Golf Club community in Summerlin, Las Vegas, NV. The architectural style blends Southwestern influences with modern luxury, characterized by stucco exterior walls, tiled roof, and desert landscaping that harmonizes with the arid climate. Built with contemporary design principles, this property offers a spacious open layout highlighted by high ceilings and expansive windows that flood the interior with natural light while framing stunning views of the adjacent golf course fairway and distant mountain ranges. Recently updated with elegant finishes throughout, the chef’s kitchen showcases granite countertops, custom cabinetry, stainless steel appliances, and double ovens, ideal for culinary enthusiasts. The primary suite is designed for relaxation, featuring bay windows overlooking the golf course, a tray ceiling, and a spa-style en-suite bathroom complete with dual and cosmetic vanities and a walk-in shower. The second bedroom includes its own en-suite bath, providing comfort and privacy for guests or family members. The beautifully landscaped backyard is low maintenance with artificial turf and a covered patio, perfect for entertaining or enjoying panoramic golf course views. Community amenities enhance the lifestyle here, including a community center with a full social calendar, fitness centers, pools, hobby rooms, and more, making it easy to stay active and engaged. Conveniently located near the 215 highway, shopping, dining, and other local attractions, this home offers both luxury and accessibility. The listing price is $969,000.
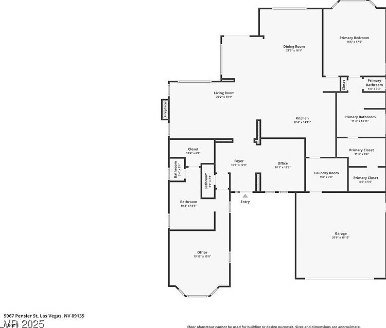
floor plan

This office room features a spacious layout with a distinctive bay window area that invites ample natural light. The walls are painted in a soft, neutral gray, paired with white crown molding and baseboards, creating a clean and modern atmosphere. The flooring is a warm, medium-tone wood, complementing the contemporary and cozy design. Furnishings include a dark wood desk and a comfortable black leather swivel chair beneath a sleek black ceiling fan with lights. Subtle decorative accents like a potted plant and artwork add personality while maintaining a professional feel. Overall, it blends functionality with stylish comfort.
Front Porch Entrance

This inviting front porch features a textured beige stucco wall surrounding a decorative glass-paneled front door flanked by two sidelights, allowing natural light to enter while maintaining privacy. The brick paver flooring adds warmth and charm with its muted earthy tones, complementing the neutral color palette. Two tall, green spiky plants in grayish textured pots frame the entrance symmetrically, adding a touch of greenery that contrasts nicely with the stone and stucco. A sturdy cream-colored column supports the covered area, giving the space a classic, elegant touch while making it functional for shelter and welcoming guests.
Home Office Workspace

This refined home office features rich, dark wood furnishings that establish a warm and sophisticated ambiance. The large desk, paired with a matching built-in wall unit, provides ample workspace and storage, including drawers and upper cabinets with open shelving for decorative accents. Black leather swivel chairs with tufted backs contribute to comfort and elegance. Natural light filters softly through plantation shutters on two adjoining windows, illuminating the room and accentuating the neutral wall color and tiled floor. Overhead, a ceiling fan with wood-finish blades complements the traditional style while enhancing airflow. Decorative touches include a small table lamp, books, and lush potted greenery, balancing function and style.
Living Room and Dining Area

This inviting living room features a neutral color palette with beige and cream tones that create a warm and cozy atmosphere. The seating arrangement includes a plush sofa, two armchairs, and a cushioned ottoman, all accentuated with patterned throw pillows. A natural-fiber area rug anchors the wooden coffee table, which holds fresh flowers and books, enhancing the room’s welcoming feel. Light beige curtains frame large windows that let in abundant natural light and offer views of greenery outside. The corner fireplace below a wall-mounted TV adds a focal point. Adjacent to the living area, the dining space showcases a sleek wooden table with six modern gray upholstered chairs, positioned on a textured beige rug and illuminated by a contemporary pendant light, with expansive sliding glass doors opening to the outdoor vista.
Kitchen Overview

This kitchen features a spacious L-shaped layout emphasizing warm, rich wooden cabinetry with dark bronze hardware that adds a classic touch. The polished granite countertops in a beige tone with natural speckles complement the neutral, diamond-patterned tile backsplash and floor, creating a cohesive and inviting atmosphere. Stainless steel double ovens and a contemporary stainless vent hood offer modern functionality. Among the details are recessed lighting and a small pendant light over the sink, which overlooks an open pass-through window, providing interaction with adjacent living spaces. The overall palette balances earthy warmth with clean, bright surfaces.
Home Office Nook

This corner of the house serves as a quiet home office nook adjacent to a more open living or dining area. The space is defined by light beige marble tile flooring that extends throughout, enhancing continuity and brightness. Crisp white walls and ceiling with detailed coffered elements add depth and sophistication. A built-in dark wood desk with matching shelving and cabinets offers ample workspace and storage, complemented by a modern ceiling fan with light. Large archways and a classical stone column separate this area while allowing open sightlines to the bright, sunlit room beyond. The neutral palette and clean lines create an elegant, functional workspace within the home’s open floor plan.
Home Office Workspace

This home office features a clean and organized layout with a large built-in desk unit crafted from rich, dark wood cabinetry. The upper cabinets include closed doors and open shelving, providing ample storage and display space. A smooth, light-colored countertop contrasts with the deep wood tones, enhancing the aesthetic. The room is brightly lit by natural light streaming through two large windows adorned with white plantation shutters. The ceiling highlights a layered tray design framing a ceiling fan with wooden blades, while the floor is covered with large square tiles in warm earth tones, lending a polished and professional ambiance.
Living Room and Entryway

This open and airy space features a neutral palette dominated by soft white walls and large beige floor tiles with natural stone texture. The living area is minimally furnished with a dark leather sofa and matching wooden side tables, creating a sleek contrast with the light flooring. Sunlight filters through two windows with white blinds, illuminating the room and highlighting a classic white-framed fireplace that anchors the living space elegantly. The entryway is connected seamlessly through an arched opening supported by a decorative column, leading to a glass-paneled front door adorned with geometric patterns, adding architectural interest and a welcoming touch.
Open Living Area and Kitchen

This spacious open living area flows seamlessly into the kitchen, highlighted by neutral beige floor tiles arranged in a diagonal pattern that enhance the room’s depth. The walls are painted a crisp white, complementing the natural light flooding through large windows and an expansive glass opening that connects indoor space to an outdoor covered patio with a ceiling fan. The kitchen features rich dark wood cabinetry, stainless steel appliances, and granite countertops with an extended breakfast bar accented by three modern pendant lights. Architectural columns subtly define the space, creating a light, airy ambiance perfect for entertaining or everyday living.
Dining Area and Nook

This open dining space features a clean, minimalist design with large beige marble tiles expanding throughout the room. The walls and ceiling are painted crisp white, enhancing natural light from the oversized sliding glass door and a wide window with scenic outdoor views. A rectangular wooden table with sleek black chairs creates a cozy dining nook in the foreground, illuminated by a modern linear chandelier. Toward the back, a smaller dining table with black chairs sits beneath a contemporary ceiling fan, adding subtle movement and modern flair while maintaining a spacious and airy atmosphere.
Dining Area with Views

This spacious dining area features a clean and airy layout with large windows that flood the space with natural light, highlighting the beige tile flooring’s subtle, warm tones. The room includes two dining setups: a modern rectangular dining table with dark chairs positioned near a panoramic window offering scenic views of palm trees and a landscaped garden, and a smaller dining table under pendant lighting near another window, framed by lush greenery outside. A built-in dark wood entertainment unit adds contrast and functionality, while recessed lighting and a stylish ceiling fan complete the fresh, inviting atmosphere.
Kitchen with Breakfast Bar

This spacious kitchen features a U-shaped layout with abundant dark wood cabinetry providing ample storage. The countertops are a light granite with beige and brown tones, complemented by a diamond-patterned tile backsplash that adds texture and warmth. A breakfast bar with a raised ledge separates the kitchen from the open living area, ideal for casual dining or entertaining. Five pendant lights with clear glass shades hang above the bar, offering focused illumination. The floors are large beige tiles that coordinate with the backsplash, while stainless steel appliances and a deep black undermount sink offer modern utility. Large windows beyond the kitchen provide natural light and views of the lush outdoor space.
Kitchen Appliances and Cabinets

This spacious kitchen features rich wooden cabinetry in a warm, medium brown finish, creating a cozy yet elegant ambiance. The upper and lower cabinets provide ample storage, while the granite countertops in a light beige and tan pattern offer durability and style. A modern, stainless steel French door refrigerator with a water and ice dispenser stands prominently beside sleek double wall ovens, blending seamlessly with the cabinetry. Neutral-toned large ceramic tiles cover the floor, and the backsplash features diagonally set square tiles with subtle earth tones, enhancing the kitchen’s classic aesthetic. Recessed lighting brightens the space efficiently.
Open Living and Kitchen Area

This spacious living and kitchen area boasts an open floor plan with cream-colored tiled flooring and bright white walls, creating a light and airy atmosphere. The kitchen features rich wooden cabinetry with modern stainless steel appliances, including a built-in oven and refrigerator. A granite countertop breakfast bar with decorative corbels extends into the space, complemented by three pendant lights with clear glass globes. The living space includes a sleek ceiling fan, and a built-in entertainment center with matching wood finishes offers storage and display options. Large windows bring in natural light, connecting the kitchen, dining nook, and living areas seamlessly.
Master Bedroom Seating Area

This master bedroom features a spacious, light-filled layout centered around a large, low-profile dark leather bed frame with a tufted headboard, dressed in crisp white bedding. Smooth beige tile flooring complements the neutral white walls, enhancing the clean and airy ambiance. A series of recessed lights embedded in the tray ceiling highlight the room’s architectural dimension. The expansive bay window offers a scenic view of lush greenery outside, allowing natural light to flood in. Dark wood nightstands flank the bed, while white cabinetry lines one side of the room, adding functional storage without cluttering the serene space.
Shower Area Details

This shower area features a modern, clean design with large beige marble-like tiles covering the walls and creating a built-in bench along one side. The floor contrasts beautifully with a pebble-style tile in dark shades, adding texture and visual interest. A glass panel encloses the shower, providing openness and a seamless transition to the rest of the bathroom. The classic chrome showerhead and matching handle maintain a minimalist look. Natural light filters through a block glass window, which offers privacy while brightening the space. White walls and trim complement the neutral palette, creating an inviting atmosphere.
Master Bathroom Vanity

This master bathroom showcases a spacious vanity with a long granite countertop in beige and brown tones, paired with rich dark wood cabinetry. Dual white oval sinks with brushed nickel faucets enhance functionality, while a large mirror stretches across the wall, amplifying the natural light from the nearby window. The flooring features large neutral tiles laid diagonally, complementing the granite hues. A built-in seat under the counter offers convenience. The room’s design balances warmth and brightness with white walls and recessed lighting, creating an inviting, elegant space for daily routines.
Home Office Space

This office features a large bay window with white plantation shutters that allow natural light to fill the room. The floor is covered with light-colored, polished tile set in a diamond pattern, complementing the room’s bright and airy feel. A dark wood executive desk sits centrally, paired with a classic wooden chair, offering a strong contrast to the neutral surroundings. Sleek dark wood bookshelves line the walls, filled with books and organized binders, adding functionality and warmth to the space. A modern ceiling fan with wooden blades provides both style and comfort, completing the room’s elegant yet practical design.
Master Bathroom Vanity

This spacious master bathroom features a dual-sink vanity with rich wooden cabinetry and a granite countertop. The large mirror, flanked by modern light fixtures, reflects ample natural light streaming through a textured glass block window, enhancing the bright and airy atmosphere. Adjacent to the vanity is a built-in bathtub with simple, clean lines and a neutral-toned surround that matches the beige tiled floor. A separate glass-enclosed shower stall is visible, framed with chrome hardware, tying together the contemporary yet warm aesthetic of this well-appointed bathroom space.
Bathroom and Adjacent Area

This space seamlessly integrates a bathroom with a view into an adjacent room featuring a small table and window shutters. The bathroom boasts a neutral color palette dominated by creamy beige tiles on the floor and bathtub surround, complemented by white walls and a glass block window that diffuses natural light beautifully. The corner bathtub is paired with a glass-enclosed shower, enhancing functionality without crowding the space. A dark wood vanity topped with granite adds warmth and contrast, while the overall design maintains a light, airy, and clean aesthetic with minimalist decor and smooth finishes.
Laundry Room with Utility Sink

This laundry room features a clean, organized layout with modern amenities. Two front-loading black washing and drying machines are positioned side by side under white overhead cabinetry, providing ample storage for laundry essentials. The color palette is neutral, dominated by white walls and cabinets, which enhance the brightness of the space. A utility sink with a polished chrome faucet sits embedded in a light-colored countertop featuring a subtle marble pattern. The floor is tiled in a light beige tone. A white door with a digital lock completes the minimalist and functional design of this practical space.
Listing Agent: Jung H. Kim of BHHS Nevada Properties via Zillow
