
This charming 3-bedroom, 3-bath chalet in Colony Cove East listed at $475,000 offers 1,964 sq. ft. of cozy living space and includes a Lake Wallenpaupack boat slip. Features include plank flooring, beam and cathedral ceilings, and a wood stove. The main-level guest suite provides privacy, while the primary suite boasts a walk-in closet, ensuite bath, and balcony. Enjoy the expansive back deck with a hot tub and creek views. With two detached garages, a carport, and a large driveway, this home is perfect for lake living and entertaining.
1. cozy exterior

This captivating home features a striking dark wood exterior, accentuated by bold red window frames and door details that stand out beautifully against the surrounding greenery. The front porch, with two Adirondack chairs, invites relaxation while enjoying the tranquil wooded setting. A second-floor balcony adds character, adorned with hanging plants, creating a welcoming and serene ambiance. The combination of natural materials and vibrant colors makes this home feel both cozy and stylish, offering a peaceful retreat in nature.
2. Where is Tafton?

Tafton is a small community located in Pike County, Pennsylvania, along the shores of Lake Wallenpaupack, one of the largest lakes in the state. Nestled in the scenic Pocono Mountains, Tafton is a popular destination for outdoor recreation, offering boating, fishing, swimming, and hiking. The area is surrounded by natural beauty, with nearby parks and forests providing opportunities for camping and wildlife viewing. With its lakeside charm and proximity to resorts and vacation rentals, Tafton is a favored spot for both seasonal visitors and year-round residents seeking a peaceful, nature-filled environment.
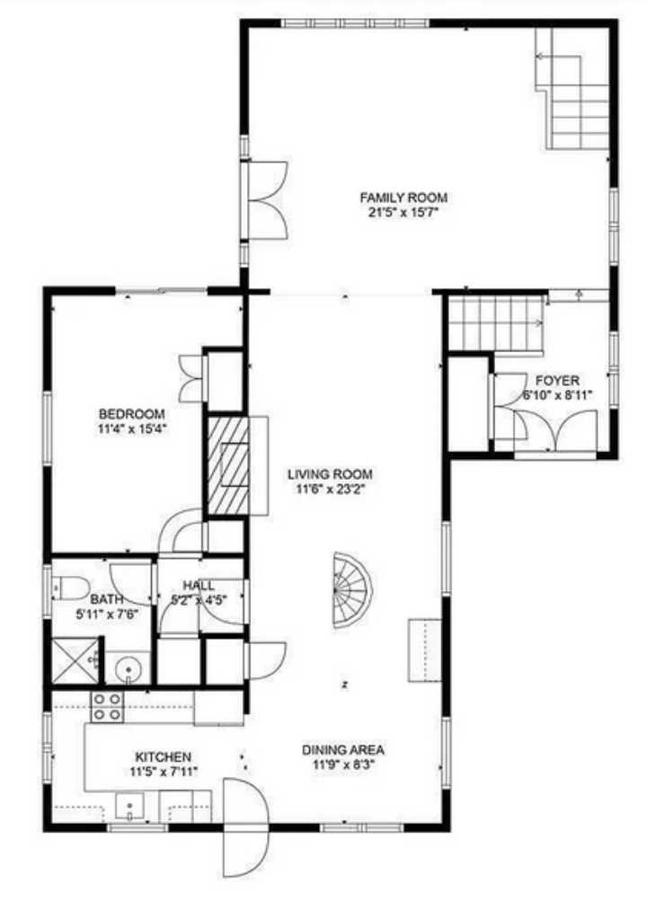
3. main floor layout

Step into the main level through a welcoming foyer that leads directly to a spacious family room, complete with seamless outdoor access. The airy living area, highlighted by a stunning spiral staircase, offers a touch of elegance and architectural charm. Flowing effortlessly from the living space, the dining room invites warm gatherings, while the adjacent kitchen provides both convenience and style. To the left of the dining room, a private bedroom with an attached bath offers comfort and accessibility, making it an ideal space for guests or family members.
4. upper floor layout

The upper level offers a peaceful retreat, featuring a secluded primary bedroom with an attached bathroom, providing ultimate privacy and comfort. The elegant spiral staircase from the living area opens to a spacious hallway with an open-to-below design, offering a stunning view of the living and dining spaces. Down the hallway, a cozy sitting area invites relaxation, while a generously sized loft bedroom with its own bath completes this versatile upper-level sanctuary.
5. Private Boat Slip with Scenic Views

This home offers an exceptional feature: a private boat slip that provides direct access to the serene waters. The dock stretches out into the calm lake, offering an ideal spot for docking your boat or enjoying peaceful moments by the water. Surrounded by nature, the view extends over lush greenery and tranquil water, creating the perfect setting for waterfront living. Whether you’re a boating enthusiast or simply enjoy the calming ambiance of the lake, this private dock is a unique and valuable addition to the property.
6. Dining Area with Unique Details

This cozy dining area is complemented by warm wood beams that run across the ceiling, enhancing the rustic charm of the space. The table, set with patterned placemats, creates a welcoming atmosphere for meals or gatherings. To the side, a spiral staircase leads to the upper levels, adding a touch of architectural intrigue. The blend of earthy tones, natural light, and unique details like the broom on the wall and the nearby wood-burning stove creates an inviting, homely environment that feels both stylish and comfortable.
7. Kitchen with Rustic Charm

This quaint kitchen combines modern convenience with rustic appeal, featuring white cabinetry paired with dark wood beams on the ceiling. A large window allows natural light to flood the space, showcasing the outdoor greenery. The countertops are spacious, and the black and white tile floor adds an extra touch of charm. A small plant hanging by the window adds a dash of greenery, while thoughtful details such as a spice rack and coffee corner make the kitchen feel homely and functional.
8. Charming Living Area

This cozy living space exudes charm with its exposed wooden beams and natural light pouring in through the windows. A comfortable white sofa, complemented by a natural wood coffee table, sits atop a patterned rug, creating a welcoming and relaxing atmosphere. The spiral staircase leads to an upper level, adding a sense of vertical space and openness. The rustic brick stove adds warmth and character to the room, while the artistic décor and shelves filled with personal touches make the space feel unique and lived-in.
9. cozy family area

This family space offers a blend of cozy comfort and natural elements. A deep leather sofa, adorned with a colorful pillow, is positioned on a warm wooden floor with a decorative rug beneath. The large window behind the sofa is framed by vibrant greenery, adding a refreshing touch to the room. The space includes a charming table with a unique, sculptural base, creating an inviting atmosphere. A piano in the corner and a staircase leading to the upper level contribute to the room’s eclectic, personal charm.
10. rustic bedroom

This cozy bedroom exudes a peaceful, rustic charm. The dark wood ceiling beams enhance the airy, open feel, while the white walls and natural light from the windows create a serene, calming environment. A vintage-style bed frame, adorned with a patterned comforter, serves as the focal point. At the foot of the bed, an antique trunk adds an element of character and function. The neutral-colored rug complements the wooden floors, and the curtains provide a soft touch, framing the outdoor view.
11. bedroom with warm accents

This inviting bedroom features warm, earthy tones, with a soft coral bedspread that contrasts beautifully with the white walls and ceiling beams. The large window allows plenty of natural light to flood the space, offering a serene outdoor view and easy access to the outdoors. A bench at the foot of the bed adds a touch of practicality, while a stylish wooden dresser and plant accents enhance the room’s natural charm. The space is balanced with rustic elements and modern comforts, creating a cozy, refreshing atmosphere.
12. bathroom with oak cabinetry

This charming bathroom features warm oak cabinetry that complements the neutral-toned tiles. The double vanity provides ample counter space, with a clean, simple design enhanced by the natural light streaming through the windows. The light wood framing of the windows gives the space an airy and open feel, while potted plants and accessories add a touch of tranquility. The colorful accents, such as the bright orange rug and towels, bring a welcoming pop of color to the serene environment.
13. home office with natural light

This cozy workspace nestled in an A-frame corner of the house makes the most of natural light with its large window overlooking the woods. The warm wooden paneling complements the light oak floor and the simple desk setup. The space is functional, with a comfortable office chair, organized shelves, and soft lighting from a desk lamp. A framed feather artwork adds a personal touch, while the sloped ceilings and strategic placement of the desk offer an inviting and tranquil setting for productivity.
14. bedroom with sloped ceiling

This cozy bedroom, situated in the corner of an A-frame house, makes excellent use of the unique sloped ceilings. The two twin beds are placed parallel, each adorned with patterned bedcovers that complement the natural wood paneling on the walls. Large windows allow for plenty of natural light, brightening the space and offering a view of the outdoors. The room is simple yet functional, featuring minimalistic decor with framed artwork and a potted plant adding a natural touch.
15. bathroom with traditional design

This bathroom features a traditional aesthetic with a wooden vanity and green stone countertop. Above the sink, a simple mirror is framed with wood, and the colorful, Southwest-inspired wallpaper border adds a pop of character. A potted plant sits on the counter, and the space is neatly organized with towels stacked in a basket. The earthy tones and rustic elements give the room a cozy and welcoming feel, perfectly complementing the natural wood and stone details throughout.
16. Attic Loft with Exposed Beams

This cozy attic space is a hidden gem, offering endless potential for your personal touch. Featuring stunning exposed wooden beams and ample natural light pouring through the windows, it’s the perfect spot to create a serene loft, office, or cozy reading nook. With its unique character and warm ambiance, this space is ready to be transformed into your dream retreat—just waiting for you to make it your own.
17. Backyard Deck with Hot Tub

Step outside into your private outdoor oasis, featuring a spacious deck perfect for enjoying both the tranquil views of nature and your own outdoor activities. Complete with a hot tub, this area is designed for relaxation—whether you’re unwinding after a busy day or hosting a weekend get-together. Surrounded by lush trees and a fenced-in yard, it offers privacy and serenity, making it an ideal space for both relaxation and entertainment.
Listing agent – Bridget Gelderman @ Davis R. Chant – Hawley via zillow.com
