
Step into timeless elegance with this stunning 4,700 sq. ft. Grand Victorian-style estate in the heart of South Jordan. Priced at $1,800,000, this 6-bedroom, 5-bathroom masterpiece offers exquisite craftsmanship and luxurious amenities. Enjoy the charm of a wrap-around porch, a dual-sided fireplace, and built-in bookshelves. The gourmet kitchen features a butler’s pantry, while the loft attic provides extra space. Entertain in the game room, theatre room, and wet bar, or unwind in the gym and dedicated craft room. A state-of-the-art surround sound system enhances the experience. The primary suite boasts his-and-hers closets for ultimate comfort. Don’t miss this rare Victorian gem!
1. Elegant Grand Victorian with Wrap-Around Porch

This Grand Victorian-style estate exudes timeless charm with its ornate gables, intricate woodwork, and a picturesque wrap-around porch perfect for relaxing. The stately brick and wood façade is accented by large bay windows that flood the home with natural light. A steeply pitched roofline and decorative trim enhance its historic elegance. The lush, manicured landscaping, complete with mature trees and vibrant flower beds, creates a welcoming curb appeal, while a spacious driveway leads to an attached garage, blending classic beauty with modern convenience.
2. Where is South Jordan?

Nestled in the heart of the Salt Lake Valley, South Jordan, Utah, offers a perfect blend of suburban charm and modern convenience. Known for its beautiful mountain views, well-planned communities, and top-rated schools, the city is a sought-after destination for families and professionals. Home to the stunning Oquirrh Lake and Daybreak community, South Jordan features parks, trails, and golf courses. With easy access to shopping, dining, and major highways, plus a strong sense of community, it’s an ideal place to call home.
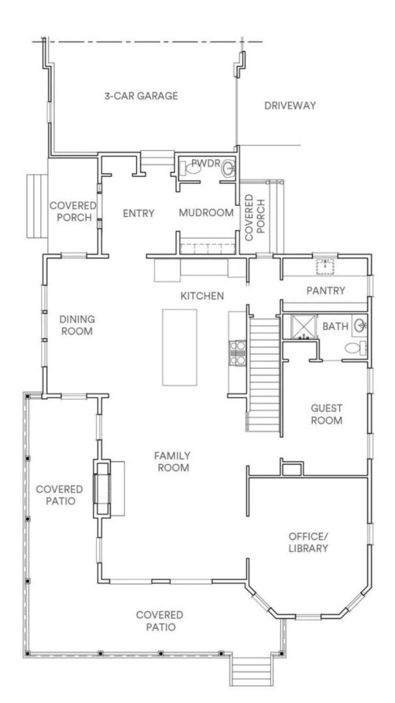
3. Spacious and free-flowing Ground Floor

The ground floor of this elegant home is designed for both comfort and functionality. A grand entryway leads into a spacious family room with a fireplace, seamlessly connecting to the kitchen and dining room. A butler’s pantry sits nearby for added convenience. A guest suite with an attached bathroom provides privacy, while a dedicated office/library offers a quiet retreat. The mudroom and powder room are near the three-car garage entrance. Expansive covered porches and patios extend the living space outdoors, perfect for relaxing or entertaining.
4. Entertainment-Focused Basement

The basement of this home is designed for entertainment and relaxation, featuring a spacious rec room perfect for gatherings. A theater room provides a cinematic experience, while two well-sized bedrooms share a conveniently located bathroom. A mechanical closet ensures easy home maintenance and an unfinished storage area offers ample space for organization. With its blend of functional spaces and entertainment areas, this level is perfect for hosting guests or creating a private retreat.
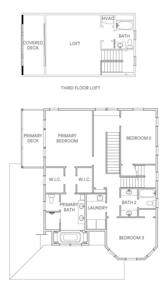
5. Luxurious Second Floor with Loft

The 2nd floor and loft provide a private and versatile living space. The primary suite features a spacious bedroom, dual walk-in closets, and a luxurious en-suite bath, along with access to a private deck. Two additional well-sized bedrooms share a full bathroom, while a convenient laundry room completes this level. The top-floor loft offers a flexible retreat with an attached bath and covered deck, perfect for a home office, studio, or lounge area, making this home both functional and elegant.
6. Elegant Living Room with Fireplace

This living room blends elegance and comfort with a modern, inviting design. A striking black fireplace serves as the focal point, framed by stylish decor and warm lighting. Large windows and glass doors flood the space with natural light, offering a seamless connection to the outdoor balcony. Neutral-toned furnishings, plush pillows, and wooden accents create a cozy atmosphere, while a mix of textures—soft fabrics, woven elements, and sleek surfaces—enhance the room’s sophisticated yet relaxed aesthetic.
7. Dining Room with Scenic Views

The dining room exudes elegance and warmth, featuring a large wooden table surrounded by upholstered and woven chairs. A striking modern chandelier hangs above, adding a sophisticated touch. Floor-to-ceiling windows flood the space with natural light and offer breathtaking views of a serene pond and lush greenery. White curtains frame the windows, enhancing the airy ambiance. Thoughtfully set with candles and dinnerware, the space is perfect for both intimate gatherings and formal dinners, seamlessly blending style and comfort.
8. Modern Kitchen with Bold Accents

This kitchen blends bold design with modern elegance, featuring a striking navy blue tile backsplash that adds depth and texture. A sleek floating shelf displays framed botanical prints and a stylish vase, complementing the contemporary black faucet and hardware. The large round mirror enhances the space, reflecting light for an airy feel. A statement island with a white countertop and gold-accented base is surrounded by plush upholstered stools. The unique pelican artwork adds a touch of character, making this kitchen both functional and artistic.
9. Gray Study with Storage

The study in this home exudes sophistication with deep gray built-in cabinetry, offering ample storage and display space. A large wooden desk anchors the room, complemented by brass hardware and elegant décor. Natural light pours in through a generous window, creating an inviting workspace. Thoughtfully curated decorative pieces, including sculptural accents and leather-bound books, add character. This refined home office balances functionality with style, making it an ideal setting for productivity and inspiration.
10. Primary Bedroom with Modern Charm

The primary bedroom offers a perfect blend of modern elegance and cozy comfort. A white upholstered headboard contrasts beautifully with the dark accent wall, creating a sophisticated yet inviting ambiance. Large windows let in ample natural light, complemented by stylish Roman shades. The space is furnished with a sleek wooden dresser and nightstands, adding warmth and functionality. Neutral bedding with plaid accents enhances the relaxed aesthetic, while unique décor elements, including a bold cow painting, add character to this serene retreat.
11. Elegant Bathroom with Scenic Views

This bathroom exudes luxury and relaxation with its elegant design and serene atmosphere. A freestanding soaking tub is perfectly positioned beneath large windows, allowing for breathtaking views and natural light. The double vanity features vessel sinks, wall-mounted faucets, and a sleek marble countertop, complemented by stylish cabinetry. Soft, neutral tones and gold accents add warmth, while open shelving provides functionality. Modern lighting and plush towels complete this inviting retreat.
12. Cozy Bedroom with Stylish Accents

This bedroom exudes a cozy yet stylish charm, featuring a neutral color palette with rich textures. A plush, upholstered bed is complemented by crisp white linens and decorative pillows in earthy tones. The dark accent wall behind the bed is adorned with a unique hat display, adding a personal and artistic touch. Matching nightstands with modern table lamps provides symmetry and warmth. Large windows allow ample natural light, enhancing the inviting atmosphere of this thoughtfully designed retreat.
13. Bright and Cozy Bedroom Retreat

This bedroom is bathed in natural light, thanks to its large windows offering stunning outdoor views. The neutral color palette, featuring soft whites and muted greens, creates a serene and inviting atmosphere. A vintage-style metal bed frame adds charm, while plush bedding and textured pillows enhance comfort. The matching white nightstands with elegant gold-accented lamps bring symmetry and sophistication. Floor-length curtains frame the windows beautifully, making the space feel cozy yet open and airy.
14. Neutral Bedroom with Sophisticated Décor

This bedroom exudes elegance with its soft neutral palette and sophisticated decor. The plush upholstered headboard is framed by sleek brass wall sconces, creating a cozy yet refined atmosphere. A mix of textured and patterned pillows adds depth to the crisp white bedding. The dark nightstand provides contrast, adorned with a deep blue vase, framed photos, and a touch of greenery. A serene landscape painting enhances the room’s tranquil ambiance, while a chic round side table completes the stylish, modern aesthetic.
15. Stylish and Inviting Recreational Room

This recreational room exudes warmth and sophistication with its neutral color palette and modern furnishings. A cozy sectional sofa in soft beige provides ample seating, complemented by textured throw pillows. A wooden coffee table holds a wire basket filled with oversized dice, adding a playful touch. The space is anchored by a round dining table adorned with metallic decorative pieces. A sleek side table with a lamp and books enhances the inviting ambiance, while large windows with blinds allow natural light to filter in.
16. Stylish and Functional Crafts Room

This crafts room is a perfect blend of functionality and creativity. A rustic wooden table serves as the workspace, complemented by two bold red velvet chairs. Floating wooden shelves provide ample storage for art supplies, neatly arranged in glass jars. Built-in cabinets offer additional organization, while a full-length mirror and warm lighting create an inviting atmosphere. A wicker pendant light and deep blue curtains add texture and contrast, making the space feel cozy and inspiring for artistic endeavors.
17. Stylish Modern Home Theater

The home theater features a sleek and modern design with dark gray walls and warm accent lighting. A large, recessed screen framed in wood serves as the focal point, creating a sophisticated yet inviting atmosphere. Plush leather recliners with cozy textured blankets and pillows offer a comfortable viewing experience. Wall sconces with exposed bulbs add ambient lighting, while built-in cabinetry beneath the screen provides storage. The intimate setting, complemented by soft carpeting, makes it a perfect space for relaxing movie nights.
18. Modern Versatile Home Gym

The home gym blends functionality with style, featuring a sleek stationary bike, mirrored walls, and a wooden ballet barre for versatile workouts. A stall bar system offers strength and flexibility training options, while exercise balls add to the variety of fitness routines. The light-colored walls and wood flooring create a bright, inviting space, enhanced by modern wall-mounted planters for a natural touch. Thoughtfully designed, this gym provides a refreshing and motivating environment for any workout.
19. Charming and Inviting Outdoor Porch

This charming porch offers a perfect blend of comfort and style, featuring classic wooden rocking chairs with woven seats, accented by plush decorative pillows. A cozy dining setup with black metal chairs and a round wooden table invites relaxed outdoor meals. Large lantern-style decor pieces add warmth, while a striped rug enhances the space’s inviting feel. The white columns and railing frame scenic neighborhood views, creating a serene retreat ideal for unwinding or entertaining in a picturesque setting.
20. Lakeside Patio with Fire Pit

The outdoor area of this home offers a stunning lakeside retreat, complete with a stone patio and a cozy fire pit surrounded by Adirondack chairs. A comfortable outdoor sofa and modern accent table create a perfect space for relaxation or social gatherings. The white picket fence frames the picturesque view of the tranquil water, lush greenery, and a nearby park. With scenic mountain views in the background, this serene setting blends luxury with nature, making it an ideal spot for both quiet evenings and lively get-togethers.
Listing agent – Destination Homes via Realtor
