
This stunning home is a French-inspired limestone masterpiece located on one of the most prestigious blocks in Lincoln Park, Chicago, IL. Built in 1963, this exquisite residence has been thoughtfully modernized while preserving its timeless elegance. Offering six spacious bedrooms and 5.2 luxurious bathrooms spread across four levels, the home exemplifies sophisticated urban living with an emphasis on comfort and style. The main level boasts a formal living room with a gas fireplace, a separate dining area, and a chef’s kitchen complete with an oversized eat-in island, beverage fridge, built-in breakfast nook, and high-end appliances. Priced at $3,950,000, this home combines luxurious finishes, meticulous craftsmanship, and thoughtful design to provide an elegant and comfortable living experience in the heart of Lincoln Park.
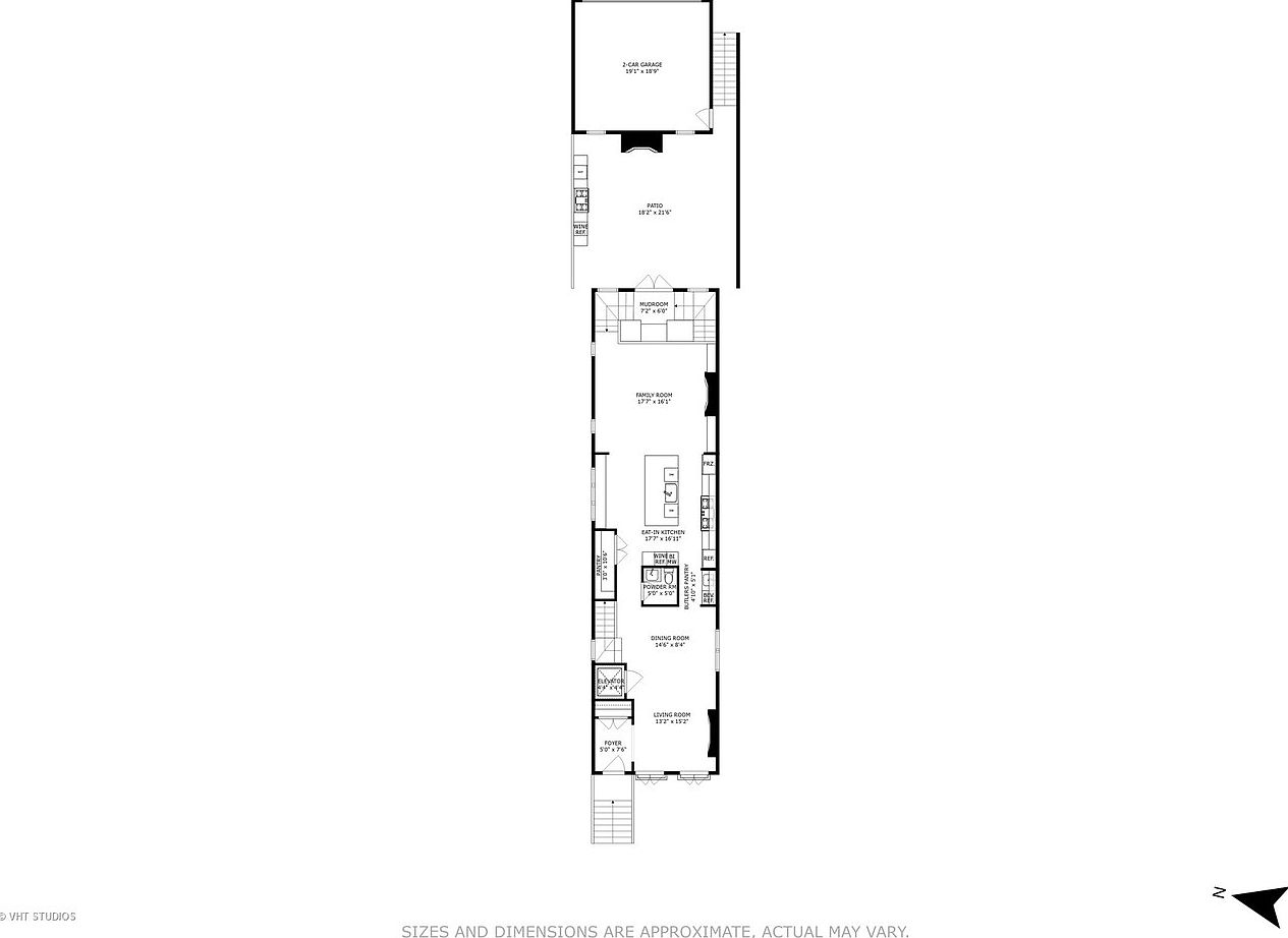
First Floor Layout

This elongated, linear layout starts with a welcoming foyer leading into a spacious living room measuring 13’2″ by 15’2″. Flowing naturally into the dining room, the design fosters easy movement between social spaces. At the core lies an expansive eat-in kitchen featuring a large island and modern amenities including a wine fridge, refrigerator, and freezer, highlighted by a dedicated powder room. Adjacent is a cozy family room sized at 17’7″ by 16’1″. At the rear, a mudroom transitions to a generous outdoor patio and a 2-car garage, perfect for functional family living and outdoor gatherings.
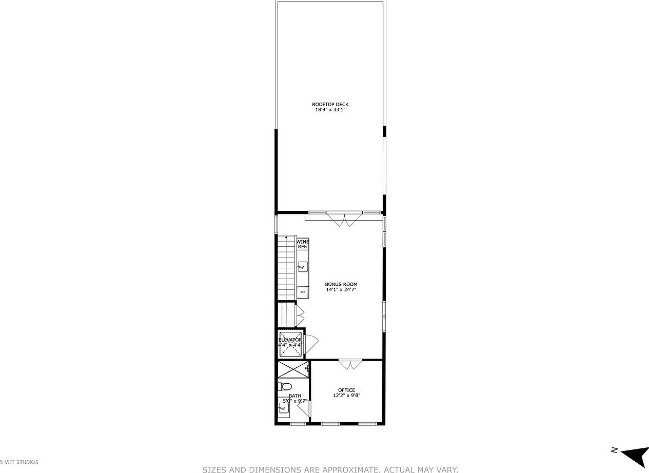
Upper Floor Layout

This layout highlights a versatile upper floor featuring a spacious bonus room measuring 14’1″ by 24’7″ that opens onto an expansive rooftop deck of 18’9″ by 33’1″, perfect for outdoor entertaining or relaxation. Adjacent to the bonus room is a cozy office space, ideal for focused work or study, measuring 12’2″ by 9’8″. A compact bathroom with dimensions of 5’0″ by 9’7″ is conveniently located nearby. The floor also includes a small area designated for a wine refrigerator and standard refrigerator, along with an elevator providing easy access. The design optimizes functionality and flow between indoor and outdoor living areas.
Second Floor Layout

This floor plan reveals a thoughtfully arranged second floor with three bedrooms including a spacious primary suite measuring 17’9″ by 14’5″. The design prioritizes privacy and convenience, featuring multiple walk-in closets and two full bathrooms strategically placed near each bedroom. A laundry room is centrally located, enhancing functional living. Stairs and an elevator offer versatile access, complemented by HVAC placement for comfort. Above this level, a rooftop deck measuring nearly 20′ square invites outdoor enjoyment. Clean lines and a linear layout maximize space, ensuring seamless circulation and balanced living zones.
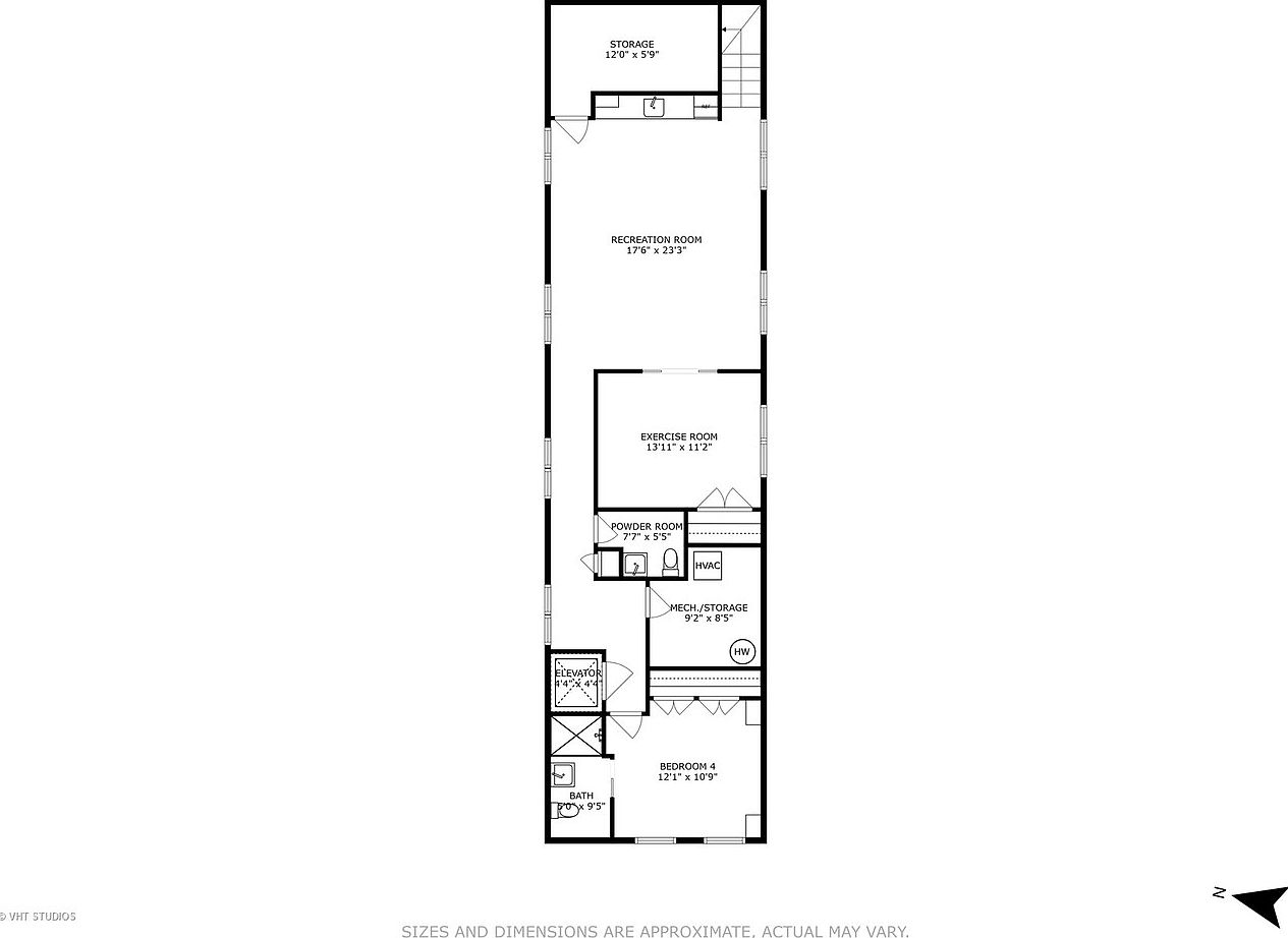
Basement Layout

This basement floor plan features a spacious recreation room measuring approximately 17’6″ by 23’3″, offering ample versatility for entertainment or relaxation. Adjacent is an exercise room sized at roughly 13’11” by 11’2″, ideal for a home gym setup. A powder room with essential fixtures is centrally located for convenience. Additionally, the floor includes a mechanical/storage room, a bedroom (Bedroom 4) with attached bath, and a compact elevator shaft, enhancing accessibility. The layout maximizes functional usage with a clear, linear flow and multiple windows to ensure natural light throughout the space.
Living Room with Fireplace

This living area uniquely blends comfort and style with a soft, neutral palette leaning heavily on whites and earth tones to create an airy ambiance. The spacious room features a cozy white sofa adorned with patterned cushions, complemented by two sleek armchairs with woven cane detailing. A minimalist round coffee table sits atop a textured black-and-white rug that adds depth. The contemporary linear fireplace, framed in white marble with subtle gray veins, serves as a focal point beneath an abstract painting. In the background, a dining space with a statement globe pendant light and botanical wall art enhances warmth and character.
Dining and Living Area

This open-concept space beautifully combines dining and living functions with a cohesive modern, yet warm aesthetic. The dining area features a round dark wood table surrounded by six woven, light brown chairs that add textural contrast against the smooth wood flooring. A striking spherical grid pendant light hangs above, creating a focal point. The living space includes a curved, cream-colored sofa placed on a muted patterned rug, facing a sleek fireplace with white marble detailing. Large windows and paired French doors draped in white curtains invite natural light, while black-trimmed frames emphasize clean, architectural lines. A tall green plant in a woven basket adds natural vibrancy.
Dining Area with Natural Light

This cozy dining area features a rich wooden table with a slightly distressed finish, paired with sleek black wooden chairs and a cushioned window bench seat covered in a subtle striped fabric. The large window is adorned with vertically striped Roman shades that add texture and pattern to the otherwise neutral white walls. Above the table hangs a modern pendant light fixture consisting of clear glass globes with integrated warm spotlight bulbs, creating a soft, inviting glow. The surrounding space opens to a bright living room with contemporary furnishings, maintaining an airy, minimalist aesthetic. Framed artwork on the walls adds a splash of color and personality to the room.
Kitchen Island and Dining Nook

This kitchen showcases a sophisticated layout featuring a large central island with a white marble countertop and a dark gray base, contrasting elegantly with the white cabinetry that lines the walls. Above the island hang three modern pendant lights with clear globe shades, adding a touch of contemporary flair. Four wicker bar stools with backs provide casual seating, inviting gatherings around the island. The cabinetry extends to the ceiling with a blend of solid and glass-front upper cabinets. The stainless steel range hood with brass accents serves as a striking focal point. Adjacent is a cozy dining nook with a rustic wooden table, a built-in bench with gray cushions, and black chairs, complemented by a unique chandelier with multiple glass globes. Light wood flooring runs throughout, contributing warmth and cohesion to this bright, open kitchen and dining area.
Bedroom Seating Area

This serene bedroom features a soft, neutral color palette dominated by shades of gray and beige, creating a calming atmosphere. A modern canopy bed with matching gray bedding anchors the space, complemented by a round mirror above the headboard that adds depth. Flanking the bed, two sleek bedside tables hold minimalistic lamps and decor, emphasizing functionality and elegance. In front of the bed, a plush light gray loveseat with textured throw pillows offers a cozy seating area, sitting atop a muted patterned rug. Large windows allow ample natural light, enhancing the airy, tranquil feel of the room.
Bathroom Vanity Area

This bathroom features a spacious double vanity with white cabinetry and modern silver hardware. The clean white quartz countertops complement the fresh, light ambiance, enhanced by two large, wall-to-wall mirrors that amplify the natural light coming through a frosted window. Elegant pendant lights with chrome detailing hang on either side of the vanities, adding a contemporary touch. The geometric patterned floor tiles in soft neutral tones add subtle visual interest, while the French-style frosted glass double doors contribute to the sophisticated, clean-lined design of this relaxing and functional space.
Bathroom Soaking Tub Area

This bathroom features a sleek, freestanding soaking tub positioned beneath a large window with frosted glass that diffuses soft, natural light. The space combines modern luxury with serene simplicity through polished white marble walls and hexagonal tile flooring in subtle gray and white tones. Adjacent to the tub is an expansive glass-enclosed shower, complete with dual showerheads and multiple body sprays, emphasizing a spa-like experience. The chrome fixtures and minimalistic hardware add a refined touch, while the pendant light above the tub complements the overall airy and bright atmosphere of this thoughtfully designed bathing retreat.
Children’s Bedroom

This cozy children’s bedroom features a playful yet sophisticated design. The walls are adorned with a swirling, hand-drawn style wallpaper in navy and white, creating an engaging visual texture. The light wood flooring and matching wooden legs on the furniture add warmth and a natural touch. A single bed with a white headboard and footboard is dressed in animal-themed bedding, complemented by plush bear and bunny pillows, perfect for a child’s room. The room is brightened by large windows dressed with cream curtains featuring subtle striped patterns. A soft woven rug in muted blue and beige tones anchors the space, enhancing comfort and style. Small shelves with books and decor add personality while maintaining a clean, organized atmosphere.
Bathroom Shower and Vanity

This bright bathroom features a clean, contemporary design highlighted by soft white and light gray tones. The vanity includes a white quartz countertop with an under-mount sink, complemented by a sleek, polished chrome faucet and simple cabinetry in a soft gray shade. Adjacent to the vanity is a classic white toilet. The standout feature is the walk-in shower enclosed with frameless clear glass panels, showcasing glossy marble-like subway tiles that extend from floor to ceiling, creating a soothing, spa-like atmosphere. The flooring is tiled in a light pattern that harmonizes with the shower walls, enhancing the room’s airy, fresh aesthetic.
Nursery Details

This serene nursery features soft neutral tones with cream and beige hues dominating the wallpaper, which subtly displays an animal motif enhancing a gentle, whimsical ambiance. A cozy gray upholstered swivel chair pairs with a small, textured elephant-shaped side table, adding a playful yet functional touch. The white crib stands prominently on a striped area rug that grounds the space in simplicity and warmth. Decorative elements like two sculpted elephant heads mounted on the wall and small floating shelves displaying toys and books create a thoughtful, inviting environment. Clean white trims and a window with a woven shade complete the fresh and comforting design.
Living Room and Mini Bar

This bright living space combines comfort and functionality with a soothing neutral palette. A sleek, light gray sofa adorned with lash and patterned cushions anchors the seating area, complemented by two wooden-framed chairs with cane backs, embracing natural textures. The area features a patterned black-and-white rug atop a larger, intricately designed light blue rug, adding visual warmth. Alongside, a minimalist wet bar with wood cabinetry and marble countertops includes a black faucet and a green plant, enhancing the room’s polished yet inviting look. Floor-to-ceiling glass doors flood the area with natural light and showcase an outdoor patio, creating a seamless flow between indoors and outdoors.
Home Office Space

This home office is designed with a minimalist, modern aesthetic highlighted by clean lines and a neutral palette. Two tall, narrow windows provide ample natural light and frame a calming outdoor view, enhancing the workspace ambiance. The standout piece is a sleek, industrial-style metal desk with an angular design that adds an artistic focal point. Complementing the desk, a grey upholstered chair offers comfort and subtle contrast. On the left, a black metal and wood shelving unit organizes books and decor, combining functionality with style. Light wood flooring and all-white walls complete this bright, airy environment ideal for productive work.
Bathroom Details

This bathroom pairs modern elegance with clean lines. The vanity features dark cabinetry that contrasts beautifully with a sleek white countertop and undermounted sink. Polished chrome fixtures add a touch of sophistication. A large, frameless mirror above the sink enhances the sense of space and reflects light. The toilet sits adjacent to a walk-in shower enclosed with clear glass, maintaining an open feel. White subway tiles line the shower walls, contributing to the crisp, fresh ambiance. Bold black and white geometric floor tiles introduce a striking pattern that anchors the minimalist decor.
Playroom and Wet Bar

This bright and spacious playroom features a neutral palette dominated by soft grays and whites, creating a soothing atmosphere for children. The room includes a cozy seating area with a patterned bean bag chair and a large geometric area rug that anchors the space. A whimsical wooden play tent with plush toys adds character. Along one wall, a practical wet bar with light gray cabinetry and subtle herringbone backsplash serves as a refreshment station, complemented by open shelves illuminated by under-cabinet lighting. Accents like polka dot wall decals bring an element of fun and playfulness to the clean, modern design. The room is well-lit by recessed ceiling lights and natural light from high windows, with stairs leading to the main floor for easy access.
Home Gym Area

This compact home gym is designed with functionality and simplicity in mind. It features modern exercise equipment, including a rowing machine and a multi-functional weight bench, both branded Inspire. The flooring is a speckled black rubber, ideal for exercise spaces, providing traction and cushioning. White walls and ceiling with recessed lighting create a bright, clean atmosphere. A large wall mirror visually expands the room and aids users with form checks during workouts. A flat-screen TV mounted on the wall offers entertainment or workout guidance. The space is neatly organized, emphasizing efficient use of the area with minimal clutter.
Bathroom Vanity Area

This compact bathroom space focuses on clean, modern simplicity with white walls creating a bright, airy atmosphere. The vanity cabinet, painted in a soft, muted gray, contrasts nicely with the sleek white countertop featuring subtle marble veining. The built-in sink is complemented by a polished chrome faucet that blends classic and contemporary styles. The floor showcases a geometric tile pattern in gray and white, adding visual interest and depth. To the left, a white toilet sits neatly beneath a framed playful artwork of three basketball players, lending a touch of personality and warmth to the space.
Cozy Bedroom Details

This intimate bedroom embraces a calming neutral palette dominated by whites and soft grays, promoting relaxation. The bed features a plush upholstered headboard and is dressed in crisp white bedding with a subtle grid pattern, complemented by light gray accent pillows. On one side, a carved wooden nightstand in distressed white adds intricate textural detail, topped with a minimalist lamp and a few small accessories. Opposite the artwork, two small rectangular windows with roller shades provide natural light while maintaining privacy. Clean lines, recessed lighting, and minimal décor contribute to the serene, uncluttered ambiance.
Bathroom Details

This bathroom features a clean, modern design with a neutral color palette dominated by whites and soft greys. The vanity has classic paneling details with a smooth white countertop and chrome fixtures, complementing the overall minimalist look. Adjacent is a white toilet with simple lines, enhancing the room’s spacious feel. The walk-in shower, enclosed in clear glass, showcases white subway tiles with subtle veining, continuing the bright and airy aesthetic. The floor sports a geometric tile pattern in muted tones, adding gentle texture without overpowering the calm, sleek atmosphere of the space.
Outdoor Patio Seating Area

This outdoor patio features a spacious and inviting layout centered around a large brick fireplace with a decorative herringbone pattern. Natural wood-framed seating with plush white cushions surrounds a sizable circular coffee table, creating a comfortable lounge setting. Nearby, a long wooden dining table with black mesh chairs accommodates group dining adjacent to a built-in stainless steel grill station. The high brick walls and privacy fencing painted in black add a modern urban feel while maintaining intimacy. The area is paved with gray tiles, balancing warmth from the fireplace and natural wood with contemporary finishes for relaxed outdoor entertaining.
Outdoor Patio Seating

This outdoor patio area features a modern, stylish setup perfect for both relaxation and dining. A sleek black pergola overhead offers partial shade and a contemporary architectural touch, complementing the black slatted privacy screens that surround the space. The flooring consists of large white tiles creating a clean, bright base. The seating area includes a cushioned sectional and two armchairs in rich brown tones paired with black frames, accented by neutral throw pillows. A dining table with woven dark chairs is neatly arranged, blending comfort and durability for outdoor meals. The setting balances warmth and sophistication, creating an inviting urban oasis.
Want to see more from Remodr?

Drop a comment below, share this with your friends and family, and don’t forget to follow us for more fresh ideas, updates, tips, and home trends.
Listing Agent: Marlene Rubenstein, ABR,ABRM,SRES of Baird & Warner via Zillow
