
Nestled in the hills of Encino, CA, this grand Mediterranean-style estate on Grimes Pl offers an unparalleled blend of elegance and space. Boasting 5 bedrooms, 6 bathrooms, and an expansive 6,270 sq. ft. interior, this luxurious residence sits on a sprawling 0.8-acre lot. Its stately façade, wrought-iron balconies, and arched entryway exude timeless sophistication, while the elevated setting provides breathtaking hillside views.
1. Majestic Mediterranean Villa with Timeless Appeal

This stunning Mediterranean villa stands as a testament to classic European elegance, featuring a grand symmetrical façade and ornate wrought-iron balconies. A dramatic stone staircase leads to an arched double-door entry, framed by intricate detailing. Soft stucco walls, expansive windows, and warm exterior lighting create an inviting ambiance. Set against a lush hillside, this estate embodies luxury with breathtaking elevation and serene surroundings.
2. Where is Encino?

Encino is a prestigious neighborhood in Los Angeles, nestled in the scenic San Fernando Valley. Known for its tree-lined streets, upscale homes, and rich history, it offers a blend of suburban comfort and city convenience. With top-rated schools, vibrant shopping districts, and sprawling parks like the famous Los Encinos State Historic Park, Encino attracts those seeking luxury and tranquility. Its prime location provides easy access to the city while maintaining a peaceful, private atmosphere.
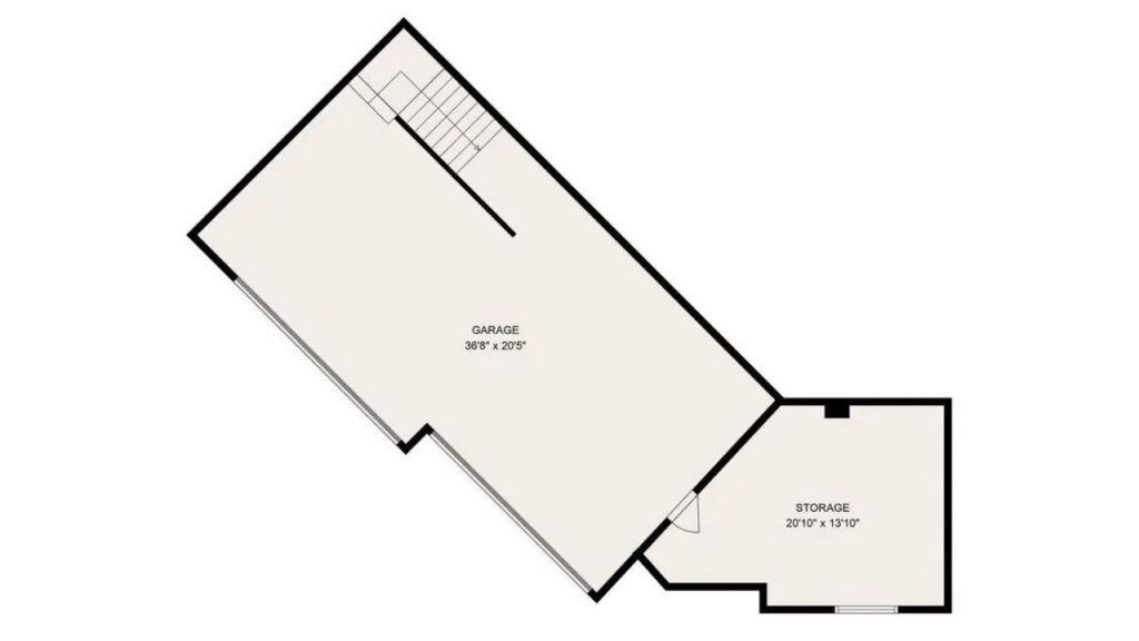
3. Spacious Garage with Ample Storage

This well-designed lower level offers a generous garage spanning over 36 feet in length, providing space for multiple vehicles and additional storage. A separate storage room, measuring nearly 21 by 14 feet, ensures ample room for organization, whether for seasonal items, tools, or recreational gear. The thoughtful layout maximizes functionality, creating a seamless extension of the home with convenience and efficiency in mind.
4. Grand and Functional Main Level

The main level of this estate is designed for both elegance and practicality, featuring a dramatic foyer with a sweeping dual staircase. A spacious piano room serves as the heart of the home, flanked by a formal dining area and an expansive family room. The gourmet eat-in kitchen, complete with a breakfast nook, flows seamlessly into a private office. A balcony extends the living space outdoors, while two bathrooms and a laundry room enhance convenience, making this level ideal for both entertaining and daily life.
5. Luxurious and Thoughtfully Designed Upper Level

The upper level offers an exceptional blend of comfort and sophistication, featuring a stunning open-to-below view from the grand staircase. The primary suite boasts a spa-like ensuite, two walk-in closets, and a private balcony. Three additional bedrooms, each with ample closet space and access to private or shared baths, provide versatility. A central sitting area enhances relaxation, while multiple balconies extend the living space, creating a seamless indoor-outdoor retreat.
6. Grand Staircase with Ornate Ironwork

This breathtaking foyer showcases a sweeping double staircase with intricate wrought-iron railings, offering a sense of grandeur and timeless elegance. The open-concept design allows natural light to highlight the graceful curves of the stairway, while arched windows and doorways enhance the classic aesthetic. Polished marble flooring and neutral tones provide a refined backdrop, creating a welcoming yet dramatic entrance that sets the tone for the home’s luxurious interior.
7. Expansive Living Space with Timeless Elegance

This soaring great room is a masterclass in luxury, blending architectural grandeur with inviting warmth. Sunlight pours through a dramatic floor-to-ceiling window, illuminating the polished marble flooring and intricate inlays. A graceful grand piano anchors the space, while an ornate fireplace and arched iron-accented doors add old-world charm. Thoughtfully placed seating fosters intimate gatherings, creating a sophisticated yet comfortable retreat at the heart of the home.
8. Sophisticated Dining with Scenic Views

This expansive dining area seamlessly blends refinement with comfort, offering an inviting space for memorable gatherings. A rich, dark wood dining table takes center stage, surrounded by elegant high-backed chairs. Natural light streams through large windows, framing lush outdoor views and enhancing the airy ambiance. Just beyond, an open-concept living space with a fireplace adds warmth and continuity, making this a perfect setting for both intimate dinners and grand celebrations.
9. Elegant Lounge with Timeless Appeal

This sophisticated lounge area offers a perfect blend of classic and contemporary design. Featuring a mix of plush, deep-toned sofas and elegant white armchairs with gilded accents, the space invites both relaxation and conversation. Expansive windows bathe the room in natural light, highlighting the marble flooring and subtle architectural details. A cozy fireplace, stylish bar area, and tasteful artwork add character, making this an ideal setting for refined social gatherings.
10. Elegant Gourmet Kitchen with Classic Touches

This beautifully designed kitchen combines functionality with timeless charm. Featuring custom white cabinetry with glass-paneled accents, warm granite countertops, and carved wooden details, the space exudes sophistication. A spacious island with a built-in sink and dishwasher enhances convenience, while stainless steel appliances, including a double-door refrigerator and gas cooktop, add modern efficiency. Subtle recessed lighting and a neutral palette create an inviting ambiance, making this kitchen perfect for culinary creativity.
11. Luxurious Loft with Elegant Design

This sophisticated loft space exudes European-inspired elegance, featuring a beautifully crafted wrought-iron railing with intricate scrollwork. The warm wood flooring complements the plush royal blue velvet seating with ornate silver detailing. Natural light pours in through arched windows, creating an inviting ambiance. The open-concept layout seamlessly connects to a cozy sitting area, making this an ideal retreat for relaxation or intimate gatherings.
12. Elegant Bathroom with a Scenic View

This luxurious bathroom features vintage-inspired wooden vanities with intricate carvings and bronze fixtures, adding a touch of old-world charm. A grand soaking tub sits near a curved granite ledge, perfect for relaxation. The large picture window floods the space with natural light and offers breathtaking views of lush greenery. Soft marble flooring and classic wall sconces create a tranquil, spa-like ambiance in this exquisite retreat.
13. Bright and Elegant Living Space

This sophisticated living area boasts floor-to-ceiling windows that flood the room with natural light and provide stunning hillside and tree-lined views. A classic white fireplace serves as a charming focal point, complemented by a neutral color palette and refined furnishings. Two elegant wingback chairs and a cozy ottoman create a comfortable seating area, while warm wooden flooring adds a touch of warmth to the serene and airy ambiance.
14. Serene and Elegant Bedroom

This beautifully designed bedroom features a calming neutral palette with soft green accents, creating a relaxing and inviting atmosphere. The plush upholstered bed is adorned with matching linens and decorative pillows, complemented by a cozy bench at the foot. Natural light pours in through French doors, while warm wood flooring adds richness to the space. A comfortable armchair, nightstands, and tasteful décor complete this serene retreat.
15. Luxurious and Bold Bedroom

This spacious bedroom blends elegance with a touch of drama, featuring a striking red accent wall that contrasts beautifully with the neutral tones. A plush upholstered bed with soft bedding and matching pillows sits atop a sophisticated area rug. Natural light floods in through large French doors, offering scenic outdoor views. A classic fireplace, comfortable seating, and tasteful décor create a refined and inviting atmosphere.
16. Spacious Walk-In Closet with Scenic Views

This well-organized walk-in closet offers ample storage with built-in white shelving, hanging rods, and open compartments, making it ideal for wardrobe organization. Natural light pours in through a large window, which provides a serene view of lush greenery and hillside homes. The light wood flooring complements the neutral tones, creating a bright and airy feel. A perfect blend of functionality and elegance.
17. Elegant Upstairs Lounge with Open Layout

This inviting upstairs lounge area features a spacious L-shaped sectional in a neutral tone, creating a cozy yet sophisticated retreat. The room boasts warm wood flooring, crown molding, and recessed lighting, enhancing its elegance. A stylish round coffee table adds to the aesthetic, while an ornate wrought-iron railing overlooks the lower level. An arched doorway leads to a well-lit hallway, adding depth and flow to the space.
18. Home Gym with Essential Equipment

This bright and airy home gym offers a functional workout space with a treadmill, stationary bike, weight bench, and free weights. The room features warm wood flooring, recessed lighting, and a large window with vertical blinds, allowing for ample natural light. A full-length mirror leans against the wall, enhancing the sense of space. The neutral walls and crown molding add a clean, refined look, making this an inviting area for fitness routines.
19. Elegant Backyard with Pool

This luxurious backyard features a sleek rectangular pool surrounded by a spacious stone-tiled patio. Lounge chairs line the poolside, offering a perfect spot for relaxation. The home’s grand exterior showcases arched windows, decorative trim, and a neutral stucco finish. Lush greenery and planters add a touch of nature, complementing the serene atmosphere. The high privacy walls and open sky view create an exclusive and tranquil outdoor retreat.
Listing Agent – Roger Perry @ Rodeo Realty via realtor.com.
