Offering 1,076 square feet of living space on a 0.26-acre lot, this 3-bedroom, 1-bathroom home embraces simplicity and modern comfort. A bright and inviting interior blends functionality with style, creating a warm atmosphere. The well-maintained outdoor space and expansive yard provide ample room for relaxation and enjoyment. With a price of $435,000, this home is perfect for those seeking a practical yet charming living space with plenty of opportunities to enjoy the outdoors.
Simple and Peaceful Exterior Design

Nestled in a tranquil setting, this charming home boasts a meticulously maintained exterior with a warm, earthy palette that harmonizes with its natural surroundings. A generous driveway leads to a two-car garage, ensuring ample parking and storage. Mature trees and carefully trimmed bushes enhance the inviting curb appeal, while a covered front porch offers a cozy spot to unwind. The gently sloping lawn amplifies the open feel, creating a serene retreat in a peaceful neighborhood.
Location

18530 SE Mill St, Portland, OR 97233 is located in Portland, Oregon, a vibrant and diverse city known for its scenic beauty, thriving arts scene, and eco-friendly lifestyle. Situated in Multnomah County, this area offers a blend of suburban tranquility and urban convenience. With nearby parks, shopping centers, and easy access to downtown Portland, residents enjoy a well-connected lifestyle. The city’s extensive public transit system, bike-friendly streets, and excellent schools make it an attractive location for families and professionals seeking a balanced way of living.
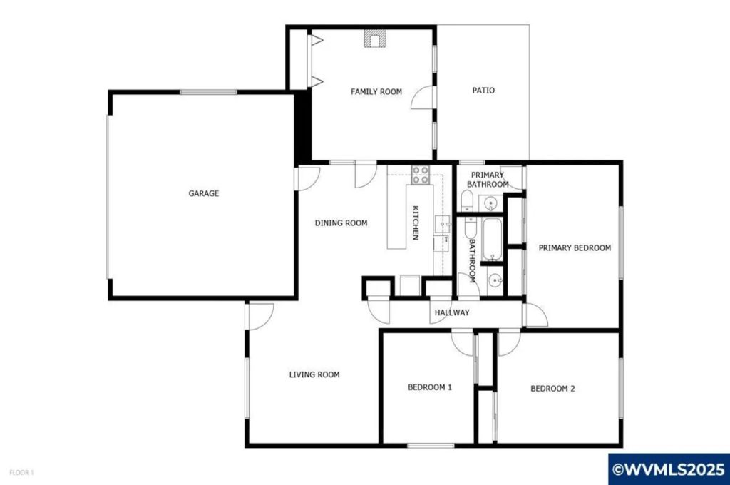
Cozy 3-Bedroom Ranch Layout

Featuring 3 bedrooms and 1 bathroom, this thoughtfully designed home showcases a simple yet functional layout that maximizes comfort. An open-plan kitchen and dining area enhance space and flow, while the living room and bedrooms are arranged for relaxation. A garage and patio add convenience, offering extra storage and outdoor living options. With every detail focused on practicality, this floor plan is ideal for everyday living and can easily adapt to suit individual needs.
Charming and Cozy Front Entrance

Exuding warmth and character, this inviting front entrance combines rich wood siding with elegant brick accents. A deep green door acts as a captivating focal point, highlighted by a rustic porch light and classic house numbers. An outdoor seating area, complete with a cozy swing, offers the perfect spot to unwind. Thoughtful landscaping with decorative stones and pavers further enhances curb appeal. This blend of style and functionality sets an ideal tone for a welcoming home.
Peaceful and Functional Outdoor Space

Step into a private outdoor haven where every detail invites relaxation and joyful living. This spacious backyard merges leisure with practicality: a meticulously maintained lawn offers ample space for play, while a cozy deck area beckons for alfresco dining and intimate gatherings. Enclosed by lush greenery and mature trees, the setting promises both privacy and serenity. Generous windows let in natural light, enhancing the warm, inviting appeal of this peaceful retreat.
Cozy Family Room

Bright and inviting, this cozy family room offers endless possibilities for comfort and style. Neutral-toned walls and warm brick flooring create a welcoming ambiance, while two large windows fill the space with natural light, enhancing its airy feel. A stylish gray door adds character, complementing the room’s classic design. Sheer curtains bring a soft, elegant touch while maintaining privacy. With a versatile layout, this space is perfect for relaxing, entertaining, or adapting to suit any lifestyle needs.
Charming Kitchen with Vintage Accents

Full of character and functionality, this kitchen blends vintage charm with modern convenience. Glass-paneled cabinets add personality, while spacious countertops provide ample prep space. A large island enhances both cooking efficiency and casual dining. Modern appliances, including a built-in microwave, ensure practicality, while warm wood tones create a cozy and inviting ambiance. With its distinctive design and versatile layout, this kitchen is perfect for both everyday meals and entertaining.
Spacious and Versatile Living Area

Spacious and inviting, this living area features soft neutral tones and rich hardwood flooring for a warm ambiance. Recessed lighting enhances the bright, open feel, while a stylish pendant light adds charm. The open layout offers flexibility for various furniture arrangements, making it ideal for a cozy lounge, home theater, or entertaining space. Large windows bring in natural light, creating an airy and welcoming atmosphere perfect for everyday living and relaxation.
Open and Functional Living Room

Designed for seamless flow, this spacious living area connects the entryway to the heart of the home. Warm hardwood flooring and neutral walls create an inviting, versatile space, while recessed lighting enhances brightness. French doors add elegance, offering access to the dining or outdoor area. The open-concept layout allows for flexible furniture arrangements, making it perfect for both relaxation and entertaining. With a blend of functionality and classic charm, this living space provides comfort and adaptability for everyday living.
Bedroom with Sliding Closet System

A warm and inviting retreat, this bedroom harmonizes style with everyday practicality. A sleek sliding closet system featuring modern dark gray doors maximizes storage, while plush carpeting adds cozy comfort. Neutral walls provide a versatile backdrop for personalized décor, and a small window bathes the room in natural light, enhancing its airy feel. Thoughtfully arranged for ample organization, every detail creates a tranquil sanctuary that adapts effortlessly to your lifestyle.
Cozy and Functional Bedroom Design

Fresh and vibrant, this cozy bedroom offers an inspiring retreat with soft turquoise walls that inject energy into the space. Plush carpeting delivers a warm, comfortable foundation, inviting relaxation. A built-in closet with sleek sliding doors provides ample storage while maintaining a tidy look. An open layout supports versatile furniture arrangements, and abundant natural light enhances the airy feel. Blending style and functionality, this room is perfect for rest and everyday living.
Relaxing and Simple Primary Bedroom

Relaxing and expansive, this primary bedroom welcomes you with soothing soft green walls paired with neutral-toned carpeting, creating a serene retreat. A generous window fills the space with natural light while framing a peaceful outdoor view. The built-in closet with sleek sliding doors offers ample storage to keep the room organized. With a simple yet versatile layout for varied furniture arrangements, this bedroom is an ideal sanctuary for rest and relaxation.
Simple and Functional Bathroom Design

Marrying practicality and classic charm, this bathroom radiates enduring elegance with warm wood accents and durable finishes. A tiled vanity in deep blue adds a splash of character, while a large mirrored cabinet offers ample storage. A built-in wooden wall cabinet maximizes space and keeps essentials neatly organized. A walk-in shower with a sliding glass door delivers modern functionality, and neutral walls create a bright, airy feel. Perfectly designed for everyday use, this space fuses simplicity with timeless style.
Bathroom: Practical and Elegant

Blending timeless charm with everyday practicality, this bathroom features a spacious vanity with a sleek countertop and wood cabinetry for ample storage. A large mirrored cabinet expands the sense of space, while classic brass fixtures and soft lighting create a warm, welcoming ambiance. The built-in wooden wall cabinet keeps essentials neatly organized, and a generous window with patterned curtains lets natural light in, making the room feel bright, airy, and inviting.
Listed by – Margarita Moran Castillo @ JOHN L. SCOTT REAL ESTATE – SALEM via Realtor
