
This historic residence in Grosse Pointe Park, Michigan, represents a rare and elegant example of classic brick architecture, renowned as the oldest brick home in the Grosse Pointe area. With nearly 200 years of history, the home is recognized as a Michigan Landmark and holds a Michigan State Historic Designation, though it does not carry a National Historic Designation, allowing for flexible remodeling. The home is beautifully situated on just under an acre, providing ample shaded and lush green lawn space surrounded by mature trees and manicured hedges. Built approximately in the early 19th century, this two-story brick home features a stately facade with green shutters and a traditional symmetrical window layout. The listing price is $750,000, making this a unique opportunity to own a piece of Michigan’s rich history on a large, beautiful plot in a coveted area.
Floor Plan Layout

This floor plan showcases the first floor of a spacious home, thoughtfully arranged for daily living and entertaining. The large living room, measuring nearly 30 by 23 feet, sits at the front of the house with an entryway leading inside. A cozy fireplace anchors the space, adjacent to a sunroom with multiple windows that flood the area with natural light. To the left, the breakfast nook and dining room share a wide open space ideal for family meals and gatherings. Additional features include stairs leading upward, a bathroom, and a sizeable closet near the central core of the layout. Overall, the design emphasizes open flow and functionality.
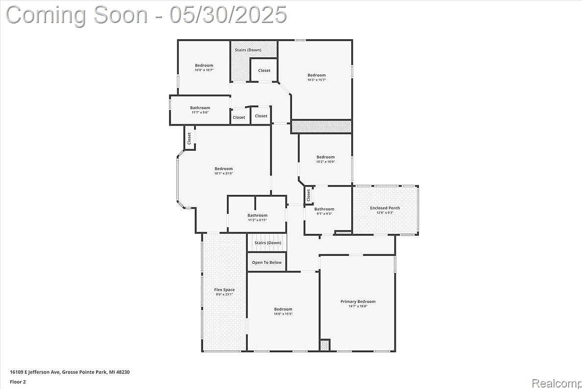
Second Floor Layout

This spacious second-floor plan showcases a well-organized layout with a total of six bedrooms, including a large primary bedroom measuring 14’7″ by 18’8″. The bedrooms vary in size, with some featuring closets for added storage. There are three bathrooms scattered conveniently across the floor, providing accessibility for multiple rooms. A flex space measuring 8’6″ by 23’1″ offers versatile usage, and there is an enclosed porch accessible near one of the bedrooms, adding extra cozy space. Stairs down are centrally located, connecting to other floors efficiently. The open-to-below area adds an airy feel to the design.
Living Room with Fireplace Area

This living room exudes a warm, classic charm with its neutral walls and white wood trim. A large, intricate Persian rug anchors the space, adding rich reds and blues against the light hardwood floor. The focal point is a traditional white fireplace with a roaring fire, flanked by vintage decorative accents including an old ship model and an ornate blue-green lamp on a dark wood side table. Above the mantel, an antique portrait painting enhances the historic vibe. A beige upholstered sofa faces the fireplace, complemented by a cushioned footstool nearby and a stately grandfather clock standing near the window, highlighting timeless elegance and coziness.
Living Room Details

This elegant living room features a soft, neutral color palette emphasizing cream and pastel hues that create a warm and inviting atmosphere. A vintage-inspired cream sofa with wooden accents anchors the seating area, complemented by two classic yellow armchairs and a patterned pink armchair, all arranged around an ornate glass-top coffee table resting on a large, traditional area rug with floral motifs. Built-in white shelving units span the back wall, displaying an extensive collection of decorative items and glassware, adding character and visual interest. To the right, a richly detailed wooden grand piano highlights the room’s refined, timeless charm, while large windows allow natural light to fill the space. Ornate wooden furniture pieces and thoughtful placement provide a blend of comfort and sophistication in this well-curated living area.
Living Room with Grand Piano

This expansive living room features an elegant yet inviting atmosphere highlighted by classic architectural elements like fluted columns and wide crown molding. Warm hardwood floors extend throughout, anchoring a series of vintage-inspired upholstered chairs and a sofa arranged around a large area rug with subtle patterns. A grand black piano takes center stage near two large windows dressed simply with white trim, allowing abundant natural light to brighten the space. A traditional fireplace with a white mantel is flanked by tasteful antique furniture and adorned with framed portraits, enhancing the room’s refined, timeless charm. An open stairway leads to an upper level, seamlessly connecting spaces.
Formal Dining Room

This formal dining room features a spacious layout with classic design elements. The walls are painted a warm yellow, complemented by white crown molding and wainscoting that add architectural interest. A large rectangular wooden dining table, surrounded by intricately carved chairs with upholstered seats, dominates the space. The table sits atop a sizable area rug with muted blue and orange patterns that soften the wooden floors. A crystal chandelier hangs centrally above the table, casting elegant light. French doors open to an adjoining sunroom filled with natural light, creating an inviting flow through the home.
Dining Room and Sunroom

This cozy dining area flows seamlessly into a bright sunroom. The space boasts warm hardwood flooring paired with soft yellow walls and classic white trim. The dining set consists of a round table with a woven texture base, surrounded by simple wooden chairs, placed on a neutral patterned rug. A vintage-style chandelier hangs above, adding an elegant touch. The sunroom is filled with natural light from the large, multi-pane windows overlooking a lush garden. White wicker rocking chairs with cushions and a matching side table create a charming spot for relaxation. French doors lead to an adjoining area, enhancing the open feel.
Sunroom Seating Area

This sunroom features expansive floor-to-ceiling windows with classic white frames, inviting abundant natural light and offering clear views of a lush green yard enclosed by a white picket fence. The black and white checkered tile floor adds a striking vintage charm, complementing the white walls and ceiling. Furnished with a vintage wicker chair with cushions, a glass-top metal bistro table with matching chairs, and accented by a brass lamp on a wooden side table, the space combines comfort and style for casual relaxation. The white ceiling fan enhances air circulation while maintaining the airy atmosphere.
Spacious Kitchen with Island

This kitchen features a generous layout centered around a functional island with storage cabinets, perfect for meal prep. The space is framed by white cabinetry topped with natural wood countertops that add warmth against the beige walls. Dark blue decorative trim accents the room, drawing attention to the window frames and upper wall shelving where an assortment of ceramics is displayed, lending a charming, personalized touch. The dark refrigerator contrasts with the otherwise light palette while complementing the hardwood floor, which provides continuity and a cozy feel. Ample natural light from the windows brightens the entire room.
Kitchen Island and Storage

This kitchen features a spacious wooden island with a butcher block countertop, central to the room and surrounded by ample white cabinetry. The cabinetry is accented with silver hardware, offering abundant storage. Warm wood floors complement the neutral tones, blending seamlessly with dark blue patterned wallpaper that adds a vintage touch. The window and door frames, highlighted by dark blue trim, allow natural light to brighten the space, enhancing warmth and openness. Decorative ceramics atop a shelf add personality, while a ceiling fan and radiator underscore the room’s classic charm and practical functionality.
Cozy Reading Nook

This inviting corner of the home features warm beige walls accented by dark trim that enhances its classic feel. Rich hardwood floors complement the space, adding a sense of warmth. Two plush, dark leather armchairs create an intimate seating area beside a small wooden table holding reading materials and a pair of cordless phones. A vintage floor lamp and table lamp provide soft lighting, while a stained glass detail on the window adds subtle color and charm. A rich red oriental rug anchors the seating area, weaving comfort and sophistication together beautifully.
Screened Porch

This screened porch offers a tranquil transition between the indoor and outdoor spaces. Enclosed by large, white-framed screens, the area provides unobstructed views of the lush green garden and surrounding trees, inviting natural light and fresh air. The wooden floor is stained a rustic dark brown, contrasting subtly with the bright white ceiling and trim, adding warmth and charm to the space. The decorative black metal screen door features circular designs that lend a vintage touch. This versatile porch is an ideal spot for enjoying nature in comfort, shielded from insects and weather elements.
Living Room Details

This spacious living room features a warm, traditional design with wood flooring and patterned wallpaper in beige tones accented by a darker, geometric wainscoting. Natural light streams through two large windows with white trim and blinds, enhancing the cozy atmosphere. A mix of vintage and functional furniture fills the space, including a leather sofa with a colorful quilt, wooden chairs with cushions, and a classic wooden desk with a table lamp. A small TV sits on a carved wooden table near a simple white paneled cabinet, while artwork and personal items add a lived-in charm to the room.
Bedroom with Bay Window

This cozy bedroom features a soft yellow color scheme that adds warmth and light to the space. A brass headboard anchors the bed, which is dressed in a patterned quilt with neutral tones and lace-trimmed bedskirts. The carpeted floor enhances the room’s comfort. A distinctive bay window offers a picturesque view of lush greenery outside, creating a bright nook furnished with a round coffee table and a patterned ottoman. Traditional wooden furniture pieces, including a dresser and nightstands, complement the room’s vintage charm, blending classic and homey elements harmoniously.
Bedroom Details

This cozy bedroom blends vintage charm with warm, inviting colors. The walls feature a two-tone design, with the top half in a neutral, light striped pattern and the lower half adorned with dark floral wallpaper bordered by contrasting trim. The warm hardwood floors complement the wooden furniture, including a tall dresser with intricate drawer handles and a bedside table with traditional detailing. A plush bed with a white duvet anchors the space, while a wooden chest at the foot of the bed is draped with a striking red and black textile. Two framed landscape paintings add a nostalgic touch, creating a space that feels both comfortable and timeless.
Bathroom Details

This cozy bathroom features a charming combination of light blue walls paired with vintage yellow square tiles halfway up, lending a retro yet warm atmosphere. The layout includes a white porcelain pedestal sink with chrome faucets, positioned beneath a large mirror with a built-in shelf holding personal care items. The toilet is adjacent, situated against the tiled wall, and separated visually by a partial half-wall next to the shower area, which is defined by a blue and beige plaid curtain. A soft rug with a floral pattern adds a gentle touch to the tiled floor, while the door and trim painted in white maintain a classic feel.
Bathroom Sink Area

This compact bathroom corner features a classic white pedestal sink set against soft yellow ceramic tiles that cover the lower half of the walls. Above the sink, a rectangular mirror with a shelf reflects a modest vanity light fixture with two lamps. The walls above the tiles are painted a pale blue, enhancing the room’s light and airy atmosphere. A pink towel hanging from a chrome ring adds a gentle pop of color. Nearby, a small white waste bin sits on a mosaic tile floor. The doorway reveals an adjoining space with vintage wallpaper and wood flooring, connecting to a brighter blue-tinted room beyond.
Bedroom Cozy Nook

This charming bedroom showcases a quaint, cozy layout under a sloped ceiling which adds character and a snug atmosphere. Soft pink walls complement the warm, honey-toned hardwood floors, creating a gentle, inviting ambiance. A black metal bed frame with floral-patterned bedding and matching pillows adds a touch of vintage elegance. Two windows allow natural light to gently brighten the space, enhancing the airy feel despite the low ceiling. Functional elements include a plush red bench at the foot of the bed, and practical storage bins and luggage arranged neatly to one side, maintaining order in this intimate retreat.
Cozy Bedroom

This intimate bedroom space fits snugly under a sloping ceiling, creating a charming nook with soft sage green walls. Natural light streams through a white-trimmed window, brightening the room and highlighting the warm, wide wooden plank flooring. A classic wooden sleigh bed with a light green bedspread anchors the corner, complemented by an assortment of pillows in neutral and dark patterns. Vintage wooden furniture, including a small writing desk and bedside table, provides both function and timeless style. A standing lamp and framed artwork add to the room’s cozy, inviting atmosphere, accented by a traditional cast iron radiator.
Enclosed Porch Seating

This inviting enclosed porch features a warm, rustic aesthetic anchored by a rich red brick wall contrasted with clean white wood paneling beneath expansive windows. The ceiling displays exposed wooden beams with a glossy finish, adding texture and depth to the space. Natural light floods in through the multiple multi-pane windows, offering views of the lush greenery outside. Traditional rocking chairs and a small wooden chest add a cozy, homey feel, while framed artwork and decorative accents on the vintage sideboard provide a nostalgic touch. The neutral carpet unifies the room’s earthy tones and maintains a quiet, relaxed ambiance ideal for restful afternoons or casual conversations.
Listing Agent: Christina Gennari of KW Domain via Zillow
