
This breathtaking Queen Anne Victorian home, known as the Abernathy House, is a distinguished architectural gem located in Leavenworth, Kansas. Built in 1885, this historically significant residence features classic Victorian architectural elements such as a distinctive turret, ornate trim, and a spacious wraparound front porch. Perched high above the Missouri River, it boasts unmatched scenic river views that enhance its timeless charm. The home encompasses over 3,200 square feet, including four generously sized bedrooms and 2.5 bathrooms, showcasing original hardwood floors, intricate millwork, and a beautifully preserved—but non-functional—fireplace. Listed on the Historical Register and priced at $514,900, this exceptional home is perfect as a primary residence or as a unique Bed & Breakfast or Airbnb opportunity.
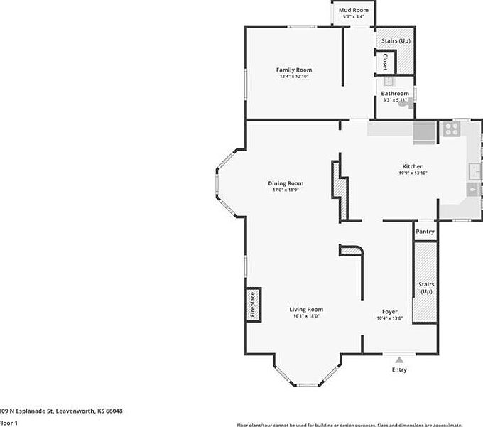
First Floor Layout

This floor plan highlights a well-balanced arrangement of common living spaces centered around openness and functionality. The main entry leads into a foyer that connects directly to the living room and provides access to a pantry and stairs. The living room features a fireplace and a bay window, adding architectural charm and natural light. Adjacent is the dining room with a protruding wall of windows for added brightness. The kitchen is spacious, with access to a pantry and a secondary stairway. A family room and mudroom complement the layout, along with a conveniently placed half bathroom for guests.
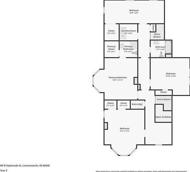
Second Floor Layout

This detailed floor plan represents the entire second floor of the home, showcasing a well-organized layout. It includes four bedrooms of varying sizes, with the primary bedroom prominently positioned and featuring an adjoining primary bathroom and two closets for ample storage. A laundry room is centrally located for convenience. Multiple closets are spread throughout the floor, providing additional storage options. There are stairs connecting this level to other floors, with one staircase located near the primary bedroom and another closer to two additional bedrooms, emphasizing functional flow and accessibility throughout the space.
Front Porch Seating

This welcoming front porch features a gentle curve supported by classic white columns accented with subtle red and dark gray trim near the tops and bases. The floor is a muted gray wood that contrasts softly with the white railing and furniture. Two white wooden rocking chairs with patterned cushions and a bench provide comfortable seating, inviting relaxation while overlooking the lush green lawn and tree-lined street. Hanging planters add a touch of greenery above the railing. The large bay window with white trim enhances the architectural charm, making this an ideal spot to enjoy peaceful outdoor living.
Entryway and Staircase

The entryway features a cozy, vintage charm with hardwood floors leading toward a classic staircase. The staircase has white risers and intricately carved balusters with natural wood handrails and steps, combining warmth and elegance. Walls are painted a muted olive green above white wainscoting with decorative embossing, adding texture and contrast. Two richly patterned area rugs soften the floor and add a traditional, inviting feel. A delicate lace curtain filters light through double white French doors, and a black floral-painted wooden bench offers a charming spot to sit. Overhead, a vintage-inspired, amber-hued hanging light adds warmth and character to the space.
Living Room and Dining Area

This spacious living room blends classic and traditional design with warm, inviting tones. A richly carved dark wood fireplace mantel anchors the room, paired with deep red lower wall paint contrasted by crisp white upper walls adorned with subtle stenciled trim. Plush, patterned sofas with generously sized cushions create a comfortable seating area centered around an ornately detailed coffee table resting on an elegant beige and floral area rug. Beyond the living space, the dining area features a classic dark wood dining table with matching chairs, set against bay windows framed by red walls, allowing abundant natural light to brighten the space. The arrangement encourages an open flow perfect for entertaining while maintaining a cozy and refined atmosphere.
Kitchen Dining Area

This spacious kitchen dining area features a traditional design with a modern twist. The focal point is a large dining table surrounded by upholstered chairs in neutral tones, creating a comfortable eating space. The kitchen boasts white cabinetry with glass-front upper cabinets for displaying dishware, and warm wooden countertops adding a natural texture. Soft blue walls with white trim enhance the vintage charm, while tall windows with intricate molding bring ample natural light. Decorative columns divide the kitchen and dining spaces, and patterned rugs soften the hardwood floors, adding warmth and elegance to the room.
Kitchen Sink and Counter

This kitchen area features a classic U-shaped countertop in a muted green tone paired with white cabinetry below, accented by dark hardware for contrast. Above the counter are three large, beautifully arched windows with decorative leaded glass panes, allowing natural light to brighten the space while adding a vintage charm. The sink area includes a black faucet with a simple, clean design, complemented by a double basin white sink. The kitchen blends traditional architectural elements such as fluted columns and crown molding. Wood floors add warmth, and the presence of small kitchen essentials and colorful decorative pieces enhance a lived-in, welcoming atmosphere.
Dining Room Details

This formal dining room features a rich blend of classic elegance and traditional design. The walls are divided by a chair rail, with the lower portion painted deep red adorned with fleur-de-lis patterns, while the upper walls remain a soft white with a subtle floral border near the ceiling. The room boasts a large bay window with sheer lace curtains that permit ample natural light. Dark wood furniture, including a polished rectangular table with matching carved chairs and an ornate china cabinet, anchors the space. A plush, patterned rug defines the dining area atop warm hardwood floors, enhancing the cozy, timeless ambiance.
Bedroom Bay Window Area

This bedroom features a cozy, inviting layout highlighted by a distinct bay window nook with three tall windows framed by white trim. The deep blue accent wall within the nook contrasts beautifully with the light gray walls that envelop the rest of the room. Sheer white curtains soften the natural light filtering through, enhancing the tranquil atmosphere. A sleek white ceiling fan provides modern functionality overhead. The floor showcases warm wood planks, complemented by two understated area rugs that add texture and comfort. The room’s white armchair in the corner adds a touch of relaxation and simplicity to the airy, clean design.
Cozy Living Room Nook

This compact living room corner presents a balanced design featuring a two-tone wall treatment with dark gray upper walls meeting white wainscoting below, creating a modern yet inviting contrast. The room is softly lit by two table lamps positioned on either side of a light beige sectional sofa, which adds comfort and ample seating. Soft gray curtains frame the two windows on adjacent walls, allowing natural light to filter in while maintaining privacy. Above, a ceiling fan with integrated light adds functionality. On the opposite side, a small media console organizes books and electronics, contributing to a tidy, relaxed atmosphere.
Home Office and Exercise Corner

This cozy room serves as a multifunctional home office combined with an exercise area. The vintage wooden desk with rich detailing anchors the workspace, complemented by a plush brown office chair. A computer setup sits neatly atop the desk, alongside organized writing supplies and stacked books. Light beige wallpaper with subtle vertical patterns and green floral border trim adds a traditional touch, blending well with the warm hardwood flooring. A treadmill is situated to the right, resting on a patterned area rug that incorporates soft greens and reds. Natural light filters through a window and a door, enhancing the inviting atmosphere.
Bedroom Overview

This cozy bedroom features deep teal walls accented with a delicate, patterned border near the ceiling, lending a vintage charm. Natural light filters through white curtains covering a pair of French doors, adding softness to the space. The wooden floor complements the solid wood furniture, including a substantial bed frame with under-bed storage drawers, a matching dresser, and two bedside tables. Warm orange bedding paired with a muted green quilt adds subtle contrast and warmth. A white ceiling fan with brass details hangs centrally, completing the room’s inviting and traditional aesthetic.
Bathroom Vanity and Shower

This compact bathroom area features a light and airy aesthetic with a soft, muted color palette. The vanity is painted in a gentle grey tone topped with a clean white sink and complemented by brushed nickel faucet fixtures. Above, a vintage-style white medicine cabinet with a mirror adds charm and function. The walls are adorned with subtle floral wallpaper in neutral shades, adding a touch of elegance without overwhelming the space. On the right side, a simple white textured shower curtain hangs from a polished metal rod, enclosing the shower area discreetly. Light tiles with subtle dark diamond accents complete the floor, contributing to the bathroom’s classic yet fresh feel.
Walk-In Closet and Dressing Area

This long and narrow space functions as a walk-in closet and dressing area, characterized by a light gray and white color palette. The walls are painted a soft, muted gray, complemented by a white ceiling with simple tile patterns and a classic ceiling fan providing illumination and air circulation. On one side, a row of clothing hangs neatly on a metal rod, with shoes lined up beneath on the gray carpeting. Opposite, white dressers provide ample storage space. Natural light filters through small curtained windows, enhancing the bright and cozy ambiance. The room includes personal touches such as bags, books, and folded linens, giving it a practical yet lived-in feel.
Back Porch and Deck

This inviting back porch overlooks a spacious wooden deck painted in a deep reddish-brown tone that contrasts nicely with the white railings of the porch. The deck area features black wrought-iron outdoor furniture with cushioned seating in striped patterns, creating a cozy space for relaxation or entertaining. Beyond the deck, a charming detached garage with a gray door and shingles is visible, framed by vibrant green lawn and small garden beds edged with stone. The area is enclosed by a white privacy fence, complemented by lush trees and clear blue skies, giving a serene and welcoming backyard ambiance.
Backyard Deck Seating Area

This backyard deck offers a cozy outdoor retreat featuring warm reddish-brown wooden flooring and matching railings that frame the space. The seating includes wrought iron furniture with ornate backs and cushioned seats in muted tones of gray and soft stripes, creating a welcoming atmosphere. A small, round, glass-topped table holds an assortment of potted plants, adding a touch of greenery alongside other planters arranged neatly on the deck. The area is accented with a fire pit as a focal point, perfect for gatherings. Beyond the deck, a detached structure with gray siding and a steep shingled roof sits in a fenced yard filled with mature trees and green grass, contributing to a serene suburban setting.
Backyard and Deck Area view

This backyard features a spacious, well-maintained lawn bordered by mature trees and shrubs, creating a private, serene outdoor space. The house’s exterior is clad in light gray siding with white trim, complemented by a charming turret with bay windows that add architectural interest. A bright red wooden deck extends from the back of the house, accessible via stairs, offering ample space for outdoor seating or dining. The deck railing and steps contrast nicely with the lush greenery and the home’s neutral tones, blending traditional design with a welcoming, functional outdoor living area.
Listing Agent: Sophia Patton of BG & Associates LLC via Zillow
