
Pitkin Place is a distinguished Queen Anne-style Victorian masterpiece, recognized on the National Register of Historic Places and located in Pueblo, Colorado. This historic home was designed by noted architects George Roe and E.W. Shutt around the turn of the 20th century. Set on a desirable corner lot, the property features a striking brick facade with classic Queen Anne architectural elements including a prominent turret, intricate woodwork, and original period details such as pocket doors and a built-in china cabinet in the formal dining room. The 7-bedroom, 4-bath residence unfolds over four expansive levels, offering grand, light-filled living spaces that blend vintage charm with thoughtful modern updates. Listed at $747,500, Pitkin Place offers not only timeless elegance and historic significance but also all the space and functionality required for modern living.
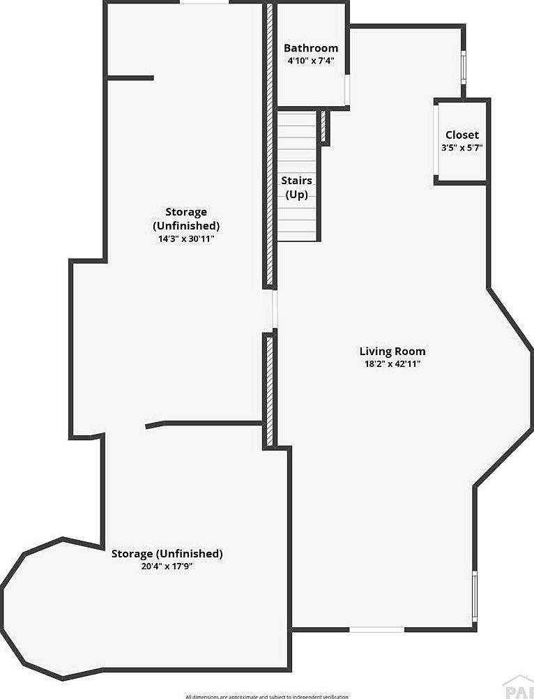
Basement Floor Plan

This basement layout includes an expansive living room area measuring 18’2″ by 42’11”, offering ample space for multiple seating arrangements or entertainment setups. Adjacent to the living room is a modest closet measuring 3’5″ by 5’7″, providing convenient storage. The design features two unfinished storage rooms—one is 14’3″ by 30’11” and the other 20’4″ by 17’9″—ideal for future customization or utility use. A small bathroom (4’10” by 7’4″) sits near the stairway, which ascends to upper levels. The floor plan demonstrates a functional and flexible area ready for various basement activities or improvements.
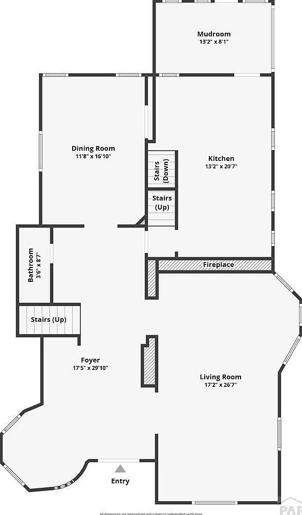
First Floor Layout

This first-floor plan highlights a spacious layout with clearly defined living spaces. The entry foyer, featuring a distinctive curved outer wall with angled windows, welcomes guests and flows into a vast living room adorned with a bay window design, allowing ample natural light. Adjacent to the living room, the kitchen extends generously, positioned beside a cozy fireplace and connected to a practical mudroom. The dining room sits separately yet conveniently close to the kitchen, creating a balanced flow ideal for entertaining. Two stairways are centrally located, providing access to upper and lower levels, while a compact bathroom is cleverly placed near the foyer.
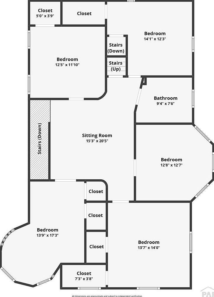
Upstairs Floor Plan

This layout highlights the upstairs of a residence featuring five bedrooms in various spacious dimensions, from a cozy 12’5″ x 11’10” room to a large 13’9″ x 17’3″ bedroom with a distinctive curved window area. Central to this floor is a generous sitting room measuring 15’3″ by 20’5″, creating a welcoming communal space. Strategic placement of closets throughout offers ample storage, while a single bathroom is easily accessible. Staircases connect this level to the floors above and below. The design balances private and shared spaces, optimized for family living and comfort.
Upper Floor Layout

This floor plan features a thoughtfully arranged upper level encompassing two spacious bedrooms, each measuring approximately 15 feet by 13 and a half feet, with ample closet space adjacent to them. Between the bedrooms lies a sitting room that spans 14 feet by 7 feet, ideal for relaxation or informal gatherings, with nearby stairs leading downstairs. A bathroom with dimensions of 8’6″ by 8’3″ is conveniently located near one bedroom and the sitting area. Ample storage options include a large rectangular storage room about 26’8″ by 20’2″ and a unique rounded storage space measuring 10’4″ by 10’2″. This layout blends functionality with clear zoning between private and shared spaces.
Entry Hallway

This inviting entry hallway features warm, honey-toned wood flooring that extends seamlessly into the intricately carved wooden staircase and paneling. The space showcases classic Victorian design elements with ornate woodwork, including decorative columns and detailed balusters. Patterned wallpaper in muted, soft colors enhances the traditional ambiance without overwhelming the senses. A vintage wooden dresser with a mirrored hutch adds both charm and functionality, displaying framed photographs and glassware. Overhead, an elegant chandelier with frosted glass shades illuminates the space warmly, while fresh greenery introduces a touch of nature to the overall stately yet welcoming aesthetic.
Parlor and Game Room

This spacious parlor seamlessly blends relaxation and entertainment, featuring large, tall windows framed in rich honey-toned wood with elegant gold and cream drapery. Deep teal walls offer a dramatic backdrop for vintage-inspired furniture including a plush velvet settee, intricate armchairs with carved wood frames and a patterned coffee table. A classic chandelier hangs centrally, casting warm light onto a polished hardwood floor adorned with an ornate area rug. The far side houses a billiard table, complementing the sophisticated ambiance with a hint of leisure. Overall, it embodies timeless charm and Victorian elegance with modern comfort.
Game Room and Sitting Area

This elegant game room centers around a classic pool table with a beige felt top, offering a blend of leisure and sophistication. Rich wood tones frame the room, from the polished hardwood floor to the intricate trim and window casings, enhancing the warm atmosphere. Deep blue wallpaper with patterned detailing adds depth and luxury, balanced by golden accents in the woodwork and light fixtures. Large windows with ornate drapery invite natural light, illuminating a vintage wooden piano, ornate fireplace, and tasteful seating areas furnished with upholstered chairs and stylish lamps, creating a refined yet inviting ambiance.
Dining Room Elegance

This dining room is a classic celebration of vintage charm, centered around a long rectangular table draped in a delicate lace tablecloth. Surrounding it are intricately carved wooden chairs, their dark finish contrasting with the warm honey tones of the polished hardwood floor. The walls are adorned with rich red floral wallpaper, offering a vibrant backdrop that adds warmth and depth to the space. Natural light filters through three tall windows, each dressed with red valances and white Roman shades. Golden wood trim frames doorways and windows, while an ornate crystal chandelier overhead adds an elegant, timeless sparkle to the room.
Kitchen Layout and Details

This kitchen features a warm and inviting layout with honey-toned wooden cabinetry that lines the walls, offering ample storage. The countertops are a smooth reddish-brown, complementing the cabinetry and tiled floor that extends throughout the space. Two windows above the sink let in natural light, dressed with floral-patterned valances that add a vintage charm. Stainless steel appliances, including a dishwasher and gas stove, blend functionality with style. The wallpaper and border add a classic, homey feel, while the wooden door and trim enhance the rustic aesthetic. Recessed lighting provides bright, even illumination.
Home Office

This home office blends vintage charm with modern functionality. Walls are clad in warm, honey-toned wood paneling with intricate molding along the ceiling, creating a classic, cozy atmosphere. The floor is laid with natural wood planks, softened by a large area rug in muted reds and beiges, featuring a geometric pattern that adds subtle visual interest. A glass-top desk with sleek metal legs holds a triple-monitor setup and ergonomic black office chair, balancing contemporary tech with traditional surroundings. Built-in wooden bookshelves filled with a variety of books add character, while artwork and framed photos personalize the space. Soft, natural light filters through white curtains on the single window, enhancing the inviting ambiance.
Library and Reading Room

This refined library space boasts rich wood tones and intricate detailing, crowned by a decorative ceiling with a central medallion and floral motifs. Walls are covered in deep red wallpaper patterned with gold accents, complementing the dense woodwork of the built-in bookcases and trim. A round wooden table, adorned with a lace doily and open book, anchors the middle of a large, ornate area rug featuring muted blues and florals. Classic upholstered chairs, a dark leather armchair, and a chessboard on a side table offer an inviting atmosphere. Subtle lighting fixtures enhance the room’s elegant vintage charm.
Cozy Bedroom Corner

This intimate bedroom corner features warm, earthy tones with rich reddish-brown walls framed by natural wood trim around two large windows. The windows bring in ample daylight, providing a bright view of lush greenery outside. A patterned border runs along the top of the walls, adding subtle floral detail. The bed is dressed in intricately patterned bedding with deep reds and oranges, complemented by decorative pillows in red and yellow hues. A plush, dark brown throw drapes over the foot of the bed, enhancing the cozy ambiance. A wooden nightstand holds a classic lamp and small accents, completing the inviting space.
Bathroom Elegance

This bathroom combines Victorian opulence with modern flair, featuring rich dark marble tiles that clad the walls and the exterior of a deep black jetted bathtub, offering a luxurious soaking experience. The countertop boasts a matching marble surface with two intricately ribbed black sinks, framed by warm wood cabinetry providing ample storage. A large mirror spans the vanity, illuminated by an elegant strip of lights and suspended pendant bulbs overhead, creating a warm ambiance. The gold-accented wallpaper and ceiling details add to the regal feel, complemented by lace curtains softly diffusing natural light through the window.
Bedroom Details

This cozy bedroom features a vintage charm with warm wooden floors and natural wood trim around the door and window frames. The walls are painted white above a deep purple wainscoting, complemented by a patterned floral border at the ceiling line that adds a delicate, old-fashioned touch. A large bed dominates the space, draped in a rich purple quilt with plush, decorative pillows and a soft beige throw, creating a comfortable and inviting feel. Heavy purple drapes frame the window, offering a view of the garden outside. Classic artwork and an ornately carved wooden armoire enhance the traditional, elegant ambiance. A brass chandelier with fringed lampshades completes the room’s refined look.
Powder Room Details

This compact powder room exudes vintage charm with its bold floral wallpaper dominating the walls, blending large rose patterns with vertical stripes and ribbon motifs in shades of pink, cream, and green. The white porcelain pedestal sink, classic in design, anchors the space beneath a small round hanging mirror. Two wall sconces with opaline glass shades provide soft, warm lighting. A framed floral print complements the wallpaper, enhancing the cohesive romantic aesthetic. Practical elements like a towel rack and soap dishes are seamlessly incorporated, balancing functionality with the room’s ornate style. The warm wood door adds to the cozy, nostalgic feel.
Cozy Bedroom Nook

This intimate bedroom nook is uniquely tucked under a sloped ceiling, creating a cozy and enclosed sleeping area. The walls and ceiling are adorned with a vintage-style scalloped floral wallpaper in soft muted tones of green, cream, and pink, adding nostalgic charm. The floor features plush blue carpeting that harmonizes with the bedspread’s light blue-gray texture. A small wooden nightstand with a lamp stands beside the bed, which is decorated with plush pillows and a teddy bear. Nearby, a vibrant blue vintage chest of drawers contrasts with the softer tones. The adjacent open doorway leads to a carpeted hallway with neutral beige walls, enhancing the inviting warmth of this peaceful retreat.
Cozy Bedroom

This intimate bedroom space features a blend of warm yellow and beige tones creating a cozy atmosphere. One wall is adorned with a floral yellow wallpaper pattern that adds vintage charm while the ceiling slopes down in a striking mustard triangle accent. A plush recliner sits tucked in the corner next to a small side table and lamp that casts a soft glow. The bed is dressed in classic white textured bedding with a brown throw for contrast. Framed artwork on the walls adds personality, complementing the inviting and tranquil ambiance of the room.
Upstairs Sitting Area

This cozy upstairs sitting area blends soft beige walls with warm brown carpeting, creating a welcoming and comfortable vibe. A cushioned bench with textured throws lines one side, opposite a dark wood dresser displaying coffee mugs and a coffee maker, emphasizing functionality. The space is naturally illuminated by a multi-pane window at the far end, accented by a textured armchair for relaxation. A narrow console with woven baskets adds storage and visual interest. The nearby open door and curtain-covered closet suggest this space connects to bedrooms or a bathroom, making it an inviting transitional nook.
Bathroom Sink Area

This compact bathroom features a classic pedestal sink centered against a wainscoted wall with vertical beadboard detailing, painted in a soft white that contrasts with the beige upper walls. Above the sink is a small, simple white-framed mirror resting beneath a polished chrome light fixture with two bulbs, offering focused illumination. To the right, a fabric shower curtain with an elegant blue and white floral pattern adds a pop of decorative color. The floor is covered in small hexagonal white tiles, creating a vintage-inspired look. The open doorway leads into a warmly carpeted room with wood furniture, adding a cozy atmosphere nearby.
Basement Entertainment Area

This spacious basement serves as a cozy entertainment and relaxation space. The room features beige paneled walls and an exposed ceiling with visible pipes and ductwork, adding an industrial touch. Soft, neutral-toned carpeting covers the floor, complementing the rich brown sectional sofa and matching armchair, creating a plush seating area. A patterned throw drapes the sofa, enhancing comfort. Opposite the seating, a large flat-screen TV sits atop a wooden media console with an electric fireplace insert below, contributing warmth and ambiance. Storage shelves and versatile workout equipment occupy the back section, integrating functionality with leisure.
Cozy Basement Bedroom

This basement bedroom exudes warmth with its neutral beige walls contrasting softly against the exposed, industrial-style ceiling beams and wiring, lending an unfinished yet charming look. The bed is draped in a rich chocolate-brown comforter paired with decorative pillows and a textured cream knit throw, offering both comfort and style. An eclectic mix of vintage furniture, including a small round side table with an antique lamp and a wooden folding chair, adds character. Adjacent to the sleeping area, a doorway reveals a bathroom with wooden cabinetry and patterned wallpaper, hinting at a cozy, lived-in vibe.
Backyard Patio and Garden

This backyard space features a lush, well-maintained green lawn bordered by a variety of mature trees and shrubs, providing natural privacy and vibrant greenery. A charming wooden pergola with a white canopy sits on a raised wooden deck adjacent to the brick house wall, offering an inviting outdoor seating area furnished with a black metal table and chairs. The yard is enclosed by a white fence with brick pillars, accented by neatly trimmed bushes along its base. Toward the right side stands a small purple garden shed, adding a pop of color and practicality. A stone pathway embedded in the grass leads through the yard, connecting the paved patio area to the deck, enhancing accessibility and visual appeal.
Backyard Patio Seating

This inviting backyard patio area features a spacious paved stone floor with a blend of light gray tones, creating a clean and organized outdoor living space. A mature tree with lush green foliage provides natural shade right in the middle of the patio, surrounded by carefully maintained garden beds with mulch. The patio furniture includes a round metal table with a dark finish, complemented by four swivel chairs with beige cushions and decorative patterned pillows for comfort and style. The backdrop reveals a vibrant green lawn, a wooden gate framed by brick posts, and a red shed, which together contribute to a cozy, well-kept garden oasis perfect for outdoor dining and relaxation.
Want to see more from Remodr?

Drop a comment below, share this with your friends and family, and don’t forget to follow us for more fresh ideas, updates, tips, and home trends.
Listing Agent: Erika Luecke of eXp Realty, LLC via Zillow
