
This charming single-story home in Flowery Branch, GA, showcases a modern traditional architectural style characterized by a combination of siding and stone exterior finishes, gabled rooflines, and clean, classic detailing. Nestled on a spacious 1.23-acre lot, this 3-bedroom, 2-bath residence offers abundant outdoor and indoor living spaces. Inside, the home features a formal foyer leading into spacious living and dining rooms. A separate living area with double glass French doors is perfect for an office or quiet retreat. The primary suite impresses with tall tray ceilings, a massive walk-in closet, and a double vanity bathroom featuring a separate tub and shower. Two additional well-sized bedrooms share a spacious bathroom with a tub/shower combination. The full unfinished basement includes plumbing, walkout access to the yard, and plenty of natural light, offering considerable potential for customization and expansion. The exterior is fully fenced, including a large one-car garage for storage and an elongated driveway for easy pull-around access, RV, boat, or motorcycle parking. Listed at $564,990, this home blends comfort, functionality, and natural beauty in a highly sought-after location.
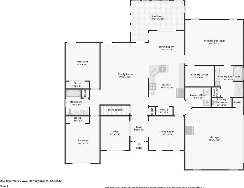
main floor layout

This spacious family room features a warm and inviting layout with soft beige walls and white crown molding adding subtle elegance. Large windows flood the room with natural light, enhancing the neutral palette accented by earth-tone furniture. A large sectional sofa and multiple armchairs create a comfortable seating area focused around a modern fireplace with a built-in mantle, providing a cozy gathering spot. The room’s open flow into the adjoining dining area and kitchen promotes an airy, connected feel. Decorative vases and framed art provide personal touches that blend traditional and modern styles seamlessly.
Basement Floor Plan

This basement layout reveals a spacious, unfinished area divided into multiple sections with clear rectangular boundaries. The design shows potential for versatile use, featuring seven distinct rooms offering a wealth of customizable space. Dimensions are generous, with areas ranging from 5’11” by 9’2″ to a large 12’0″ by 39’9″ expanse. The central staircase leads up to the main level, anchoring the floor plan’s flow. Walls segment the basement thoughtfully, allowing possibilities for storage, recreation, or future finished rooms, all within a clean, functional footprint designed for practical adaptability.
Entry Hallway

This welcoming entry hallway features warm honey-toned hardwood flooring that stretches toward a classic white front door highlighted by an elegant arched transom window above. The creamy beige walls create a soft contrast with the clean white trim and doors on either side, adding a refined touch. On the right, French doors open into a cozy room filled with natural light, while the left leads into a carpeted living space with plush seating visible. A simple pendant light fixture hangs overhead, and a small decorative bicycle planter with sunflowers brightens the entry, enhancing the inviting feel.
Living Room Seating Area

This living room features an open layout with vaulted ceilings, allowing ample natural light from multiple windows. The focal point is a rustic stone fireplace set against a teal accent wall that contrasts beautifully with the neutral beige walls surrounding the space. Plush carpet covers the floor, enhancing comfort and warmth. The seating arrangement includes dark brown leather reclining sofas positioned around a sturdy black coffee table, perfect for gatherings or relaxation. The room seamlessly connects to a dining area through a wide arched opening, maintaining a spacious and inviting atmosphere. Ceiling lighting and a fan complete the cozy yet functional aesthetic.
Living Room Details

This spacious living room features a vaulted ceiling painted in a soft beige tone that complements the neutral carpet flooring, creating an inviting and warm atmosphere. A stone fireplace with a white mantel anchors one side of the room, flanked by a teal accent wall that adds depth and color. The opposite wall hosts a wooden entertainment center with glass-paneled cabinets, displaying decorative vases and dried floral arrangements that enhance the traditional, cozy aesthetic. Dark leather seating surrounds a sturdy black coffee table with metal details, balancing rustic charm with modern comfort. Natural light filters in through the window near the fireplace, brightening the space.
Dining Area

This inviting dining space centers around a wooden table with turned, blue-painted legs complemented by matching chairs with natural wood seats. The warm honey-toned hardwood floor adds a cozy foundation, contrasting with the two-tone wall paint: a soft beige upper half and muted blue wainscoting. A classic chandelier with white glass shades hangs overhead, providing balanced illumination. The room connects openly to an adjacent living area, partially visible with a stone fireplace and leather furniture, while French-style doors with glass panes lead to a sunroom, emphasizing natural light and a seamless indoor-outdoor feel. Traditional decor pieces and framed art complete the homely ambiance.
Kitchen Layout

This kitchen boasts a spacious, open layout with ample cabinetry along one wall, painted in a classic white with simple black knobs that complement the sleek black appliances. The countertops are a smooth gray, providing a neutral contrast to the warm, honey-toned hardwood flooring. A peninsula with a built-in sink and dishwasher creates a natural division between the kitchen and adjacent dining or living area. Recessed ceiling lights ensure even, bright illumination. The far wall features a pair of French doors leading outside, enhancing the room’s airy feel and adding to the inviting traditional-modern aesthetic.
Home Office

This home office features a functional, cozy layout with a classic touch. The L-shaped oak desk offers plenty of workspace, accompanied by black leather office chairs on casters for comfort and mobility. Neutral beige carpeting contrasts with the natural wood tones of the desk and shelving unit filled with paperwork and office supplies. White vertical blinds cover the large window, allowing controlled natural light. The white walls are adorned with personal photos and organized notes pinned on a corkboard, adding a personal touch. A traditional French door with glass panels opens to an adjacent room with hardwood flooring, enhancing the open, airy feel.
Cozy Sitting Room

This inviting sitting room features a neutral color palette with beige walls complemented by white crown molding and chair rail trim, creating a subtle contrast. The plush, dark brown recliner offers a comfy seating option oriented toward the wooden media console, which anchors the space with its rich, natural wood tones and multiple drawers for storage. A sleek flat-screen TV sits atop the console, perfectly positioned below a large framed mirror that reflects light and adds depth. Two tall windows dressed in light beige curtains bring natural light into the room, highlighting the cozy carpeted flooring. A dark wooden cabinet filled with various bottles adds character and a hint of personalization to the room.
Laundry Room

This laundry room features a practical layout with a washer and dryer set placed side by side against a neutral beige wall. Above, a single white wire shelf provides storage for laundry essentials, including detergent bottles and cleaning supplies, with some empty hangers available for air-drying clothes. To the left, a dark wood linen cabinet offers additional storage space with woven baskets, enhancing organization and warmth in the room. The floor is tiled in a light color, complementing the overall clean, functional, and simplified aesthetic, with a charming coffee station adding a unique, personal touch.
Cozy Bedroom Retreat

This serene bedroom offers a warm and inviting ambiance with its classic wooden furniture set, including a carved four-poster bed, matching nightstand, and dresser. The soft beige carpet complements the neutral wall tones, creating a calming backdrop. Natural light floods through vertical blinds covering a large window or sliding glass door, enhancing the room’s airy feel. Simple black-and-white framed artwork adds a subtle decorative touch. A ceiling fan with lights provides both comfort and illumination, while a wall-mounted TV offers entertainment without clutter. This space balances traditional charm with functional, understated decor for restful living.
Bathroom Vanity and Toilet Area

This bathroom features a clean and practical layout with a single sink vanity topped with a smooth, white countertop. The dark wood cabinetry offers contrast to the light beige walls and flooring, creating a balanced, warm aesthetic. A large frameless mirror spans the length of the vanity, enhancing the sense of spaciousness. To the right, a white toilet sits beneath a window with white blinds, allowing natural light to filter in and brighten the space. A neutral-toned shower curtain with soft geometric patterns completes the look, contributing to the bathroom’s modern yet inviting atmosphere.
Bathroom Entrance and Vanity

This bathroom features a clean, light-filled design with pale walls and a tiled floor that contrasts with the rich, dark wood vanity. A single sink with a modern chrome faucet sits beneath a large mirror that extends the length of the vanity, reflecting twice its openness. Soft blue-gray hand towels add a subtle pop of color. To the left, a shower is enclosed with a curtain boasting an abstract pattern in muted shades of grey and beige. The door to the bathroom is ajar, revealing a cozy carpeted living area beyond, hinting at the home’s inviting flow and warm atmosphere.
Simple Bedroom Layout

This bedroom features a clean and minimalist aesthetic with soft, neutral tones. The walls are painted a bright white, complementing the light brown carpet that adds warmth to the room. A double bed, dressed with a muted sage green comforter, is positioned under a ceiling fan with integrated lighting. Natural light filters through a window with white blinds, brightening the space and offering a view of greenery outside. Dark wood furniture pieces, including a nightstand and a dresser topped with a flat-screen TV, contrast nicely with the light walls and carpet. Simple framed artwork adds subtle personality while maintaining a calm, uncluttered atmosphere.
Sunroom Seating Area

This bright sunroom features a vaulted ceiling with white paneled walls that create an airy, spacious feeling. Large windows wrapped in natural woven shades allow an abundance of natural light while maintaining privacy. The focal point is a rich dark brown leather reclining sofa paired with a minimalist black metal side table, offering a cozy spot to relax while enjoying views of the surrounding greenery. The floor is covered with a multi-tone wood plank design, offering warm, rustic charm that enhances the natural vibe. Sliding glass doors lead to an outdoor deck, seamlessly connecting indoor and outdoor living. Ceiling fan lights provide functional illumination and climate control.
Spacious Master Bedroom

This master bedroom offers a serene retreat defined by soft blue-gray walls that complement warm wood furnishings. The room centers on a large four-poster bed adorned with white bedding and multiple pillows, creating an inviting feel. Matching wooden nightstands with lamps on either side enhance symmetry and warmth, while the tall dresser and blanket chest add classic storage solutions. Plush beige carpeting covers the floor, contributing texture and comfort. Natural light filters through white plantation shutters on two windows, balancing coziness with brightness. A ceiling fan with lights completes the high, vaulted ceiling design for comfort and style.
Bathroom Vanity and Shower

This bathroom features a clean, functional layout with neutral tones that create a calm atmosphere. On one side, a double-sink vanity with dark wood cabinetry contrasts elegantly with the white countertop and walls. Above the sinks, a large mirror spans the length of the vanity, enhanced by modern round vanity lights and a wall-mounted magnifying mirror. Opposite the vanity, a glass-enclosed shower with chrome trim and fixtures adds a sleek, contemporary touch. The floor is tiled in neutral beige, complementing the overall light, airy feel of the space. A white door leads to an adjacent room or closet.
Unfinished Basement Area

This spacious basement features exposed insulation covered in black plastic sheeting along the walls and ceiling, indicating that construction or finishing work is ongoing. The floor is a bare concrete slab, providing a blank canvas for future flooring options. Natural light filters in through two windows, one of which is adorned with blue curtains that soften the otherwise industrial atmosphere. A small wall shelf holds a decorative object, introducing a subtle personal touch. The open layout and large windows offer considerable potential for converting this area into a functional living or recreational space.
Home Gym Space

This room is serving as a home gym in a partially finished basement or workout area. The walls reveal exposed insulation with plastic sheeting, giving an industrial, unfinished vibe. Natural light filters through two windows, brightening the space. Exercise equipment including a recumbent bike and elliptical machine are positioned thoughtfully for workout convenience. A beige shaggy rug covers part of the concrete floor, adding texture and warmth. The ceiling also shows protective plastic, reinforcing the unfinished state. Despite the raw surroundings, the area is functional, designed for fitness activities in a straightforward, practical setting.
Backyard Deck Seating

This spacious wooden deck offers an inviting outdoor dining area with a sturdy rectangular metal table and six matching chairs, each featuring beige mesh seating and armrests with black metal frames. The deck is surrounded by a wooden railing that enhances safety while providing an open view of the lush green backyard adorned with tall trees and shrubbery. In the distance, a detached garage or shed with a red vehicle inside adds a practical element to the serene environment. The bright blue sky with scattered clouds completes the tranquil outdoor setting, perfect for gatherings and relaxation.
Backyard Pool Area

This inviting backyard space features an above-ground circular pool surrounded by a wooden deck with safety railings. Four cream-colored lounge chairs line one side of the deck, providing ample seating for relaxation under the two beige patio umbrellas. The area is bordered by dense green trees, creating a serene, private atmosphere. The well-maintained lawn extends toward a detached garage visible in the background, which sits beside a gravel driveway. The use of natural wood tones and lush greenery enhances the tranquil, outdoor retreat vibe of this family-friendly space.
Backyard retreat view

The spacious backyard features a well-maintained green lawn bordered by tall trees, creating a private and serene atmosphere. A large above-ground pool is inset into a wooden deck with comfortable lounge chairs and umbrellas, ideal for relaxing and entertaining. The home’s rear facade showcases light beige siding with multiple windows, allowing natural light to fill the interior. A raised wooden deck attached to the house offers an outdoor dining space with a table and chairs. The layout blends outdoor leisure and social zones, emphasizing a warm and welcoming aesthetic with natural wood tones and greenery.
Listing Agent: Modern Traditions of RE/MAX Center via Zillow
