
This 6,356 sq. ft. home on a 0.78 acre lot listed at $899,000 features 4 bedrooms and 4.5 bathrooms offering elegant living and entertaining spaces, featuring a breathtaking two-story great room with floor-to-ceiling windows and a striking fireplace. The first-floor master suite boasts vaulted ceilings, a spa-like ensuite, and massive closets. The gourmet kitchen is a chef’s dream with a center island, granite countertops, and rich wood cabinetry. Upstairs, spacious bedrooms and a vaulted bonus room provide ample space. The walkout basement is an entertainer’s paradise with a full kitchen, bar, rec room, and sound system. Step outside to a private oasis with a heated 20×40 in-ground pool, concrete patio, and wood deck.
1. classic exterior

This stately home boasts an impressive stone exterior that exudes timeless elegance and strength. The rich, natural texture of the stone complements the sophisticated design, while large, symmetrical windows allow natural light to flood the interior, enhancing the home’s welcoming atmosphere. The prominent arched entrance, framed by neatly manicured landscaping, leads to a beautifully crafted wooden door, further elevating the home’s curb appeal. Surrounded by lush greenery and mature trees, this residence perfectly blends classic architecture with serene natural beauty, offering both luxury and tranquility.
2. Where is Clinton?

Clinton is a small village in Summit County, Ohio, located about 20 miles southwest of Akron. Nestled along the Tuscarawas River, it offers a quiet, rural setting with a close-knit community. The village is near the Ohio & Erie Canal Towpath Trail, a popular spot for hiking and biking that highlights the region’s historic canal system. Clinton provides easy access to nearby cities while maintaining a peaceful, small-town atmosphere. With its natural beauty and proximity to parks and outdoor recreation, it’s an ideal location for those seeking a slower pace of life.
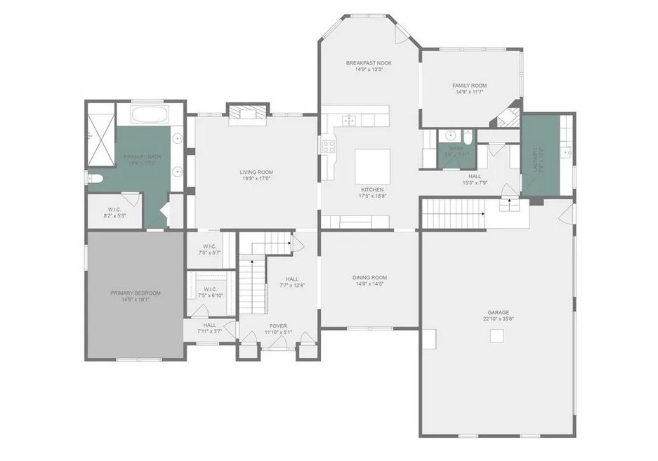
3. Main Floor Plan

This expansive main floor offers a seamless blend of style and functionality. The open kitchen, living room, and breakfast nook create a welcoming space for gatherings. The primary suite features a spacious walk-in closet and a private bath. A formal dining room adds elegance, while a family room provides extra living space. The large garage, pantry, and utility room ensure everyday convenience, making this home both comfortable and practical.
4. Upper Floor Plan

The upper level offers a private retreat with spacious bedrooms and thoughtful design. The primary bedroom features a walk-in closet and an en-suite bath. Two additional bedrooms share a bathroom, providing comfort and convenience. A cozy sitting room offers a quiet escape, while open areas overlooking the main floor add to the home’s airy, expansive feel. This level is designed for both relaxation and functionality.
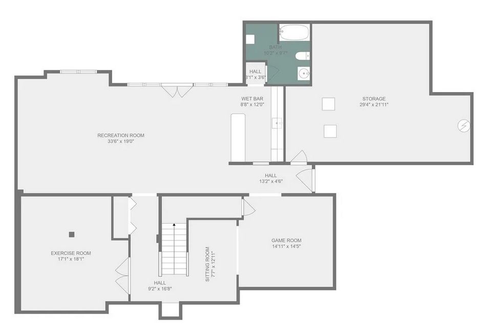
5. Basement Floor Plan

The basement is designed for entertainment and recreation. A spacious recreation room provides ample space for gatherings, while a game room and exercise room add to the home’s versatility. A wet bar enhances the entertainment options, and a large storage area keeps everything organized. A full bathroom ensures convenience, making this level a perfect space for relaxation and fun.
6. Foyer with Classic Detailing

This stunning foyer greets guests with a sense of timeless elegance, where classic design elements meet modern comforts. The graceful wooden staircase, with its wrought iron railings, creates a striking focal point, guiding the eye upward with its sophisticated craftsmanship. Rich hardwood floors gleam beneath soft, neutral walls, adding warmth and refinement to the space. The arched entryway leads into the adjoining living area, further enhancing the open, airy feel of the home. Subtle decorative touches, like the lamp and tasteful artwork, complement the traditional architecture, making this entryway both welcoming and luxurious.
7. Refined Dining Room

This elegant dining room combines traditional elements with timeless sophistication. The rich, deep purple walls create a striking backdrop, while the intricate woodwork framing the windows and archways adds a touch of luxury. A grand chandelier hangs overhead, casting a warm, inviting glow over the polished wooden dining table, which is complemented by classic upholstered chairs. The graceful staircase in the background, with its finely detailed wrought iron railing, adds to the room’s sense of opulence, creating an atmosphere that is both refined and welcoming.
8. great Room with Soaring Ceilings

This stunning great room captures the essence of open, airy elegance with its towering ceilings and expansive arched windows. The custom woodwork, including the built-in bookshelves and rich wood trim around the windows, adds a touch of sophistication, while the stone fireplace serves as a warm focal point. Plush seating invites relaxation, with the soft, neutral tones of the furniture creating a serene atmosphere. The natural light streaming through the windows highlights the lush greenery outside, enhancing the room’s bright and welcoming ambiance. This is a space designed for both comfort and visual impact.
9. Spacious Gourmet Kitchen

This expansive kitchen combines functionality with timeless elegance. Rich wooden cabinetry in a warm, deep tone contrasts beautifully with the dark granite countertops, creating a sophisticated and durable workspace. The large central island is perfect for meal preparation or casual dining, while the sleek stainless steel appliances add a modern touch. Ample natural light pours in through the surrounding windows, creating a bright and inviting atmosphere. Pendant lighting above the island adds a stylish finishing touch, making this kitchen the heart of the home.
10. Living Space with Rustic Charm

This intimate living area radiates warmth and charm, with its stone fireplace serving as the room’s captivating centerpiece. The vaulted ceiling with exposed beams creates a sense of openness, while the comfortable sofa and plush rug invite relaxation. Large windows frame scenic views of the lush green outdoors, flooding the room with natural light. The stylish “Coffee Bar” sign above the console adds a personalized touch, making this space both functional and inviting—a perfect nook to unwind and enjoy peaceful moments.
11. scenic breakfast Area

This elegant breakfast nook is bathed in natural light, thanks to the surrounding windows that frame stunning views of the lush greenery outside. The rich wood detailing around the windows and the chandelier above the table add an element of sophistication, complementing the traditional design of the room. The dark wood dining table and chairs provide both style and comfort, creating the perfect setting for family meals or entertaining guests. The seamless transition to the adjacent living area further enhances the open, airy feel, making this a welcoming and functional space.
12. Regal Master Bedroom

This luxurious master bedroom is designed to offer both grandeur and comfort. The exquisite four-poster bed, with its intricate carved details and rich wood finish, serves as the focal point, while the vaulted ceiling adds to the sense of space and sophistication. The large arched window bathes the room in natural light, providing beautiful views of the serene outdoor landscape. Elegant furnishings, including a stately nightstand and matching lamps, complement the room’s classic design, creating a tranquil retreat perfect for rest and relaxation.
13. scenic Master Bathroom

This master bathroom offers a serene and spacious retreat, featuring a luxurious soaking tub set beneath a large, arched window that frames picturesque views of the surrounding nature. Rich, dark wood cabinetry provides ample storage, perfectly complementing the light marble countertops and neutral tones of the space. The expansive mirror above the vanity enhances the room’s openness, reflecting both the elegant fixtures and the tranquil outdoor scenery. Soft, warm lighting adds to the relaxing atmosphere, making this bathroom a perfect sanctuary for unwinding.
14. Inviting Bedroom

This cozy bedroom offers a peaceful retreat, with soft blue walls that create a calming atmosphere. The bed, adorned with plush pillows and a light, textured blanket, invites relaxation. Natural light pours in through the wide window, offering views of the lush outdoors, while the neutral-colored furnishings provide a sense of simplicity and elegance. A functional desk adds versatility to the space, perfect for work or creative activities. With its blend of comfort and tranquility, this room is the ideal setting for restful nights and peaceful days.
15. Cozy Bedroom

This vibrant bedroom offers a laid-back, comfortable space perfect for relaxation. The reclaimed wood bed frame adds a rustic charm, paired with bright, bold bedding that introduces color and personality to the room. Large windows, framed with deep wood trim and fitted with red shades, provide ample natural light while offering a view of the outdoors. A simple desk and nightstand add functionality without clutter, making the room feel open and airy. The ceiling fan and soft carpet underfoot contribute to the room’s overall comfort, creating an inviting retreat for both rest and study.
16. Functional Bedroom with a Relaxed Ambience

This cozy bedroom offers a peaceful environment for both rest and productivity. The neutral-toned walls and soft carpeting provide a calming backdrop, while the comfortable bed with sports-themed bedding creates a relaxed, personalized atmosphere. A large window floods the room with natural light, offering a serene view of the outdoors. A desk setup in the corner adds a functional space for work or gaming, while the simple wooden dresser and nightstand keep the room organized and efficient. The ceiling fan ensures a comfortable airflow, making this room the perfect retreat for all activities.
17. versatile Attic Space

This airy attic space offers a serene and adaptable area perfect for lounging or creative pursuits. The slanted ceilings, punctuated by skylights, allow natural light to flood the room, creating a bright and open atmosphere. The cozy seating area, featuring a comfortable sofa and plush armchair, invites relaxation while the simple, neutral walls and carpet keep the space feeling fresh and uncluttered. A colorful throw pillow arrangement adds a pop of personality, and the window view brings the beauty of the outdoors in, enhancing the room’s tranquil vibe. This versatile space is ideal for a home office, reading nook, or quiet retreat.
18. Bright Basement with Outdoor Views

This inviting basement offers a generous, open space perfect for relaxing or entertaining. The light gray walls and plush carpeting create a neutral backdrop, while the leather seating adds comfort and sophistication. Large windows and double doors provide ample natural light, creating a seamless connection with the outdoor area and pool, enhancing the space’s airy feel. The simple layout, with minimal decoration and a functional entertainment setup, offers flexibility for a variety of uses, from family gatherings to a home office or game room.
19. Backyard Oasis with Pool

This expansive backyard features a pristine swimming pool, framed by elegant stonework and surrounded by lush greenery, offering the perfect space for relaxation and outdoor entertaining. The home’s elegant design, with large windows and a spacious deck above, provides seamless access to the pool area. Sun loungers and a dining set invite outdoor gatherings, while the fenced perimeter ensures privacy. The tall trees lining the yard add a sense of tranquility, creating a serene atmosphere for enjoying the beautiful outdoor setting. This is a perfect space for both intimate family moments and lively social events.
Listing agent – Todd Ryan Casey @ High Point Real Estate Group via realtor.com
