
Experience the perfect blend of comfort and functionality in this all-brick ranch-style home listed at $725,000 set on 5 scenic acres along a blacktop road. Freshly painted interiors and exterior trim create a bright, welcoming atmosphere. Enjoy two masonry fireplaces, a luxurious steam shower, and a master suite with a private patio overlooking breathtaking countryside views. The finished walk-out basement offers a second master suite, a jetted tub, a travertine walk-in shower, and a kitchenette—ideal for multigenerational living or rental potential. Outside, a shop with horse stalls and an additional outbuilding provide ample storage and workspace. This property is adorned with over 80 ornamental grasses, iconic limestone fence posts, and stunning natural beauty. Schedule your showing today!
1. charming exterior

This charming brick home features a classic and timeless exterior, with clean lines and a well-maintained roof that enhances its curb appeal. The symmetrical arrangement of windows allows natural light to flood the interior, while the carefully designed landscaping provides a serene, welcoming atmosphere. The stone details along the front entrance and the gently sloping lawn contribute to the overall warm, inviting feel of the home. Set against a peaceful, expansive backdrop, this property exudes both comfort and elegance.
2. Where is Baldwin City?

Baldwin City is a charming small town in eastern Kansas, located about 15 miles south of Lawrence. Known for its rich history and friendly community, it is home to Baker University, the oldest university in Kansas. The town is also famous for the annual Maple Leaf Festival, celebrating the beauty of fall with parades, crafts, and local food. Surrounded by rolling farmland, Baldwin City offers a peaceful, small-town atmosphere with easy access to larger cities like Kansas City and Topeka. Its historic downtown and welcoming spirit make it a great place to visit or call home.
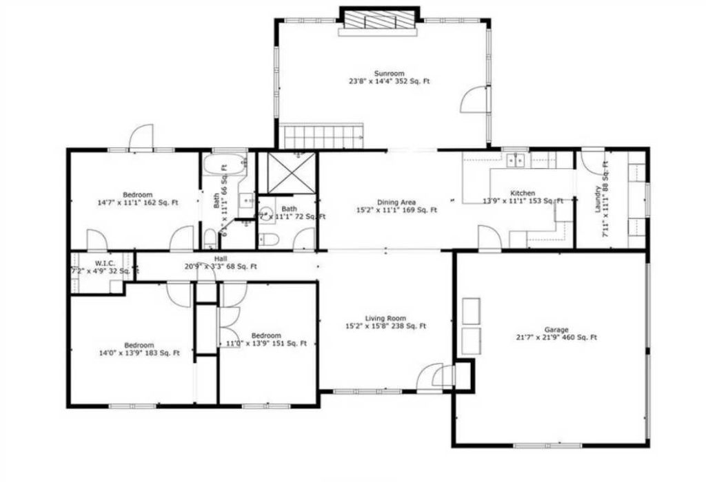
3. Main Floor Plan

This main floor layout features a spacious living room, a dining area, and a well-sized kitchen with adjacent laundry space. A sunroom at the back enhances natural light and provides additional relaxation space. The three bedrooms, including one with a walk-in closet, are conveniently located near two bathrooms. A connected garage offers direct indoor access for convenience.
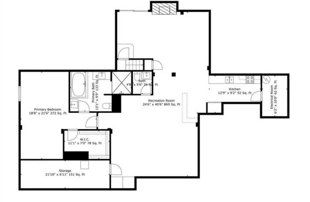
4. Basement Floor Plan

This basement level features a spacious recreation room, a secondary kitchen, and an electrical room. The primary bedroom includes a large walk-in closet and an en-suite bath for privacy. Additional storage space is provided, along with a second bathroom for convenience. The layout is designed for functionality, offering ample room for entertainment and living.
5. Airy Living Room

This spacious living room offers a clean, modern canvas with its neutral walls and warm wood flooring, creating a serene atmosphere. Large windows provide abundant natural light, framing peaceful views of the surrounding landscape, while recessed lighting adds a contemporary touch. The open layout and simple, elegant design offer flexibility for various furniture arrangements, making this space perfect for relaxation or entertaining. The room is further enhanced by the wooden details surrounding the door, adding character and charm to the welcoming space.
6. Sitting with natural light

This sitting exudes a sense of warmth and relaxation with its impressive stone fireplace that serves as the room’s focal point. The high wooden ceiling enhances the spacious feel, while the large windows allow ample natural light to fill the space, offering beautiful views of the surrounding landscape. The slate tile flooring adds a touch of rustic charm, complementing the earthy tones of the stone and wood. Perfect for entertaining or unwinding, this sitting seamlessly blends comfort and style.
7. functional kitchen

This sleek kitchen features a clean and contemporary design with crisp white cabinetry paired with dark slate countertops, creating a striking contrast. The kitchen is well-lit with recessed lighting, enhancing the space’s airy feel. A large window above the sink offers views to the outside, while modern stainless-steel appliances, including a fridge and oven, add both style and functionality. With its open layout and practical workspaces, this kitchen is perfect for both everyday cooking and entertaining guests.
8. laundry room

This laundry room combines functionality and modern design. Featuring sleek white cabinetry above the washer and dryer, it offers plenty of storage for laundry essentials. The deep countertop provides ample space for folding clothes or sorting laundry, while the large window brings in natural light, making the room bright and airy. With its clean lines, neutral tones, and practical layout, this space ensures both convenience and comfort for laundry tasks.
9. farmhouse-inspired dining

This dining area features a beautiful farmhouse-inspired wooden table with matching benches, perfect for large family gatherings. The space is well-lit by a stunning chandelier above, adding a touch of elegance. The exposed beams in the adjacent room and natural light from the large windows create a cozy and inviting atmosphere. The open layout leads to the kitchen, seamlessly connecting the two spaces, while the warm wood flooring ties everything together, making it a perfect spot for both dining and entertaining.
10. Bathroom with steam shower

This charming bathroom exudes warmth and character, featuring rustic wood-framed windows and a unique stone vessel sink that adds to the earthy, natural appeal. The spacious walk-in steam shower, enclosed by a glass door, showcases stunning tile work and a pebbled floor, creating a spa-like atmosphere. Complemented by soft lighting and vintage-style fixtures, this bathroom offers a perfect blend of style and comfort, ensuring a relaxing retreat.
11. Bedroom with Scenic Views

This serene bedroom offers a peaceful retreat, enhanced by large windows that provide breathtaking views of the surrounding nature. The room’s earthy tones and plush carpet add to its cozy and inviting atmosphere, making it the perfect place to unwind. A ceiling fan ensures comfort year-round, while the sliding doors open directly to the outdoor space, seamlessly connecting the interior with the natural beauty outside.
12. rustic bedroom

This stylish bedroom combines contemporary design with rustic charm, highlighted by the exposed brick columns and warm wooden beams that frame the space. The earthy tones of the walls and the polished concrete floor create a welcoming ambiance, while the cleverly designed layout with a walk-in closet adds functionality. It’s the perfect blend of modern comfort and rustic character, offering a tranquil space to unwind.
13. Bathroom with Soothing Ambiance

This serene bathroom offers a perfect balance of modern style and comfort. A spacious whirlpool tub invites relaxation, complemented by a sleek vanity and mirrors that enhance the room’s bright, welcoming atmosphere. The rich, dark walls contrast beautifully with the light tile flooring and wood cabinetry, providing a cozy yet luxurious retreat. Ideal for unwinding after a long day, this bathroom offers a soothing space to rejuvenate.
14. Basement Bar with Rustic Accents

This basement bar area exudes a cozy and welcoming vibe with its combination of sleek modern elements and rustic touches. The stone bar front and sturdy, industrial-style stools invite relaxation and social gatherings. The space is well-lit by recessed lighting, enhancing the clean lines and smooth concrete floor. A refrigerator adds convenience, while the brick accents on the walls further elevate the space, creating an ideal setting for entertaining or unwinding after a long day.
15. charming outdoors

This charming home offers a sleek, modern aesthetic with a classic brick exterior that seamlessly integrates into its natural surroundings. The clean lines and spacious driveway create a welcoming curb appeal, while large windows provide an abundance of natural light to the interior. The attached garage offers both functionality and convenience, making this home an ideal blend of style and practicality. The peaceful landscape surrounding the property enhances its tranquil setting, perfect for enjoying the outdoors.
16. Spacious Barn with horse stalls

This expansive barn offers plenty of space for a variety of uses, from storage to work projects. The sturdy wood framing and high ceiling create an open, airy atmosphere perfect for larger equipment or a workshop. Equipped with shelves and workbenches, it offers an organized and functional environment. The American flag and decorative touches add a personal flair, while the practical layout ensures this barn can accommodate whatever needs you may have.
Listing agent – Denise Cunningham @ Keller Williams Realty Partners, Inc via realtor.com
