
This exquisite estate, known as The Resort on Zeno, represents a sophisticated blend of luxury and comfortable living, situated in the scenic city of Centennial, Colorado. Featuring six spacious bedrooms and six well-appointed bathrooms, this home offers nearly 7,000 square feet of refined living space. Designed with attention to detail, the property boasts dual primary suites on both floors, recently refinished hardwood flooring, and fresh designer paint throughout. This residence, built with careful consideration for both relaxation and entertainment, offers unparalleled lifestyle opportunities just minutes from shopping, dining, and convenient E-470 access for mountain excursions. Listed at $2,375,000, this rare and unforgettable property combines a prime location with exceptional amenities and expansive indoor and outdoor living spaces.
main Floor layout

This floor plan layout demonstrates a spacious and well-organized home with clearly defined living, dining, and utility spaces. The foyer leads to a large open kitchen with an island and nook, perfect for casual dining. Adjacent to the kitchen is a sizable living room connected to an office or sitting room, fostering a flexible living environment. On the opposite side, a dedicated dining area provides a formal gathering place. Practical amenities such as a mudroom, laundry, and multiple baths add convenience. The garage is generously sized, while several hallways connect distinct functional areas, creating an efficient flow.
Second Floor Layout

This second-floor plan reveals a spacious and well-organized living area with four bedrooms, including a large primary suite complete with two walk-in closets and an en-suite bathroom featuring a tub and separate shower. The layout includes multiple bathrooms, some with dual sinks for convenience. Hallways connect the bedrooms, providing fluid movement through the floor, with an open-to-below area that adds architectural interest and a feeling of openness. Closet space is abundant, and the bedrooms vary from large to moderate sizes, offering flexibility. The design prioritizes privacy and comfort with thoughtful spatial distribution.
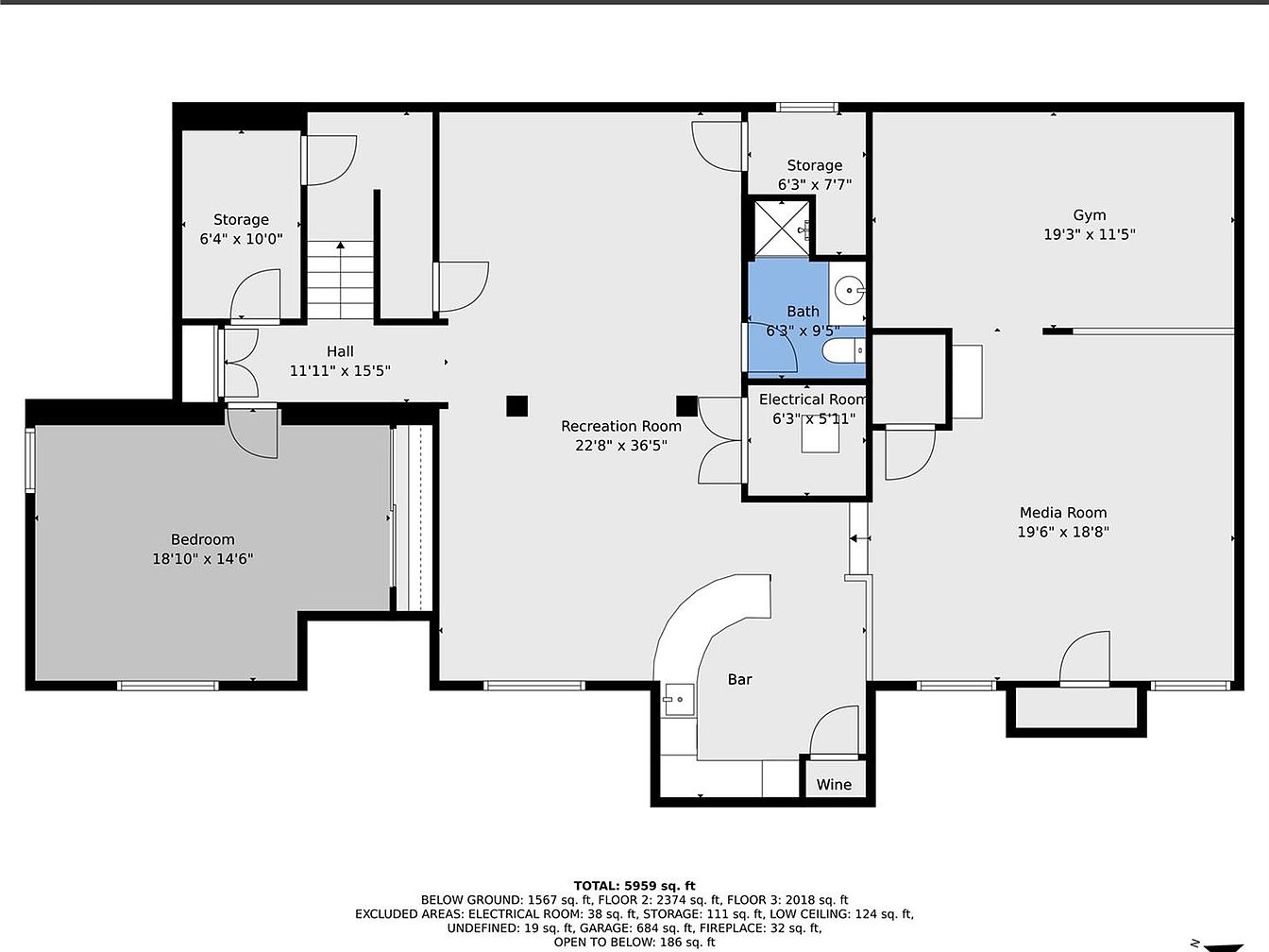
Basement Floor Plan

This basement layout offers a spacious and functional design with multiple distinct areas. The large recreation room, centrally positioned, measures 22’8″ by 36’5″ and includes a curved bar with a dedicated wine storage area, perfect for entertaining. Adjacent to it, the media room (19’6″ by 18’8″) provides a private space for viewing, while the gym (19’3″ by 11’5″) supports active living. A separate bedroom (18’10” by 14’6″) adds versatility for guests or family. Additional storage rooms, a bath, and an electrical room ensure convenience and practicality, complementing the well-organized flow of this below-ground level.
Living Room and Office Nook

This spacious living room blends classic and modern design elements with warm, neutral tones. A large beige sofa anchors the seating area, complemented by a rich brown leather armchair and a black, tufted leather chair, each presenting distinct textures. The wooden coffee table features turned legs, enhancing traditional charm atop a light, patterned area rug. The open layout flows seamlessly into a home office nook painted in a calming light blue, furnished with a carved wooden desk and a black office chair beneath two windows with white blinds. Exposed white beams rise to a vaulted ceiling, adding architectural interest and openness.
Living Room details

This inviting living room features a vaulted ceiling with white beams enhancing the sense of spaciousness. Soft beige walls paired with light wood flooring create a warm and neutral backdrop. The seating area includes a plush beige sofa and a distressed brown leather armchair with a throw, centered around a whitewashed brick fireplace that adds rustic charm and warmth. Above the mantle, a muted, abstract painting complements the room’s calm palette. A classic wooden console table behind the sofa holds two small topiary plants, stacked books, and a vintage-style chest underneath, adding personality and coziness.
Office Nook

This home office offers a calm and focused atmosphere with soft blue-gray walls creating a soothing background. The room features light wood flooring, adding warmth and subtle texture to the space. An ornate wooden desk with intricate scrollwork legs serves as the room’s centerpiece, paired with a plush black leather office chair for comfort and style. Positioned on an elegant area rug with muted floral patterns, the furniture anchors the layout. Two narrow windows with light beige blinds allow natural light to brighten the room. A sleek flat-screen TV is mounted on the wall, adding modern functionality.
Dining Room Ambiance

This elegant dining room features a high vaulted ceiling that enhances the spacious feel. The walls are painted a soft beige, complementing the natural light streaming in through a large window with a view of mature trees outside. The room centers around a rectangular dining table with a marble top, supported by two ornate pedestal bases. Six chairs surround the table: four with dark wood frames and cream cushions, flanked by two tall, upholstered armchairs in a muted taupe fabric. Two cream-colored built-in china cabinets flank a white mantle fireplace, crowned by a simple green wreath for a touch of natural decor. An antique-style chandelier hangs low over the table, adding classical charm to this refined, yet cozy, space.
Kitchen Island and Cabinetry

This kitchen features a warm, inviting design centered around rich wood cabinetry that extends from floor to ceiling. The natural wood tones bring a cozy, rustic charm, while the light hardwood floor brightens the space. A large kitchen island with a smooth granite countertop serves both as a prep area and casual dining spot, surrounded by two matching wooden chairs. Stainless steel appliances, including a dual oven and built-in refrigerator, add modern functionality. Recessed ceiling lights provide a clean, well-lit environment, and a subtle mosaic tile backsplash behind the stove adds texture and detail.
Master Bedroom

This spacious master bedroom features a large wooden bed frame with built-in storage drawers, dressed in crisp white bedding accented by navy blue pillows. Light hardwood flooring is softened by a substantial deep blue area rug beneath the bed, coordinating with the dark blue curtains framing a large window, which offers natural light and views of landscaped greenery outside. The walls are painted a warm beige, complementing the white ceiling and trim. Modern recessed lighting and a white ceiling fan add to the room’s comfort. Two small floating shelves near the bed hold decorative items, providing subtle, personalized touches.
Laundry Room

This spacious laundry room features a modern setup with sleek, front-loading stainless steel washer and dryer units standing side by side. The room is designed with ample storage, including an abundance of white paneled cabinets that stretch along two walls, wrapping around the corner to maximize space. Beige marble-look countertops provide a clean, durable surface for folding and organizing laundry essentials. The neutral color palette of soft beige walls complements the light gray wood-look tile flooring, creating a bright and airy atmosphere. Decorative accents include a rustic “Laundry” sign and a vase with lavender adding warmth and charm to the practical space.
Master Bedroom Retreat

This master bedroom exudes comfort and sophistication with its spacious layout and soothing neutral palette. A large four-poster wooden bed with intricate carved details anchors the room, complemented by a matching wooden nightstand. Soft, light carpeting enhances the cozy ambiance, contrasted gently by beige walls. A modern fireplace with a tiled surround and white mantel provides warmth and serves as a focal point beneath a mounted flat-screen TV. Adjacent to the fireplace, an open door reveals an organized walk-in closet. Recessed ceiling lights and a white ceiling fan offer ample light and ventilation, completing the elegant yet inviting retreat.
Master Bedroom Fireplace

This master bedroom features a cozy fireplace set within a neutral-toned tile surround, topped with a white mantel that supports a large flat-screen TV. The walls are painted a warm beige, complementing the plush, light gray carpeting that extends throughout the room. To the right, a walk-in closet is visible through an open door, neatly organized with hanging clothes and shelving. The room’s layout includes two additional doors leading to adjacent spaces, enhancing flow and accessibility. The overall aesthetic balances comfort with subtle elegance, creating a welcoming and functional retreat.
Walk-In Closet

This spacious walk-in closet features a well-organized layout with built-in white cabinetry providing ample storage. On the left side, open shelving and hanging rods hold a collection of clothes ranging from light robes to colorful shirts. The right side includes additional shelves, drawers, and a mirrored wardrobe door enhancing functionality and the sense of space. A cushioned bench with a patterned pillow sits beneath two narrow windows, allowing natural light to brighten the soft grey walls and plush, light-colored carpet. The ceiling light fixture complements the clean, modern aesthetic of the room.
Walk-In Closet Organization

This spacious walk-in closet features a well-organized and functional layout with white shelving units and hanging rods that maximize storage. The color palette is light and neutral, creating a clean and airy feel. Clothing is neatly arranged by type, with dress shirts and pants hanging in designated sections. A wall-mounted display of hats adds personality and character, while shelves hold neatly stacked shoes and boots. Additional cubbies display folded garments and accessories, with boxes and personal items stored on lower shelves. The carpeted floor adds warmth and softness underfoot in this custom dressing space.
Master Bathroom Relaxation Area

This master bathroom features a large built-in soaking tub framed with beige marble tiles that extend from the floor to the tub surround. A large frosted window above the tub invites natural light while preserving privacy. To the left, a wooden vanity with multiple drawers and a granite countertop sits beneath a wide mirror with three light fixtures providing warm illumination. Mounted on the adjacent wall is a flat-screen TV, adding a modern entertainment touch. Neutral tones dominate the design, with cream walls and light beige tiles creating a calm, spa-like atmosphere. Through the doorway, an adjacent dressing area is visible, highlighting the spacious and functional layout.
Bathroom Vanity Area

This bathroom features a spacious double vanity with warm, natural wood cabinetry and granite countertops, creating a welcoming and functional space. Two white porcelain sinks sit under a large mirror that spans the length of the counter, accentuating the room’s openness. Soft, neutral wall colors complement the earth-toned countertop and wood, while brushed metal hardware adds subtle contrast. Above the mirror, a stylish light fixture with four shades casts a gentle glow. The tiled floor is practical and inviting, with a plush white bath mat enhancing comfort. Adjoining the vanity is a glimpse into a cozy, light-filled bedroom.
Master Bedroom

This master bedroom features a serene and spacious layout with soft neutral tones defining its aesthetic. The walls are painted a light grey, complemented by plush beige carpeting that adds warmth to the space. A prominently positioned wooden bed frame with storage drawers beneath is dressed in white bedding paired with muted plaid pillows, striking a balance between cozy and refined. Two windows provide an abundance of natural light and views of leafy greenery outside. A dark wood nightstand with a purple lamp and matching dresser create cohesion, while a wall-mounted flat-screen TV adds a modern touch. The white ceiling fan and recessed lighting complete the peaceful and functional atmosphere.
Bedroom Ambiance

This cozy bedroom features a soft pastel pink color scheme that creates a calm and inviting atmosphere. The focal point is a tufted upholstered bed in a neutral gray tone complemented by patterned bedding in soft pink and white. Flanking the bed are matching white nightstands with modern lamps, adding symmetry and function. A white dresser opposite the bed provides ample storage, while a small writing desk and swivel chair by the window offer a quiet workspace. A hanging plant adds a touch of greenery, and the plush carpet and ceiling fan enhance comfort and practicality throughout this serene sleeping space.
Kitchen with Wine Storage

This kitchen features a warm, rustic aesthetic with natural wood cabinetry that extends to the ceiling, creating ample storage. The black granite countertops and backsplash add a sleek, modern contrast against the light wood tones. Stainless steel appliances, including a dishwasher, integrate seamlessly for a contemporary touch. The light-toned wood laminate flooring complements the cabinets and brightens the space. A glass-paned door reveals a built-in wine cellar stocked with an impressive collection. Vintage-style liquor posters adorn the brick-textured wall, enhancing the cozy, inviting atmosphere. Two wooden barrels and a mounted flat-screen TV complete this stylish yet functional kitchen and bar area.
Basement Family Room

This basement family room features a spacious, light-filled layout defined by a large, L-shaped brown leather sectional adorned with rich red and patterned throw pillows, creating a warm, inviting seating area. The soft beige walls and light carpet enhance the open feel, while recessed ceiling lights provide ample illumination. On one side, a built-in white shelving unit houses books and decor, adding functional charm. Movie posters on the walls contribute a touch of personality. Beyond the seating, a small bar with wooden cabinetry completes the space, blending comfort with entertainment elegance.
Home Gym

This home gym features a sleek and functional layout with modern cardio equipment including a rowing machine, treadmill, and stationary bike. A large mirrored wall extends across one side, enhancing the sense of spaciousness and allowing for workout form checks. The flooring combines protective black mats with warm wood tones, creating a balance of durability and aesthetic comfort. Neutral beige walls display four framed landscape prints, adding a calming yet inspiring visual element. Soft recessed ceiling lights provide even illumination while a mounted flat-screen TV offers entertainment during workouts. Towels are neatly stacked on a small stainless steel fridge, completing the organized, inviting fitness space.
Bedroom with Workspace

This cozy bedroom features a neutral color scheme with soft beige walls and plush light carpeting, creating an inviting and serene atmosphere. A full-sized bed dressed in a simple white quilt and floral pillows serves as the room’s focal point, positioned beneath a small window that allows natural light to filter in. To the left of the bed, a classic dark wood nightstand holds a silver lamp, while a framed picture adorns the adjacent wall. On the right side, a built-in alcove houses a compact work area with a wooden chair and desk, complemented by white shelving for storage. Recessed ceiling lights provide soft, even illumination throughout the space, highlighting its clean and uncluttered design.
Bathroom Vanity and Shower

This bathroom features a compact yet functional layout with a walk-in shower on the left, enclosed by clear glass and tiled in soft beige hues with a decorative horizontal accent strip. Adjacent to the shower is a wooden vanity with natural knots and grain, topped with a beige stone countertop housing a white oval sink under an oval mirror with chrome fixtures. The walls are painted a neutral light taupe, complementing the soft tones of the floor tiles. A simple chrome towel rack and toilet paper holder keep essentials organized, while the white toilet sits neatly beside the vanity. Overhead, a classic triple-light fixture provides warm illumination, enhancing the clean, cozy aesthetic.
Outdoor Kitchen and Pool Area

This outdoor space features a charming built-in kitchen area with a stone countertop bar, complete with woven bar stools, perfect for casual dining or entertaining. The kitchen includes a stainless steel grill, integrated seamlessly into the stonework. The surrounding patio is stamped concrete, shaded by mature trees casting intricate shadows. Overhead string lights add warmth for evening gatherings. Beyond the kitchen, the pool area invites relaxation with multiple lounge chairs and a playful water slide. The lush greenery and rolling hills beyond the fenced yard provide a scenic, tranquil backdrop to this inviting backyard retreat.
Backyard Patio

This outdoor space blends natural and built elements to create a welcoming backyard retreat. A large, mature tree anchors the patio with abundant shade over a dining area featuring a rectangular table and black chairs. Adjacent to this is a stone bar with stools, perfect for casual entertaining. A circular stone fire pit is surrounded by mismatched Adirondack chairs, adding rustic charm. Nearby, loungers with neutral cushions sit under a large beige umbrella. The clean, tan concrete flooring complements the natural stone walls and surrounding greenery, creating a harmonious, comfortable environment for relaxation and socializing.
Backyard Pool Area

This spacious backyard features a large rectangular swimming pool with a playful slide and a built-in basketball hoop. Surrounding the pool is a wide, light-colored concrete deck with multiple lounge chairs and a sizable umbrella providing shade. Adjacent to the pool, a raised patio area includes a circular fire pit surrounded by Adirondack chairs, enhancing outdoor social gatherings. Mature trees and a stone wall add natural beauty and privacy. The patio also hosts a bar and grill area, perfect for entertaining. The open layout offers unobstructed views of the expansive green lawn and distant rolling hills beyond the property.
Listing Agent: Jordan Connett of Connett Real Estate via Zillow
