
This stunning waterfront property located on Ono Island in Orange Beach, Alabama, exemplifies a blend of coastal and modern architectural styles with its clean lines, large columns, and shingle siding. Listed at $3,200,000, this expansive residence offers five spacious private bedroom suites, including an elegant primary suite with dual walk-in closets and a private guest suite. Set on a picturesque waterfront plot with panoramic southern views overlooking Old River, Florida’s Perdido Key State Park, and the Gulf of America, this property is ideal for enjoying the serene Ono Island lifestyle. The outdoor amenities are exceptional, featuring a saltwater gunite infinity pool, a private dock with a spacious boathouse, and extensive terraces designed to maximize the stunning water views nearly from every room.
Main floor layout

This layout showcases a well-organized floor plan with clearly defined living spaces. The entry foyer, measuring approximately 7’4″ by 7’11”, opens into the main living room which is spacious at nearly 18 by 18 feet. Adjacent to the living room is a bedroom with a closet and a moderately sized bathroom. Two garages flank the home; one larger garage measures nearly 14 by 25 feet while the other extends longer at about 11 by 31 feet, providing ample vehicle or storage space. Additional features include a laundry room with storage and closet spaces, enhancing functionality and convenience. The stairs lead to an upper level, indicating a multi-story design.
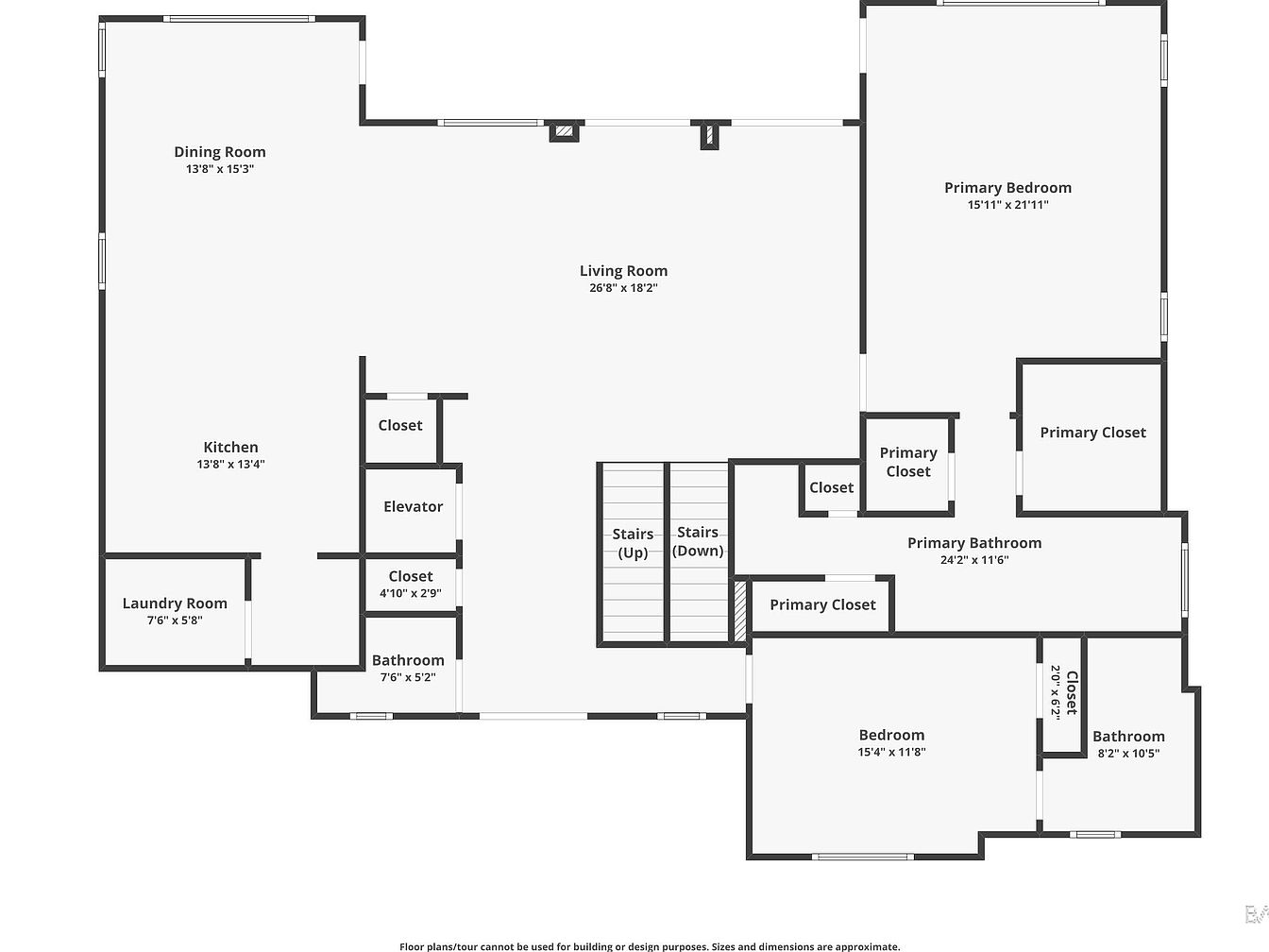
Upper Floor Layout

This spacious layout highlights key living areas, including a large living room centrally located measuring 26’8″ by 18’2″. Adjacent is a dining room (13’8″ x 15’3″) perfect for family gatherings, opening to the kitchen (13’8″ x 13’4″) with close proximity to a functional laundry room. The primary bedroom (15’11” x 21’11”) features multiple closets for ample storage and an expansive primary bathroom (24’2″ x 11’6″). A secondary bedroom and bathroom provide additional private space. The layout integrates multiple closets and an elevator, enhancing both convenience and accessibility throughout the home.
Third Floor Layout

This upper floor features two spacious bedrooms with generous dimensions; the left bedroom measures approximately 13’10” by 20’5″, and the right one approximately 16’5″ by 20’5″. Each bedroom includes a dedicated bathroom and closet space, ensuring ample storage and privacy. Central to the layout is a large open area that overlooks the level below, providing a sense of openness and connectivity within the home. The stairwell, located towards the bottom middle of the floor plan, leads downstairs. This floor plan reflects a balanced combination of private and communal spaces designed for comfort and functionality.
Living Room with Waterfront View

This bright living room features an open layout with soaring ceilings and expansive windows that frame stunning waterfront views. The palette is predominantly neutral, with soft beige marble floors and white walls, creating an airy, coastal vibe. A large, light gray sectional anchors the space, complemented by a deep blue velvet armchair adding a rich pop of color. A side table with a striking blue glass lamp adds subtle decor. Beyond the living space, a dining area with classic wooden chairs and pendant lighting enhances the openness, while glass doors lead to a balcony overlooking serene waters.
Dining Area with Water View

This charming dining space is designed to maximize natural light and scenic water views through expansive, floor-to-ceiling windows. The round wooden dining table features a polished surface with a central rotating component, surrounded by six vintage-style chairs with distressed white paint and soft striped upholstery, blending rustic and coastal aesthetics. The cream-colored tile flooring complements the light walls, enhancing the airy atmosphere. A distressed white sideboard with simple black hardware holds coastal decorative pieces, including a vibrant blue glass vase. Contemporary pendant lights hang above, adding a touch of modern elegance to this serene waterfront setting.
Kitchen and Dining Area

This kitchen features rich wooden cabinetry with intricate details and a polished dark granite countertop, creating a warm and elegant ambiance. Stainless steel appliances, including a built-in microwave and a six-burner Wolf stove with red knobs, add a modern touch. The backsplash combines white tiles with subtle adornments, complementing the cabinetry. The floor is tiled in a light cream marble, contributing to the sense of spaciousness. Natural light streams in from the adjacent open dining area, which offers a serene water view through large glass doors, making the space both functional and picturesque.
Laundry Room Appliances

This compact laundry room features modern front-loading LG washer and dryer units in a crisp white finish that complement the surrounding cabinetry. White beadboard cabinets with round silver knobs provide ample storage above and beside the appliances, maintaining a clean and organized appearance. The black granite countertop on white cabinetry offers a sleek workspace for folding or sorting laundry. A wooden rod mounted on white brackets with three roll holders above adds functional storage for hanging clothes or supplies. The room’s bright white walls, combined with the polished surfaces, create a fresh and inviting atmosphere.
Master Bedroom with Waterfront View

This spacious master bedroom features a serene color palette of soft whites and muted grays, creating a calming coastal ambiance. A large, wooden bed frame in a weathered gray finish anchors the room, adorned with an array of plush pillows in shades of white, light blue, and teal. Matching nightstands with elegant lamps flank the bed, enhancing the symmetry and style. Two patterned armchairs face a wide window, offering a stunning view of the water and greenery beyond. A ceiling fan in dark bronze adds contrast to the bright white ceiling, while abundant natural light brightens the neutral carpeted space. Subtle wall art with aquatic themes complements the tranquil setting.
Master Bathroom Details

This master bathroom pairs classic elegance with functional design. Rich, dark wood cabinetry with paneled doors dominates the space, offering ample storage and framing the twin vanity sinks topped with smooth reddish-brown countertops. Ornate mirrors with decorative edges hang above each sink, complemented by a row of polished silver fixtures and softly glowing, bell-shaped light shades. A white clawfoot bathtub with vintage feet sits beneath a large window fitted with white blinds, allowing natural light to fill the room while maintaining privacy. The floor features large neutral-toned tiles, enhancing the warm and inviting atmosphere.
Bathroom Bathtub Area

This bathroom features a spacious, clawfoot soaking tub positioned beneath a large, double-pane window with white blinds that allow for controlled natural light. The surrounding walls are painted in a crisp, clean white, enhancing the room’s bright and airy ambiance. On the right, a vanity with warm, rich wooden cabinetry is topped with a polished granite countertop in earthy tones, adding warmth and texture to the space. The elegant faucet fixtures and accents are in brushed metal, complementing the sophisticated yet restful atmosphere. A deep purple towel draped over the tub adds a subtle pop of color and cozy touch.
Bedroom Oasis

This serene bedroom features a soft, neutral color palette dominated by whites and light grays, creating a calm and inviting atmosphere. The room is furnished with a sturdy, rustic-style wooden bed frame, complemented by matching nightstands and a dresser, all in a distressed white finish that enhances the cozy charm. Luxurious bedding with delicate floral patterns echoes the tranquil aesthetic. A ceiling fan and recessed lighting offer functional modern touches, while a large window allows natural light to brighten the plush carpeted floor. Subtle decorative elements include a framed bird artwork and a potted plant, adding warmth and personality.
Bathroom Vanity and Shower

This bathroom combines classic and modern elements with a clean layout. A white bathtub with a showerhead is positioned against a beige tiled wall, offering a functional bathing area. Next to it, a white toilet stands beneath a small towel rack holding a neatly folded white towel. The vanity is made from rich, dark wood with multiple drawers and a white marble countertop, which includes subtle gray veining for added elegance. Above the countertop hangs a large, ornately framed mirror flanked by two brass wall sconces with frosted glass shades, casting a warm glow and enhancing the space’s inviting atmosphere.
Bedroom with Waterfront View

This bedroom embraces a serene coastal aesthetic with a fresh, all-white color scheme that maximizes natural light. A neatly made bed dressed in white linens and accented with blue and white marine-themed pillows sits to the left, complementing the soft beige carpet beneath. The room is minimally furnished, featuring a classic wooden dresser with brass handles on the right, adding warm contrast and timeless charm. Recessed ceiling lights and a ceiling fan provide modern functionality. A small window at the far end perfectly frames a stunning waterfront view of blue water and palm trees, inviting tranquility into the space.
Bathroom Vanity and Tub

This bathroom blends simplicity with functional elegance. The vanity features a rich, brown marble countertop paired with white cabinetry that offers ample storage. Above it, an oval mirror framed with brushed metal complements the triple-light fixture, casting soft illumination. The tub and shower area is clean with a neutral beige surround and matching brushed metal fixtures, providing a subtle contrast to the white walls and fixtures. White towels hanging on the sleek towel bar add to the fresh, bright ambiance. The overall design is minimal yet classic, creating a welcoming and practical space.
Cozy Bedroom Nook

This serene bedroom area features a calming palette of white walls paired with deep blue textiles for a nautical-inspired ambiance. A wooden bedframe with matching headboard is dressed in rich blue bedding and coordinating pillows decorated with coral and sea patterns. To the left, a built-in white bench offers cozy seating with blue and patterned cushions resting against the wall. Opposite the bed, a sturdy wooden chest of drawers adds warmth and storage. Recessed lighting and a ceiling fan overhead provide comfort and brightness. The small window at the room’s end offers a picturesque water view, framing natural light beautifully within the space.
Bathroom Vanity & Shower

This bathroom combines functionality with a clean, bright aesthetic. The white walls and cabinetry set a fresh, inviting tone, complemented by a warm brown marble countertop that adds a touch of natural elegance. An oval mirror hangs above the sink, illuminated by a stylish three-light fixture with frosted glass shades. The shower/tub area features beige wall panels with oil-rubbed bronze fixtures, harmonizing with the faucet finishes. A simple white shower curtain with horizontal navy stripes injects subtle patterning, while two framed artistic prints on the wall enhance the space’s refined coastal vibe. Overall, the layout is compact yet thoughtfully designed.
Living Area and Dining Nook

This cozy living area seamlessly blends into a small dining nook, creating an inviting open space. The white walls and ceiling enhance natural light, complemented by a white ceiling fan with a classic design. The seating arrangement includes a dark blue sofa adorned with matching throw pillows and a light gray upholstered armchair with an ottoman. A striking blue and white abstract area rug anchors the space, echoing the coastal theme seen in the boat artwork on the wall. The dining nook features a round wooden table surrounded by white slatted-back chairs. Warm side lamps and leafy green plants add a touch of softness to the earth-toned tile flooring, balancing comfort with coastal charm.
Kitchen Mudroom Entry

This space combines a functional kitchen corner with an entryway or mudroom-like area. White cabinetry with shaker-style doors offers ample storage above and below a sleek black granite countertop. A small, under-counter stainless steel refrigerator and built-in microwave add practicality while maintaining a clean aesthetic. The backsplash composed of square tiles in pale blue, black, and warm tan complements the similarly colored floor tiles, which are bordered with a decorative pattern. The white walls and trim provide a crisp, airy atmosphere, highlighted by an elegant chandelier overhead. A door with sheer covering allows natural light to softly illuminate the entry zone.
Bedroom Overlooking Patio

This serene bedroom features a rustic wooden bed frame with intricate molding paired with matching nightstands. The bedding includes a striped blue quilt and vibrant blue accent pillows, complementing the bold cobalt blue accent paint that crowns the upper wall. The lower wall is finished in white beadboard paneling, providing textured contrast and a coastal feel. A white ceiling fan and recessed lighting add subtle modern touches. Large sliding glass doors reveal an inviting outdoor patio with lounge chairs, beautifully connecting indoor relaxation with scenic waterfront views for an airy, peaceful retreat.
Backyard and Pool Area

This spacious backyard centers around a stylish rectangular pool with rounded edges, set into a neatly tiled patio area. The poolside space includes lounge furniture, ideal for relaxing or entertaining. The house’s rear façade showcases light blue siding contrasted with white trim and columns, offering a coastal aesthetic. Two covered balconies on the upper floors provide shaded outdoor seating while framing expansive windows with ample natural light. Lush green grass surrounds the pool, bordered by a simple black fence and complemented by palm trees and neighboring coastal-style homes, contributing to a serene beachside ambiance.
Poolside Seating Area

This serene poolside area features two elegant armchairs with light cushions and decorative, curved black metal armrests facing a circular black metal fire pit table. The seating arrangement is framed by tall white columns that add a classic architectural touch. The turquoise pool water extends towards a black metal fence enclosing a grassy yard, beyond which lies a peaceful waterfront view with docks and boats. The natural greenery and blue sky create a tranquil and refreshing atmosphere, offering a perfect blend of outdoor comfort and scenic coastal charm.
Poolside Waterfront View

This serene outdoor area features a crystal-clear swimming pool with a gently curved edge bordered by a natural stone deck. The pool overlooks a lush, green lawn that meets a black metal fence, beyond which lies a tranquil waterfront scene with piers and covered docks extending into calm waters. Tall pine and palm trees frame the horizon under a bright blue sky, enhancing the coastal vibe. Comfortable cushioned lounge chairs with black armrests invite relaxation, seamlessly merging comfort with nature, making this a perfect leisure spot blending modern amenities with picturesque water views.
Private Waterfront Dock

This long, sturdy dock extends into calm waters, framed by tall wooden posts capped with white protective covers. The dock walkway is constructed of durable, light-colored slatted material, promoting safety and grip. At the end, a covered gazebo-style structure offers shaded space for relaxation or boat docking. On either side of the main dock, additional covered slips house boats and seating areas, emphasizing an active waterfront lifestyle. The vibrant blue sky and water create a fresh, inviting atmosphere, highlighting the dock’s perfect harmony with its natural, scenic surroundings.
Want to see more from Remodr?

Drop a comment below, share this with your friends and family, and don’t forget to follow us for more fresh ideas, updates, tips, and home trends.
Listing Agent: Lawanna & Johnny Sharpless Team of Bellator RE LLC Orange Beach via Zillow
