
This luxury estate in Henderson, Nevada, is a beautifully crafted home featuring a contemporary architectural style with Mediterranean influences, evident in its textured stone facade, stucco walls, and a tile roof. Built recently as indicated by the 2025 photo watermark, this home showcases modern upgrades and high-end finishes. The property is listed at $1,294,500. The gourmet kitchen is a chef’s delight, equipped with stainless steel appliances including two convection ovens, a warming drawer, a wine fridge, granite countertops, and a large central island with a breakfast bar and nook. The family room boasts large, picturesque windows that provide serene views of the landscaped backyard and a cozy fireplace. This residence includes a versatile office space that doubles as a potential sixth bedroom with its own closet. The home theater features a custom media wall and a private balcony. The primary suite offers a luxurious retreat with a sitting room, fireplace, dual walk-in closets, a jetted tub, a shower, and breathtaking views. All secondary bedrooms have direct access to bathrooms, including a casita with a private entrance. The property offers several upgraded features such as a drive-through porte-cochere, a spacious motor court ideal for iron gate installation, a three-car garage plus storage, EV charging, central vacuum system, water softener, wrought iron staircase, security alarm system with cameras, and 2×6 inch exterior walls for enhanced insulation. The backyard is an entertainer’s paradise with lush landscaping, two covered patios, synthetic grass, and wrought iron view fencing, providing a perfect blend of style and function for outdoor living.
Floor Plan

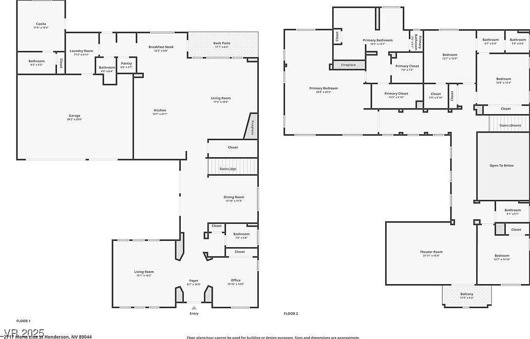
This two-level floor plan reveals a spacious, well-organized home with clearly defined living, sleeping, and utility areas. The first floor centers around an open-concept kitchen, breakfast nook, and large living room with a fireplace, flowing seamlessly to a back patio. A formal dining room, office, foyer, and an additional living room add versatility to the layout. The attached garage and casita with bathroom provide extra space. Upstairs holds a vast primary bedroom suite with dual closets and bathrooms, three more bedrooms, two additional bathrooms, a theater room, and a balcony overlooking the open space below. Multiple closets and storage areas are incorporated throughout for convenience and functionality.
Living Room

This living room features a balanced layout centered around a flat-screen TV mounted on a mid-century modern wooden media console. Soft beige walls and matching neutral-toned sofas and armchairs create a calming and inviting atmosphere. The seating is complemented by blue patterned throw pillows that add subtle color without overwhelming the space. Two tufted round ottomans in front provide additional seating or footrests. Large windows with white plantation shutters wrap around two walls, flooding the room with natural light. A vintage-style area rug with intricate patterns grounds the furniture, while a tall green plant adds a natural touch in the corner.
Dining Area beside Staircase

This elegant dining area is positioned adjacent to a staircase with rich wooden steps and intricate wrought iron railings, creating a refined centerpiece. Creamy white walls and high ceilings enhance the spaciousness, while a grand wrought iron chandelier provides a classic touch above the dark wood dining table. The table is surrounded by six tufted, upholstered chairs in soft beige, complementing the neutral palette. A large window with white plantation shutters allows natural light to flood the space, highlighting the clean lines, cream floor tiles, and a subtle patterned rug underneath. A green potted plant adds a splash of natural color, balancing the sophisticated yet inviting ambiance.
Gourmet Kitchen

This spacious kitchen features a large central island topped with a polished granite countertop, perfect for casual dining or meal preparation. The island faces a wall of rich, dark wood cabinetry with an array of upper and lower storage options, contrasted by light beige walls and a matching tiled floor that extends throughout the open floorplan. Stainless steel appliances, including a modern oven, microwave, and refrigerator, add a sleek, contemporary touch. Three elegant pendant lights hang above the island, complementing the recessed ceiling lights. The area opens towards a dining nook featuring a decorative chandelier, emphasizing an inviting, cohesive design.
Dining

This cozy dining nook highlights a round table with a marble top, surrounded by four sleek, modern gray chairs that contrast tastefully with the soft beige walls. The space benefits from natural light streaming through a large window adorned with a bamboo roman shade, offering a calming view of the outdoors. Above, a wrought iron chandelier with warm-toned lampshades adds an elegant yet rustic touch. The beige tiled floor is complemented by a large round area rug that anchors the seating area. A small opening to a nearby kitchen or pantry area is visible, enhancing flow in this intimate and inviting space.
Living Room

This spacious living room features a neutral color palette with soft beige walls and light tile flooring that enhances natural light. The seating arrangement includes a large white sofa paired with two matching armchairs and a cushioned ottoman, all sitting atop a patterned rug that adds subtle texture. A modern ceiling fan with wooden blades hangs above, while large windows with woven wood shades offer views of the outdoors. The built-in fireplace with a classic stone surround creates a cozy atmosphere, complemented by a mounted flat-screen TV set against a recessed wall niche for media entertainment. Decorative elements include a glass coffee table adorned with a floral centerpiece and plush throw pillows that add warmth to the minimalist design.
Bathroom Vanity and Shower

This bathroom features a tasteful blend of traditional and modern elements. The dark wood vanity has paneled cabinet doors with elegant metal knobs, topped by a smooth, beige marble countertop that incorporates an oval white sink. Classic oil-rubbed bronze fixtures, including the faucet and shower hardware, complement the warm tones. A large mirror above the sink enhances the sense of space and visibility. The shower, enclosed in clear glass with a black metal frame, showcases a matching beige marble tile surround and a small built-in soap niche. The light walls and natural lighting create a clean and inviting atmosphere.
Living Room

This living room offers a balanced blend of classic and contemporary design elements. The space is anchored by a large, caramel-brown tufted leather sofa on one side, paired with two ivory tufted armchairs that provide contrast and softness. The floor features rich, polished hardwood complemented by a plush, textured cream area rug with a subtle diamond pattern. The striking walls are adorned with bold, wavy red panels that add dynamic color and texture, framed by muted neutral borders. The entertainment wall showcases a built-in dark wood media center with sleek cabinetry, flanked by recessed niches for accent lighting, creating a focal point centered around the flat-screen TV. The ceiling and ambient lighting enhance the room’s warm and inviting atmosphere, making it a perfect area for relaxation and socializing.
Master Bedroom Fireplace

This spacious master bedroom features neutral walls and beige carpet, creating a warm and inviting atmosphere. The large bed, dressed in soft white bedding and resting on a patterned blue area rug, anchors the room between two windows fitted with white plantation shutters, allowing controlled natural light. A prominent stone fireplace with a simple mantel adds elegance and coziness, complemented by modern abstract art above it. The layout includes a dedicated work nook in a well-lit alcove, furnished with a sleek desk and chair. Ceiling details and a central fan/light fixture enhance comfort and style in this serene retreat.
Bathroom with Scenic View

This spacious bathroom balances functionality and tranquility, highlighted by a large bathtub positioned beneath a wide picture window that frames a serene outdoor landscape. The neutral color palette features soft beige tile flooring and creamy walls pairing seamlessly with the sleek, light marble surround of the tub. Dark wood cabinetry under the expansive vanity offers rich contrast, while multiple mirrors and recessed lighting brighten the space. The clean, minimalist architectural details—including crown molding and a simple door with black hardware—enhance the airy, luxurious ambiance of this serene retreat.
Bathroom Vanity Area

This spacious bathroom features a large corner vanity with warm, rich wood cabinetry that contrasts beautifully with the light beige countertops. The countertop extends into a dedicated makeup or sitting vanity area beneath a generous, wall-to-wall mirror, amplifying the sense of openness and light. The floor is tiled with large polished beige tiles that seamlessly complement the countertop, while the walls are painted in a soft, neutral tone. To the left, a glass-enclosed shower adds modern functionality, and a white paneled door with dark hardware adds clean, classic architectural detail to the space. The recessed lighting overhead offers bright and even illumination, enhancing the room’s inviting and elegant atmosphere.
Bedroom

This bedroom features a neutral color palette with soft beige walls complemented by crisp white trim and molding that add subtle architectural interest. A large window with white plantation shutters allows natural light to gently fill the room, offering outside views while maintaining privacy. The carpeted floor in a warm sandy tone enhances comfort and coziness. The ceiling light fixture is simple yet elegant, providing ambient illumination. A doorway on the right leads to an adjacent bathroom, making this bedroom both functional and inviting for rest and relaxation.
Functional Bathroom

This bathroom features a compact yet elegant layout with a dark wood vanity providing a rich contrast to the light cream countertop and white ceramic sink. The faucet and fixtures are finished in oil-rubbed bronze, complementing the vanity hardware. Adjacent to the vanity is a white toilet, positioned alongside a bathtub with a sliding glass door framed in matching dark metal. The bathtub walls are tiled in a neutral beige tone, enhanced by natural light from a high horizontal window that brightens the space while maintaining privacy. The overall design is classic and warm, combining functionality with refined aesthetics.
Lounge Area

This spacious lounge area features a high, wood-paneled vaulted ceiling with exposed beams, creating an open and inviting atmosphere. The floor showcases a beautiful patterned tile with earth tones, seamlessly blending large square tiles and mosaic strips. Plush seating includes a mix of blue armchairs and a beige sofa, arranged around a central wooden coffee table. A built-in wooden bookshelf with warm, dark finishes displays decor pieces, adding sophistication. Large glass doors and arched windows fill the room with natural light, while a stone fireplace with bench seating offers warmth and a rustic touch.
laundry Room with Sink

This laundry room presents a clean, functional layout with a modern, minimalist aesthetic. White cabinetry, both above and below the countertop, offers ample storage space, maintaining an uncluttered look. The white front-loading washing machine and dryer blend seamlessly with the cabinetry, enhancing the room’s cohesive design. A built-in sink with a simple faucet is integrated into the long white countertop, providing convenience for handwashing or pre-treating garments. Neutral beige walls complement the light stone flooring, while a single window above the sink allows natural light to brighten the space, adding to its fresh and airy feel.
Community Gym

This fitness room features a compact, functional layout with wall-to-wall mirrors that create a sense of spaciousness and allow for form checks during workouts. The ceiling boasts an industrial style with exposed ductwork painted in a cool blue tone matching the ceiling panels, which adds a modern, urban touch. The floor is covered in dark, durable rubber matting suitable for heavy exercise equipment and weights. A rack of hexagonal dumbbells and balance trainers sits by the large window, providing natural light and a scenic view of the outdoor pool area surrounded by lounge chairs and palm trees. The overall atmosphere is energetic yet inviting, perfect for both strength training and cardio routines.
Community Pool Area

This outdoor space features a spacious community pool alongside a circular hot tub bubbling gently in the foreground. The expansive concrete deck provides ample room for sunbathing and socializing, accented by tan cushioned lounge chairs and dining tables sheltered under cozy, rust-colored cabanas. Tall palm trees and manicured greenery border the area, creating a serene desert oasis ambience. The cloudy sky overhead adds dynamic contrast to the crisp blue pool water, enhancing the tranquil yet inviting atmosphere of this communal relaxation hub, perfect for leisure and gatherings.
Listing Agent: Michael L. Carlucci of BHHS Nevada Properties via Zillow
