
Listed for $1,995,000, this luxurious three-story Spanish/Mediterranean-style home, built in 2006, offers 7,630 square feet of living space on a 0.88-acre lot in Albuquerque, NM. It features four expansive bedroom suites, each with spa-like bathrooms and custom walk-in closets, totaling five full and two half bathrooms. The chef’s kitchen is equipped with premium stainless steel appliances and sleek countertops. Additional amenities include a recreation room with a wet bar, a state-of-the-art theater room, a third-floor gym with a covered balcony offering breathtaking mountain views, and two grand spiral staircases. The property also boasts a seven-car attached garage.
1. elegant exterior

The front facade of the house showcases a captivating architectural design, blending Mediterranean flair with timeless elegance. A prominent, rounded tower stands as the central focal point, adorned with arched openings that evoke a sense of classic charm. The covered entryway, supported by substantial pillars, features a curved roofline that creates an inviting and sheltered entrance. The earthy stucco exterior is beautifully complemented by a vibrant red tile roof, while arched windows add a touch of distinctive sophistication. These architectural elements harmoniously combine to create a home with exceptional curb appeal and a unique, enduring character.
2. Where is Albuquerque, NM?

Perfectly situated in a serene and sought-after neighborhood, the property offers breathtaking views of the surrounding landscapes. Residents enjoy easy access to nearby amenities, including shopping centers, restaurants, schools, and parks. The location is ideal for outdoor enthusiasts, with hiking trails and natural beauty just minutes away. Conveniently connected to major roads and highways, commuting to downtown Albuquerque or other areas is seamless. This area combines tranquility with urban convenience, making it a perfect choice for families or individuals seeking a peaceful yet accessible lifestyle.
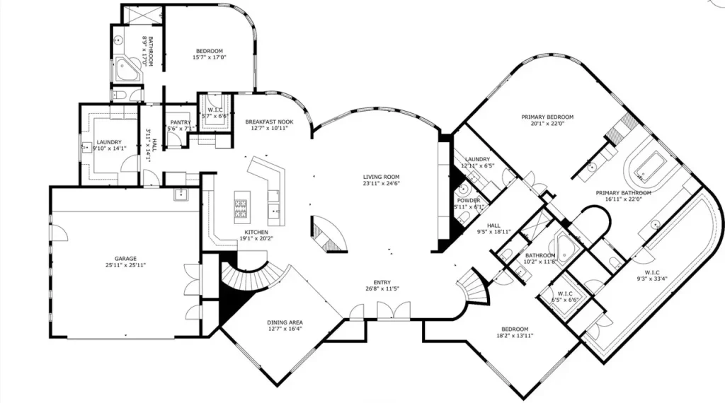
3. floor plan layout

The main floor of this Albuquerque home features a distinctive, flowing design. The entry foyer leads into a spacious living room, with a formal dining area situated to the left. A centrally located kitchen with an island connects to a breakfast nook. Practical elements include a pantry and a laundry room near the kitchen. One wing houses two secondary bedrooms with walk-in closets, sharing a bathroom, alongside another laundry area and powder room. On the opposite side, the private primary bedroom suite boasts a large walk-in closet, a luxurious bathroom with a separate tub and shower, and dual sinks. The layout emphasizes open living spaces with clearly defined private bedrooms and utility zones.
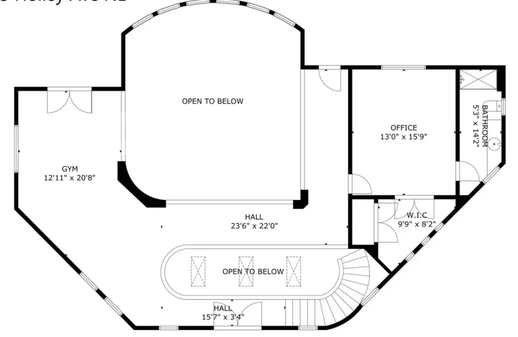
4. upper floor layout

The upper level of this Albuquerque home showcases a thoughtfully designed layout that emphasizes openness and functionality. Ascending the curved staircase leads to a striking upper hall that overlooks the grand entryway below, creating a sense of elegance and connection. To the left, a spacious gym offers the perfect setting for fitness enthusiasts, equipped to accommodate various exercise routines. Across the hall, a generously sized office provides a quiet and private workspace, ideal for productivity. A conveniently located bathroom ensures comfort and practicality near the office. One of the most remarkable features of this level is the dramatic double-height space that opens to the living room below, fostering an airy ambiance and seamless flow between floors. This design masterfully combines open spaces with dedicated functional areas, delivering both style and practicality.
5. basement layout

The basement level of this Albuquerque home offers significant recreational and functional space, highlighted by an exceptionally large garage capable of holding up to seven vehicles. Descending the curved staircase leads to a spacious recreation room, providing ample area for leisure activities. Adjacent to this is a dedicated theater room, perfect for home entertainment. The basement also includes substantial storage space for organization, a powder room, and a bathroom that are accessible from this level, adding convenience. This lower level is designed for entertainment, extensive vehicle storage, and practical utility.
6. Expansive Rear Facade and Garage

The facade showcases an expansive garage area, featuring three individual garage doors, hinting at significant vehicle capacity. Above the garage level, the home’s architecture presents a multi-story design with arched balconies and numerous windows, suggesting ample natural light within. The warm, earthy stucco exterior complements the surrounding landscape, while the varying rooflines add visual interest to the structure. A paved driveway leads up to the garages, providing convenient access to the property. The overall impression is of a substantial residence with substantial parking and a distinctive architectural style.
7. Grand Living Room

Upon entering the main entrance, a grand living room unfolds with soaring ceilings and an open, airy atmosphere. A striking floor-to-ceiling wooden entertainment center dominates one wall, housing a television and display shelves filled with decorative items. Comfortable seating arrangements include a caramel-colored leather sofa and unique white armchairs with curved frames, positioned around a modern coffee table. A warm fireplace with a stone surround and a decorative mirror above anchors another side of the room. Wrought iron railings line the upper-level balconies, overlooking the living space and enhancing the sense of vertical volume. The room is bathed in natural light, creating a welcoming and sophisticated ambiance.
8. classic Kitchen

The spacious kitchen features rich, dark wood cabinetry that extends along the walls and forms a central island with a built-in cooktop. Granite countertops offer ample workspace and complement the warm tones of the wood. Stainless steel appliances, including a built-in microwave and oven, provide modern functionality. A breakfast bar with ornate wooden detailing and several bar stools offers casual seating. The flooring is tiled in a warm, earthy tone, and pendant lights hang above the island and breakfast bar, providing focused illumination. Natural light filters through the windows in the adjacent dining area, creating a bright and inviting culinary space.
9. Inviting Dining

The dining area is defined by its warm hardwood flooring and light beige walls, creating a bright and inviting space. A patterned gray and white rug subtly delineates the dining space within the larger open floor plan. Natural light fills the area, complemented by the soft glow of an ornate, vintage-style chandelier hanging above. A large, framed abstract painting adds a touch of color and visual interest to one wall. The dining space seamlessly connects to an adjacent living area through a wide doorway, emphasizing an open and integrated design.
10. Primary Bedroom Retreat

The primary bedroom is a spacious retreat featuring neutral-toned walls and plush carpeting, creating a warm and inviting atmosphere. A prominent stone fireplace with an arched niche above serves as a focal point on one wall. A light-colored wooden bed with decorative carvings is positioned against another wall, flanked by a nightstand and lamp. A seating area with two dark armchairs and a round glass coffee table sits near a window, offering a cozy spot for relaxation. A ceiling fan with wooden blades is centered above, and a doorway leads to an en-suite bathroom, suggesting privacy and convenience.
11. Spa-Like Primary Bathroom

A luxurious and spacious area defines the primary bathroom, showcasing a multi-tiered, mosaic-tiled platform that cradles a modern, oval soaking tub beneath a curved architectural ceiling detail. A fireplace with a stone surround adds warmth and ambiance to the bathing area. Separate wooden vanities with granite countertops and ample cabinet space flank a large mirror with elegant lighting fixtures. The flooring is a sleek, dark tile, and a plush white rug adds a touch of softness. Natural light streams through wood-framed windows, and various plants throughout the bathroom bring a touch of nature indoors, creating a serene and spa-like environment.
12. Spacious Walk-In Closet

A spacious walk-in closet for the primary bedroom offers extensive storage solutions. White shelving units line the walls, providing ample space for folded clothing, shoes, and accessories. Hanging rods accommodate a variety of garments, neatly organized. A standalone wooden chest of drawers with multiple drawers sits in the center of the closet, offering additional storage. The closet is carpeted in a neutral tone, and overhead lighting illuminates the organized space. A wooden door provides access to this well-equipped dressing area.
13. Bright Guest Bedroom

Another bedroom in the house offers a cozy and bright atmosphere. Sunlight streams through a window, illuminating the neutral-toned walls and carpet. A bed with a light gray upholstered frame and soft bedding is the central piece. A small white nightstand with a lamp sits beside the bed. An arched doorway leads to what appears to be an en-suite bathroom or closet. A wooden door provides another exit or entry point to the room. The overall feel is simple, comfortable, and well-lit.
14. Functional Guest Bath

The guest bathroom offers a clean and functional design. A wooden vanity with a light-colored countertop and a vessel sink is prominent. A framed mirror hangs above the sink, with a leafy green plant adding a touch of freshness. A glass-enclosed shower is visible, along with a separate bathtub with a tiled surround. A tall wooden cabinet provides additional storage. The flooring is a light-colored tile, and a brown rug lies near the shower entrance. White walls and good lighting create a bright and welcoming space for guests.
15. Sunlit Bedroom Oasis

A bright and airy feel defines the third bedroom, featuring a large bay window that provides ample natural light and views. Comfortable bed with soft, neutral-toned bedding serves as the central piece. Two armchairs and a small table create a cozy reading nook within the bay window area. Ceiling fan with decorative blades is installed overhead. Sliding glass doors offer access to an outdoor space, further enhancing the room’s openness. Artwork adorns the light-colored walls, adding a touch of personality to the space.
16. Earthy-Toned Bath

A well-appointed bathroom serves the third bedroom, featuring warm, earthy tones throughout. A corner bathtub with a tiled surround offers a relaxing bathing option. A wooden vanity with a dark countertop and a unique vessel sink is complemented by an ornate mirror and lighting fixture. A glass-enclosed shower with tiled walls is also present. A textured glass block window allows natural light while maintaining privacy. The flooring is a coordinating tile, and a plant adds a touch of natural greenery to the space.
17. Tranquil Bedroom

A bright and inviting space defines the fourth bedroom, featuring two large arched windows that flood the room with natural light. A comfortable bed with neutral-toned bedding and decorative pillows is positioned against one wall. A round mirror and small wall-mounted shelves add subtle decor. A desk or shelf unit with two small, round ottomans sits beneath one of the windows, creating a study or dressing area. A potted plant adds a touch of greenery. The room is carpeted in a warm tone, contributing to its cozy atmosphere.
18. Functional Workspace

Located on the first floor, this office space is well-lit with natural light streaming through a large window offering outdoor views. Two separate desk areas, each with a computer setup and an office chair, suggest a shared workspace or individual stations. The room is carpeted in a neutral tone, creating a comfortable environment. A ceiling fan with a light fixture is installed overhead. A doorway leads to an attached bathroom, providing convenience. Woven baskets offer storage solutions, and subtle artwork adorns the walls, contributing to a functional yet pleasant workspace.
19. home gym

A dedicated home gym offers a variety of fitness equipment within a well-lit space. A weight bench sits on the carpeted floor, accompanied by a multi-station exercise machine near a window providing natural light and views. A dumbbell rack with various weights stands against a wall, along with yoga mats stored in a woven basket. Mirrored walls enhance the sense of space and allow for exercise form checks. Double doors lead to another area, possibly outdoors or another part of the house. Recessed lighting and a ceiling fan ensure a comfortable workout environment.
20. Serene Outdoors

A spacious balcony extends the living area outdoors, featuring tiled flooring and a partial roof structure with exposed beams. Comfortable outdoor seating, including a curved sofa and armchairs, is arranged around a small table, creating a relaxing lounge space. A built-in outdoor kitchen area with a grill is visible. A striking stone fireplace provides warmth and ambiance, extending the usability of the space into cooler evenings. Wrought iron railings enclose the balcony, offering safety and unobstructed views of the surrounding landscape, including distant mountains.
21. Basement Living & Entertainment Zone

The basement living area features neutral walls and carpet, creating a cozy and versatile space. A large, curved tan sectional sofa with decorative pillows serves as a focal point. A wooden coffee table sits in front of the sofa. In the background, a pool table provides entertainment, while a small dining set offers a spot for meals. There’s also a glimpse of a bar area. Recessed lighting and track lights illuminate the room. A staircase leads to another level. Potted plants add a touch of greenery.
22. Private Basement Cinema

The basement theater is designed for optimal viewing, featuring multiple black leather recliner chairs arranged for comfortable movie nights. Dark gray walls enhance the cinematic experience by reducing light reflection. Subtle illumination is provided by wall sconces, creating a cozy ambiance without distracting from the screen. The room is carpeted in a neutral tone, contributing to sound dampening and overall comfort. Double wooden doors offer a grand entrance and exit. Artwork adorns the walls, adding a touch of sophistication to the space.
23. Multipurpose Basement Storage

Located behind the lower-level garage, this storage area appears spacious with concrete flooring and white walls. A large, bright yellow toolbox with multiple drawers on wheels is a prominent feature. Various items are stored here, including a bicycle, cardboard boxes, and metal shelving units holding rolls of material. Overhead fluorescent lighting provides ample illumination for the space. The area seems functional for organizing and keeping various household or garage-related items. A doorway provides access to another part of the lower level.
24. Efficient & Bright Laundry Room

A functional laundry room offers ample storage with its extensive wooden cabinetry. Natural light fills the space through a window situated above a practical sink. Essential appliances, a washer and dryer, are conveniently placed side-by-side, ready for use. Neutral-toned tile flooring provides a durable and easy-to-clean surface. The room’s layout is designed for efficiency, ensuring laundry tasks can be performed with ease and organization. Overhead lighting supplements the natural light, creating a bright and usable area for household chores.
Listing Agent – Medina Real Estate Inc @ Keller Williams Realty
