
This remarkable home, known as “Preppers Paradise / Homestead,” is located in Palmyra, Nebraska, situated on the highest point of a spacious 5-acre plot just outside of Lincoln. This residence features a distinctive architectural style that blends rustic charm with modern design, showcasing multiple levels including a unique 3rd-floor watchtower and a rooftop deck, offering panoramic views that extend over 10 miles in every direction. The main level includes a large eat-in kitchen outfitted with high-end appliances and premium finishes, a dining area, a cozy living room, and a convenient powder bath. The primary bedroom boasts a full bath featuring an oversized soaker tub, a walk-in shower with multiple shower heads, and a spacious closet. The third floor offers a distinctive watchtower/observatory space, perfect for enjoying uninterrupted scenic views. The lower level basement expands the living space with another living room, two large bedrooms connected by a Jack and Jill full bath, an office, laundry area, and a dedicated storm shelter for safety and preparedness. Additional highlights include a wrap-around porch for outdoor enjoyment, ample room for a pool and an outbuilding, and many other possibilities for customization and expansion. This stunning home is listed at $999,500, providing a unique opportunity for comfortable, scenic living in a private retreat setting.
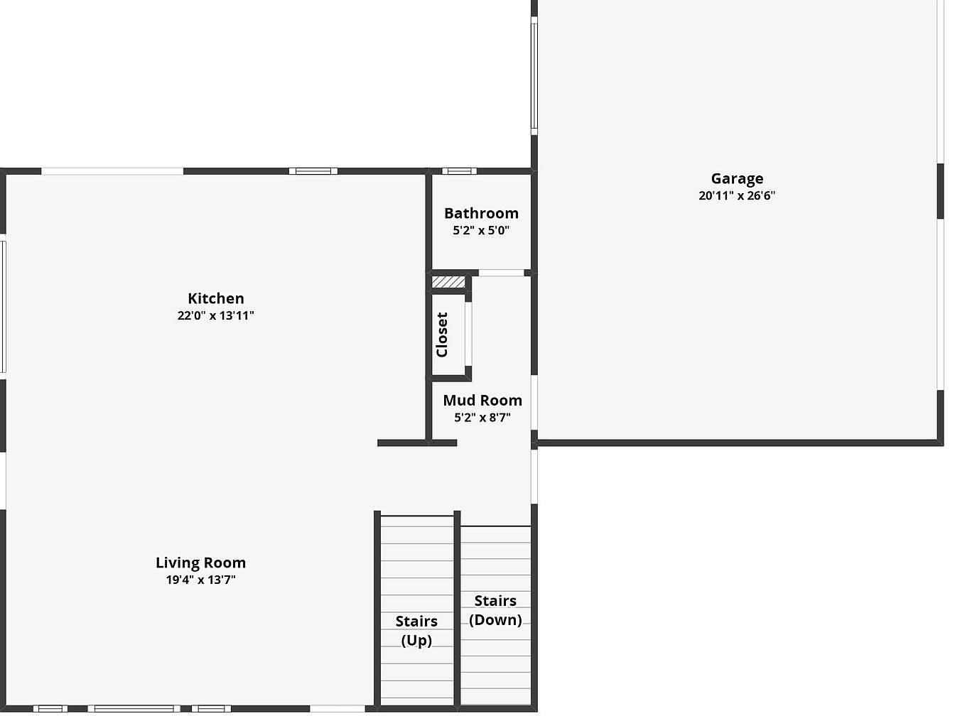
Main Floor Layout

This floor plan highlights a spacious open-concept living room and kitchen area, emphasizing easy flow and ample space for gathering. The living room measuring 19’4″ by 13’7″ is positioned adjacent to the expansive kitchen, which is 22’0″ by 13’11”, allowing for seamless interaction and entertaining. To the right, a conveniently located mud room provides access between the kitchen and the large garage, measuring 20’11” by 26’6″. A small bathroom and closet are situated near the mud room, enhancing functionality. Stairs connecting both upper and lower levels are centrally positioned for efficient circulation.
Upper Level Layout

This floor plan reveals a spacious upper level featuring a large Primary Bedroom (20’3″ x 13’8″) with direct access to a sizable Primary Closet and Primary Bathroom for convenience. Adjacent is a secondary Bedroom (16’2″ x 10’6″) with two closets providing ample storage. The design incorporates two sets of stairs—one leading up and one down—centered around an open area overlooking the lower floor, enhancing natural light and openness. The rooftop deck (12’8″ x 14’1″) offers an outdoor retreat. Overall, the layout balances private spaces with open, airy circulation.
Bonus Room Floor Plan

This bonus room layout measures approximately 13 feet 7 inches by 13 feet 11 inches, presenting a nearly square space ideal for flexible use. Positioned adjacent to the staircase leading downstairs, this room benefits from natural light streaming through multiple windows positioned on two walls. The architectural simplicity of the room offers a blank canvas, perfect for a variety of functions such as a home office, media room, or play area. The clear, open layout emphasizes versatility, while proximity to the stairs provides convenient access to other parts of the home.
Basement Layout

The basement features a well-organized layout with a finished main area measuring 13’1″ by 11’5″. Adjacent to this space is a dedicated office room (5’4″ by 7’5″), ideal for focused work or study. Two closets, each approximately 7’5″ wide, flank the basement space, providing generous storage. A laundry room (6’10” by 7’5″) and an unfinished storage room (5’10” by 7’5″) are also included, optimizing utility functions. The basement is accessible via a staircase that leads upward, connecting this versatile lower level efficiently with the rest of the home.
Exterior and Covered Patio

This modern farmhouse exterior features a sophisticated dark gray siding paired with rich wooden accents on the support beams and trims, creating a striking contrast. The layout includes a covered patio with a concrete floor, supported by sturdy wooden columns, providing a sheltered outdoor seating area perfect for relaxation. Adjacent to the patio, the driveway leads to a three-car garage with matching dark wood doors, seamlessly integrating form and function. Large windows and multiple levels with angular rooflines add architectural interest, while the expansive lawn and clear blue sky emphasize the open, rural setting of this stylish home.
Covered Porch Seating Area

This covered porch exudes rustic charm with modern touches, featuring a muted gray wood-look floor complemented by rich, dark wood posts supporting the roof. Black metal railings provide subtle contrast and safety without obstructing the expansive views of open fields and distant trees. The porch is furnished with black Adirondack-style chairs and loungers, arranged for relaxation and socializing. Classic lantern-style wall sconces flank a black-framed glass door, offering warm lighting and enhancing the inviting ambiance. The ceiling is finished in sleek, horizontal panels with recessed lighting, combining durability with aesthetic appeal for outdoor enjoyment.
Entryway and Mudroom

This space serves as a transitional entryway and mudroom, showcasing a mix of warm and neutral tones. The flooring transitions from rich hardwood in the main living area to large, dark gray tiles in the mudroom, enhancing functionality and durability. A wooden bench with black cabinetry offers practical storage and seating for shoe removal. White walls with clean trim create a crisp contrast against the dark hardware and cabinetry. Exposed wooden beams add rustic charm, while the hallway leads to what appears to be a bathroom, visible through the open door. The space balances utility with inviting, modern farmhouse aesthetics.
Open Kitchen and Living Area

This spacious kitchen features a blend of rustic and modern styling, highlighted by a large wooden island with a polished marble countertop, accompanied by four matching wooden stools. Cream-colored cabinetry with black handles frames stainless steel appliances including a refrigerator and stove, set against a subtle gray tiled backsplash. Two clear glass pendant lights hang above the island, adding an industrial touch. The warm wood flooring extends through to the adjacent living area, which includes leather recliners positioned towards expansive windows that flood the space with natural light. Exposed wooden beams and posts create a cozy, inviting atmosphere, while an open staircase leads up from the far side.
Kitchen Overview

This kitchen features a modern and inviting layout with ample cabinet storage in a soft off-white tone accented by matte black hardware. The countertops are a striking, natural stone marble with flowing grey veining, extending seamlessly along the U-shaped workspace and the island, which has a wood base adding warmth and texture. Stainless steel appliances, including a large refrigerator and a sleek oven, complement the subtle earthy beige subway tile backsplash that creates a calming neutral backdrop. The wood flooring contrasts with the clean white cabinetry, while recessed lighting and pendant fixtures provide bright, even illumination.
Dining Room with Scenic Views

This dining area boasts a warm, inviting ambiance with rich wooden floors and a sturdy, dark wood dining table surrounded by a mix of metal and wooden chairs with cushioned seats. Large windows on two walls flood the space with natural light and frame expansive countryside views, extending the sense of openness. Neutral cream walls and white trim provide a soft backdrop that complements the rustic wood and metal elements. A vintage glass-front cabinet displaying keepsakes sits in one corner, while an elegant chandelier with six glass shades hangs centrally above the table, adding classic charm.
Living Room with Scenic View

This bright living room offers a warm, inviting space framed by large windows that showcase expansive outdoor views. The space centers on a cozy sofa adorned with patterned and solid cushions in soft blues and neutrals, complemented by a dark reclining leather chair. A rustic wooden coffee table sits atop a muted, textured area rug with traditional motifs. The walls are painted a soft, neutral shade, enhancing the natural light. Architectural details include wood flooring, recessed lighting, and a modern ceiling fan in black. A black wood-burning stove with a stone surround anchors the room with a touch of rustic charm, while the staircase leads to an upper level, adding to the open, spacious feel.
Hallway and Bathroom Entry

This narrow hallway features a clean and modern design with neutral white walls and dark hardware accents on the doors, creating a striking contrast. On the left, a built-in mudroom bench with a rich wooden seat and matte black vertical paneling offers a practical and stylish storage solution, complete with black metal hooks for hanging coats or bags. The floor is covered with large, slate-colored tiles that add texture and durability. At the end of the corridor, a compact bathroom comes into view, showcasing a dark vanity with drawer storage, a white sink, and a wooden-framed mirror illuminated by two small lights, marrying rustic charm with contemporary style.
Powder Room Details

This compact powder room features a clean, modern design with a touch of rustic charm. The white walls and natural light from the simple window create an airy atmosphere while the black vanity with a textured stone sink offers a strong visual contrast. The vanity’s polished black countertop adds elegance, complemented by sleek silver fixtures. The wooden framed mirror above the sink introduces warmth and texture. Adjacent to the vanity is a white toilet with minimalistic lines. A personalized hand towel and a humorous sign on the window add character, making the space inviting and functional.
Upper Landing with Balcony Access

This upper landing area merges functionality with subtle elegance. Warm-toned hardwood floors lead to a glass door framed in white trim that opens to a covered balcony, offering a glimpse of the outdoors. The walls are painted in a soft, neutral beige that complements the natural wood hues. Black wrought iron balusters with a twisted design add visual interest and contrast to the staircase rails, which are finished in a rich wood tone. Recessed ceiling lights ensure a bright, inviting ambiance, while the white baseboards and door trims maintain a clean, classic architectural style.
Master Bedroom with Views

This spacious master bedroom features a calming light blue paint that complements natural wood flooring, creating a warm, inviting atmosphere. Multiple large windows wrap around the room, filling the space with abundant natural light and offering expansive rural views. The dark wood bedframe and matching antique-styled cabinets provide sophisticated contrast and ample storage. A flat-screen TV is mounted on the wall above the cabinet for entertainment, while two chairs and telescopes placed near the windows highlight the room’s connection with the outdoors. Recessed lighting and a sleek black ceiling fan enhance comfort and ambiance.
Bathroom and Walk-In Closet

This space combines an elegant bathroom and an adjoining walk-in closet in a split layout. The bathroom features a dark tile floor and walls around a sunken bathtub positioned under a large window, showcasing scenic outdoor views. A modern double vanity with white cabinetry and black countertops matches the dark hardware and fixtures, creating a sophisticated contrast against neutral walls. Adjacent to the bathroom, a door leads to a separate toilet area. The walk-in closet displays wooden flooring and ample shelving with hanging rods, neatly organizing a variety of clothing and accessories under gentle overhead lighting.
Bathroom with Scenic View

This bathroom provides a sleek and modern feel, centered around a large soaking tub framed by dark, textured tile that extends to the adjacent shower. The black stone countertop contrasts elegantly with white cabinetry and dual undermount sinks, creating a balanced monochromatic palette. A massive mirror spans the vanity wall, reflecting both the sophisticated lighting fixture above and the expansive, unobstructed window that offers tranquil views of open countryside. Clean lines, matte black fixtures, and a neutral taupe wall color add warmth while maintaining contemporary luxury and functional design.
Walk-In Closet

This walk-in closet features a functional layout with built-in wooden shelving units maximizing vertical space. On one side, there are hanging rods filled with neatly arranged clothing, showcasing an organized system with items sorted by type and color palette predominantly black, white, and neutrals. The opposite wall contains multiple open shelves dedicated to footwear, ranging from dress shoes to casual sneakers, emphasizing practical storage. The closet’s flooring contrasts warm wood tones with the adjacent dark, textured tile of the bathroom visible through a doorway. Walls and cabinetry outside the closet maintain a soft, neutral tone, enhancing the space’s clean, contemporary aesthetic.
Bathroom Vanity and Shower

This bathroom combines clean, modern lines with functional design. The shower features a sleek glass sliding door and white subway tile walls that create a bright and airy atmosphere. A recessed niche in the shower provides subtle storage without disrupting the minimalist look. Adjacent to the shower is a white vanity topped with a polished stone countertop that exhibits soft gray veining, adding an elegant touch. Above the vanity, a large framed mirror amplifies natural light from the window which looks out to the clear blue sky. Soft, neutral colors and brushed nickel hardware complement the sophisticated, tranquil ambiance.
Cozy Bedroom Retreat

This bedroom features a calming neutral color palette with soft sage-green walls complemented by rich hardwood floors. The white wooden bedframe is paired with a cozy striped duvet and two taupe-colored pillows, topped with a patterned throw for a touch of warmth. Flanking the bed are matching nightstands, each supporting a classic table lamp with a white shade. Two tall windows offer expansive views and natural light, framed with simple white trim. A modern black ceiling fan hangs overhead, and a small desk with a green cushioned chair sits quietly in the corner, creating a serene and practical sleeping space.
Radio Station Workspace

This compact, vaulted ceiling room serves as a specialized radio communication or hobby workspace. It stretches lengthwise with wide windows on both sides and flanking a central door, allowing panoramic views of rural surroundings and filling the space with natural light. The walls and ceiling are painted a muted gray, contrasting warmly with the rich wooden floors and rustic wood workbenches that run the length of the room. Multiple radio transceivers and communication devices are meticulously arranged along the counters, accompanied by maps and reference books, highlighting functionality. Cozy rugs soften the atmosphere, and a contemporary ceiling fan adds a modern touch to the practical, tech-focused aesthetic.
Balcony with Scenic View

This balcony presents a cozy yet open outdoor space highlighted by dark wood structural beams that contrast elegantly with the light gray exterior siding. The black metal railing adds a modern touch while ensuring safety without obstructing the expansive rural view. A black Adirondack chair paired with a small side table invites relaxation, perfectly placed to enjoy the endless horizon of open fields under a pale blue sky. The ceiling is finished in a sleek matte black with recessed lighting, blending rustic elements with contemporary design for a serene outdoor retreat.
Basement Lounge Area

This cozy basement lounge area is designed with a soft, neutral palette dominated by light beige walls and plush gray carpeting that extends up the adjacent staircase. The space features a vintage-style peach floral sofa that adds a touch of warmth and character against the understated backdrop. Recessed ceiling lights provide ample, even illumination, highlighting the clean lines and simple architectural details like the white trim and modern black door handles. An open doorway leads to a separate room furnished with a black office chair and desk, suggesting a functional blend of relaxation and productivity.
Home Office Workspace

This compact office nook features an L-shaped wooden desk with a weathered finish, fostering an efficient and organized work environment. Above the desk, two simple open shelves supported by white brackets provide practical storage for office equipment and décor, including a printer, fan, and vintage scale. The muted gray and natural wood tones give the space a utilitarian yet cozy feeling. A black leather swivel chair adds comfort and a slight contrast to the light gray walls, while minimal decor and functional elements keep the area clutter-free and conducive to productivity.
Bathroom Vanity and Shower

This bathroom features a dual-sink vanity with teal-blue cabinetry and a dark granite countertop, providing both style and functionality. Above the sinks is a large mirror framed in matching teal, illuminated by two modern light fixtures with exposed bulbs that brighten the space. The walls are painted a soft neutral color, enhancing the calm atmosphere. Adjacent to the vanity area is a shower with a patterned curtain in shades of blue and black on beige tile flooring. The open door reveals a glimpse into a carpeted adjacent room with traditional wooden furniture, hinting at a cohesive home design.
Laundry Room Sink Area

This laundry room corner integrates functionality with understated elegance. White paneled cabinetry lines the upper and lower walls, providing ample storage while maintaining a clean, cohesive look. A sleek black countertop contrasts with the cabinetry, emphasizing modern sophistication. The undermount sink with a high-arc chrome faucet offers practicality for hand-washing or cleaning tasks. Positioned behind the sink, a black-framed inset mirror adds depth and reflects light, enhancing the room’s brightness. The neutral wall color harmonizes with the overall palette, while black hardware on the cabinets ties everything together. The corner houses a white, front-loading washing machine, completing this efficient and stylish laundry space.
House Exterior and Garage

This expansive view captures the exterior of a modern farmhouse-style home situated in a rural landscape. The house features a multi-level roofline with dark gray shingles, complementing the charcoal horizontal siding on the walls. The attached two-car garage boasts rich, warm wooden doors with stone accents at the base, adding an inviting yet sturdy touch. The concrete driveway and walkways create a clean, functional layout around the home, while a fenced area and outdoor utility equipment are subtly integrated into the design. The muted, natural colors blend beautifully with the vast open fields surrounding the property.
Listing Agent: Ben Bleicher of BHHS Ambassador Real Estate via Zillow
