
This well-maintained two-story home in Monument, Colorado, exemplifies a rustic mountain architectural style with extensive use of natural wood siding and large windows that offer breathtaking mountain views. Located in the highly desirable Woodmoor neighborhood, the property is set on over half an acre, providing ample outdoor space and easy access to nearby open spaces and walking trails. Built originally in a traditional style with modern updates, the home features recent renovations such as newer decks added in 2021 and 2023, a new roof installed in 2019, a furnace and air conditioning unit updated in 2017, and a new water heater from 2021. Inside, the home showcases beautiful wood flooring on the main level with newer carpeting on the upper and lower floors. The spacious kitchen includes granite slab countertops, recessed lighting, and modern appliances, complemented by a breakfast nook that opens onto a private grilling deck. The formal dining room opens to a deck with mountain views, while a formal living room with built-in bookshelves offers a charming flexible space. The main level also includes an office that can serve as a sixth bedroom and access to a laundry room connected to an oversized two-car garage with overhead storage. The primary suite features crown molding and a remodeled bathroom with a soaking tub and walk-in shower, while the upper floor houses three additional bedrooms and a full bath. The finished walk-out basement offers a large family room with walk-out access, a junior suite, and two oversized storage spaces, one currently used as a home gym. Additional home features include Milgard windows, 9-foot ceilings in the basement, and a steam humidifier installed in 2023. Priced at $915,000, this home blends comfort, convenience, and a stunning Colorado setting, with quick access to I-25, the Air Force Academy, and top-rated District 38 schools.
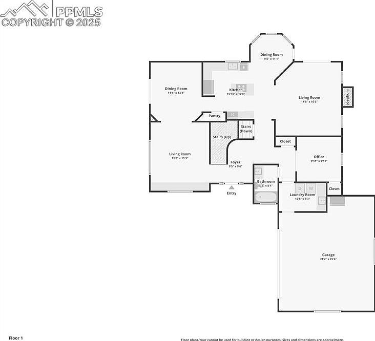
main floor layout

This floor plan presents a spacious and well-organized layout for the main level of a home. It features two distinct dining areas adjacent to a large, central kitchen with ample countertop and cabinet space. The living rooms on either side provide versatility in seating and entertainment. A foyer at the entry invites guests into the home, leading to stairs connecting to other levels. Additional functional spaces include an office, a convenient laundry room adjacent to the garage, and a bathroom centrally located for easy access. Closets are thoughtfully placed for storage, and the overall design encourages smooth flow between rooms.
Second Floor Layout

This second-floor layout features a spacious primary bedroom with an adjoining large primary bathroom complete with dual sinks, a bathtub, and a wide walk-in closet. Adjacent to the primary suite is an office space, perfect for working from home, which includes two closets for ample storage. Two additional bedrooms sit on the opposite side of the floor, both equipped with multiple closets for convenience. A shared bathroom with a tub and dual sinks serves the secondary bedrooms. The stairs at the center lead down, with an open area overlooking the floor below, creating an airy, connected feel throughout the home.
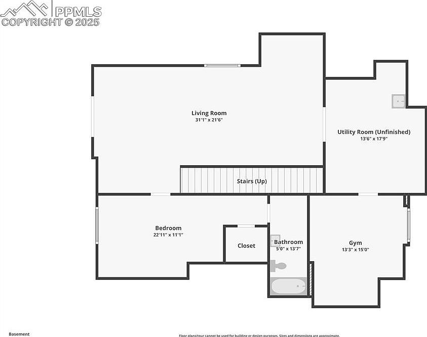
Basement Floor Plan

This basement layout is thoughtfully designed to balance functionality and comfort. The space includes a large living room area measuring over 31 by 21 feet, providing ample room for relaxation or entertainment. Adjacent to it is an unfinished utility room, ideal for storage or future customization. The basement also features a spacious bedroom with an attached closet and a bathroom, which includes a full bathtub. A dedicated gym area adds value for fitness enthusiasts. The floor plan efficiently separates living, workout, and utility spaces while maintaining easy access through a central stairway.
Cozy Reading Nook

This inviting corner radiates tranquility, ideal for reading or quiet relaxation. Built-in dark wood bookshelves flank a large window seat with soft cushions, blending function with comfort. The neutral beige walls harmonize with the cream-colored tufted sofa, creating a warm yet sophisticated palette. Natural light floods the space through expansive windows, highlighting the subtle patterns on the light area rug and the smooth wood flooring. A sleek, modern floor lamp adds both style and task lighting. Overhead, a classic ceiling fan with wooden blades maintains comfort while adding a traditional touch to the clean-lined design.
Dining Room Details

This dining area features a cozy yet elegant ambiance with a warm wooden round table surrounded by four dark leather chairs accented with nailhead trim. The room is illuminated by a wrought iron chandelier with five glass pendant lights, hanging from a tray ceiling with a subtle golden textured finish that adds depth and warmth. Neutral beige walls provide a soft backdrop, complemented by a framed abstract seascape painting that introduces calming blues and whites. Adjacent to a large sliding glass door, the space enjoys abundant natural light and opens to a balcony, blending indoor and outdoor living seamlessly. A dark wood china cabinet matches the table, enhancing the traditional feel, while hardwood floors unify the look with timeless charm.
Open Kitchen and Living Area

This open-concept space combines a bright kitchen with a cozy living area, featuring warm wood floors throughout. The kitchen showcases a large central island with a granite countertop and built-in stovetop, accompanied by two modern black bar stools. White cabinetry contrasts softly against the beige brick-style backsplash and warm-toned countertops. A wide window above the sink bathes the space in natural light and offers serene views of greenery outside. Adjacent to the kitchen, the dining area enjoys a bay window with a hanging crystal chandelier. The living room boasts comfortable brown leather seating, a white stone fireplace with a mounted flat-screen TV above, and ample windows that invite in more daylight. Archways and neutral walls unify the design in a welcoming, airy atmosphere.
Kitchen Island and Workspace

This kitchen features a spacious central island topped with a light beige granite countertop, housing a built-in gas cooktop. Surrounding cabinetry is painted a soft, muted white, creating a clean, bright ambiance that complements the warm, natural wood flooring. Stainless steel appliances, including a double oven and French-door refrigerator, add a modern touch contrasted with classic cabinet designs. A cozy nook with a small built-in desk and cushioned stool offers a practical workspace. Neutral tones dominate the backsplash and walls, while recessed lighting ensures the space is well-lit and inviting, blending functionality with timeless style.
Dining Nook with Patio Access

This cozy dining nook is bathed in natural light from three large windows and a glass door leading to an outdoor patio, offering serene views of lush greenery. The space features warm, light-toned wooden flooring and soft beige walls that create a calm, inviting atmosphere. A simple wooden dining table with four matching chairs, each with dark leather cushions, sits centered beneath an elegant chandelier with crystal accents, bringing a touch of sophistication. The airy layout, coupled with the seamless indoor-outdoor flow, encourages casual meals as well as social relaxation while enjoying nature.
Living Room and Kitchen View

This inviting living room features warm earth tones with brown leather sofas adorned with patterned throw pillows, creating a cozy seating area. A natural fiber rug complements the hardwood floor, enhancing the room’s warm ambiance. The white brick fireplace adds rustic charm and balances the space with its contrasting texture. Adjacent to the living area, the kitchen is visible through a graceful archway, showcasing white cabinetry, a built-in oven, and a breakfast bar equipped with stools. Soft beige walls and crown molding unify the space, while a ceiling fan adds modern functionality. The décor seamlessly blends comfort and elegance for an inviting home environment.
Master Bedroom Overview

This master bedroom features a warm and inviting palette with beige walls and plush, light grey carpeting that softens the space. The centerpiece is a rich, dark wood bed frame with detailed paneling, complemented by a matching high chest of drawers and two nightstands. Each nightstand is adorned with a sleek lamp featuring a blue ceramic base, introducing a subtle pop of color coordinated with a blue accent pillow on the bed. A ceiling fan with wood blades and classic light fixtures hangs overhead, while natural light filters through large, curtained windows, enhancing the room’s cozy, traditional feel.
Master Bathroom and Walk-In Closet

This master bathroom is spacious and bright, featuring beige walls and a natural, earthy color palette with tan stone tile flooring throughout. A freestanding white modern bathtub is positioned near a large window adorned with a sheer, ruffled curtain that allows natural light to softly illuminate the space. The vanity boasts white cabinetry with black hardware and a granite countertop, enhancing the clean, classic design. Two towel racks are mounted on the wall, adding practical details. Two doorways lead to the walk-in closet with built-in shelving and hanging space, and possibly the shower or toilet area, offering both functionality and luxury in the layout.
Home Office Nook

This cozy home office balances comfort and functionality, featuring a rich cognac leather armchair with a matching ottoman that invites relaxation. The workspace includes a modern black swivel desk chair paired with a sleek, adjustable-height desk holding a computer setup. Soft gray walls complement the neutral-toned carpet, while a small white cabinet adds storage and surface space for decorative touches like a potted plant and table lamp. Two floral paintings enhance the room’s warmth, and a simple woven wall hanging adds texture, all framed by crown molding and illuminated by natural light from a single window, accented by a contemporary ceiling fan.
Cozy Bedroom Nook

This intimate bedroom corner features a muted, deep green painted wall, creating a soothing and modern atmosphere. A gray-toned wooden daybed nestles against the wall, adorned with a neutral quilt and pops of playful color through a dinosaur-themed blanket and stuffed toys, hinting at a child’s retreat. Two large windows frame the space, dressed with light blue-gray curtains that complement the wall color while allowing natural light to filter in gently. Soft beige carpeting covers the floor, providing warmth. A vintage-style white dresser with a charming table lamp completes the cozy, inviting layout.
Cozy Family Room and Dining Area

This inviting family room smoothly transitions into a dining area, featuring a neutral color palette of warm beige walls and plush taupe carpeting. A large, comfortable sofa with matching armchair and ottoman create a relaxed seating arrangement centered around a dark wooden coffee table holding a chessset, offering both leisure and conversation opportunities. Natural light floods the space from a sizable window, highlighted by a built-in wooden nook adorned with decorative items. The adjacent dining area includes a classic wooden table paired with traditional wooden chairs. Recessed and wall sconces offer soft, ambient lighting, accentuating the homey, welcoming atmosphere.
Master Bedroom View

This master bedroom features a spacious layout with soft beige walls and beige carpeting, creating a warm and inviting atmosphere. A black metal bed frame with intricate scrollwork is dressed in light, neutral bedding complemented by a soothing palette of pale blues and greens in the throw pillows. A wooden dresser with multiple drawers stands along one wall, topped with a decorative vase and artwork that adds a touch of nature-inspired art. A ceiling fan with wooden blades and glass light fixtures enhances comfort and style, while crown molding and white chair rail provide subtle architectural detail.
Listing Agent: Kerri Kilgore MRP SFR of Realty One Group Apex via Zillow
