
This charming home at 281 Olson Road, nestled in the serene Santa Cruz Mountains in Soquel, CA, offers a perfect blend of peaceful seclusion and exceptional access to local amenities. While the architectural style is a cozy mountain retreat with natural wood elements and large windows that flood the interior with light, specific details on the year built are not provided. The listing price is $1,150,000, offering a rare opportunity to own a peaceful retreat close to commuter routes, downtown Soquel, Capitola, and popular local spots such as Gayles Bakery and Bargetto Winery.
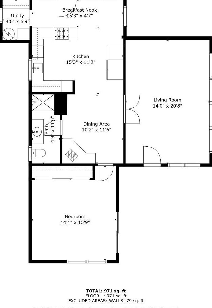
Floor Plan Overview

This floor plan outlines a compact yet well-organized home spanning 971 square feet. The layout includes a spacious bedroom measuring 14’1″ by 15’9″, ensuring ample room for comfort. Adjacent is a bathroom accessible from the dining area. The kitchen is a central feature at 15’3″ by 11’2″, connected to a cozy breakfast nook. The dining area offers a transitional space of 10’2″ by 11’6″, positioned conveniently near the kitchen. The living room, sized 14’0″ by 20’8″, provides a generous area for relaxation and gatherings. The utility room is located near the kitchen for convenience. The design balances functionality and flow in a modest footprint.
Compact Studio Floor Plan

This efficient studio layout maximizes a total of 210 square feet, featuring a dedicated bedroom measuring 12’2″ by 9’11”. Adjacent to the bedroom is a functional kitchen area at 10’10” by 9’11”, equipped with a stove and double sink, positioned to optimize space usage. The compact bathroom, only 2’7″ by 3’11”, includes a toilet and is tucked neatly off the kitchen space. Entry is through a curved door leading directly into the kitchen, highlighting practicality in the design. This floor plan emphasizes usability through a minimalist and well-organized arrangement ideal for a small living environment.
Small Room Layout

This compact room measures just over 11 feet 6 inches by 7 feet 5 inches, offering approximately 86 square feet of space. The layout includes a single inward-opening door centered on one wall, flanked by two windows that invite natural light. The opposite side features a built-in rectangular closet or storage area, adding functional storage without encroaching on the main living space. The overall design emphasizes efficient use of space, ideal for a small bedroom, office, or nursery, where cozy proportions and practical fixtures optimize comfort and utility.
Front Deck

This inviting outdoor space unfolds just beyond the main entrance, revealing a spacious wooden deck framed by serene woodland views. Positioned directly in front of a single front door with sidelights, the layout encourages seamless indoor-outdoor flow. A circular bistro table and chairs offer a casual dining or relaxation zone, while an adjacent lounger provides a tranquil sunbathing or reading spot. The deck railing defines the boundary without obstructing the natural forest backdrop, creating an immersive, peaceful atmosphere. The design highlights connection to nature, extending the living area outward and blending rustic charm with functional leisure space.
Living Room Details

This living room features a spacious, open design with light wood flooring and soft beige walls, creating an airy and welcoming atmosphere. Natural light floods the space through a skylight and a wide window, enhancing the bright and fresh feel. A dark charcoal sofa contrasts elegantly with the neutral tones, complemented by textured throw pillows. The centerpiece is a rustic wooden coffee table with gracefully curved legs, adding warmth and charm. Black track lighting on the ceiling provides focused illumination, while white-trimmed double doors lead into an adjacent room, emphasizing clean, classic architectural lines. A potted plant adds a touch of greenery near the entry door, tying in a natural aesthetic.
Kitchen Corner & Countertop

This kitchen corner blends warm wood cabinetry with modern stainless steel appliances, including a double oven and dishwasher. The cabinetry features a rich honey-brown finish with classic panel designs and black hardware. White quartz countertops provide a bright, clean contrast, extending into a peninsula that houses a sleek gas cooktop beneath a contemporary glass and stainless steel range hood. A small window above the single-basin sink allows natural light to flow in, enhancing the neutral walls and light tile flooring. An industrial-style pendant lamp adds a subtle modern touch over the sink area. The open layout extends into an adjacent room with built-in white cabinetry for additional storage or display.
Breakfast Nook

This charming breakfast nook features a cozy round wooden table with a white pedestal base, paired with two matching chairs that have white frames and rich wooden seats. The space is bathed in natural light from three large windows wrapping around the corner, offering peaceful views of the greenery outside. The light, neutral wall color and warm-toned wood flooring create an inviting, calm atmosphere perfect for morning coffee or casual meals. A small potted plant centerpiece adds a touch of freshness and personality to this intimate dining corner, blending rustic and classic elements.
Laundry Room

This compact laundry room features a stacked white washer and dryer unit positioned on the left for efficient use of space. Light beige walls and a small window provide natural light, brightening the utilitarian area. Adjacent to the appliances is a water heater with exposed plumbing. Opposite the washer and dryer, a tiled countertop with subtle earth-tone shades offers a workspace, paired with white cabinetry below and open shelving above for organized storage. The flooring is a warm wood-like material, adding a touch of natural warmth to this practical, clean, and uncluttered utility space.
Cozy Reading Nook

This charming corner of the home features a small, inviting nook highlighted by a wood-burning stove set in a brick hearth, adding warmth and rustic appeal. Light oak-tone flooring contrasts softly with the neutral, cream-colored walls and ceiling. A modern ceiling fan with wooden blades and a built-in light offers functional elegance. Adjacent doorways lead into brighter adjoining rooms, one displaying a potted plant and abundant natural sunlight. On the right wall, a recessed shelf presents an earthy fossil sculpture alongside greenery, infusing a subtle touch of nature and personality into the space.
Bathroom Vanity and Shower

This bathroom features a compact yet elegant layout with a warm, earthy color palette. The vanity includes a cream marble countertop with subtle veining, paired with wooden cabinetry that adds natural texture. A single undermount sink is complemented by a sleek, brushed nickel faucet. A large, three-panel mirrored medicine cabinet provides ample storage and visually expands the space. The shower area is lined with taupe and beige stone tiles, blending rustic charm and modern simplicity, while a skylight above bathes the space in natural light. Soft beige towels and a touch of vibrant purple orchids add welcoming accents.
Bedroom with Deck Access

This serene bedroom features soft beige vertical panel walls that provide a cozy, welcoming atmosphere. Natural light floods the room through a large sliding glass door leading directly to a wooden deck, ideal for outdoor relaxation. A double window adds an additional source of daylight and views of lush greenery outside. The bedding is styled in neutral tones with layered textures, including a quilt, throw blanket, and a variety of decorative pillows. A minimalist wall art piece and a warm-toned bedside lamp complement the calming and comfortable ambiance. Light wood flooring enhances the natural, peaceful aesthetic.
Cozy Covered Porch

This inviting covered porch offers a tranquil spot nestled among lush greenery, framed by a sturdy wooden railing and natural wood plank flooring. The ceiling showcases exposed wooden beams with a rich, warm tone enhancing the rustic charm. A unique, sculptural wooden bench adorned with soft earth-toned pillows provides comfortable seating, emphasizing an organic, nature-inspired aesthetic. Hanging planters add vertical life and texture, complementing the surrounding forest view. The mix of natural wood finishes and greenery evokes a peaceful and cozy atmosphere, perfect for relaxing and enjoying the outdoors in privacy and comfort.
Cozy Kitchen Corner

This cozy kitchen corner blends warm and earthy tones with practical design. The cabinetry features a soft orange hue paired with natural wood finishes on the overhead cabinets and countertops, creating a welcoming rustic charm. The space is efficiently utilized, with a small stainless steel fridge nestled under the counter and a microwave set into a wood-paneled nook, accented by a decorative alligator sculpture. A large window above the white sink floods the area with natural light, framing lush greenery outside. Tile flooring and simple metallic handles complete the functional yet inviting look.
Cozy Bedroom with Patio Access

This inviting bedroom features a warm, neutral color palette with soft beige walls and light wood furniture that creates a cozy, rustic ambiance. A wooden bed frame with matching nightstand highlights the natural wood tones. The bed is adorned with light blue pillows and a textured, muted throw, enhancing comfort. A wall-mounted sconce with a fabric shade adds gentle lighting, complemented by a small bedside lamp. Plush rugs add softness underfoot, while sliding glass doors offer seamless access to a serene outdoor patio surrounded by lush greenery, extending the living space outdoors.
Home Office Nook

This compact home office nook features natural wood accents throughout, from the light wood flooring to the built-in wooden desk and cabinetry. The space is brightened by a large window framed with simple wood trim, letting in natural light and offering a view of greenery outside. Above the work surface, a set of upper cabinets provide additional storage with a minimalist design. On one wall, a small glass-front cabinet adds character and functionality. Decorative touches include a tribal wooden mask and a classic round clock, enhancing the cozy, serene ambiance of the workspace.
Backyard Patio Seating

This charming backyard patio features a natural stone tile floor in warm, earthy tones that blend seamlessly with the surrounding greenery. A small round table with wrought iron chairs, cushioned for comfort, sits adjacent to sliding glass doors leading indoors. The space is framed by rustic wooden railings and steps, giving a cozy, handcrafted feel. Elevated seating includes a wicker loveseat nestled among lush plants and mature trees, creating a tranquil retreat. Decorative touches like the garden clock on the fence and hanging string lights add character and enhance the inviting atmosphere of this outdoor haven.
Secret Garden Pathway

A tranquil garden pathway invites one to meander through lush greenery under dappled sunlight. A rustic wooden sign reading “The Secret Garden” hints at a secluded outdoor retreat. The path is paved with irregular stone slabs bordered by natural rocks and a variety of leafy plants, creating a harmonious, organic feel. Deep greens dominate the color palette, complemented by hints of purple foliage and weathered wooden benches tucked into the shadows. This intimate, shaded nook exudes calm and invites relaxation amid vibrant, thriving plant life and subtle natural textures.
Garden Sitting Area

This tranquil garden space features a rustic wooden swing bench framed by a natural wood pergola, providing shaded seating with inviting patterned cushions. The stone-paved pathway meanders through lush, verdant foliage, including tropical plants and fruit-bearing trees, enhancing the serene atmosphere. Additional comfortable wicker seating with throw pillows sits further along the path, encouraging relaxation amid greenery. The layered textures of wood, stone, and foliage combine effortlessly, creating a cozy, earthy nook that harmonizes natural elements with a casual outdoor living vibe, perfect for quiet mornings or intimate gatherings.
Backyard Patio and Garden Path

This inviting backyard space features a cozy patio adjacent to the house, accessible through sliding glass doors. The patio includes a small metal table with two cushioned iron chairs, perfect for outdoor dining or morning coffee. The exterior wall is painted in a muted sage tone, complemented by dark trim around the door. Natural, rustic elements define the aesthetic, with a hand-crafted wooden railing made from unfinished logs framing stone steps leading down to a lush garden path. The path is lined with rocks and covered in reddish mulch, bordered by dense greenery, creating an enchanting woodland feel. Soft garden lighting, potted plants, and a wicker loveseat with patterned throw pillows add comfort and charm to this serene outdoor retreat surrounded by tall trees.
Want to see more from Remodr?

Drop a comment below, share this with your friends and family, and don’t forget to follow us for more fresh ideas, updates, tips, and home trends.
Listing Agent: The Madani Team of Room Real Estate via Zillow
