
This stunning estate at 3097 Mill Road exemplifies a charming blend of traditional and rustic architectural styles, nestled in the lush, serene surroundings of Bucks County, Pennsylvania. Situated on a spacious 3.67-acre private lot, the home is just minutes from the historic town of Doylestown, offering both tranquility and convenience. Built with a focus on timeless design, this custom 4-bedroom, 3-bathroom residence spans over 3,100 square feet of beautifully finished living space. The interior welcomes you with warm hardwood floors and exposed wood beams, enhancing the cozy ambiance of the great room highlighted by a striking floor-to-ceiling stone fireplace equipped with a wood-burning stove. Outside, the property is an oasis of lush landscaping, lighting, and outdoor living spaces including decks, patios, and the pool area, providing year-round enjoyment. Offered at $1,100,000, this exceptional home combines elegant design, modern updates, and idyllic natural surroundings on a large private parcel, with easy access to local amenities, shopping, dining, and major routes connecting to New Jersey and Philadelphia.
Basement Floor Plan

This basement layout includes a spacious recreation room measuring approximately 16’7″ by 16′, ideal for family gatherings or entertainment. Adjacent to it is a large bedroom, about 12’10” by 14′, which offers privacy and comfort. A 9’7″ by 16′ bathroom is conveniently located nearby, along with a walk-in closet sized at 5′ by 9’1″, providing ample storage. The utility room, measuring roughly 11’9″ by 14′, ensures functional space for household systems. The hall connects these rooms and includes stairs leading to the upper floors, highlighting a practical and well-organized basement design.
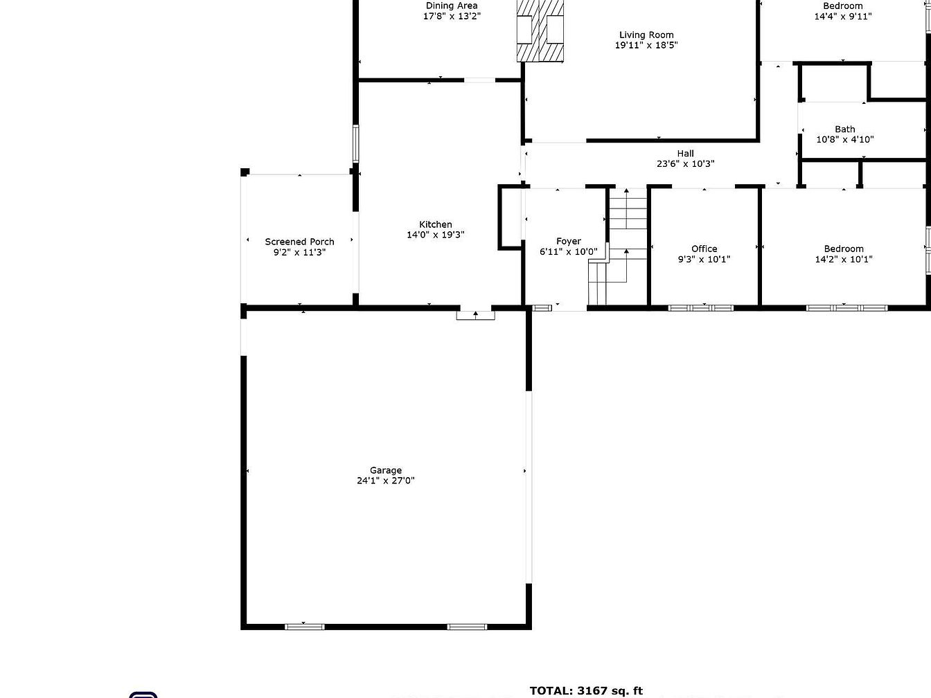
Floor Plan Layout

This detailed floor plan reveals a spacious single-level layout spanning 3,167 square feet. The focal point is the large garage occupying the lower-left corner, measuring 24’1″ by 27′. Adjacent to the garage is a screened porch and a sizable kitchen (14’0″ x 19’3″), which connects seamlessly to a dining area and a living room that measures 19’11” by 18’5″. The floor plan also includes a central hall connecting various rooms, launching from a compact foyer near the entry stairs. Two bedrooms, an office, and a bath complete the right side. Clean lines and functional separation of living and utility spaces dominate the architectural approach.
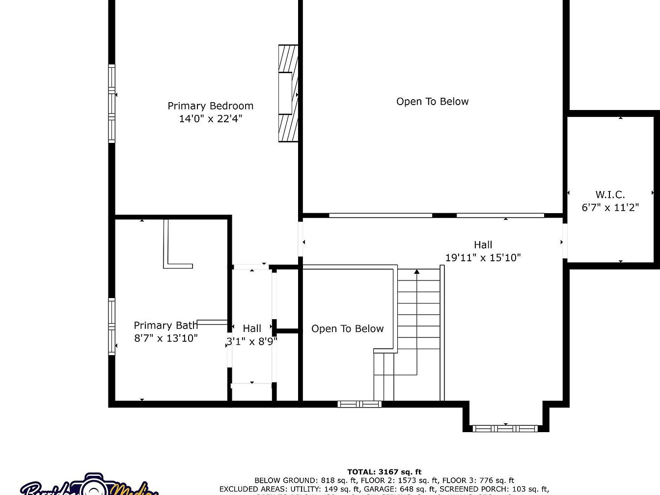
Upper Floor Layout

This upper floor plan highlights a spacious primary bedroom measuring 14 by 22 feet, complete with a fireplace for cozy ambiance. Adjacent to the bedroom is a generously sized primary bath and a walk-in closet tailored for ample storage. The design includes two open-to-below areas, inviting abundant natural light and a sense of openness from the floor below. A large hall space connects these rooms, with stairs leading down to the lower floor. The layout emphasizes both privacy and flow, combining functional living with luxurious proportions and strategic openness.
Front Exterior and Patio

This inviting front exterior features a charming blend of natural stone and vertical wood siding, enveloped in warm, ambient lighting that accentuates the home’s architectural details at dusk. The roof is steeply pitched with a skylight adding a unique touch. A two-car garage with barn-style doors opens to a smoothly paved driveway. Adjacent to the entrance is a cozy stone-walled patio area with comfortable seating and a large umbrella, perfect for relaxing or casual entertaining. Mature trees and well-maintained greenery frame the space, creating a serene and private atmosphere, complementing the rustic-modern aesthetic.
Entryway Details

The entryway features a rich, dark wooden front door with decorative stained glass panels on either side, adding elegance and natural light. The hardwood flooring in warm tones complements the neutral cream walls, creating a welcoming ambiance. To the right, a large, tilted floor mirror with a black frame enhances the perception of space and reflects light. The small umbrella stand beside the mirror adds practicality. On the left, a staircase with a muted gray railing ascends beside a dresser topped with a detailed floral lampshade and green plant, infusing charm and personality into the space.
Kitchen Island and Cabinets

This kitchen features a spacious U-shaped layout with elegant cream-colored cabinetry accented by subtle distressing and dark hardware. Granite countertops with natural stone patterns complement the warm earth tones of the diamond-patterned tile backsplash. A large kitchen island with a raised bar area provides seating with cushioned modern bar stools, creating a cozy breakfast or gathering space. Warm wooden flooring adds richness and contrasts beautifully with the light cabinetry. The orange-painted walls bring warmth and vibrance, enhanced by pendant lighting over the island and recessed ceiling lights creating a welcoming atmosphere. A central window above the stainless steel sink invites natural light into the space.
Dining Room Details

This elegant dining room showcases a warm and inviting atmosphere with soft beige walls contrasted by rich wood tones. The central wooden dining table, covered with a dark tablecloth, is surrounded by classic spindle-back chairs with woven seats. A floral-patterned area rug in navy blue anchors the space, adding color and texture. Complementing the setting, a black display cabinet holds delicate glassware and decorative plates, while a painted corner cabinet adds charming artistic flair. Soft lighting from a chandelier and wall sconces highlights intricate ceiling molding. French doors open to a lush outdoor view, extending natural light throughout the room.
Living Room Fireplace

This living room features a rustic, floor-to-ceiling stone fireplace that serves as a central architectural element, enhancing the room’s cozy ambiance. The space is open and airy with a high vaulted ceiling and an upper balcony overlooking the area, painted in soft beige and taupe tones. A large wooden entertainment center houses a flat-screen television, flanked by glass cabinets. The seating includes a floral-patterned upholstered sofa and matching ottoman, which complement the warm carpeted floor. Adjacent to the fireplace, the dining room is visible, adding continuity and flow between rooms.
Cozy Sitting Room

This inviting sitting room features a vaulted ceiling with exposed wooden beams painted in muted gray tones, complementing the white ceiling planks. The walls are adorned with a two-tone palette—soft mauve below the chair rail and crisp white above—creating a warm and calming atmosphere. Plush, patterned sofa and matching armchair with ottoman add classic charm and comfort. The seating area is anchored by a caramel-colored carpet, contrasting subtly with the lighter walls. Natural light filters in through double glass doors leading to a deck with outdoor seating. Accent lighting includes table lamps that provide a cozy, ambient glow. Decorative accents like the monogram wall art and framed prints personalize the space tastefully.
Master Bedroom View

This master bedroom features a high vaulted ceiling with a central ceiling fan, enhancing the spacious feel. The walls are painted in a warm beige tone, complementing the intricate patterned carpet in dark shades with cream-colored swirls that add texture and elegance. A large metal-framed bed with white linens sits centrally, adorned with decorative pillows in black and orange tones. On either side are dark wood furniture pieces, including a nightstand, a dresser, and a vanity with an ornate mirror. Soft lighting from table lamps creates a cozy ambiance. French doors with blinds open to a balcony with outdoor seating, inviting natural light and greenery into the room.
Master Bathroom Retreat

This spacious master bathroom balances modern elegance and comfort with warm beige walls and light tile flooring that create a calm, inviting atmosphere. A built-in bathtub with dark wood paneling accents the space alongside a large glass-enclosed shower featuring intricate beige tile work and a built-in bench. Ample natural light floods in through a double window framed in white trim, enhancing the airy feel. The vanity area includes a small seating nook with a metallic chair, and a delicate chandelier overhead adds a touch of refined sophistication to the serene and functional layout.
Bathroom Vanity Area

This bathroom section features an elegant wooden vanity with rich cherry tones and intricate carved details framing a large mirror. The countertop is a polished stone in a neutral beige shade complementing the warm wood cabinetry. Two classic wall-mounted sconces provide soft, warm lighting, while a smaller decorative lamp adds a cozy touch. On the right, a built-in desk area with a cushioned wrought-iron chair offers a functional space. The beige walls and tiled floor maintain a calm, neutral palette, enhanced by natural light from the adjacent window outfitted with simple white trim and coordinating towels on a silver rack.
Dressing Room Nook

This dressing area offers a cozy layout with a focus on functionality and charm. The floor is covered in a rich black carpet adorned with intricate gold vine patterns, adding a luxurious feel. Beige walls complement the warm tones and create a soft backdrop. White louvered closet doors provide ample storage and add texture to the space, while the top shelves showcase decorative items and books. A vintage-style vanity table with a matching cushioned stool is placed near a window, allowing natural light to brighten this intimate corner. Subtle recessed lighting enhances the space without overpowering its calm ambiance.
Walk-In Closet Storage

This well-organized walk-in closet maximizes its sloped ceiling space with a dual-tiered clothing rod system, allowing for ample hanging garments arranged by type and color. Above the rods, a continuous white shelf spans the room’s perimeter, holding neatly stacked clothes, handbags, and accessories. The light neutral palette of the walls and beige carpeting creates a soft backdrop, highlighting various textiles and textures within the clothing collection. An ironing board with a patterned cover sits on one side, adding functionality. Hats and bags hang on the upper wall, adding visual interest and practicality to this efficiently designed dressing space.
Home Office Corner

This compact office nook features soft blue walls that create a calm atmosphere. A simple wooden desk with slender iron legs anchors the space, paired with a black ergonomic swivel chair on a clear floor mat protecting beige carpet. Positioned under a large window dressed with patterned valances, daylight fills the room, enhancing the cozy ambiance. The desk holds a monitor, laptop, keyboard, and a small lamp providing focused illumination. Opposite, a sleek dark wood console table with a matching upholstered stool offers additional storage. Wall-mounted black organizers and framed décor emphasize functional style.
Bathroom Vanity and Shower

This bathroom features a warm, muted mauve wall color providing a gentle backdrop to the space. The vanity showcases a speckled pink granite countertop with an undermount white sink, paired with brushed nickel fixtures for a modern touch. An expansive mirror above the vanity enhances light distribution and the sense of openness. To the left, a striped shower curtain in neutral tones of beige and white adds subtle pattern. The white toilet is positioned between the vanity and bathtub. Accents such as a gold-framed oval mirror and coordinating towel ring reflect an elegant, cohesive style. The floor is tiled in a reddish-brown pattern, grounding the overall design.
Bedroom Closet Wall

This area features a beige and white color scheme with beige walls and white wainscoting that adds texture and contrast. The room is carpeted in a neutral light gray, complementing the warm tones of the walls. Two sets of white bi-fold closet doors offer ample storage space along the far wall. A small, rustic-style console table beneath a wall-mounted flat-screen TV displays personal items, including photos and a decorative clock. The white door partially open leads into a hallway with warm wood flooring, blending contemporary and cozy design elements effectively in this bedroom corner.
Cozy Sitting Corner

This warm and inviting corner features a calming mix of tan and cream walls paired with soft, neutral carpeting. A plush brown leather recliner anchors the space, flanked on one side by a cushioned bench adorned with colorful throw pillows. Near the large windows, light beige curtains frame views of lush greenery outside, providing natural light. Rustic accent furniture with distressed wood finishes adds character, topped with elegant table lamps casting a gentle glow. Artworks with floral and angelic themes contribute a personal touch, enhancing the space’s peaceful and reflective ambiance.
Cozy Bedroom Details

This intimate bedroom features a warm, neutral palette with soft beige walls and light carpeting that enhances the cozy atmosphere. The bed is adorned with a floral quilt in shades of red and beige, complemented by vibrant coral and pink accent pillows adding a cheerful touch. Two windows with white blinds provide balanced natural light with privacy control. White wooden furniture, including a pair of nightstands and a dresser, offers practical storage while maintaining a light and airy feel. Architectural simplicity and pastel tones create a tranquil and inviting retreat.
Cozy Sunroom Seating

This intimate sunroom features light wood-paneled walls creating a warm, rustic ambiance. The space includes a small wooden bar with two cushioned stools, perfect for casual dining or gathering, alongside a cushioned wood-framed loveseat with patterned throw pillows enhancing comfort. Soft overhead pendants provide cozy lighting, complemented by a table lamp to the left sitting on a slim white console table with patterned bench seating below. Decor elements like a vibrant butterfly wall hanging, a decorative cross, and a large rectangular mirror add color and visual interest. A sliding glass door connects this room to an adjoining interior space with hardwood floors.
Bathroom Vanity and Shower

This bathroom features a light and airy design with a spacious layout. A large L-shaped vanity with a marble countertop and light gray cabinetry occupies one side, complemented by brushed nickel fixtures and a sizable, light wood-framed mirror. The walk-in shower is enclosed with clear glass walls and door, showcasing stylish gray tiling with a horizontal mosaic accent strip. Pebble stone flooring inside the shower adds texture and contrast. The walls are painted soft white, and the flooring consists of wood-look tiles in natural tones, blending modern elegance with subtle warmth. Recessed and ceiling lighting brighten the space.
Bathroom Vanity Area

This bathroom vanity corner creates a practical and elegant space with its L-shaped marble countertop featuring subtle gray veining. The cabinetry is painted in a soft muted beige, blending seamlessly with the light neutral walls for a calming, cohesive palette. A unique corner cupboard with textured glass doors maximizes storage while adding visual interest. Matching rectangular framed mirrors hang above each sink area, reflecting the sleek, modern brushed nickel faucet fixtures. The room benefits from bright yet soft overhead lighting, enhancing the clean lines and understated sophistication of the contemporary design.
Basement Hallway

This basement hallway features soft beige walls that create a warm, neutral atmosphere, complemented by plush light-gray carpeting that adds comfort underfoot. The space is softly illuminated by recessed ceiling lighting, offering a clean and modern feel. The hallway leads to multiple rooms, with a doorframe on the left revealing a glimpse of a bathroom or utility space. A textured stone accent wall adds natural character and visual interest along one side, while a glass door at the far end invites natural light, offering a subtle connection to the outdoors.
Basement Lounge Area

This basement lounge features a spacious, open layout with neutral-toned walls combining beige and light gray, complemented by plush light gray carpeting underfoot. The white paneled ceiling with recessed lighting creates a bright, inviting atmosphere despite being below ground level. Furnished simply with a wrought iron and wood high-top table set, the space exudes a casual, cozy vibe, ideal for a relaxed gathering or game night. A small doorway leads to adjacent rooms or stair access, emphasizing functionality alongside comfort. The overall minimalist design provides a versatile canvas for personalized decor or entertainment needs.
Cozy Basement Gathering Area

This inviting basement space features a neutral color palette with soft beige walls and plush light gray carpeting, creating a warm and comfortable atmosphere. A distinctive stone accent wall adds rustic charm and texture, contrasting beautifully with the smooth painted surfaces. The ceiling is finished with white paneling and recessed lighting, enhancing the brightness and openness of the room. A black wrought iron table and four matching chairs with wooden seats provide a casual dining or game area near a window and glass sliding doors, which offer views and access to the outdoors.
Covered Patio Seating

This covered patio area opens gracefully to a spacious backyard, blending indoor comfort with outdoor tranquility. A durable metal roof shelters the concrete seating zone, providing shade and protection from the elements. Supporting wooden beams frame the view towards a patterned stone paver extension, ideal for additional seating or a small gathering. The patio is edged by a low brick retaining wall, adding structural definition. Vibrant landscaping surrounds the scene, featuring a lush green lawn, ornamental grasses, a small Japanese maple tree, and flowering plants, creating a peaceful and inviting garden ambiance.
Basement Utility Corner

This basement corner is primarily functional, featuring exposed cinder block walls and unfinished ceiling beams with visible wiring. Light wood paneling crowns part of the wall, contrasting with the cool gray blocks. A utility panel and water heater are installed along the far walls, indicating the space’s role in housing essential home systems. The floor is covered with a brown carpet that adds some warmth and softness underfoot. A metal rolling garment rack suggests limited storage or workspace usage. Overall, the area exudes a raw, practical vibe focused on utility rather than decor.
Attic Storage Space

This attic is a spacious, open area with exposed wooden beams and unfinished plywood flooring, designed primarily for storage. The warm wood tones create a rustic atmosphere, complemented by the structural framing visible throughout the space. Soft, direct lighting illuminates the area, highlighting stored items such as boxes, a portable heater, and folded chairs. The peaked ceiling follows the roofline, making full use of the triangular volume. The space is currently utilized for both storage and utility purposes, providing functional capacity while maintaining a raw, natural aesthetic typical of an unfinished attic.
Backyard Pool Area

This tranquil backyard area centers around a uniquely shaped swimming pool with easy-entry handrails. The pool is edged by a smooth concrete deck, perfect for lounging and socializing. Comfortable cushioned seating, including a recliner-style chair in warm tan tones, complements the space. Large umbrellas provide shade, while subtle landscape lighting enhances the peaceful ambiance during twilight hours. The surrounding greenery, including mature trees and manicured shrubs, creates a private, serene atmosphere. Stone accents and small garden statues add charm, making this outdoor retreat ideal for relaxing or entertaining amid nature.
Backyard Pool Area

This inviting backyard features a large, in-ground pool surrounded by a concrete patio. The two-story home presents a warm, earthy brown exterior with soft outdoor lighting highlighting a cozy seating area under umbrellas and next to the house. To the right, a wooden gazebo with seating and draped curtains adds an elegant touch for outdoor relaxation and entertaining. Lush green landscaping surrounds the space, blending seamlessly with the natural wooded backdrop. The twilight sky creates a tranquil ambiance, reflecting off the water’s surface and enhancing the peaceful, resort-like feel of this outdoor living area.
Covered Patio Lounge

This covered patio offers a serene outdoor retreat with its warm wooden roof structure and exposed beams, adding rustic charm. The space features a brick-paved floor in neutral tones, complementing the natural wood and earth hues. A cushioned wicker loveseat with leafy patterned upholstery and a matching chair create a cozy seating area. A cushioned metal swing with striped pillows sits against the back, shaded by a large umbrella for sun protection. Sheer white curtains frame the open sides, enhancing airflow and softness. Greenery accents, including ferns and potted plants, bring a fresh, natural vibe to this inviting outdoor living area.
Outdoor Deck Seating Area

This cozy outdoor deck space features a wraparound wooden bench with striped cushions in earthy tones of green, maroon, beige, and brown, accented by patterned throw pillows for added comfort. A central square fire pit table with tiled surfaces and a black metal frame anchors the seating arrangement, inviting warmth and social gatherings. A large brown umbrella provides shade overhead, while a neatly stacked pile of firewood is conveniently stored on the deck’s side, supported by a metal rack. The setting is surrounded by lush green trees, creating a peaceful, nature-immersed ambiance perfect for relaxation or entertaining outdoors.
Listing Agent: Darren Taylor of Keller Williams Real Estate-Doylestown via Zillow
