
This custom home embodies the essence of Pacific Northwest architectural style, blending natural materials like stone and wood with expansive glass windows that capture stunning Mountain & Sound views. Located in Vashon, WA, this impressive residence offers over 4,000 square feet of living space on nearly 5 private acres, providing a tranquil yet spacious retreat. The home features 3 bedrooms and 5 baths, with soaring ceilings and clear fir trim and custom cabinetry that highlight the quality craftsmanship throughout. Listed at $3,100,000, this rare property is an exceptional opportunity to own a private oasis minutes from town where you can live, work, and play.
floor plans

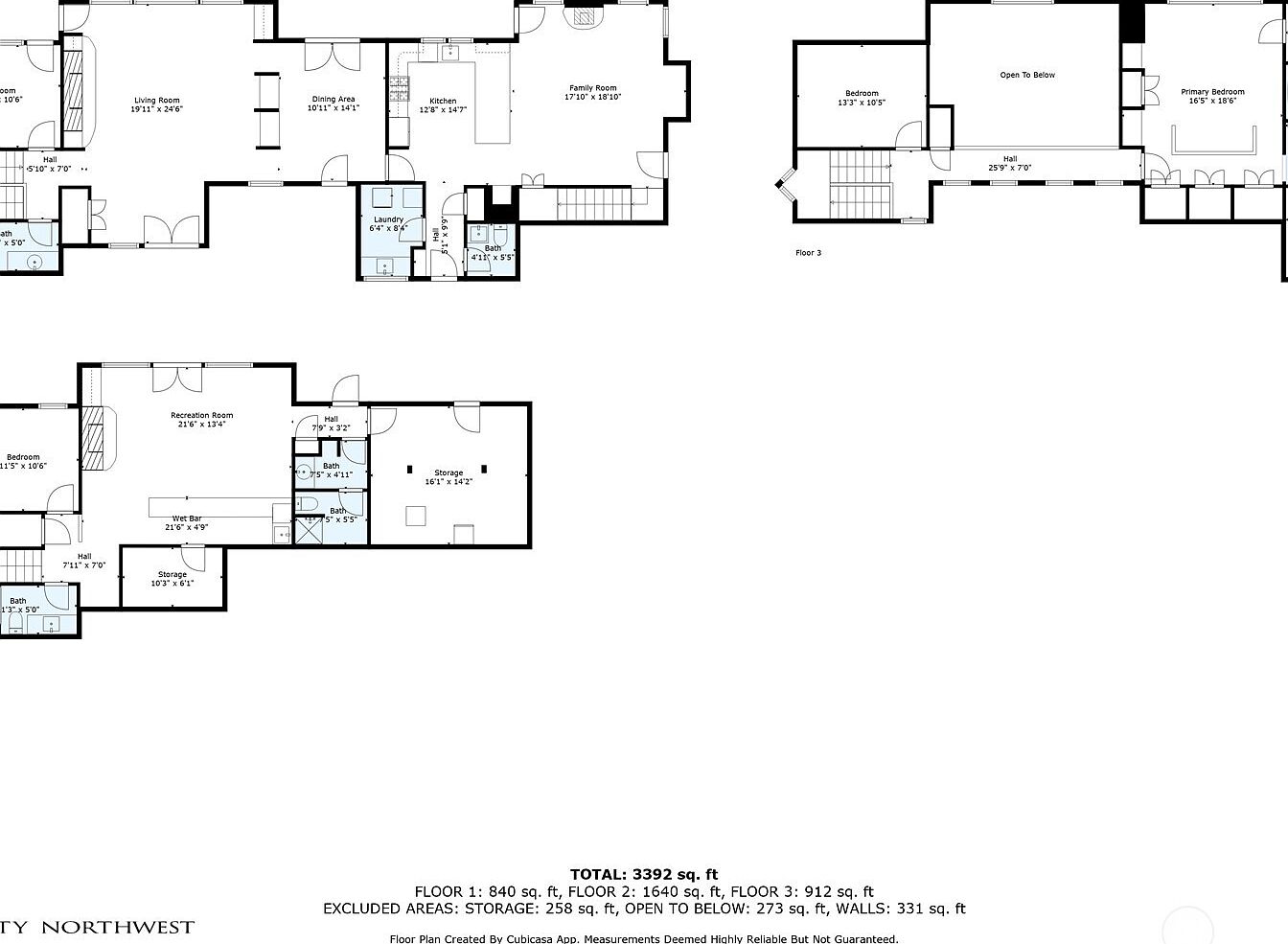
This detailed floor plan presents a multi-level home layout spanning three floors with a total of 3,392 square feet. The main floor features spacious areas such as a large living room, dining area, kitchen, family room, and laundry room, accented by multiple bathrooms. The second floor includes bedrooms and a hall open to the floor below, emphasizing vertical connectivity and spaciousness. The basement level offers functional spaces like a recreation room with a wet bar, extra bedrooms, storage rooms, and additional bathrooms, ensuring versatile living options for families. The layout highlights efficient flow and balanced private and common areas.
Front Porch Entrance

This inviting front porch features a rustic yet refined design, with broad wooden steps leading up to a covered entryway supported by large, round timber posts. The exterior showcases natural stone accents around the porch base, complementing the grayish shingle siding with green trim. Warm light emanates from wall sconces flanking the elegant double wooden doors with glass inserts. A small outdoor seating area is visible under the porch roof. Above, a charming covered walkway connects two house sections, enhancing the architectural interest and providing sheltered passage between areas. Lush greenery and bright flowers add vibrant natural contrast.
Living Room Fireplace & View

This living room is a cozy retreat with a stunning river view through large, wooden-framed windows that fill the space with natural light. The vaulted ceiling is clad in warm wood planks, adding rustic charm and height to the room. A prominent stone fireplace made of natural river rocks commands attention, flanked by built-in wooden shelves and stacked firewood for a functional yet decorative touch. Furnishings include a neutral-toned couch with soft pillows and leather accent chairs, complemented by a rustic wooden coffee table and side table, all contributing to a harmonious blend of warmth and nature-inspired elegance.
Dining Area with Deck Access

This inviting dining space features a dark wooden table paired with six caramel-colored leather chairs, creating a warm and elegant atmosphere. The room is accented by natural wood cabinetry and trim, enhancing its organic aesthetic. A modern chandelier with frosted glass shades hangs overhead, casting a soft glow. French doors open directly onto a wooden deck, offering stunning views of a serene lake and lush greenery under a bright blue sky. The adjoining living room’s stone fireplace, visible in the background, adds rustic charm, blending indoor comfort with outdoor beauty seamlessly.
Kitchen and Living Area

This open kitchen seamlessly flows into a cozy living space, creating a warm and inviting environment. The kitchen features rich wooden cabinets with a smooth white countertop island that includes a sink and modern fixtures. The flooring is a mix of slate tiles with varying shades of gray and brown, adding natural texture and grounding the space. Large windows framed in matching wood let in abundant natural light, enhancing the connection to the greenery outside. The living area showcases a rustic stone fireplace, a vaulted ceiling with wood paneling, and neutral-toned furnishings that complement the earth-inspired palette, balancing comfort and elegance.
Cozy Bedroom with View

This bedroom features a calm, neutral palette with soft beige and cream tones dominating the space, creating a serene atmosphere. The bed is dressed in a quilted beige coverlet with white and brown accent pillows, complemented by a subtle light blue throw at the foot. A painting of a horse and rider adds a rustic touch above the headboard. Natural light floods the room through large, warm wood-trimmed windows that frame a stunning view of greenery and water beyond, enhancing the peaceful ambiance. Simple recessed ceiling lights and a small lamp provide gentle illumination.
Bathroom Vanity and Tub

This bathroom features a warm and inviting design, highlighted by natural wood cabinetry with classic brass knobs beneath a beige tiled countertop and integrated sink. The large mirror above the vanity reflects light, enhancing the sense of spaciousness. To the right, a white toilet is positioned next to a bathtub with a light-colored textured shower curtain, set against crisp white walls. A small window framed in matching wood adds architectural interest and provides natural light. The dark slate tile flooring contrasts beautifully with the lighter tones, grounding the room with a modern yet cozy atmosphere.
Master Bedroom Retreat

This master bedroom features a vaulted ceiling clad in warm wood paneling, adding rustic charm and spaciousness. Light walls contrast beautifully with rich wood tones seen in trim, doors, and built-in storage solutions. A king-sized bed dressed in layered green and cream bedding anchors the room, complemented by patterned throw pillows. The layout includes clever use of space with custom angled closets and drawers fitting snugly into the sloping ceiling. A cozy white armchair with a green pillow sits by a small decorative side table, while pendant lights and a sleek ceiling fan add modern touches.
Cozy Bedroom Corner

This peaceful bedroom corner features a neatly made bed dressed in soft blue bedding with a white runner and accent pillows in pastel pinks and muted blues. A large cream-colored curtain spans one side, likely concealing a closet or additional window. The walls are painted a calming off-white, complementing the neutral beige carpet underfoot. A small black textured round side table sits beside the bed, topped with a lamp emitting a gentle glow and a small decorative flower. The window nearby is framed with rich wooden trim, offering a stunning view of an outdoor patio and distant landscape, inviting natural light and tranquility into the room.
Living Room Seating Area

Sunlight floods this cozy living space through large glass French doors framed in warm wood, leading to an outdoor pool view. A compact gray loveseat adorned with a mix of textured pillows and a multicolored throw blanket creates a welcoming retreat. Two small, round wooden side tables rest on a natural woven circular rug, adding organic textures to the neutral-toned carpeted floor. White walls enhance the brightness, while minimal wall-mounted art and a nearby wooden dining table with black chairs suggest an inviting flow between relaxation and dining areas in this open-plan setup.
Home Bar Seating Area

This inviting bar area features a long, polished wooden countertop supported by thick, natural wood beams with a warm honey finish. Four black ladder-back stools with cushioned seats line the front, contrasting elegantly with the wood’s glossy sheen. The backdrop includes a small sink and wine glass rack, suggesting a functional beverage preparation space. A circular mirror adds depth and reflects light, enhancing the openness. To the right, a glass-paneled wooden door reveals a climate-controlled wine storage, emphasizing a blend of rustic charm and modern convenience. Neutral walls and carpeted flooring complete the cozy, refined ambiance.
Bathroom Vanity and Shower

This bathroom offers a warm, inviting atmosphere with natural wood cabinetry providing ample storage beneath a wide, white countertop. The silver faucet is sleek and modern, complementing the substantial framed mirror above, which adds depth to the space. Neutral beige walls enhance the calming aesthetic, punctuated by an orange towel and a small decorative framed print. A simple, textured white shower curtain encloses the bathing area, and the dark slate tile flooring adds contrast and durability to the room. Fresh white tulips in a blue vase brighten the vanity, lending a subtle touch of color and freshness to the space.
Backyard Pool Area

This spacious backyard features a large rectangular swimming pool bordered by smooth concrete decking. The pool area is complemented by a cozy fire pit surrounded by wooden chairs, creating an inviting space for evening gatherings. Adorning the edges are vibrant blue planters filled with colorful flowers, adding a touch of natural beauty. The house’s exterior showcases grey shingles with teal trim accents around expansive windows and balconies, blending modern and rustic styles. The area includes lounge chairs for sunbathing and a small table with chairs for outdoor dining, all set against a backdrop of tall lush trees and a clear blue sky.
Backyard Patio

This spacious backyard patio features a wooden dining set with six chairs arranged around a large rectangular table, perfect for outdoor meals and gatherings. The patio surface is a clean, smooth concrete, enhancing the modern yet natural aesthetic. A round fire pit adds warmth and ambiance right beside the seating area. Beyond the patio, a manicured lawn meets trimmed hedges, with a low gray wooden fence that has window-like openings, blending garden and architectural elements. The view extends to a serene water body and a backdrop of lush trees under a bright blue sky, enriching the open-air experience.
Detached Garage Exterior

This charming detached garage features a classic gray shingle exterior with deep teal trim and garage door, blending seamlessly into the lush, wooded surroundings. The structure is two stories, with an upper-level window suggesting additional usable space above the garage. The rooflines are simple yet complement the natural setting. Landscaping around the foundation includes low-maintenance shrubs and a neatly edged flower bed, while a paved driveway leads to the garage door. The overall aesthetic is rustic yet polished, harmonizing the practical outbuilding with the verdant environment.
Property Aerial View

Set amidst lush greenery, this expansive property offers a serene and private atmosphere. The main residence is complemented by multiple structures, including a detached garage and a pool house. The pool area is spacious and thoughtfully designed with adjacent lounging spaces. Surrounding the home are open, manicured lawns that blend into natural woodland, enhancing the secluded feel. Curved pathways in the grass suggest intentional landscaping that harmonizes with the natural topography. This peaceful retreat showcases a perfect balance between nature and modern living, with ample outdoor space for relaxation and recreation.
Sunset View from Deck

This breathtaking sunset view is likely captured from an elevated deck or balcony that overlooks a serene body of water framed by dark silhouettes of tall trees. The horizon reveals softly layered mountain ranges in deep, dusky blues blending into the intense golden sky. The sky is ablaze with warm amber, orange, and yellow hues that scatter through patches of light, fluffy clouds, creating a dramatic, glowing effect. This natural panorama provides a peaceful, panoramic backdrop perfect for relaxing outdoors while enjoying the beauty of sunset colors merging with tranquil water and forest.
Listing Agent: Leslie Ferriel of John L. Scott Vashon via Zillow
