
Serenity Hill is a stunning classic farmhouse located in Wingdale, NY, nestled on a beautiful 21-acre elevated plateau facing west toward the Taconic Mountain foothills. The home exudes timeless charm with its expansive rocking chair porch wrapping around three sides of the house, complemented by three dormer windows and a wide, pitched roof. The architectural style reflects a traditional farmhouse design enhanced with modern touches. The interior boasts an open floor plan centered on a great room, featuring a massive stone fireplace beneath a soaring 20-foot cathedral ceiling. French door sliders open onto a spacious deck that overlooks an in-ground swimming pool, blending indoor and outdoor living seamlessly. The listing price for this remarkable farmhouse retreat is $795,000, providing an exceptional blend of pastoral peace and natural beauty on a spacious plot of land.
main level floor plan

This layout highlights an efficient single-level home with a clear division between living and private spaces. The heart of the home is the living room, spacious at 15.5 by 21 feet, connecting effortlessly to the kitchen and breakfast nook for a cohesive entertaining and daily living flow. The kitchen, sized 12.5 by 12.5 feet, is designed for functionality with an island at its center, adjacent to the 10 by 10-foot breakfast nook. Private quarters include a 13 by 16-foot primary bedroom with an attached bath and walk-in closet, providing ample comfort and convenience. Additional spaces like the sunroom, laundry, dining room, and foyer contribute to a balanced and practical design, with each room clearly labeled and dimensioned for easy navigation.
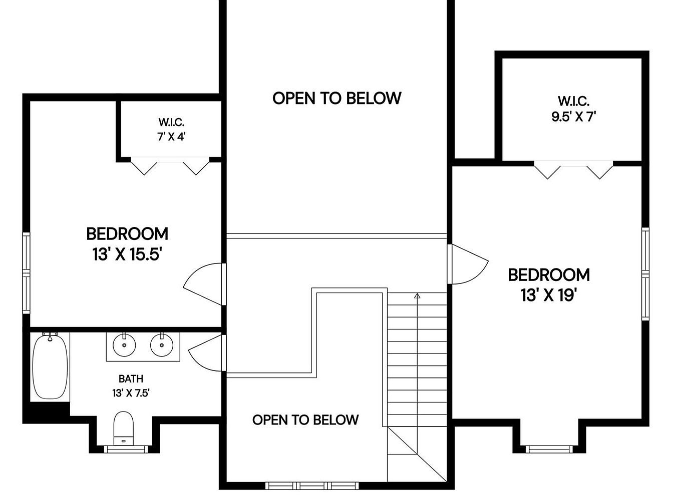
Upper Floor Layout

This layout features two spacious bedrooms, each with a walk-in closet (W.I.C.), providing ample storage space. The bedroom on the left measures 13′ by 15.5′ and includes a 7′ by 4′ walk-in closet, while the larger bedroom on the right is 13′ by 19′ with a 9.5′ by 7′ W.I.C. Between them is a full bathroom sized 13′ by 7.5′, equipped with a bathtub, double sinks, and a toilet. The central area is open to below, indicating a two-story ceiling or mezzanine that allows visibility and light flow to the lower level. Stairs are situated centrally for convenient access.
Basement Floor Plan

This basement layout emphasizes a spacious 33 by 33-foot open area, ideal for a variety of uses such as recreation, entertainment, or additional living space. Two separate storage rooms are positioned adjacent to the main basement space, one measuring 18.5 by 17 feet and the other 13 by 22 feet, offering ample room for organized storage solutions. The stairs are centrally located along one side, providing convenient access while maximizing usable space. The floor plan is simple and functional, with clean, straight lines defining each area, supporting flexible interior design options.
Entryway and Living Area

The open design features natural wood floors and trim that create a warm, inviting atmosphere. This space includes a high ceiling with wood paneling and an upper-level railing, adding architectural interest. Large windows and glass doors allow plenty of natural light, with an arched window enhancing the airy feel. To the left, a separate room with a bay window and brass chandelier suggests a dining area. A small powder room is tucked in the center area for convenience. The neutral wall colors balance the rich wood tones, presenting a rustic yet elegant style.
Living Room Features

This spacious living room boasts warm wooden floors that harmonize with the extensive exposed woodwork seen in the ceiling, stair railing, and trim around doors and windows. A striking stone fireplace commands attention as a central focal point with its rugged texture and a wooden mantle, offering rustic charm. The high, vaulted ceiling opens the area to an upper loft space, accessible by a narrow wooden staircase. Large windows invite natural light, brightening the neutral-toned walls and accentuating the blend of cozy natural elements with an open, airy layout. A wall-mounted TV adds a modern touch.
Kitchen Details

This kitchen features a bright and inviting layout with classic white cabinetry and contrasting black countertops. The farmhouse-style apron sink paired with a matte black faucet adds a rustic touch, while the stainless steel refrigerator and dishwasher provide modern functionality. White subway tile backsplash extends seamlessly around the corner, enhancing the clean and timeless aesthetic. Hardwood floors introduce warmth and natural texture, complemented by black hardware on drawers and cabinets. The lighting fixtures above are industrial-inspired, adding character to the room, and natural light pours in through the white-trimmed window, emphasizing the kitchen’s airy and fresh ambiance.
Dining Area

This dining area features warm wood flooring with a smooth, polished finish, creating a welcoming foundation. Soft gray walls contrast gently with natural wood trim that outlines the bay window and door frame, blending rustic charm with modern simplicity. The large bay window brings abundant natural light and offers views of lush greenery, enhancing the space’s airy feel. A unique chandelier with a cage-like design hangs centrally, providing a subtle yet stylish focal point. The open doorway leads toward the kitchen, hinting at a seamless flow between the rooms for easy entertaining and daily living.
Spacious Bedroom Interior

This bedroom features a calming neutral palette with soft gray walls and light beige carpeting that enhances the room’s airy feel. Four tall windows framed in natural wood allow ample natural light to flood the space, offering a scenic view of lush greenery outside. The ceiling is accented by a classic six-blade ceiling fan with brass details and frosted glass light fixtures, adding a touch of vintage warmth. Clean lines and minimal decoration give this room a versatile foundation, perfect for personalized furnishing choices. A modern wall-mounted air conditioning unit ensures comfort year-round.
Bathroom with Garden View

This bathroom features a soothing blend of natural wood and light ceramic tiles, creating a warm yet clean atmosphere. A large jetted bathtub is nestled beneath a trio of expansive windows framed in wood, offering an inviting garden view that brings nature inside. The ceiling is clad in warm-toned wood planks, adding a cozy cabin-like charm. The double vanity has wooden cabinetry with a white countertop and gold-tone fixtures that complement the warm wood accents. Practical towel bars and a white toilet complete this well-organized and tranquil bathing space.
Bathroom Vanity Area

This compact bathroom space features a classic wooden vanity with warm oak tones, topped by a sleek black granite countertop that adds a touch of sophistication. A white porcelain sink is centered beneath a round, frameless mirror, creating a clean and modern focal point. The brass fixtures enhance the vanity with subtle elegance, while the white walls provide a neutral, bright backdrop, emphasizing the wood’s natural grain. Visible in the mirror’s reflection, a wooden doorway and stair railing with white spindles add architectural interest and continuity to the home’s traditional style.
Upstairs Bathroom

This upstairs bathroom features a neutral color palette dominated by soft beige tiles and white walls, creating a clean and calming space. The sloped ceiling adds architectural interest while maximizing the use of attic space. A bathtub with a wall-mounted showerhead is nestled under the eaves, with decorative border tiles running horizontally around the room. Opposite the tub, a double vanity with a light speckled countertop and wooden cabinetry provides ample storage. Above, a large mirror with classic light fixtures enhances brightness. The room also includes a white toilet beneath a window framed in natural wood, complementing the warm tone of the cabinetry.
Front Porch View

This inviting front porch features warm wooden flooring and matching wooden railing with turned balusters, emphasizing rustic charm. The ceiling is paneled with wood, fitted with recessed lighting, providing subtle illumination. The porch runs alongside the house, bordered by lush greenery and a winding paved driveway that adds gentle curves to the landscape. The combination of teal siding with white-trimmed windows offers a bold yet natural color contrast. Surrounding mature trees and well-maintained grass invite peaceful outdoor enjoyment, blending the home’s cozy architectural details seamlessly with the surrounding nature.
Backyard and Patio

This outdoor space features a charming, spacious wooden deck extending from the rear of a dark green home with white-trimmed windows and doors. Multiple French doors provide generous access to the deck and allow natural light to fill the interior. A stone chimney rises from the roof, adding rustic character. The deck hosts a simple metal dining set for outdoor meals. Adjacent to the deck is a neatly fenced area containing a large in-ground pool with a surrounding stone patio. The backyard opens to lush green lawns bordered by towering trees and rolling hills, enhancing the sense of privacy and nature.
Backyard Swimming Pool

This outdoor backyard space features a medium-sized in-ground swimming pool bordered by a beige brick coping that adds a rustic charm. The pool water is clear and inviting, reflecting the light blue sky above. Surrounding the pool is a mix of grass and paved areas, framed by a simple wooden split-rail fence that blends naturally into the lush greenery beyond. A cozy seating area adjacent to the pool sits just outside a dark green house with multiple windows, creating a peaceful, private retreat amidst tall trees and vibrant foliage.
Listing Agent: David Turner of Compass Greater NY, LLC via Zillow
