
This beautifully renovated 6-bed, 4.5-bath Colonial home listed at $1,275,000 blends 1936 charm with modern comforts across 2,655 sq. ft. Featuring gleaming wood floors, a luxurious primary suite with dual rain showers, and a convenient bedroom-level laundry, this home is designed for modern living. The fully finished basement includes a legal bedroom, full bath, and recreation space. Enjoy a private deck and spacious backyard. Located near Takoma Metro and The Parks at Walter Reed, it offers easy access to shops, dining, and entertainment.
1. classic exterior

This inviting Colonial Revival home showcases classic elegance with its steeply pitched roof, white brick façade, and black shutters that contrast beautifully with the light exterior. A charming front porch welcomes you with its fresh white railing, offering a serene space to relax and enjoy the outdoors. The well-manicured landscaping with tidy shrubbery complements the home’s timeless style, while the wide front walkway leads to the main entrance, enhancing the welcoming appeal of this delightful residence.
2. Where is Washington?

Washington, D.C., officially known as the District of Columbia, is the capital of the United States, located on the east coast between Maryland and Virginia. As the political center of the country, it is home to iconic landmarks like the White House, the U.S. Capitol, and the Lincoln Memorial. The city features world-renowned museums, including the Smithsonian Institution, and expansive green spaces like the National Mall. With its diverse neighborhoods, vibrant cultural scene, and significant historical sites, Washington, D.C., offers a unique blend of history, politics, and modern city life.
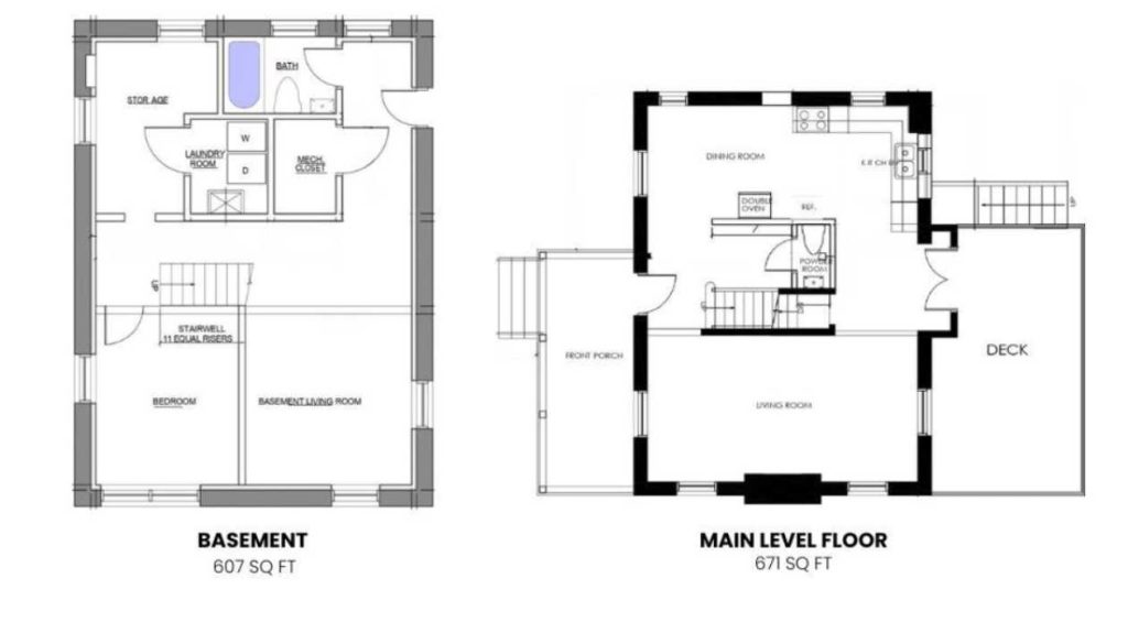
3. Main and lower level floor Plan

This two-level home features a 671 sq ft main level with a spacious living room, an open dining area, and a kitchen equipped with a double oven and refrigerator nook. A powder room is conveniently located near the stairwell, and the large deck offers an excellent outdoor space for entertaining. The 607 sq ft basement includes a bedroom, a sizable living room, a laundry room with designated washer and dryer spaces, a bathroom, and a mechanical closet. Additional storage space enhances the basement’s functionality, making it a practical and comfortable extension of the home.
4. Second and Third level Floor Plan

The second floor spans 831 sq ft and features a spacious primary bedroom with a large primary closet and an en-suite bathroom with double sinks, a shower, and a bathtub. Two additional bedrooms share a full bathroom, and there is a conveniently located washer and dryer space. The third floor, at 546 sq ft, includes a large room with flexible use as a bedroom or office, a full bathroom, and additional storage space. With multiple closets and well-designed layouts, both levels provide comfort and functionality.
5. Inviting Front Porch

This charming front porch offers a welcoming atmosphere, perfect for relaxing or greeting guests. The white brick exterior is paired with black shutters, adding a touch of classic elegance. Above, the warm wooden ceiling creates a cozy, inviting feel, while the sleek, gray decking provides a modern contrast. A simple railing wraps around the porch, allowing for unobstructed views of the landscaped front yard. The soft lighting from the wall-mounted lanterns enhances the porch’s welcoming ambiance during evening hours.
6. Minimalistic Living room

This inviting living room features a striking brick fireplace, providing a focal point and warmth for the space. The soft gray tones of the furnishings, including a plush sofa and modern armchair, create a serene and welcoming atmosphere. Natural light pours in through the large windows, highlighting the beautiful hardwood floors and tasteful artwork on the walls. The minimalist design is enhanced by subtle decor elements, like the greenery and simple lighting fixtures, adding a touch of tranquility and comfort to the room.
7. Elegant Kitchen

This stylish kitchen combines functionality with sleek design. The clean white cabinetry is complemented by the striking herringbone-patterned backsplash, which adds texture and visual interest to the space. The stainless steel appliances, including a gas range and range hood, enhance the modern aesthetic. Open shelving offers space for decorative elements or kitchen essentials, while natural light floods the room from the windows. A cozy dining nook nearby provides an inviting spot for casual meals or gatherings.
8. Dining Area with Deck Access

This charming dining area seamlessly connects to the outdoors through sliding glass doors that open to a spacious deck, perfect for dining al fresco or enjoying the view. The natural light streaming in from the large windows creates a warm and inviting atmosphere. The simple yet stylish dining table with wooden chairs offers a cozy space for meals or gatherings. The neutral color palette, paired with minimalistic artwork, adds a modern touch, making this area both functional and visually appealing.
9. Cozy Bedroom Retreat

This tranquil bedroom offers a serene and inviting atmosphere with its clean, neutral tones. The comfortable bed, adorned with simple yet stylish bedding and decorative pillows, is framed by two windows that fill the room with natural light. A contemporary ceiling fan provides a gentle breeze, enhancing the room’s airy feel. Elegant artwork on the walls and matching bedside lamps add a touch of sophistication, making this space perfect for rest and relaxation.
10. Sleek Bathroom Design

This modern bathroom features clean, minimalist design elements with a light and airy ambiance. The sleek vanity, with its wood-toned finish and polished countertop, provides ample space for essentials. The black-and-white geometric tile accent behind the shower adds a touch of bold sophistication. A simple yet elegant mirror and polished chrome fixtures complement the space’s contemporary appeal. Natural light flows through the adjacent window, brightening up the room and creating a relaxing, fresh atmosphere.
11. Bright Bedroom Retreat

This tranquil bedroom exudes a serene and welcoming atmosphere, featuring a neutral color palette that complements the natural light streaming through the windows. The soft tones of the striped bedding and plush area rug enhance the calm vibe of the room. A minimalist wall hanging adds a touch of artistic charm, while the compact, functional design maximizes the space. The modern ceiling fan ensures comfort, making it a perfect retreat for rest and relaxation.
12. Elegant Bedroom

This charming bedroom offers a serene escape with its clean, minimalist design. The soft, neutral tones of the bedding, paired with the elegant tufted headboard, create a peaceful ambiance. Large windows fill the room with natural light, complemented by the modern ceiling fan and soft lighting from the nightstands. A stylish area rug adds warmth and texture, making this space the perfect retreat for restful nights and quiet mornings.
13. Modern Bathroom

This sophisticated bathroom features an elegant blend of luxury and functionality. The walk-in shower, adorned with stunning dark marble tiles and a sleek glass enclosure, provides a spa-like experience. The herringbone-patterned floor tiles add an extra layer of texture to the space, while the white vanity with ample storage complements the dark accents throughout. Natural light streams in from the window, highlighting the modern fixtures and the subtle beauty of the room. A peaceful retreat for relaxation and rejuvenation.
14. Laundry Room

This efficient laundry area features sleek, modern black Samsung washer and dryer units, providing a stylish and functional space for your laundry needs. Tucked neatly into a closet, the design ensures that the laundry appliances remain out of sight, offering a clean, uncluttered look. The natural wood flooring adds warmth, and the surrounding white walls create a crisp, bright environment. A practical yet discreet solution that blends seamlessly with the home’s aesthetic.
15. Attic Space

This cozy attic room is filled with potential, offering a peaceful retreat with its vaulted ceiling and natural light streaming in from the small window. The minimalist design, with crisp white walls and rich hardwood flooring, provides a fresh and open feel. The ceiling fan ensures comfort in any season, while the centrally placed vent adds to the room’s practicality. This versatile space can be used as a small bedroom, office, or creative area, adding to the home’s charm.
16. Elegant Bathroom

This bright and airy bathroom offers a tranquil, modern retreat with a refined design. The sleek white cabinetry, paired with polished countertops, provides a clean, sophisticated look. A minimalist vessel sink is complemented by an elegant faucet, while the large mirror and well-placed lighting illuminate the space. The walk-in shower with stylish gray subway tiles and a pebble floor adds a spa-like feel, ensuring a refreshing experience every time.
17. Bathroom with Sleek Finishes

This modern bathroom features clean, neutral tones with elegant finishes. The large white tiles with subtle veining add a touch of luxury to the space. The shower area includes a sleek rain showerhead and a convenient glass niche for storage. A minimalist vanity with a modern faucet and ample storage completes the look, offering both style and functionality. A bright, airy atmosphere is created by the natural light streaming through the window.
18. basement with potential

This basement features light-colored flooring and neutral walls, creating a spacious and inviting atmosphere. The high ceiling and recessed lighting enhance the feeling of openness, while the large window provides natural light. The versatile layout offers various possibilities for customization, whether it be a home office, entertainment room, or extra living space. The simple, clean design ensures that the room can easily blend with any decor style.
19. Outdoor Deck

This expansive wooden deck provides an ideal space for outdoor entertaining, offering ample room for seating and dining. With its sturdy railing and clean, natural wood finish, the deck invites relaxation while taking in the scenic views of the surrounding neighborhood. The open space below the deck allows for easy access to the backyard, creating a seamless connection between indoor and outdoor living areas. Perfect for both quiet moments and lively gatherings.
Listing agent – Maggie Gonzalez @ Compass via compass
