
Built in 1987, this colonial-style home offers 3,026 square feet of living space on a spacious 0.32-acre lot. Featuring a timeless colonial design with a symmetrical facade, brick construction, and elegant white trim accents, the property includes 3 bedrooms and 2.5 bathrooms. Priced at $479,900, it boasts a 2-car side-entry garage, a large deck with a hot tub, an above-ground swimming pool, and a landscaped pond off the covered front porch. Manicured gardens, mature trees, and a charming walkway enhance its curb appeal.
1. Timeless exterior

Featuring a classic brick facade with beige panel siding, the home exudes timeless charm. A steeply pitched roof with multiple gables enhances its architectural appeal, while a prominent bay window adds depth. The covered front entryway is framed by manicured landscaping and a curved walkway, creating an inviting approach. The right wing extends outward, integrating a single-story section that maintains architectural harmony. Large windows ensure ample natural light, and a side-entry two-car garage preserves the clean front elevation.
2. Where is Woodfield?

Woodfield is a serene residential community located in Washington Township, MI, offering a blend of suburban comfort and natural beauty. Characterized by tree-lined streets, spacious lots, and well-maintained homes, Woodfield provides a peaceful retreat while remaining close to essential amenities. The neighborhood is conveniently situated near shopping centers, dining options, and recreational facilities, making it ideal for families and professionals alike. With easy access to major roads and highways, Woodfield combines the charm of suburban living with the convenience of city accessibility.
3. lower level layout

Spacious and versatile, the basement features a generously sized recreation room, ideal for entertainment, relaxation, a home gym, or even a home theater, with plenty of customization options to fit various needs. Adjacent to this space is a dedicated electrical room, keeping essential systems organized, easily accessible, and out of sight. A built-in storage area provides ample space for seasonal items. Well-planned and highly functional, the basement enhances the home with recreational space, storage solutions, and endless possibilities.
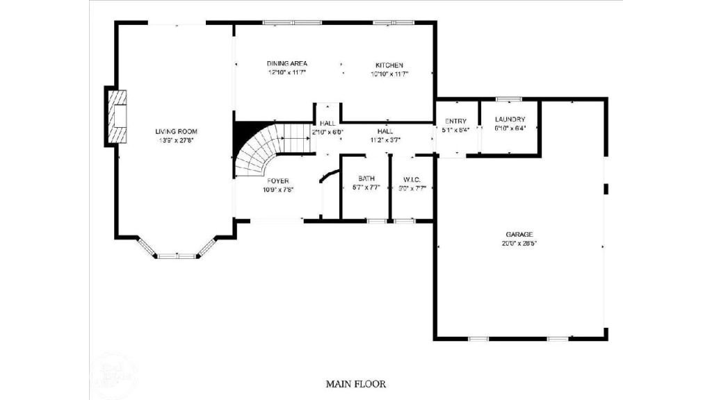
4. main level layout

The main floor features a spacious and functional layout, designed for both comfort and convenience. Upon entry, a foyer leads to a curved staircase, creating an elegant first impression. The living room, with its expansive layout, offers plenty of space for relaxation and entertaining. Connected to the living room, the dining area flows seamlessly into the kitchen, promoting an open-concept feel. A hallway leads to a half bath, a walk-in closet (W.I.C.), and access to the laundry room, which is conveniently situated near the entry to the garage. The garage provides ample space for vehicles and storage, ensuring practicality. Thoughtfully designed, this floor balances open gathering spaces with private and utility areas for a well-rounded home experience.
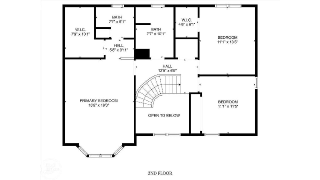
5. upper level layout

Designed for comfort and functionality, the second floor provides a well-balanced layout. A spacious primary bedroom features an en-suite bath and a walk-in closet for privacy and convenience. Two additional bedrooms share access to a second bathroom and a smaller walk-in closet, offering ample living space. An open hallway overlooking the main floor adds to the airy feel of the design. With dedicated storage, well-placed windows, and easy access to essential spaces, this floor enhances both practicality and comfort.
6. Spacious Backyard

Containing a spacious backyard designed for both relaxation and entertainment, this property features a vast open lawn that allows for endless outdoor activities, while the above-ground pool guarantees refreshing summer fun for the whole family. A large deck provides the ideal space for barbecues, outdoor dining, or lounging in the sun. Whether hosting lively gatherings, enjoying a peaceful evening under the stars, or making lasting memories with loved ones, this thoughtfully planned outdoor space blends comfort and functionality, creating the perfect setting for any occasion.
7. inviting Deck

Featuring an inviting and well-equipped backyard, this property enhances its charm with a perfect blend of relaxation and entertainment. A spacious wooden deck with a sturdy pergola provides shade and ambiance, complemented by string lights for a cozy atmosphere. The built-in seating and dining area create an inviting spot for gatherings, while the nearby hot tub adds a luxurious touch for year-round enjoyment. A landscaped pond and lush greenery further elevate the serene outdoor experience.
8. Foyer with Elegant Staircase

As you step inside, you are greeted by a soaring two-story foyer that exudes warmth and elegance. A graceful staircase with soft carpeting curves gently, adding a touch of sophistication to the space. The rich wood flooring complements the bold double doors, creating a striking first impression. A beautiful chandelier casts a soft glow, enhancing the inviting atmosphere. Large windows allow natural light to flood in, highlighting intricate molding and rustic accents. A decorative console table and elegant wall art complete the space, setting the perfect tone for the rest of the home.
9. Powder Room with Warm Accents

Offering a balance of warmth and sophistication, this powder room showcases a granite countertop paired with a dark wood vanity for a timeless appeal. Soft yellow walls enhance the inviting atmosphere, while a large framed mirror reflects the ambient glow of stylish vanity lighting. Thoughtfully selected décor, including a potted plant and coastal artwork, introduces a refreshing, nature-inspired touch. Elegant fixtures and a decorative backsplash complete the space, adding charm and refinement.
10. cozy Living Space

Designed for both style and comfort, this living room offers a welcoming retreat for any occasion. The cozy fireplace provides warmth and charm, while the spacious layout invites relaxation and connection. Natural light floods in through a picturesque bay window, enhancing the airy feel. Plush seating, elegant finishes, and rich hardwood floors create a space that is both inviting and sophisticated—perfect for entertaining guests or unwinding with family. A statement chandelier and tasteful décor complete the refined ambiance.
11. bright kitchen

Sleek and functional, this kitchen is designed for both everyday use and entertaining. Crisp white cabinetry, gleaming quartz countertops, and stainless steel appliances create a timeless aesthetic. The spacious layout offers ample storage and prep space, while natural light enhances the bright and airy feel. A stylish subway tile backsplash and modern pendant lighting add character, while the central island serves as a hub for casual dining and conversation. This kitchen perfectly blends beauty and practicality.
12. Inviting Dining

Gather around and enjoy meals in this inviting dining area, where natural light pours in through large windows, creating a warm and welcoming atmosphere. The open layout seamlessly connects to the living space, making it perfect for hosting guests or enjoying everyday dining. A rich wood dining set adds warmth and character, while modern finishes and neutral tones offer a timeless appeal. Whether for casual breakfasts or elegant dinners, this space is designed for memorable moments.
13. Serene Master Suite

This spacious bedroom offers a perfect blend of comfort and charm. The vaulted ceiling with exposed wooden beams enhances the airy feel, while the soft green walls create a calming atmosphere. A large bay window allows natural light to pour in, providing a cozy nook for relaxation. The room is thoughtfully designed with a blend of modern and rustic elements, from the gleeming ceiling fan to the elegant furniture. Whether unwinding in bed or enjoying a quiet moment in the seating area, this bedroom is a true retreat.
14. Expansive Walk-In Closet

Associated with the master bedroom, this spacious walk-in closet offers ample storage with a well-organized layout, featuring built-in shelves, hanging racks, and cabinets to accommodate a variety of clothing and accessories. A dedicated shoe storage wall keeps footwear neatly arranged, while overhead bins provide additional space for seasonal items. Soft recessed lighting enhances visibility, while a full-length mirror adds both function and style. This thoughtfully designed space ensures everything is within easy reach, making daily routines effortless and efficient.
15. Functional Bathroom

A master bathroom that offers a bright and clean design with white panel walls and a marble-style vanity. A large mirror enhances the sense of space, while a frosted glass shower enclosure provides privacy. Natural light filters in through the window, complementing the coastal-inspired décor. Storage solutions, including a wall-mounted cabinet, help keep essentials organized. Elegant fixtures, soft lighting, and a spa-like soaking tub complete this functional and refreshing retreat.
16. Stylish Kid’s Bedroom

This bedroom blends comfort with a fun, personalized touch, heavily inspired by Hello Kitty. The soft gray walls provide a modern backdrop, complemented by cozy white bedding and stylish furniture. A standout feature is the vanity area, highlighted by a signature Hello Kitty chair, adding a playful charm. Shelving units filled with plush toys, collectibles, and decorative accents reflect the occupant’s love for cute and whimsical elements. With natural light streaming through dual windows and a ceiling fan for added comfort, this space is both stylish and uniquely expressive.
17. Bathroom with Dual Vanities

Featuring a practical layout with two separate vanities, this bathroom provides both convenience and ample storage. Dark wood cabinetry contrasts beautifully with light quartz countertops, creating a balanced and sophisticated look. Large framed mirrors reflect light, making the space feel open and airy. The room includes a sleek glass-enclosed shower for privacy and efficiency. A well-placed window allows natural light to brighten the neutral-toned walls and tiled flooring, enhancing the overall ambiance.
18. Multifunctional Space

Offering a harmonious blend of functionality and personal expression, this versatile room serves as both a study and a relaxation space. Soft blue walls create a calming atmosphere, complemented by a plush sofa and an ergonomic gaming chair with a bow accent. Organized bookshelves house an impressive collection of novels and collectibles, while carefully curated artwork, including Van Gogh’s Starry Night, adds an artistic touch. A sleek desk with ambient lighting enhances productivity and comfort.
19. Versatile Basement

Featuring a dynamic mix of recreation and productivity, the basement offers ample space for both work and leisure. A vibrant blue pool table serves as the centerpiece, inviting friendly competition, while a dedicated office area with a rich wooden desk ensures functionality. Warm seating, wood-paneled accents, and soft carpeting enhance the relaxed atmosphere. A built-in wet bar adds convenience for entertaining, making this versatile space an ideal retreat for both social gatherings and focused tasks.
20. efficient Laundry Room

Offering a functional and efficient laundry space, this room is designed for convenience. Equipped with a modern washer and dryer, built-in shelving, and ample hanging space, it ensures seamless laundry routines. A utility sink adds practicality, while neutral tones and natural light create a fresh and inviting atmosphere. Durable tiled flooring and overhead cabinetry provide additional storage, making this well-organized space both stylish and highly functional.
Listing agent – Tom Zibkowski @ Real Estate One Shelby Twp via realtor.com
