
This elegant 5-bedroom, 5-bathroom residence in the prestigious Georgetown Village neighborhood listed at $1,695,000 offers 3,909 sq. ft. of luxurious living space. Built with modern sophistication, the home features 10-foot ceilings, oak flooring, and two sleek gas fireplaces. A gourmet kitchen with a waterfall island and GE Profile appliances complements the bright, open layout. The primary suite boasts a private balcony, spa-inspired bath, and custom walk-in closet. Additional highlights include a spacious lower-level entertainment area, a state-of-the-art sound system, and a two-car garage with a glass-paneled door.
1. contemporary exterior

This stunning two-story modern home showcases a sophisticated exterior design with a blend of materials, including crisp white siding and an eye-catching stone accent wall. The large black-framed windows provide ample natural light while enhancing the home’s clean, contemporary aesthetic. A warm wooden front door adds character, and the sleek glass-paneled garage door complements the modern look. The well-maintained landscaping and minimalist driveway complete the home’s inviting yet luxurious curb appeal.
2. Where is Bethesda?

Bethesda is an affluent community located in Montgomery County, Maryland, just northwest of Washington, D.C. Known for its vibrant downtown, Bethesda offers upscale dining, shopping, and cultural attractions, including art galleries and theaters. It is home to major institutions like the National Institutes of Health (NIH) and the Walter Reed National Military Medical Center. With tree-lined neighborhoods, excellent schools, and easy access to the nation’s capital via the Metro, Bethesda is a sought-after place to live and work in the D.C. metropolitan area.
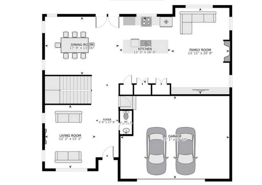
3. main floor layout

The main floor features a spacious two-car garage with a convenient door that opens directly into the living area. The main entrance welcomes you into a foyer, with a powder room and a cozy living area on the left. Beyond the foyer, a staircase leads to the upper level. The open layout includes a dining area on the left, a centrally located kitchen, and a family room on the right. The kitchen also offers outdoor access, making it easy to enjoy backyard gatherings. Additionally, there are ample storage spaces, adding to the home’s functionality.
4. second floor layout

The second-floor stairs lead to a spacious hallway that connects all the main living areas. On one side, there’s a bedroom with an attached bath, offering privacy and comfort. Two additional bedrooms share a well-appointed bathroom, making it a practical setup for family or guests. A convenient laundry closet is centrally located for easy access. The primary bedroom serves as a luxurious retreat with a walk-in closet, an elegant bathroom, and direct access to a private outdoor terrace, perfect for enjoying peaceful moments.
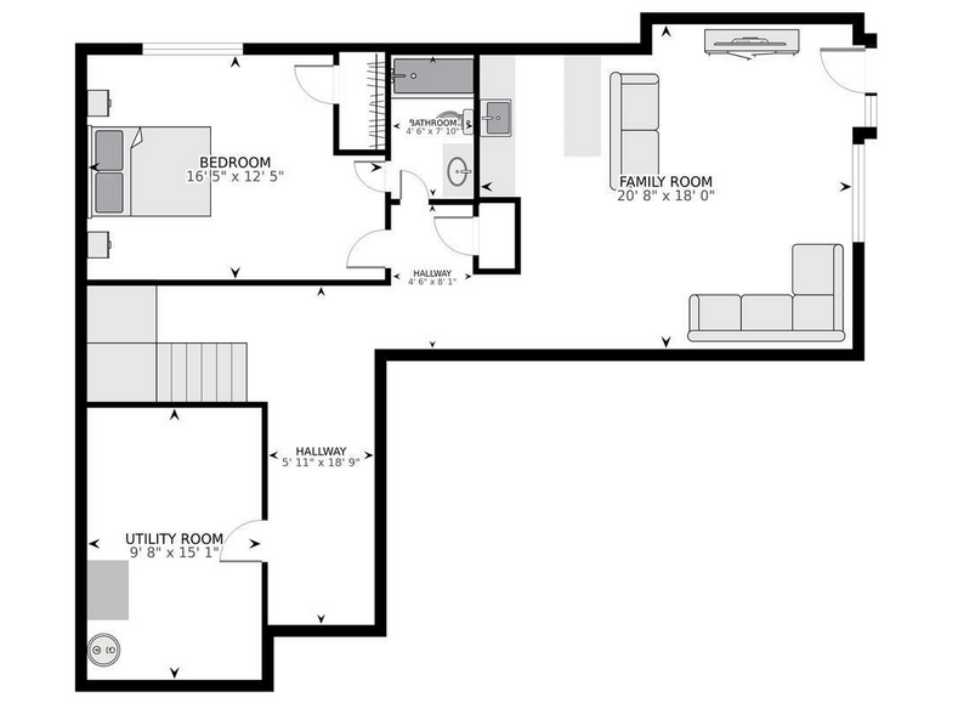
5. basement floor layout

The basement opens into a hallway leading to various functional spaces. On one end, there’s a convenient utility room. A comfortable bedroom with a built-in wardrobe and an attached bathroom provides privacy and comfort. At the heart of the basement is a spacious family room, perfect for relaxation or gatherings. Adding to its charm, the family room features a small bar with a sink, making it ideal for entertaining. From here, step out onto the outdoor terrace, offering a serene space for enjoying fresh air and scenic views.
6. Elegant Living Space

This beautifully designed foyer welcomes you to this living area which offers a bright and inviting atmosphere, featuring large windows that allow for an abundance of natural light. The warm wooden front door with horizontal glass inlays sets a modern yet welcoming tone. A sleek fireplace with a minimalist white surround adds a cozy focal point, complemented by neutral-toned furniture that enhances the sophisticated aesthetic. The hardwood flooring, plush area rug, and stylish seating arrangement create a perfect blend of comfort and modern luxury, making this space ideal for both relaxation and entertaining.
7. Minimalist Dining Room

This dining space exemplifies modern minimalist elegance with clean lines and a neutral color palette. The large wooden dining table with a natural finish is paired with sleek white chairs featuring gold metal legs. A statement chandelier with geometric gold accents hangs above, adding a contemporary flair. Natural light pours in through tall windows, creating an airy ambiance. The large mirror on the back wall expands the space visually, reflecting the light and views. Soft beige textured walls and a light area rug complete the serene and sophisticated look.
8. Kitchen with Luxe Accents

This contemporary kitchen boasts a sleek, open-concept design with an expansive white quartz island that doubles as a breakfast bar. The glossy white cabinetry offers ample storage, while stainless steel appliances add a modern touch. Chrome pendant lights provide a reflective, industrial element. Warmth is introduced through the hardwood flooring and plush upholstered barstools with metallic bases. Floor-to-ceiling windows and glass doors bring in natural light, seamlessly connecting the indoor and outdoor spaces.
9. inviting family Room

This inviting family room blends contemporary comfort with elegant design. A built-in electric fireplace with a marble surround adds warmth and serves as a focal point. The neutral-toned sectional and plush armchairs create a relaxed seating arrangement, complemented by a textured area rug. The wooden cabinetry provides functional storage and frames a mounted television. Large windows flood the space with natural light, while layered lighting from recessed ceiling lights ensures a cozy ambiance in the evening.
10. Serene Bedroom

This elegant bedroom exudes sophistication with its neutral color palette and plush furnishings. The tufted upholstered bed serves as a statement piece, paired with crisp white bedding and a soft faux fur throw for added texture. Large windows dressed with floor-length curtains allow natural light to stream in. A tiered chandelier adds a glamorous focal point, while dark wood nightstands provide a rich contrast. The oversized rug anchors the space, enhancing its cozy and inviting atmosphere.
11. Spa-Like Bathroom

This sleek bathroom offers a luxurious spa-like experience with its minimalist design and high-end finishes. Large, marble-look tiles cover the walls, providing a sophisticated, clean aesthetic. A freestanding soaking tub adds elegance, while the frameless glass shower enclosure enhances the open feel. Dual vanity sinks with polished chrome fixtures provide practicality and style. The large window brings in natural light, creating a bright and airy ambiance. Dark gray floor tiles contrast beautifully with the white surfaces, completing the modern look.
12. Walk-In Closet

This walk-in closet offers an elegant and organized storage solution with custom-built cabinetry in a warm wood tone. The glass-front cabinets and open shelving provide ample space to display designer handbags, accessories, and perfumes. An island with drawers in the center enhances functionality while adding a touch of sophistication. Upper cabinets with accent lighting create a boutique-inspired ambiance. The hardwood flooring complements the cabinetry, and the natural light from the window brightens the space, making it feel airy and inviting.
13. Cozy Bedroom

This bedroom features a minimalist contemporary design with a neutral color palette accented by deep blue tones. The plush, tufted headboard adds a soft, luxurious feel, while layered pillows create a welcoming atmosphere. Natural light from the large windows brightens the space, complemented by adjustable roller shades for privacy. Mirrored nightstands and elegant lamps add a touch of glamour, while the textured throw blanket enhances comfort and warmth. The clean lines and balanced design make this an ideal space for relaxation.
14. Minimalist Bathroom

This bathroom showcases a clean, minimalist design with a bright and airy feel. The frameless glass shower enclosure adds a sense of spaciousness, while the white subway tiles create a timeless backdrop. The built-in shower niche provides practical storage without compromising aesthetics. A floating vanity with a quartz countertop enhances the modern look, complemented by a sleek chrome faucet. The wood-look flooring adds warmth and contrast, balancing the predominantly white palette. A large mirror reflects light, making the space feel even more open and inviting.
15. Serene Nursery

This nursery embraces a soft, minimalist aesthetic with a calming white palette. A white crib, clean-lined and simple, anchors the space, while a textured shag rug adds warmth and comfort underfoot. The wooden dresser in a muted tone offers ample storage and complements the neutral tones. Thoughtful details like the name “Serena” in delicate wall lettering personalize the room. A cozy armchair with a plush teddy bear creates a snug reading nook. Natural light streams through the window, making the room feel bright and airy.
16. Basement Lounge

This modern basement lounge features a cozy, inviting atmosphere with sleek design elements. The gray sectional sofa offers ample seating, complemented by a large burgundy bean bag for a relaxed vibe. A minimalist coffee table rests on a plush white rug, adding warmth to the dark wood flooring. The built-in bar area, with black stools and gold accents, provides a stylish spot for entertaining. Artistic wall décor and recessed LED lighting add a touch of sophistication, while the mirrored backsplash behind the bar enhances the sense of space.
17. Serene Backyard

This peaceful backyard retreat offers a perfect blend of natural beauty and refined landscaping. A striking stone retaining wall adds texture and character, separating the lush green lawn from the manicured evergreens that provide privacy. The small patio seating area, furnished with modern outdoor chairs and a table, creates a cozy spot for relaxation. Mature trees and shrubs add shade and depth, while the neutral tones of the stone wall complement the home’s exterior, enhancing the overall tranquil atmosphere.
Listing Agent – Lindsay Lucas @ Compass via COMPASS
