
Nestled in the heart of Yonkers, this charming 3-bedroom, 3-bath Colonial blends timeless elegance with modern comfort. Set on a generous 7,841 sq. ft. lot, the 1,536 sq. ft. home welcomes you with an inviting entrance foyer, high ceilings, and exquisite natural woodwork. The open chef’s kitchen boasts quartzite countertops, an eat-in area, and ample storage. Original details add character, while high-speed internet ensures convenience. The spacious primary suite features a well-appointed bathroom. Priced at $699,000, this home offers a perfect balance of sophistication and warmth.
1. Elegant Brick Colonial Home

This stunning brick Colonial home exudes timeless elegance with its rich architectural details and charming curb appeal. A grand arched entryway with stately columns welcomes you to the beautifully maintained facade, complemented by dark-framed windows and a steeply pitched roof. The lush green lawn and manicured landscaping enhance the home’s inviting presence. A long driveway leads to a detached garage, while the cozy front patio offers a perfect space for relaxation. Classic yet sophisticated, this home blends historic charm with modern comfort.
2. where is Yonkers, NY?

Yonkers, NY, is a vibrant city located just north of New York City in Westchester County, along the Hudson River. Known for its scenic waterfront, historic architecture, and diverse communities, Yonkers offers a mix of urban convenience and suburban charm. The city features excellent parks, including Untermyer Gardens and Tibbetts Brook Park, as well as shopping and dining at Ridge Hill. With easy access to NYC via Metro-North, top-rated schools, and cultural attractions like the Hudson River Museum, Yonkers is a dynamic place to live and explore.
3. Spacious & Light-Filled Main Level

The ground floor of this charming home offers a spacious and functional layout, featuring a welcoming foyer that leads into a bright and airy living room. Adjacent to the living area is a cozy sunroom, perfect for relaxation. The expansive eat-in kitchen is ideal for both casual dining and entertaining. A central hallway provides access to a convenient half-bath. With an open flow, high ceilings, and abundant natural light, this level seamlessly combines comfort and elegance.
4. Bright & Cozy Bedroom Retreat

The second floor of this home offers a thoughtfully designed layout featuring three comfortable bedrooms, including a spacious primary suite with ample closet space. A central hallway connects the bedrooms to a well-appointed full bathroom, providing convenience and privacy. Large windows throughout allow for abundant natural light, enhancing the warm and inviting atmosphere. With its blend of comfort and functionality, this level provides a peaceful retreat perfect for rest and relaxation.
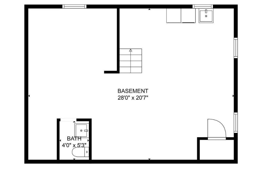
5. Versatile Lower Level With Potential

The basement of this home offers a spacious and versatile area, perfect for additional living space, a recreation room, or a home gym. Featuring a convenient half-bath, this level provides both comfort and functionality. A separate entrance adds flexibility, while windows allow for natural light to brighten the space. A dedicated utility area with a sink enhances practicality. Whether used for entertainment, storage, or a workspace, the basement adds valuable square footage to this charming home.
6. Cozy Modern Living Room

This living room exudes a cozy yet modern charm with a neutral color palette and warm accents. A soft gray sectional sofa, adorned with mustard yellow and burgundy throw pillows, sits atop a plush, patterned area rug. A sleek ottoman doubles as a coffee table, holding a decorative tray. A striking stone fireplace with a mounted TV serves as a focal point, flanked by white vases filled with dried floral arrangements. Natural light streams through a central window framed by sheer curtains, while French doors and a bookshelf add character and functionality to the space.
7. Cozy Sunroom And Office

This sunroom is a bright and inviting workspace with large wooden-framed windows that fill the space with natural light and offer scenic outdoor views. A sleek white desk and matching storage create a functional home office setup, complete with a modern chair and computer. A rustic stone wall adds texture and character, complementing the warm wood tones. A vintage-style chandelier hangs from the ceiling, while a radiator beneath the windows provides warmth. A potted cactus adds a natural touch to this cozy, stylish retreat.
8. Rustic Modern Dining Space

This dining area blends rustic and modern elements, featuring a large wooden table surrounded by black folding chairs. Overhead, industrial-style light fixtures with cage designs add character, while a wooden beam enhances the warm, inviting ambiance. The open-concept space connects seamlessly to a bright kitchen with white cabinetry, open shelving, and stainless steel appliances. Natural light pours in through wooden-framed windows, highlighting the granite countertops and cozy details like a patterned rug beneath the table.
9. Rustic Charm Meets Modern Function

This kitchen blends modern convenience with rustic charm, featuring open shelving with elegant gold brackets and a stylish tile backsplash. Stainless steel appliances, including a gas range and vent hood, provide functionality, while natural wood window trim adds warmth. Marble countertops offer ample workspace, complemented by a farmhouse sink and brass faucet. Large windows invite natural light, enhancing the inviting atmosphere. A wooden dining table anchors the space, making it ideal for gathering and entertaining.
10. Warm Vintage Hallway

This hallway exudes warmth and character with its rich hardwood floors, vintage wooden doors, and soft cream-colored walls. A patterned rug adds texture and elegance, while a dark wood dresser provides both storage and charm. A framed mirror and a hanging map lend a personal touch to the space. Natural light filters in from adjacent rooms, creating an inviting ambiance. An open attic hatch hints at the home’s history, and the view into a cozy bedroom enhances the hallway’s welcoming atmosphere.
11. Serene Blue Primary Retreat

The primary bedroom is a serene retreat featuring soft blue walls, natural wood-trimmed windows, and an elegant wrought iron bed frame. Large windows allow ample natural light to brighten the space, complemented by flowing curtains and a plush area rug. White furniture, including dressers and nightstands, provides a clean, timeless contrast. Framed vintage maps adorn the walls, adding character, while a ceiling fan ensures comfort. This inviting bedroom balances warmth and sophistication for a peaceful escape.
12. Cozy and Bright Kids’ Retreat

This charming bedroom is designed with warmth and functionality in mind. A cozy bunk bed with plush stuffed animals adds a playful touch, making it a perfect space for a child. The room is filled with natural light from two large windows framed in natural wood, complementing the neutral-toned walls. A ceiling fan provides comfort, while a white desk and floating shelves add practicality. A soft area rug over hardwood floors enhances the inviting atmosphere, making this space both stylish and cozy.
13. Cozy Kids’ Bedroom Retreat

This cozy bedroom exudes warmth and charm with its soft beige walls and natural wood-trimmed windows, allowing ample sunlight to brighten the space. A low-profile bed with a playful animal-themed duvet rests against the corner, accompanied by a collection of plush toys for a comforting touch. A patterned area rug adds texture and personality, while soft gray curtains frame the windows, offering both privacy and style. Thoughtful details, including a chalkboard wall and whimsical wall art, complete this inviting retreat.
14. Modern Gray and White Bathroom

This bathroom features a clean, modern design with soft gray walls and white subway tiles in the spacious walk-in shower. A sleek white vanity with ample storage provides functionality, complemented by black hardware for a stylish contrast. The room is well-lit with elegant light fixtures, and a framed minimalist artwork adds a touch of sophistication. A woven basket sits beside the toilet for additional storage, enhancing the bathroom’s practicality while maintaining a serene and polished atmosphere.
15. Charming Patio with Lush Landscaping

The outdoor area of this home features a spacious, well-maintained patio with stylish wrought iron furniture, perfect for outdoor dining and entertaining. The lush green lawn is framed by mature trees and vibrant landscaping, adding a serene touch. A charming brick garage and a wooden storage shed provide functionality and character. The space is enhanced by a stone-paved walkway, a sturdy storage bench, and a cozy ambiance, making it an ideal setting for relaxation and gatherings.
Listing agent – Eugenie M. Meluso @ Julia B Fee Sothebys Int. Rlty via Zillow
