
Welcome to this stunning 3-bed, 3-bath ranch home in the desirable Saratoga Woods community. Featuring vaulted ceilings and abundant natural light, the open-concept design connects the great room, formal dining, and a beautifully updated kitchen. Step onto the new spacious deck overlooking the fenced backyard — ideal for relaxation or entertaining. The primary suite offers a luxurious bath with a soaking tub, separate shower, and double sinks. The walkout basement includes a cozy family room with a fireplace and versatile spaces for guests or a home office. Recent updates include a new kitchen counter, furnace, and fresh paint.
1. charming brick exterior

This stunning home boasts a beautifully crafted brick facade complemented by crisp white trim and a welcoming covered entryway. Large windows allow for ample natural light, enhancing the home’s inviting appeal. The well-manicured landscaping, including potted plants and mature trees, adds to the home’s curb appeal. A gently sloping walkway leads to the entrance, offering both convenience and style. This home blends classic architecture with modern elegance, making it a standout in the neighborhood.
2. Where is Louisville?

Louisville is a vibrant city located in north-central Kentucky, along the Ohio River, bordering Indiana. As the largest city in the state, it is known for its rich history, cultural landmarks, and thriving arts scene. Louisville is famously home to the Kentucky Derby, held annually at Churchill Downs, as well as the Louisville Slugger Museum & Factory. The city’s historic districts feature beautiful Victorian architecture, while the waterfront offers parks and walking trails. With a mix of Southern charm, diverse neighborhoods, and a growing culinary scene, Louisville is a dynamic destination in the heart of Kentucky.
3. main level layout

The main level welcomes you with a spacious foyer that opens into a bright and inviting living room. To the right, you’ll find a formal dining room, while directly across is a well-equipped kitchen, perfect for culinary adventures. A staircase in the living room leads to the lower level, adding a seamless flow to the layout. The left side of the home is dedicated to the luxurious primary bedroom suite, complete with an elegant bath and a generously sized walk-in closet. On the right side, there are two comfortable secondary bedrooms, one featuring its own attached bath and walk-in closet. A convenient laundry room completes this thoughtfully designed floor plan.
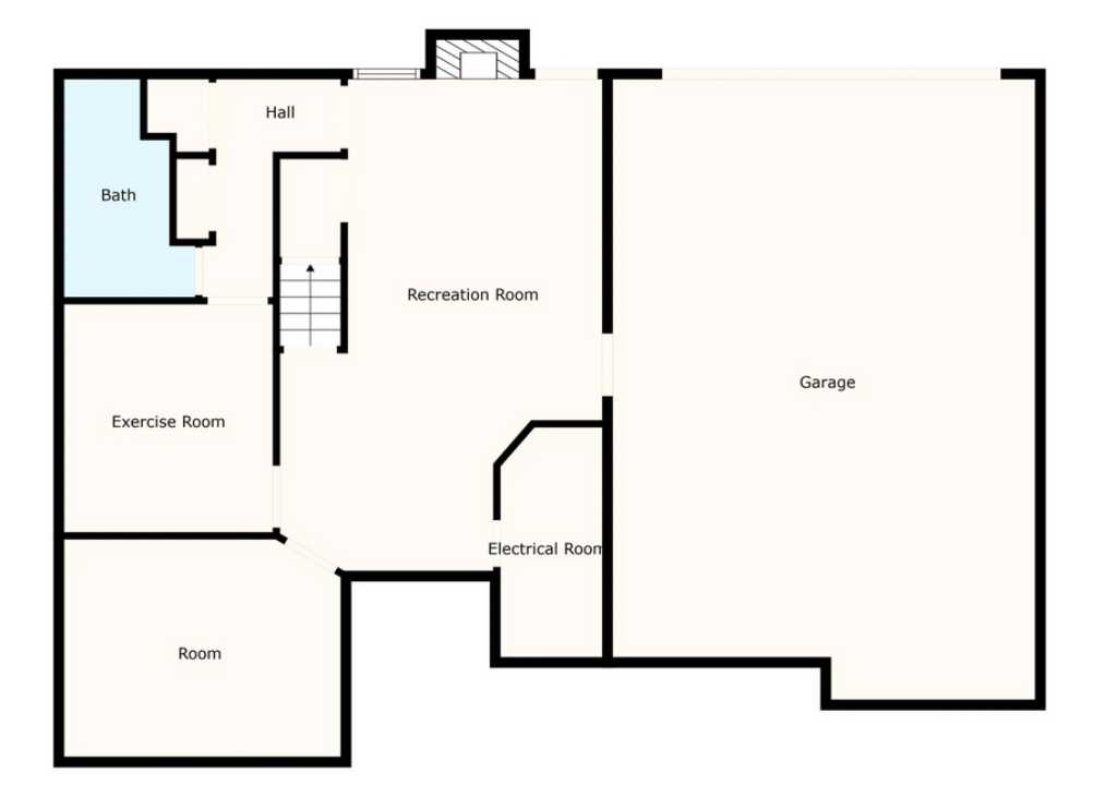
4. lower level layout

The stairs lead down to a spacious basement, where a cozy recreation room with a fireplace serves as the perfect spot for relaxation or entertaining. Adjacent to it is an electric room, providing practical utility space. For fitness enthusiasts, an exercise room offers ample space for workouts. An additional flexible room can be tailored to suit your needs, whether as a guest room, home office, or hobby space. A convenient bathroom completes the layout. The basement also features a garage, adding ease and accessibility to this level.
5. Bright and Inviting Entryway

Step into a beautifully designed entryway that seamlessly blends warmth and sophistication. The open-concept layout features rich hardwood flooring, classic white wainscoting, and soft neutral walls that enhance the natural light streaming in through large windows. The grand front door, with its intricate glass paneling, creates a welcoming first impression, while the airy atmosphere flows effortlessly into the adjacent dining and living spaces. This home offers a perfect balance of charm and modern elegance.
6. Sunlit Dining Area

This charming dining nook is bathed in natural light, thanks to its expansive windows that offer a lovely view of the neighborhood. The warm tones of the hardwood flooring complement the neutral walls and crisp white wainscoting, creating a welcoming and elegant space. A stylish cluster of pendant lights adds a modern touch, while woven dining chairs bring a cozy, organic feel. Perfect for intimate meals or morning coffee, this space blends comfort and sophistication seamlessly.
7. Elegant Living Room

This spacious living room exudes warmth and sophistication with its high vaulted ceiling, soft neutral tones, and stylish décor. The plush beige sectional offers ample seating, complemented by cozy accent chairs with decorative green pillows. A stunning abstract painting with red hues adds a bold pop of color, tying in beautifully with the floral accents. The marble fireplace serves as a focal point, adorned with a sleek gold-framed mirror and lush greenery, enhancing the room’s refined aesthetic.
8. Laundry Room

This sleek and efficient laundry room features modern blue front-load washer and dryer units, adding a pop of color to the space. White cabinetry provides ample storage for laundry essentials, while an open wire shelf offers additional organization options. The neutral-toned walls create a clean and calming ambiance, complementing the home’s elegant hallway with rich hardwood flooring and classic white wainscoting. Conveniently located near the kitchen, this space combines practicality with contemporary style, making laundry tasks effortless and organized.
9. serene Bedroom

This beautifully designed bedroom offers a serene and inviting atmosphere with soft neutral walls, a plush gray upholstered headboard, and a crisp white bedspread. Deep purple accent pillows add a touch of sophistication, while matching white nightstands with gold hardware provide stylish storage. Natural light streams through the window, framed by delicate patterned curtains, creating a bright and airy feel. A ceiling fan with wooden blades adds both charm and functionality, making this space the perfect retreat for relaxation and comfort.
10. Black & White Bathroom

Timeless design meets modern comfort in this sophisticated bathroom, where a striking black-and-white tile motif creates a bold visual statement. A spacious vanity with a gleaming white countertop offers ample storage, while a large mirror enhances the sense of openness. Natural light filters through dual frosted windows, illuminating the space with a soft glow. A classic tub-shower combo, framed by a chic striped curtain, completes the design, making this a bright and refreshing retreat that balances vintage charm with contemporary appeal.
11. Primary Suite with Vaulted Ceilings

Bathed in natural light, this stunning primary suite offers a perfect balance of comfort and sophistication. Towering vaulted ceilings enhance the sense of space, while a grand arched window with elegant detailing frames picturesque outdoor views. Soft neutral tones and plush carpeting create a warm, inviting ambiance. A wrought-iron bed serves as the focal point, complemented by chic white-and-wood nightstands. A cozy seating nook adds charm, making this a true retreat for relaxation and tranquility.
12. Bathroom with Timeless Elegance

This sophisticated primary bathroom exudes warmth and refinement with its rich black wainscoting and custom cabinetry, beautifully contrasted by golden granite countertops. Dual vanities offer ample space, complemented by stylish pendant lighting and a large framed mirror for added depth. A soaking tub, framed with natural stone tiles, provides a spa-like retreat. Earth-toned flooring enhances the inviting ambiance, while thoughtful storage solutions ensure both functionality and elegance. A perfect blend of classic charm and modern convenience.
13. Inviting Living Space

This cozy yet elegant living area offers a perfect blend of comfort and sophistication. A sleek gas fireplace with a dark tile surround serves as a refined focal point, topped by a large framed mirror that enhances the sense of space. Soft neutral walls and plush carpeting create a warm and inviting ambiance, while recessed lighting and a ceiling fan ensure year-round comfort. French doors add a touch of charm, seamlessly connecting to adjacent spaces. A perfect retreat for relaxation or intimate gatherings.
14. Deck with Elevated Views

This beautifully designed outdoor deck is the perfect retreat for relaxation and entertainment. Warm wood tones contrast elegantly with wrought-iron railing details, while stylish string lights add a charming ambiance for evening gatherings. Plush wicker seating with vibrant cushions creates a cozy and inviting atmosphere, complemented by a soft outdoor rug. Overlooking a serene landscape, this elevated space offers breathtaking views of the surrounding neighborhood. Whether enjoying morning coffee or starlit conversations, this deck provides a perfect blend of comfort and style.
15. covered Patio

This versatile covered patio offers a shaded retreat, perfect for al fresco dining and relaxed gatherings. The sturdy wood beam ceiling adds rustic charm, while the speckled concrete flooring ensures durability and easy maintenance. A wrought-iron dining set provides a stylish spot for outdoor meals, complemented by a built-in grill area for seamless entertaining. With a backdrop of lush greenery and additional storage space, this patio is an ideal blend of function and leisure, offering a serene connection to the outdoors in any season.
Listing agent – Carmen Cabral’s Realtor Team @ Keller Williams Realty Louisville East via realtor.com
