
Nestled in the heart of Abingdon, VA, this charming 2,807 sq-ft Cape Cod home sits on a sprawling 1.12-acre lot, offering a perfect blend of modern updates and timeless appeal. Featuring 3 bedrooms, the interior has been freshly painted, with brand-new carpet in the primary bedroom and closet. The kitchen has been completely remodeled, making it a dream for any home chef. Enjoy outdoor living on the enormous back deck or relax on the inviting wrap-around front porch. Priced at $359,900, this home is a must-see!
1. elegant exterior

This beautiful Cape Cod home in Abingdon, VA, showcases classic charm with modern appeal. Nestled on a 1.12-acre lot, the exterior boasts a welcoming wrap-around front porch, perfect for enjoying the serene surroundings. The freshly painted façade complements the lush landscaping, while the enormous back deck offers ample space for outdoor gatherings. A well-maintained lawn and mature trees enhance the curb appeal, creating a picturesque setting for this 2,807 sq-ft home priced at $359,900.
2. where Is Abingdon, VA?

Abingdon, VA, is a historic town nestled in the heart of the Blue Ridge Mountains in southwestern Virginia. Known for its charming downtown, Abingdon offers a blend of culture, history, and natural beauty. The town is home to the famous Barter Theatre, the state theatre of Virginia, which has hosted performances since 1933. Outdoor enthusiasts can explore the Virginia Creeper Trail, a scenic 34-mile route ideal for biking and hiking. Abingdon also features a thriving arts scene, historic architecture, and local eateries, making it a vibrant and inviting place to live or visit.
3. ground floor layout

The ground floor of this home is thoughtfully designed with both functionality and comfort in mind. It features a spacious garage, ideal for multiple vehicles or additional storage. Adjacent to the garage is a versatile workshop/storage area, perfect for hobbies or extra organization. A convenient bathroom is centrally located for easy access. The cozy den provides a relaxing space for family gatherings or entertaining, while the extra room offers flexible options for an office, guest room, or recreation space, enhancing the home’s overall utility.
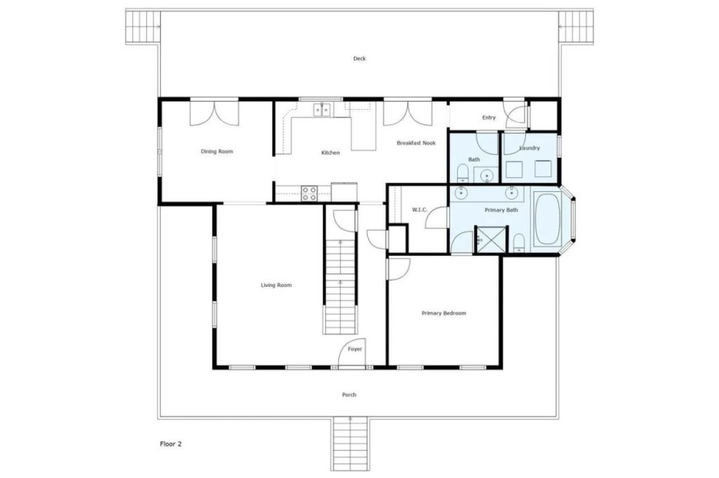
4. Second floor layout

The second floor of this Cape Cod home features a thoughtfully designed layout ideal for both comfort and functionality. The spacious kitchen, complete with modern appliances and ample counter space, opens to a cozy breakfast nook and a formal dining room, perfect for gatherings. A large living room with plenty of natural light provides a welcoming space for relaxation. The primary bedroom includes a walk-in closet and a luxurious en-suite bath with dual sinks, a soaking tub, and a separate shower. A secondary full bath and a convenient laundry room complete this well-appointed floor.
5. third floor layout

The third floor of this Cape Cod home offers a cozy and private retreat with two spacious bedrooms, each featuring a walk-in closet for ample storage. A centrally located full bathroom provides convenience and accessibility. The open-to-below design allows natural light to flow through, creating an airy and connected feel. This level is perfect for family members or guests seeking their own space while maintaining a close connection to the rest of the home.
6. Inviting Living Space

The living room of this home exudes warmth and charm with its rich hardwood floors and soft neutral walls that create a cozy yet elegant atmosphere. A large ceiling fan with decorative lighting adds a touch of style and comfort. Natural light streams in through multiple windows, highlighting the spaciousness and inviting feel of the room. The open design seamlessly connects to adjacent spaces, including a staircase with classic wooden railings, enhancing the room’s flow and architectural character. This living area is both functional and welcoming, perfect for relaxation or entertaining.
7. Dining Room with Deck Access

The dining room is bathed in natural light, thanks to large windows with white trim and elegant French doors that open to an inviting outdoor deck. The hardwood floors add warmth and character, complementing the soft neutral wall tones. A classic chandelier hangs above, providing soft, ambient lighting. The room’s open layout connects seamlessly to other living spaces, creating an ideal setting for both intimate family meals and larger gatherings. Its combination of natural light, timeless finishes, and functional design makes it a charming and practical space.
8. Elegant Kitchen with Modern Features

The kitchen is a stylish and functional space, featuring rich wooden cabinetry that provides ample storage. Sleek granite countertops offer plenty of workspace, complemented by a modern subway tile backsplash. Stainless steel appliances, including a large refrigerator and dishwasher, add a contemporary touch. A wide window over the sink lets in natural light, enhancing the warm tones of the hardwood flooring. An open layout connects the kitchen to the dining area, creating a seamless flow ideal for both cooking and entertaining.
9. Efficient Laundry Space

The laundry room is a bright and efficient space designed for convenience. It features a large window that allows natural light to stream in, creating an inviting atmosphere. The room includes a modern washer and dryer set, neatly positioned side by side for easy access. A wooden cabinet with a countertop provides extra workspace and storage for laundry supplies. Above the appliances, a wire shelf offers additional storage options, helping to keep the space organized. The neutral wall color and tiled flooring enhance the clean and functional feel of the room.
10. Spacious Bedroom

The bedroom offers a serene and inviting atmosphere with its soft, neutral tones and ample natural light. A large window allows sunshine to stream in, creating a bright and airy feel. The plush carpeting enhances comfort underfoot, while the spacious layout provides plenty of room for furnishings and personal touches. Thoughtful design details, such as elegant trim and soothing wall colors, contribute to the room’s relaxed ambiance. This cozy retreat is perfect for unwinding and recharging at the end of the day.
11. Bedroom with Charming Details

This bedroom offers a cozy and inviting atmosphere with its soft beige walls and plush carpeting. The space features charming architectural details, including sloped ceilings and dormer windows that allow natural light to stream in, creating a warm and relaxing feel. A ceiling fan with a light fixture provides comfort and practicality, while the room’s neutral color palette allows for versatile decorating options. Multiple electrical outlets and a spacious layout make it both functional and comfortable, perfect for a bedroom or creative space.
12. elegant Bathroom

This bathroom combines elegance and functionality with its spacious double vanity featuring two sinks and ample counter space adorned with white tile. Rich wooden cabinetry provides abundant storage, while a large mirror enhances the room’s brightness. A luxurious corner bathtub sits beneath expansive windows, creating a tranquil retreat. The separate shower offers added convenience, and warm-toned walls complete the inviting ambiance, making this bathroom both stylish and practical.
13. Spacious Room

This spacious room offers a versatile and inviting atmosphere, featuring warm beige walls and soft carpeting that enhances the cozy feel. The room is illuminated by multiple ceiling lights, creating a bright and welcoming ambiance. A freestanding electric fireplace adds a touch of charm and warmth, making it a perfect space for relaxation or entertaining. Multiple doorways lead to other parts of the home, adding to the room’s functionality and flow. Its generous size and neutral palette provide endless possibilities for customization and use.
14. Versatile Garage Space

This garage offers a spacious and functional area ideal for storage, parking, or projects. The concrete floor provides a durable surface, while the large overhead garage door with windows allows natural light to enter. The high ceiling creates additional vertical storage options, and the walls are painted a soft, neutral color. The space currently holds various tools, equipment, and household items, demonstrating its versatility. Electrical outlets along the walls enhance its practicality for workshop use or charging tools and equipment.
15. Barn-Style Storage Shed

This charming storage shed is set against a scenic backdrop of rolling hills and mature trees, offering both functionality and rustic charm. Its classic barn-style design features a durable metal roof and double doors with a decorative X-shaped pattern for easy access. A small window on the side allows natural light to brighten the interior. The shed sits on a level patch of land, providing convenient storage for tools, lawn equipment, or seasonal items. Its neutral color palette blends harmoniously with the natural surroundings, creating a peaceful and practical outdoor feature.
Listing agent – Pam Patrick @ Highlands Realty, Inc. – Abingdon via Realtor.com
