
The residence in West Liberty, OH is a custom-built single-family home featuring 3 bedrooms, 2.5 bathrooms, and approximately 2,913 square feet of living space. Situated on a pristine 5-acre lot, this executive-style home offers a formal living and dining area, a bright family room, and an eat-in kitchen. Additional amenities include a 5-car attached garage, a 60×40 pole building with a hydraulic vehicle lift, and a private 42×12 rear deck overlooking the woods.
1. Elegant Stone Facade with Grand Entrance

This stunning home features a grand facade with a blend of stone and siding, exuding timeless elegance. The symmetrical gable design, large windows, and arched entryway create a sophisticated curb appeal. A circular driveway leads up to the front entrance, surrounded by a landscaped rock garden and mature trees. The attached multi-car garage seamlessly integrates with the home’s exterior, offering both style and functionality. The setting is serene, with an open countryside backdrop enhancing its charm.
2. Where is west liberty, oh?

West Liberty, Ohio, is a charming small town in Logan County known for its scenic countryside, historic charm, and welcoming community. Nestled in the heart of rural Ohio, it offers a peaceful lifestyle with access to natural attractions like the Ohio Caverns and Mad River Mountain. The town boasts excellent schools, local shops, and a strong sense of community. Its rich history, combined with modern conveniences, makes it an appealing place for families and those seeking a quieter pace of life.
3. Expansive Custom Home with Thoughtful Layout

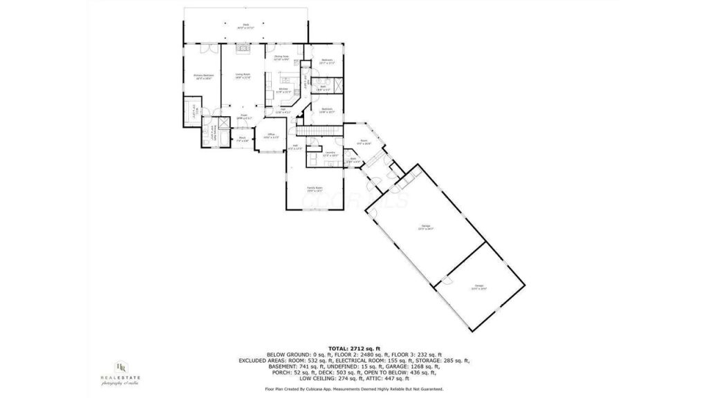
This 2,913 sq. ft. home offers a well-planned layout with both formal and casual living areas. The main floor features a formal living and dining room, a bright family room, and an eat-in kitchen. A breezeway connects to a five-car garage, while a laundry/mudroom adds convenience. Upstairs, a cozy library/nook provides a quiet retreat. The home includes three bedrooms, 2.5 baths, and an 1,800 sq. ft. semi-finished basement with potential for customization.
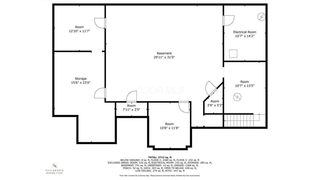
4. Versatile Basement with Endless Potential

This home features an expansive 1,800 sq. ft. semi-finished basement, offering ample space for customization. Currently, it provides a functional layout for storage, recreation, or future expansion. With high ceilings and an open design, it’s perfect for adding extra living areas, a home theater, or a fitness room. The walkout access enhances convenience, allowing natural light to brighten the space. Whether used as-is or transformed to suit personal needs, this basement adds valuable flexibility.
5. Spacious Attic with Expansion Potential

The attic of this home provides a generous and versatile space, ideal for storage or future customization. With its well-structured layout, it offers ample room for organizing seasonal items or creating an additional living area, such as a private office, playroom, or guest suite. The high ceilings and sturdy construction make it a practical extension of the home. Whether left as-is or converted into functional space, the attic adds to the home’s flexibility and long-term value.
6. Elegant Entrance with Grand Appeal

The entrance of this home makes a striking first impression with its stately double doors framed by tall glass panels, allowing natural light to flood the foyer. The arched transom window above adds a sophisticated touch, enhancing the home’s curb appeal. The stone façade surrounding the entryway provides a timeless and inviting charm. A well-maintained walkway leads up to the entrance, creating a warm and welcoming atmosphere that sets the tone for the elegance found within.
7. Grand Entrance Foyer with Timeless Elegance

The entrance foyer of this home exudes sophistication with its soaring ceilings and abundant natural light. A stunning chandelier serves as a focal point, casting a warm glow over the space. The open design seamlessly flows into the main living areas, creating an inviting and spacious feel. Elegant flooring enhances the luxurious ambiance, while a grand staircase adds a dramatic touch. The combination of architectural details and thoughtful design makes this foyer a true statement of style.
8. Spacious and Inviting Living Room

The living room offers a warm and inviting atmosphere with high ceilings, large windows, and an open layout that enhances natural light. A cozy fireplace serves as a focal point, complementing the elegant design. Neutral tones and quality flooring add to the room’s sophistication, making it the perfect space for relaxation or entertaining guests.
9. Elegant Dining Room for Gatherings

The dining room exudes charm with its refined design and ample space for formal dinners or casual meals. A stylish chandelier illuminates the area, while large windows allow for scenic views. The room’s placement near the kitchen ensures effortless serving, creating a welcoming space for family gatherings and entertaining guests.
10. Modern and Functional Kitchen

This well-appointed kitchen blends style and function with sleek countertops, ample cabinetry, and state-of-the-art appliances. A spacious island provides additional prep space and casual seating, making it ideal for both cooking and socializing. Thoughtful lighting enhances the ambiance, while a seamless connection to the dining and living areas makes it a central hub of the home.
11. Refined Home Office with a Productive Atmosphere

The home office is designed for both comfort and efficiency, featuring ample natural light, built-in shelving, and a spacious layout. The neutral tones and classic finishes create a serene work environment, making it ideal for remote work, studying, or creative pursuits. Positioned for privacy, it allows for undisturbed focus and productivity.
12. Well-Designed Hallway with Seamless Flow

The hallways of this home are thoughtfully designed, offering smooth transitions between rooms with a sense of openness and cohesion. Quality flooring and soft lighting enhance the elegance, while well-placed decor elements add to the home’s inviting appeal. These hallways serve as both functional pathways and stylish extensions of the living spaces.
13. Luxurious Primary Bedroom Retreat

The primary bedroom offers a serene and spacious retreat with large windows inviting in natural light. A neutral color palette enhances the calming atmosphere, while plush carpeting and elegant finishes add a touch of sophistication. The room’s generous size allows for a cozy seating area, making it a true sanctuary for relaxation.
14. Spacious and Organized Walk-In Closet

This walk-in closet is designed for optimal storage and organization. Built-in shelving, ample hanging space, and thoughtful lighting make it both functional and stylish. Whether storing seasonal wardrobes or accessories, this closet ensures everything is neatly arranged and easily accessible.
15. Elegant and Spa-Like Primary Bathroom

The primary bathroom exudes luxury with its spacious layout, dual vanities, and high-end finishes. A glass-enclosed shower and a soaking tub provide a spa-like experience, while sleek countertops and ample storage add both function and beauty. Soft lighting enhances the tranquil ambiance, creating a perfect space for unwinding.
16. Comfortable and Stylish second Bedroom

This well-designed bedroom features ample space and natural light, creating a warm and inviting ambiance. The neutral tones provide versatility for any décor style, while soft carpeting or hardwood floors enhance the cozy feel. Ideal for guests or family members, this room offers both comfort and practicality.
17. Bright and Airy Secondary Bedroom

A charming secondary bedroom, perfect for a restful night’s sleep. Large windows bring in plenty of light, creating a cheerful and inviting space. The well-proportioned layout provides flexibility for various furniture arrangements, making it suitable for children, guests, or a personal workspace.
18. Sleek and Functional Bathroom

This well-appointed bathroom combines modern design with everyday functionality. A spacious vanity provides ample storage, while the sleek countertops and polished fixtures add a touch of elegance. The combination of a glass-enclosed shower and a comfortable bathtub offers both convenience and relaxation. Soft lighting enhances the calming ambiance, making it a perfect retreat for daily routines.
19. Well-Equipped Laundry Room

Designed for efficiency, this laundry room offers ample counter space, built-in storage, and modern appliances. Thoughtful organization allows for easy sorting and folding, while a neutral design keeps the space feeling fresh and clean. With practical touches like overhead cabinetry and a utility sink, laundry tasks become more streamlined and manageable.
20. Spacious and Cozy Family Room

The family room is a warm and inviting space, ideal for gathering and relaxation. Large windows allow for natural light to flow in, while a comfortable seating area makes it a perfect place to unwind. Whether used for entertaining or everyday lounging, this room’s open layout and cozy design create an inviting atmosphere for all.
21. Convenient Bath Next to Laundry

This strategically placed bathroom near the laundry room offers both practicality and style. A well-sized vanity, modern fixtures, and a sleek shower or bathtub provide all the essentials. The compact yet functional design makes it an excellent addition to the home, catering to both convenience and comfort.
22. Practical Room Leading to Garage

This versatile space acts as a functional transition between the home and the garage. With durable flooring and neutral-toned walls, it offers a clean and organized feel. Ideal for a mudroom or additional storage, this area provides a convenient spot to remove shoes, store coats, or keep everyday essentials within reach. The design ensures easy access to the garage while maintaining a neat and clutter-free entrance to the main living areas.
23. Spacious and Well-Designed Garage

This expansive garage provides ample room for multiple vehicles, storage, and even workspace needs. High ceilings and sturdy flooring enhance its practicality, while built-in shelving or cabinets allow for efficient organization. Whether used for parking, home projects, or extra storage, this garage offers the perfect balance of space and convenience for homeowners seeking functionality.
24. Inviting Deck for Outdoor Enjoyment

This well-crafted deck extends the home’s living space outdoors, providing the perfect setting for relaxation and entertaining. With sturdy railings and ample room for seating, it’s an ideal place to enjoy morning coffee or host summer gatherings. The elevated design allows for scenic backyard views, making it a peaceful retreat for enjoying fresh air and nature. Whether for quiet moments or lively get-togethers, this deck enhances the home’s charm and usability.
25. Cozy and Functional Loft Space

Overlooking the main living area, this inviting loft provides a flexible space that can serve as a reading nook, home office, or additional lounge. With an open railing design, it allows natural light to flow through while maintaining a sense of connection to the lower level. The soft carpet or hardwood flooring enhances its comfort, making it a perfect retreat for relaxation or productivity.
26. Expansive Attic with Potential

This spacious attic offers a versatile area for storage or future finishing opportunities. With its pitched ceiling and well-insulated structure, it provides a functional extension of the home. Whether used for seasonal storage, a hobby space, or an additional living area, this attic holds great potential. The well-ventilated design ensures a comfortable environment while keeping stored items protected.
27. Versatile Basement for Endless Possibilities

This expansive basement offers an ideal space for entertainment, storage, or a home gym. With its open layout and sturdy flooring, it is ready to be transformed to suit any need. The well-lit atmosphere creates a welcoming feel, while the spacious design ensures functionality. Whether used as a recreation area, media room, or additional living quarters, this basement adds valuable square footage to the home.
28. Ample Storage for Organization

Designed for practicality, this dedicated storage area provides plenty of room for organizing household essentials, seasonal décor, and personal belongings. Sturdy shelving and open floor space make it easy to keep items neatly arranged. Whether used for bulk supplies or cherished keepsakes, this storage room ensures everything has its place, helping maintain a clutter-free home.
29. Essential Electrical Room for Home Systems

This well-organized electrical room houses the home’s essential utility systems, including the circuit breaker panel and HVAC components. Designed for accessibility, it ensures easy maintenance and efficient operation of the home’s electrical and mechanical infrastructure. With a clean and structured layout, this space plays a crucial role in keeping the household running smoothly and safely.
30. Spacious Backyard with Open Views

This expansive backyard offers a perfect blend of open space and natural beauty, providing ample room for outdoor activities, gardening, or relaxation. The well-maintained lawn extends toward scenic views, creating a serene atmosphere. Whether hosting gatherings, enjoying a quiet evening, or setting up recreational areas, this backyard is a versatile extension of the home, ideal for embracing outdoor living.
31. Sturdy and Functional Pole Barn

The exterior of this large pole barn showcases a durable, well-constructed design built to withstand the elements. Its metal siding and spacious entrance provide easy access for vehicles, equipment, or storage needs. Whether used as a workshop, garage, or agricultural space, the structure’s solid construction ensures reliability. Surrounded by ample space, it allows for convenient maneuvering of trailers, machinery, or additional storage.
32. Expansive Pole Barn for Multi-Purpose Use

Inside the pole barn, a vast open layout provides unlimited possibilities for storage, work, or hobbies. The high ceilings accommodate large equipment, while the sturdy flooring supports heavy-duty use. Equipped with proper lighting and ventilation, this space is perfect for a workshop, vehicle storage, or agricultural purposes. The wide-open design ensures easy organization, making it an essential asset for homeowners seeking extra functional space.
Listing agent – Malia Hughes @ Key Realty via Realtor.com
This article was created with the assistance of AI but thoroughly edited by a human being.
