
Nestled in the heart of Forest Hills, NY, this stunning 4-bedroom, 4-bathroom residence embodies the timeless charm of Tudor-style architecture. Spanning 2,714 square feet, the home showcases steeply pitched roofs, rich brickwork, and elegant half-timbering, exuding warmth and character. With inviting outdoor spaces and classic details throughout, this home offers a perfect blend of historic elegance and modern comfort.
1. Storybook Charm exterior

This enchanting Tudor-style home captures the essence of old-world craftsmanship with its rich brick facade, steeply pitched roof, and charming half-timber accents. Vibrant blue shutters contrast elegantly against the warm brick, while the covered porch and second-floor balcony add inviting outdoor spaces. Graceful window designs enhance its character, offering a perfect blend of history and charm in a serene setting.
2. Where is Forest Hills?

Forest Hills is a picturesque neighborhood in central Queens, New York City, known for its tree-lined streets, historic charm, and vibrant community. Blending urban convenience with a suburban feel, it boasts stunning Tudor-style homes, lush parks, and a thriving shopping and dining scene. With excellent schools, easy access to Manhattan, and a strong sense of community, Forest Hills offers a perfect balance of tranquility and city life.
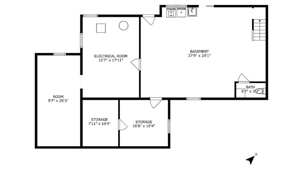
3. Lower Level layout

Designed for versatility, the lower level features a generous basement ideal for recreation or additional living space. A dedicated electrical room and two storage areas provide ample organization options, while an extra room offers flexibility for a home office or gym. A convenient half-bath enhances functionality, making this level a perfect extension of the home, combining practicality with endless possibilities.
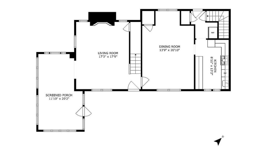
4. main level layout

The main level offers a seamless flow between formal and casual spaces, perfect for entertaining or everyday living. A spacious living room opens to a screened porch, providing a serene retreat. The large dining room connects effortlessly to the well-appointed kitchen, which features modern appliances and ample counter space. Thoughtfully designed with classic charm and functionality, this level enhances both comfort and style.
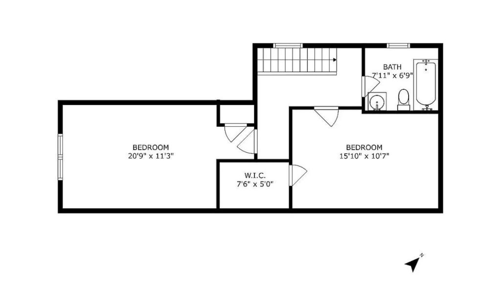
5. upper level layout

The upper level features three generously sized bedrooms, including a bright and airy primary suite with ample closet space. Two additional bedrooms offer flexibility for guests or a home office. A well-appointed bathroom serves the level, ensuring both convenience and privacy. Thoughtfully designed with large windows, this floor maximizes natural light, creating a warm and inviting atmosphere perfect for relaxation.
6. attic level layout

This floor offers two spacious bedrooms, including one with a generous walk-in closet for ample storage. A shared bathroom ensures comfort and convenience, while the well-designed layout provides privacy and functionality. The natural light and well-proportioned rooms make this level ideal for a variety of living arrangements, whether for family members or guests.
7. Porch with Vintage Appeal

This inviting covered porch blends historic charm with timeless elegance. Rich brick flooring in a mosaic pattern adds texture and character, while arched wooden columns frame the space with a touch of classic craftsmanship. A deep overhang offers shade, making it an ideal retreat for enjoying quiet mornings or lively conversations. Accented by vibrant blue railings and lush greenery, this picturesque setting provides a seamless connection between home and the surrounding tree-lined neighborhood.
8. classic living room

This elegant living space is a showcase of historic charm and refined craftsmanship. Gleaming hardwood floors reflect natural light, while a grand white brick fireplace anchors the room with a stately presence. Built-in glass cabinetry adds vintage character, complementing the intricate leaded windows. A striking staircase with bold red carpeting and wrought-iron railings offers a dramatic contrast, leading the eye upward. With crisp white walls and period details, this inviting space blends classic architecture with warmth and sophistication.
9. Sunlit Sitting Room

Drenched in natural light, this inviting space captures the essence of timeless elegance. Expansive windows, dressed with delicate sheer curtains, frame picturesque outdoor views while allowing sunlight to dance across the gleaming hardwood floors. Classic built-in cabinetry offers both function and charm, complementing the crisp white trim. A wide doorway, adorned with intricate wrought-iron details, seamlessly connects to an adjacent sunroom, creating an airy flow perfect for relaxation and entertaining.
10. Sunroom with Vintage Charm

This inviting sunroom is bathed in natural light, thanks to a series of classic multi-pane windows that frame lush greenery outside. A warm terracotta tile floor adds character, complementing the crisp white walls. Vintage details, including an ornate radiator cover and original window hardware, enhance the home’s timeless appeal. Though the space shows signs of age, its airy layout and abundant sunlight create an ideal canvas for a cozy retreat or stylish update.
11. elegant dining room

This refined dining room strikes a perfect balance between traditional charm and modern flair. A deep blue accent wall adds depth and sophistication, complemented by crisp white trim and crown molding. The warm hardwood floors create a welcoming foundation, while a vintage brass chandelier and matching sconces lend a touch of old-world charm. Sunlight pours in through classic multi-pane windows, illuminating the space and making it ideal for both intimate dinners and lively gatherings.
12. Kitchen with Vintage Appeal

This delightful kitchen blends classic character with modern functionality. Crisp white cabinetry with glass-paneled doors provides ample storage, while a striking patterned tile border adds a touch of personality. Stainless steel appliances bring contemporary convenience, complementing the warm hardwood floors. A farmhouse-style sink and vintage built-ins enhance the timeless charm, making this space both practical and inviting for everyday living and entertaining.
13. Spacious Bedroom

This inviting bedroom features vibrant green walls with crisp white trim, creating a fresh and lively ambiance. Large windows allow plenty of natural light to stream in, offering picturesque views of the surrounding greenery. A vintage-style radiator adds charm, while plush carpeting enhances comfort. The room’s generous size makes it a versatile space, ideal for relaxation and personalization.
14. Retro-Style Bathroom

This charming bathroom features a vintage aesthetic with warm peach-colored tiles that extend from the floor to the walls, creating a cohesive and inviting atmosphere. The classic bathtub, matching sink, and toilet blend seamlessly with the color scheme, while the sloped ceiling adds character to the space. A small window allows natural light to filter in, complemented by a rustic radiator beneath it. Unique details such as built-in storage cabinets and a decorative mirror enhance the nostalgic appeal of this cozy, retro-inspired bathroom.
15. Vintage Bedroom

This bedroom blends vintage charm with modernization potential. The warm hardwood floors and retro-patterned wallpaper evoke nostalgia, while natural light pours in through classic multi-pane windows overlooking lush greenery. A traditional radiator adds to its old-world feel, complemented by an antique-style wall sconce. Though some areas, like peeling paint and worn flooring, may need a refresh, this space offers great potential for a stylish update.
16. Attic Retreat

This charming attic space features a sloped ceiling that creates a cozy, intimate feel. A large window brings in natural light, while the vintage radiator adds a classic touch. The blue carpet contrasts with the crisp white walls, though an update could enhance the space’s potential. Perfect as a reading nook, small bedroom, or creative studio, this attic offers a peaceful retreat with endless possibilities.
17. Rooftop Escape

This spacious rooftop terrace offers a peaceful retreat surrounded by lush greenery. Enclosed by a classic brick parapet, it provides privacy while maintaining an open-air feel. With a little creativity, this space could be transformed into a charming outdoor lounge, garden, or entertainment area. Whether for morning coffee or evening relaxation, this hidden gem is full of potential.
18. Charming Garden

This lush, secluded backyard is a perfect oasis for relaxation and outdoor enjoyment. Surrounded by mature trees and greenery, it offers both shade and privacy. The well-maintained lawn provides a cozy space for gatherings, gardening, or simply unwinding. With a little landscaping, this space could be transformed into a dream outdoor retreat.
Listing agent – Rachel Borut @ Douglas Elliman via Zillow
