
A 4-bedroom, 2-bathroom raised ranch with 2,580 sq ft of living area is offered at 3 Rita Ct, Delmar, NY 12054. Located on a 0.24-acre property, the home presents a cozy and functional floor plan, perfect for contemporary living. With multiple living spaces, an airy kitchen, and an open lower level, it balances timeless style with convenient improvements. In a quiet Delmar neighborhood, this warm and welcoming home is presented for $399,000.
1. Colonial Modern Exterior

Hidden in a green suburban landscape, this split-level house mingles traditional colonial features with a contemporary touch. Its face is tidily sectioned off by a brick bottom half and pale beige siding on top, presenting the building with a solid yet welcoming façade. Light pours into the house through large multi-pane windows, particularly the refined bay window on the left, which creates depth and beauty. A small staircase leads to a central doorway, which is bracketed by symmetrical landscaping and outlined with black railings for a classic look. The clean lines of the roof and the dark shutters on every window complement the balanced, classic appearance.
2. Where is Delmar?

Located just beyond Albany, Delmar provides the amenities of small-town life with convenient proximity to the cultural and professional services of the state capital. Renowned for its tree-lined streets, excellent school system, and friendly community feel, it’s a town in which suburban convenience converges with Northeastern spirit. Homeowners enjoy a mix of nature and neighborhood living, with parks, bike trails, and neighborhood shops all contributing to its charm. Whether commuting to neighboring cities or taking a quiet afternoon stroll, Delmar offers a tranquil yet engaged lifestyle.
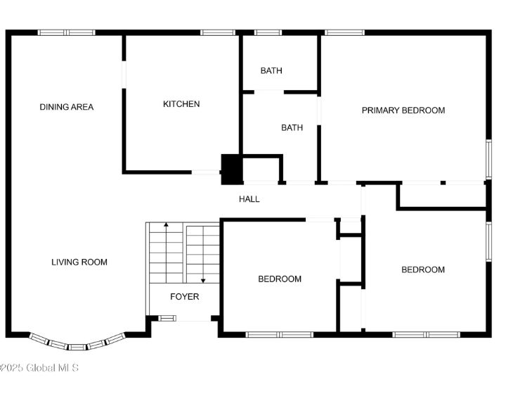
3. Main Floor Layout

Bright sunlight pours into the large living area at the front of the home, which includes a stunning bay window ideal for a cozy seat or reading nook. From the foyer through the hallway, two comfortable bedrooms flank each other, just minutes from a full bath. The hallway swings open to an inviting kitchen that flows beautifully with the dining room to make for a warm, open room for meals and family gatherings. The master bedroom retreats into hiding for a degree of additional seclusion and enjoys its own exterior access to a bathroom, along with a delightful touch of accommodation. Streamlined lines and straightforward flow create easy, comfortable livability for this home.
4. upper floor layout

Descend to the lower level, and a warm family room beckons informal gatherings and easy evenings. Two bedrooms are nestled discreetly at the rear of the hall, providing a quiet refuge from the more active areas of the house. A full bath and a convenient utility room lie conveniently close, joining everyday function with comfort. At the front, a light sitting room leads to a quaint piano room with beautiful bay windows, ideal for music, reading, or contemplation. A large garage completes this level, providing ample space for storage or hobbies.
5. Cozy Mid-Century Living Room

Sunlight streams in through the wide bay window, bathing this warm and welcoming living room that’s straight out of an old-fashioned catalog. Pale green walls and coordinating sofa set a soothing, retro mood, with the blush velvet wingback chairs providing a whimsical injection of sophistication. A traditional wood coffee table provides a solid foundation, complemented by antique-form lamps that imbue the space with a sense of timelessness. The integrated entertainment nook nestled under the window contains vinyl records and a stereo system and is ideal for comfortable afternoons spent on music or chatting. Each item is lovingly maintained, evoking an ambiance that’s at once nostalgic and inviting.
6. Rustic Fireside Lounge

Warm wood paneling and overhead ceiling beams create a cabin like atmosphere in this retro sitting room, which is focused around a dignified brick fireplace. Shelves built in to the wall and filled with books and vinyl records flank the hearth, forming a warm reading or reminiscing nook. A combination of seating from a traditional wooden rocker to a cushioned recliner urges you to come on in and relax. The mid-century sofa and quirky chandelier add a touch of personality to the room, while the textured curtains gently outline the space in soft light. Each piece, from the old artwork to the worn-in character of the furniture, has a story to tell of silent nights by the fire.
7. Vintage-Inspired Study Nook

Fun and full of personality, this intimate study area embodies a passion for nostalgia in its show-stopping wallpaper with vintage cars. The wood floors and humble vintage desk create a bygone era, matched by an old-fashioned TV arrangement and a classic striped couch ideal for lounging or reading. Floating shelves hold a combination of family mementos, vintage cameras, and striped fabric rolls, bringing personal touches to the space. Soft natural light pours through sheer curtains, contrasting the dynamic wallpaper with a soothing note of tranquility. It’s a place where comfort and creativity exist side by side.
8. Cozy Country Kitchen

Combining retro coziness with practical daily use, this rural-themed kitchen welcomes you in with dark wood cabinets and sunny floral-patterned wallpaper. Light streams in through the window above the sink, illuminating the off-white countertops and accentuating the sweet canister set along the backsplash. Stainless steel appliances coexist nicely with an antique dishwasher, forming a room that strikes a harmony between old and new. A small round table with a fall-colored tablecloth provides a warm place for informal meals or breakfast coffee, all under the warm light of a brass chandelier. It’s a kitchen that looks lived-in, loved, and prepared for home-cooked meals.
10. Vintage-Inspired Bathroom

Soft yellow walls and warm wood tones create a sunny, inviting atmosphere in this bathroom, and the ornate mirror frame and rounded vanity introduce a dash of old-world elegance. The marble-look countertop and antique brass fittings harmonize the room with understated refinement. Through the open door, a secondary toilet space benefits from natural light via a window dressed in traditional café curtains, introducing a layered feeling of privacy and comfort into the room.
11. Powder Room with a Pop of Color

Bold pink walls imbue this powder room with playful, bold spirit, tempered by understated white fixtures and limited accents. A large frameless mirror opens up the visual space, bouncing light from the overhead panel and providing the room with an airy, open quality. A pedestal sink and a cleanly mounted towel bar keep things pared back, allowing the color to speak for itself in this happy little nook.
12. Bedroom with Traditional Touches

Soft beige walls and wood-colored furniture create a warm, cozy ambiance in this bedroom, ideal for unwinding. The green comforter introduces a calming splash of color, and the coordinating dresser and chest of drawers add a traditional touch. A snug red armchair placed by the window provides a peaceful reading nook, and two closets with sliding doors provide storage that is neatly out of sight. All seems carefully planned out, providing comfort and functionality without dominating the environment.
13. Vintage Bedroom

Warmly imbued with a nostalgic quality, this bedroom is redolent with comfort and history in its golden forest print wall covering and gently filtered light through sheer drapery. The room is imbued with the thoughtful look of having been lived in, from the line of soft stuffed animals that lie on the well made bed to the photo gallery tacked above the writing desk. A small green desk and wooden chair inject a pop of color and personality, while a combination of woven patterns and traditional pieces, such as the tall mid century dresser and the plain rattan chair, anchor the room in classic style. It’s a place that feels intimate and serene like entering a memory.
14. Serene Bedroom

Dappled in the soft light of the afternoon, this bedroom is a serene retreat. Wooden twin doors and rich paneling evoke a cozy sense of nostalgia, while the peach walls introduce a warm, subtle tone to the room. A traditional four poster bed draped with a green botanical quilt grounds the space, bordered by a set of three large windows that present restful views of the leafy landscape. Thoughtfully arranged paintings, a old lamp, and a compact keepsake shelf impart a lived in feel. It’s a place that’s at once restful and homy, where time just moves at a pace to be savored.
15. Cozy Home Office with Built-In Bookshelves

Hidden away in a peaceful corner of the house, this cozy office area is both practical and full of personality. Light pours in through three big windows, illuminating the space and providing a cool glimpse of the green outside. A traditional wood desk holds the room together, complemented by a streamlined, contemporary chair that combines old and new perfectly. The built in bookshelf wall brings in the warmth and character, carefully filled with books, mementos, and antique trinkets that speak of an adventurous life. Distressed patterned wallpaper provides a nostalgic touch without overpowering the intimate atmosphere, ensuring a place well suited for reading, writing, or just daydreaming.
16. Warm Music Room with Rustic Charm

A warm combination of comfort and creativity pervades this charming music room, where a sleek black grand piano and an elegant upright piano are the focal points. Abundant natural light streams in through a large bay window, highlighting the rich tones of the wood paneled ceiling above. A quaint wooden bench is placed just below the window, ideally situated for enjoying the serene view outside. Alongside the door, a tiny vintage style writing desk is neatly arranged with personal photos and stationery, adding a touch of lived in comfort to the room. Black and white photographs in frames and a crystal vase containing a single red rose on the piano offer minimalist yet significant decoration, completing a room that is equally conducive to creativity, contemplation, and quiet time.
Listing Agent – Cathy Cooley @ Howard Hanna Delmar
