
A spacious 4-bedroom, 3-bathroom Colonial-style home with 2,304 sq ft of living space is available at 20 Jasmine Ct, East Amherst, NY 14051. This two-story residence features classic Tudor-inspired details, generous natural light, and a seamless layout ideal for everyday living. Set on a 0.28-acre lot, it offers a comfortable blend of indoor and outdoor space. Located in a peaceful East Amherst neighborhood, this home combines timeless architecture with modern livability for $485,000.
1. Tudor-Inspired Brick Exterior

Framed by a charming blend of dark wood trim and light stucco panels, the upper sections of this home subtly nod to Tudor style architecture while the red brick façade adds warmth and timeless appeal. The sharply pitched rooflines and the mix of rectangular and triangle-shaped elements above the garage and front window give the structure a striking visual rhythm. Mature trees and a low maintenance landscape, complete with raised stone garden beds and neatly edged walkways, create a natural transition from the driveway to the front entry. A bay window invites sunlight into the main living area, while the dark garage door and trim offer a modern contrast against the traditional materials.
2. Where Is East Amherst?

Hidden just beyond Buffalo, East Amherst is a serene suburban oasis that features tree lined streets, excellent schools, and a close knit community atmosphere. Afforded with easy access to parks, golf courses, and Erie Canal trail systems, it’s a perfect place for outdoor enthusiasts who also want to be plugged into the features of a bigger metro area. Citizens enjoy a mix of small town ambiance and contemporary convenience, with neighborhood shops, eateries, and medical centers all within easy reach. Neighborhoods in the area are well maintained and offer a family atmosphere, making it an excellent choice for moving to western New York.
3. ground floor plan

Entering from the foyer, you’re greeted by a well-connected layout that effortlessly links key living spaces. The living room stretches out generously on one end, ideal for gatherings or quiet moments, while a cozy sitting room sits nearby, just off the staircase. Walk a bit further and you’ll find the kitchen and dining area tucked into a light-filled corner perfect for breakfast sunlight or evening meals. The family room anchors the right side of the layout, with windows offering views and warmth. A short hall off the center leads to a convenient half bath and laundry room, all just steps from the spacious garage entry. The flow between rooms feels intuitive, balancing openness with a sense of cozy division.
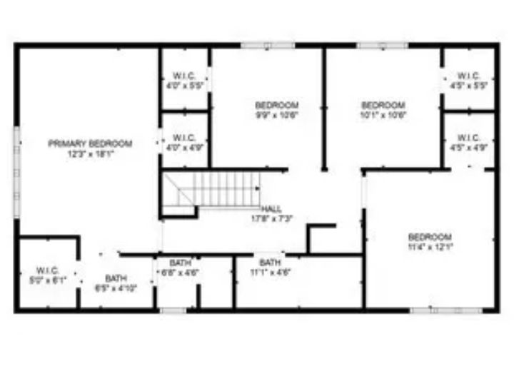
4. second floor plan

Upstairs, the layout is thoughtfully arranged to balance privacy and connection. A spacious primary bedroom anchors one end of the hall, complete with two walk in closets and a large en suite bath that adds a spa like touch. Down the hallway, four additional bedrooms unfold, each with their own walk-in closets and easy access to well-placed shared bathrooms. Natural light filters through windows on both sides, creating an airy, welcoming atmosphere throughout. The central hall ties everything together, making this upper floor feel like a calm and connected retreat, ideal for both quiet nights and busy mornings.
5. Bright and Airy Living Room

Laden with natural light, this living area is a perfect blend of comfort and clean lines. A huge bay window frames the front yard and brings in views of the tree lined street. Soft neutral hues on the sectional sofa and layered textures throughout the room give a calming, lived in feel. Houseplants placed strategically bring in freshness and life, and the gallery wall brings in a touch of personality without overwhelming the room’s simplicity. Hardwood floors bring in warmth under a subtle area rug, and modern touches such as the sleek black coffee table and mounted flat-screen bring it all together with understated sophistication.
6. Creative Kids’ Corner

Snuggled into a sunny and spacious nook, this whimsical children’s room finds harmony between play and practicality. The cubby wall tidily stores toys, books, and art materials, while the bulletin board above proudly showcases colorful masterpieces, imbuing the space with a cozy, personal feel. A compact desk station with framed pictures adds a warm family feel and provides a quiet area for concentrated crafts or homework. The neutral colored walls and plush area rug maintain softness and hospitality, and the dollhouse and cleaning toys stimulate imaginative play. An open doorway enters into a snug living room, which provides for effortless supervision and smooth flow throughout the house.
7. Sunlit Kitchen and Dining Nook

Set within warm wood framed windows, the kitchen appears light and solid, courtesy of pale grey cabinetry, brass fixtures, and wood floors. A picture window above the sink expands the outlook to tall trees in the distance, bringing nature in and rendering dishwashing more tolerable. Granite countertops continue into a breakfast bar that defines the area softly yet still flowing effortlessly into the dining nook. A contemporary chandelier hanging over the circular dining table provides just a touch of elegance without overwhelming the natural light that pours in from every direction. With clean stainless appliances and considered planning, it’s a space that’s stylish and prepared for the rigors of daily living.
8. Bright Powder Room with Artistic Touch

White crisp walls and a navy blue deep vanity instantly elevate this powder room, with a big framed mirror creating depth and bouncing natural light from the hallway. Over the toilet, a flowering orchid introduces a soft organic feel, while the oversized abstract canvas adds whimsical energy with its bright splashes and soft pastels. Gold trim from the towel bar and cabinet knobs unify the room, providing a sleek touch to a small but chic corner of the house.
9. Double Vanity Bathroom with Functional Flair

A smart blend of form and function, this bathroom features a rich espresso double vanity that offers ample counter space and storage. Beige countertops paired with a textured stone backsplash introduce warmth and contrast, while dual mirrors and modern fixtures keep things crisp and symmetrical. Overhead, a glass fronted cabinet holds everyday essentials without disrupting the clean aesthetic. Through the wooden frame doorway, a soft green wall adds a soothing note to the toilet and walk-in shower area, grounding the space with subtle color and calm.
10. Cheerful Family Bathroom

Bright and welcoming, this family friendly bathroom mixes playfulness with practicality. A curved white vanity with dual sinks anchors the space beneath a wide mirror that opens up the room. The light fixture overhead brings a soft glow, enhancing the clean lines and neutral palette. A trio of colorful towels hangs neatly on the wall, adding a burst of personality, while the framed “love” artwork in multiple languages creates a thoughtful, heartwarming touch. The herringbone patterned wood look floor grounds the look with natural texture and warmth.
11. Warm Living Room with Outdoor Connection

Natural light pours over this comfortable living area, where distressed wood ceiling beams bring a rustic touch to stark white walls. A sectional sofa beckons lounging, and a sitting area nearby with a warm wood desk and sleek lamp provides a private area for concentration. The sliding glass doors open directly onto a cozy patio, combining indoor comfort and outdoor convenience. A built-in bar niche with mirrored backsplash and wine refrigerator adds a touch of sophistication, ideal for intimate nights at home or relaxed entertaining.
12. Peaceful Primary Bedroom with Garden Views

Soft morning light pours through the expansive window, providing this bedroom with a warm, serene ambiance. A white, textured rug anchors the floor below a dark wood bed frame, complemented by coordinating nightstands and a ceiling fan adding an element of old fashioned comfort. A cream colored armchair at the window beckons to read in silence or gaze at gardens, counterpointed by an indoor plant bringing a leafy touch from outdoors. The pale color and spacious floorplan make the room feel breezy and calm without seeming to struggle with it.
Listing Agent – Jennifer Goetz @ Keller Williams Realty NY
