
Nestled in the heart of Springfield, IL, this charming two-story Colonial-style home listed at $190,000 offers a perfect blend of classic design and modern comfort. Featuring 3 bedrooms, 3 bathrooms, and 1,615 square feet of living space, this meticulously maintained residence boasts timeless curb appeal with brick and siding accents, a welcoming covered entryway, and a spacious attached garage.
1. Colonial Home with Timeless Appeal

This beautifully maintained two-story Colonial home combines traditional charm with modern convenience. The exterior features a striking mix of brick and siding, accented by elegant shutters and a welcoming covered entryway. A spacious attached garage enhances functionality, while manicured landscaping adds to its curb appeal. Large windows invite natural light inside, creating a warm and inviting atmosphere.
2. Where is Springfield?

Springfield, the capital of Illinois, is a vibrant city rich in history and Midwestern charm. Known for its deep connections to Abraham Lincoln, Springfield blends historic landmarks with modern amenities. The city features picturesque neighborhoods, lush parks, and a strong sense of community. With a thriving cultural scene, excellent schools, and convenient access to major highways, Springfield offers the perfect mix of small-town warmth and urban convenience.
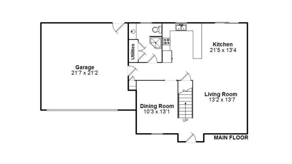
3. Main Level layout

Open and inviting, the main floor is designed for seamless living and effortless entertaining. A spacious living room flows into the dining area, creating a warm and welcoming atmosphere. The kitchen, with its generous layout, offers ample workspace for culinary creations. Conveniently located, a half bath and utility area enhance functionality. The attached two-car garage provides easy access, making daily routines a breeze in this well-planned home.
4. Upper Level layout

The upper level offers a well-planned retreat with three spacious bedrooms, including a generously sized primary suite. A shared bathroom with dual sinks enhances convenience, while ample closet space ensures effortless organization. Natural light fills each room, creating a warm and inviting atmosphere. Ideal for families, this level balances privacy and comfort, making it a perfect haven for relaxation.
5. Bright and Inviting Living Space

This charming living room blends comfort and warmth, featuring soft yellow walls that enhance the natural light streaming through sliding glass doors. A pair of plush sofas with botanical upholstery provide a cozy setting, complemented by accent pillows in soothing hues. A wooden coffee table anchors the space, while vibrant table lamps add character. The open-concept design flows seamlessly into the dining area, creating an inviting atmosphere for relaxation and entertaining.
6. Warm Kitchen

Designed for both function and charm, this kitchen features rich wood cabinetry, a neutral backsplash, and sleek granite countertops. A spacious island with bar seating invites casual gatherings, illuminated by elegant pendant lights. The open layout ensures effortless flow between cooking and entertaining. With a cozy window over the sink and ample storage, this kitchen blends classic warmth with modern convenience, making it the heart of the home.
7. Sunlit Dining Nook

Bathed in natural light, this cozy dining nook offers a seamless connection to the outdoors through expansive sliding glass doors. A round wooden table, surrounded by classic spindle-back chairs, creates an intimate space for meals and conversation. A tapestry depicting a grand European corridor adds a refined touch, while the adjacent sideboard provides both storage and elegance. This inviting space effortlessly blends warmth, charm, and functionality.
8. Timeless Dining

This inviting dining space blends classic charm with artistic flair. A rich wooden table with intricately carved chairs anchors the room, complemented by a bold framed portrait that adds a modern touch. A wrought-iron chandelier casts a warm glow, while deep red vases with dried accents bring a pop of color. Thoughtfully arranged décor and soft, neutral walls create a welcoming atmosphere perfect for gatherings and intimate dinners alike.
9. Classic Bedroom

This serene bedroom exudes warmth with its traditional wooden furnishings and neutral tones. The plush carpet and soft bedding create a cozy retreat, while natural light streams in through the window, enhancing the bright and airy feel. A ceiling fan with an elegant light fixture adds a functional yet stylish touch. The vintage TV and classic dresser complete the timeless charm of this restful space.
10. functional bathroom

This bathroom features a clean and modern aesthetic with crisp white cabinetry and soft gray walls. The neutral tones are complemented by a beige countertop and gold-tone fixtures, adding warmth to the space. The glass shower doors and sleek gray tile surround create a spa-like feel, while neatly arranged towels and decorative accents bring a touch of sophistication. Thoughtful storage solutions, including a mirrored medicine cabinet and overhead shelving, maximize functionality without sacrificing style.
11. Classic and Cozy Bedroom

This bedroom features a stunning four-poster bed with rich wooden tones, adding a sense of elegance and tradition to the space. The neutral walls and plush carpeting create a soft and inviting atmosphere, while the patterned bedding and accent pillows add warmth and contrast. A vintage-style nightstand with a lace cover brings charm, complemented by table lamps with deep red bases.
12. Home Office

This home office blends functionality with personality, featuring rich wooden furniture that adds warmth and sophistication. A large built-in desk with overhead cabinets provides ample storage, complemented by a black leather office chair for comfort. The bookshelves are neatly filled with books and DVDs, creating an intellectual and cozy atmosphere. Natural light from the window brightens the space.
13. Covered Patio Retreat

This inviting covered patio offers the perfect blend of comfort and style, ideal for outdoor gatherings or quiet relaxation. A wood-paneled ceiling with dual ceiling fans provides a breezy retreat, while ornate wrought-iron furniture adds a touch of elegance. Soft natural light filters through, enhancing the warm tones of the deck. The fenced backyard ensures privacy, creating a serene oasis for morning coffee or evening entertaining.
14. Serene Backyard with Shed

This expansive backyard offers a lush, open lawn perfect for outdoor activities or future landscaping dreams. A charming shed, complete with a window and exterior lighting, provides convenient storage or potential for a creative workspace. A paved walkway leads from the house, adding structure to the generous green space. Fully fenced and lined with mature trees, this serene retreat ensures privacy while embracing the beauty of the outdoors.
Listing agent – Tracy Shaw @ Keller Williams Capital via realtor.com
