
This stunning stone home located in Northfield, Illinois, exemplifies luxury resort-style living with over 14,000 square feet of above-grade space set on a 1.24-acre lot adjacent to the Forest Preserve. Architecturally, the home displays classic and elegant stone masonry with multiple chimneys, high ceilings reaching over 25 feet in the foyer and family room, and expansive floor-to-ceiling windows that enhance natural light throughout the residence. The grand residence boasts a 35-foot indoor pool with spa and diving board nestled inside a dramatic two-story atrium, perfect for year-round enjoyment. The home’s layout offers exceptional amenities including a full-size tennis court, soundproof music and recording studio, gym, sauna, and a four-car attached and heated garage. The chef’s kitchen features double islands and high-end appliances designed for entertaining large gatherings. Additional living spaces include a formal living room, dining room, office with garden views, and a large game/movie room along with a second kitchen in the lower level. Upstairs, there are six generously sized bedroom suites and a cozy den with a balcony overlooking the pool atrium. The lower level also provides two additional guest bedroom suites, emphasizing the home’s capacity for hosting visitors comfortably. Situated within walking distance to Northfield’s restaurants and shops, and a short drive to premier amenities such as the North Shore lakefront, Westfield Old Orchard, and Northbrook Court malls, this home offers convenient access to top-rated New Trier High School and expressways connecting to O’Hare Airport and downtown Chicago in just 30 minutes. Listed at $4,599,000, 1900 Winnetka is the epitome of luxury and thoughtful design where every detail caters to high-end comfort and entertainment.
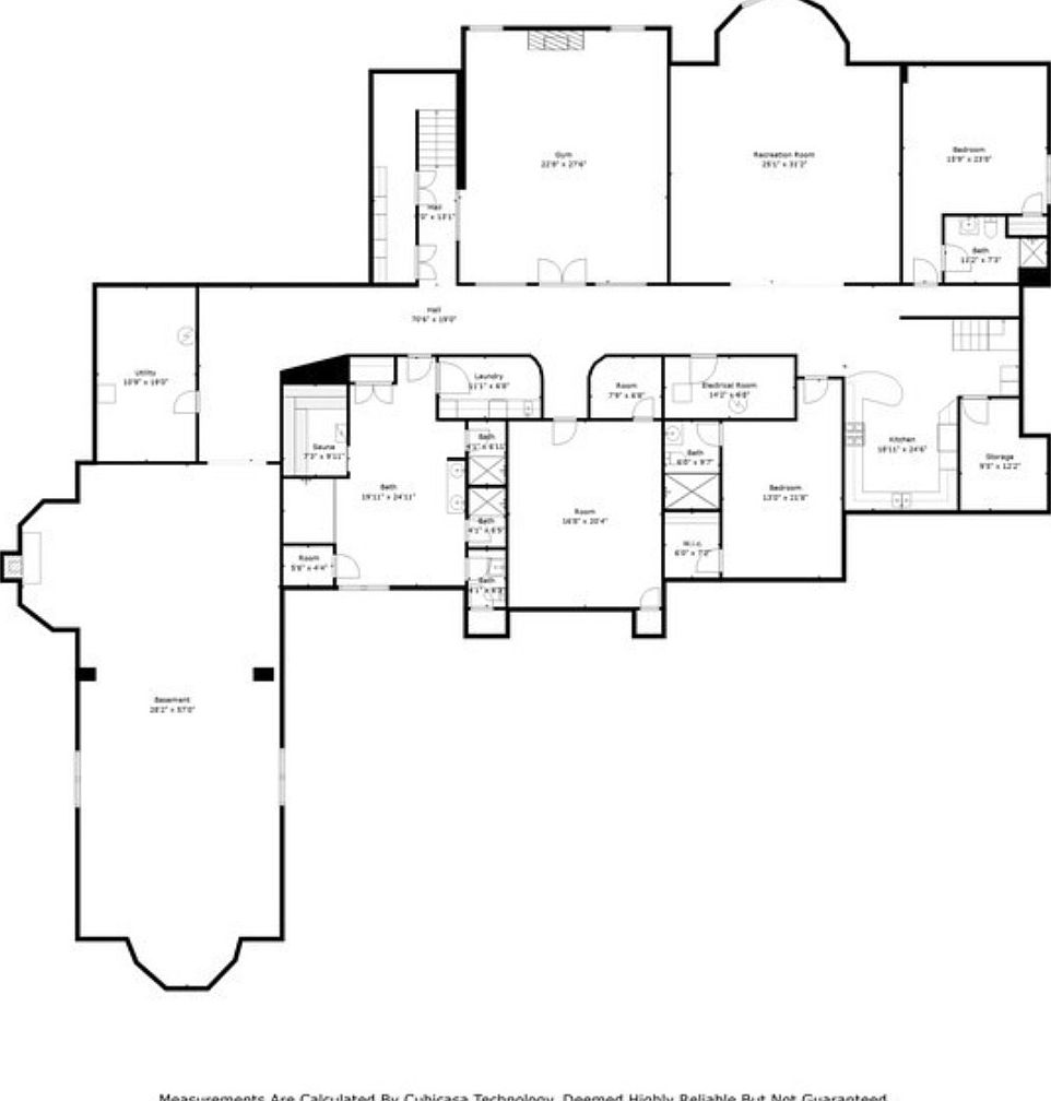
Basement Floor Plan

This basement layout features a spacious design with multiple functional areas. At the center is a large open basement space measuring 28’2″ x 32’0″, perfect for gatherings or recreation. Adjacent to it is a dedicated sauna and bath area, adding a luxurious wellness feature. A laundry room and storage room provide practical utility spaces, while two additional bedrooms offer guest or family accommodations. Several bathrooms, a walk-in closet, and a kitchen area are conveniently included. The layout balances comfort and convenience with clearly defined zones for living, storage, and entertainment.
Main level floor plan

This elegant primary bedroom suite blends classic sophistication with contemporary comfort, featuring spacious dimensions and a warm, neutral color palette anchored by soft off-whites and rich wooden flooring. The room opens onto a charming bay window alcove that invites natural light, enhancing the serene ambiance. Ornate drapery and tasteful furnishings harmonize with the delicate wall moldings and subtle wainscoting, accentuating refined architectural details. The ensuite bathroom boasts luxurious marble surfaces, dual vanities, and a central circular soaking tub framed beneath a glamorous chandelier, underscoring the suite’s tranquil retreat vibe.
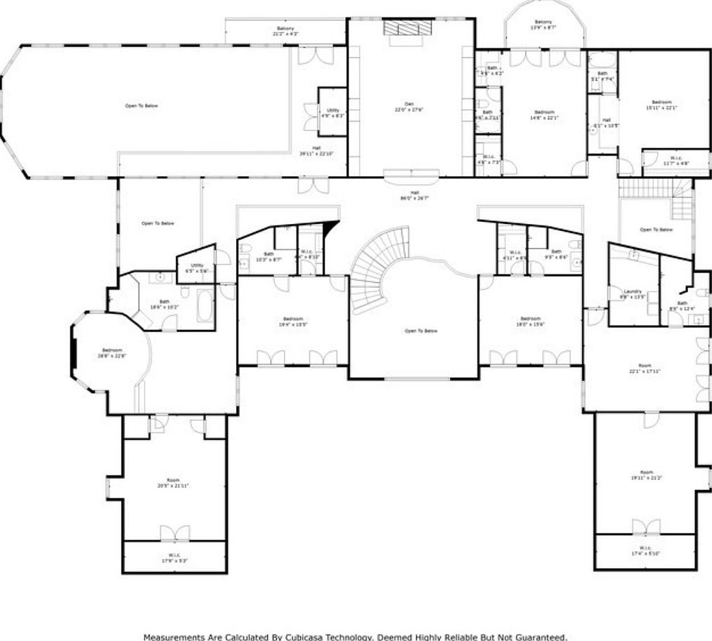
Second Floor Layout

This expansive second floor features multiple bedrooms and bathrooms distributed symmetrically on either side of a grand central hall with an open-to-below view and sweeping curved staircase. The design emphasizes a spacious and airy feel with several balconies, walk-in closets, and ample utility spaces. The layout includes a large den, laundry room, and various utility areas, combining functionality with residential comfort. The connectivity between rooms via generous hallways and the multiple “open to below” spaces contributes to a luxurious, open ambiance within a sizeable estate home.
Grand Entryway

This spacious entryway impresses with a sweeping curved staircase featuring ornate wrought iron balustrades and rich wooden steps. The elegant chandelier overhead adds a touch of vintage grandeur, while the intricate circular floor medallion anchors a round pedestal table adorned with candles and decor. Cream-colored tile flooring contrasts subtly with the warm beige walls and white crown moldings. Flanking the entry are large columns separating adjoining rooms, one showcasing a cozy sitting area and the other a formal dining space with warm wooden flooring and deep purple accent walls. The layout invites a smooth transition through the home’s luxurious interior.
Formal Living Room

This elegant formal living room features a soft neutral palette with beige walls and light hardwood floors accentuated by a muted gray area rug. The room is anchored by a curved beige sofa paired with classic armchairs upholstered in a delicate floral fabric. Ornate columns and intricate crown molding highlight the architectural details, while a grand chandelier with crystal accents adds a touch of sophistication. Floor-to-ceiling windows and French doors draped with gold-toned curtains create an inviting flow of natural light, connecting the interior to lush outdoor greenery. A dark wood staircase with wrought iron railings adds warmth and contrast.
Formal Dining Room

This elegant formal dining room features a long, dark wood table surrounded by ten upholstered chairs with intricate patterns that blend classic and refined styles. The room’s deep burgundy walls contrast beautifully with the light crown molding and detailed ceiling tray accents. Light filters through grand French doors with curved transoms that open to lush greenery outside, creating a seamless indoor-outdoor connection. A large, ornate chandelier hangs centrally, adding warmth and sophistication. The patterned area rug anchors the space, enhancing its inviting and stately ambiance. Architectural columns visible beyond hint at the home’s grand layout and luxurious finishes.
Living Room and Dining Nook

This living room features a sophisticated blend of classic and modern design elements, anchored by a grand white stone fireplace with detailed molding. Soft beige walls with a distressed finish add texture and warmth, contrasted by the deep plum accent walls surrounding the large arched window that draws in ample natural light. Comfortable sofas in neutral tones are paired with patterned pillows, complemented by a sleek black armchair and a glass-top coffee table with elegant wooden legs. A black wrought-iron chandelier hangs from a two-tone ceiling with ornate crown molding. The adjoining dining nook is anchored by a compact table and upholstered chairs, creating an inviting space that balances elegance and comfort. Warm wood flooring unifies the space with a cozy, refined aesthetic.
Kitchen

This spacious kitchen blends classic charm with modern elegance, featuring warm wood cabinetry with ornate detailing and a large central island with a dark granite countertop that contrasts beautifully against the lighter cabinets. The island offers ample seating with upholstered chairs that have a vintage appeal. Multiple pendant lights and a decorative chandelier over the adjacent breakfast nook provide a layered lighting effect. The nook is surrounded by large windows that flood the space with natural light while offering serene garden views. Light beige floor tiles complement the neutral wall color, creating a cohesive and inviting atmosphere perfect for casual dining and entertaining.
Breakfast Nook

This cozy breakfast nook features a round wooden table with a dark pedestal base surrounded by five elegant chairs upholstered in soft beige fabric. The space is defined by tall, white-framed floor-to-ceiling windows radiating in a semi-circular arrangement, bathing the area in abundant natural light and offering unobstructed views of the lush greenery and stone patio outside. The soft neutral palette of pale gray walls and creamy tiled floor creates a calm atmosphere. A classic wrought-iron chandelier with multiple shades hangs centrally, adding old-world charm and sophistication to this inviting morning retreat.
Master Bedroom

This spacious master bedroom features warm beige walls complemented by a large, plush area rug that defines the sleeping and seating areas. The intricately carved wooden bed, adorned with rich, patterned bedding and an assortment of pillows, commands attention. Adjacent to the bed, a wooden bench with cushioned seating adds a functional yet elegant touch. A cozy fireplace framed by a tall stone mantel sits beneath large, arched windows draped with luxurious curtains and valances. Two classic armchairs with a matching ottoman create an inviting nook, illuminated by a delicate chandelier and wall sconces, blending comfort with traditional sophistication.
Cozy Fireplace Seating

This intimate seating area centers around a grand white stone fireplace with intricate detailing, radiating warmth and elegance. Flanked by tall, floor-to-ceiling windows framed with rich taupe drapes and elegant valances, the space invites natural light while maintaining a cozy ambiance. Two plush wingback chairs in a muted lavender shade face each other, with a round, tasseled ottoman covered in a chic leopard print pattern between them, adding an element of playful texture. A crystal chandelier hangs above, casting soft light that complements the warm beige walls and polished hardwood floors, creating a refined yet welcoming retreat.
Walk-in Closet to Bathroom

This elegantly designed walk-in closet seamlessly transitions into a luxurious bathroom area. Rich cherry wood cabinetry lines both sides, providing ample storage with a classic, timeless appeal. The cabinetry features clean lines and recessed panels, complementing the neutral beige carpet that adds warmth underfoot. The hallway guides the eye toward a recessed, domed ceiling with intricate molding and a central chandelier above the sunken tub area. Soft natural light filters through three wide windows dressed in taupe drapes, enhancing the serene atmosphere of this intimate and sophisticated dressing and bathing suite.
Master Bathroom Oasis

This master bathroom exudes luxury with its spacious layout centered around a raised, circular soaking tub framed by three large windows draped in elegant brown valances. Flanking the tub are two symmetrical vanities with black granite countertops and cream cabinetry featuring ornate scrollwork legs, adding a classic touch. The room’s beige tiles and neutral palette are complemented by intricate tile borders, creating subtle visual interest. Above, a domed ceiling with a distressed finish and a vintage bronze chandelier adds warmth and architectural drama. A curved vanity desk with a cushioned, deep maroon chair completes this elegant retreat designed for comfort and style.
Living Room Details

This spacious living area exudes warmth and classic elegance, featuring a beautifully coffered ceiling with dark wood beams contrasted against a light cream backdrop. The floors are a natural light wood, enhancing the welcoming atmosphere. A large beige sectional sofa with plush cushions faces a cozy fireplace framed with a creamy stone mantel, anchored by an abstract landscape painting above. Two generously sized arched windows allow natural light to flood the room, complemented by an animal hide rug that adds texture and a rustic touch. The dark built-in cabinetry along one wall provides ample storage and houses a small workspace, blending functionality with traditional design.
Upper Landing Hall

This spacious upper landing serves as a central connecting area leading to several rooms. The warm honey-toned hardwood flooring complements the neutral beige walls, creating an inviting ambiance. The striking wrought iron railings feature elegant swirling designs that frame the staircase below, adding a touch of artistry. Architectural details include grand archways and ornate crown moldings that enhance the traditional aesthetic. The ceiling is a focal point with recessed, multi-faceted coffered details and three vintage-style pendant light fixtures casting soft illumination. Wall sconces provide additional warm lighting, enhancing the classic and sophisticated feel of this open hallway space.
Guest Bedroom

This serene guest bedroom features a spacious layout with two twin beds framed by rustic wooden headboards, adding a touch of natural charm. The walls are painted in a soft, light gray, creating a calm and inviting atmosphere complemented by beige carpeting. Accent pillows in deep pink and navy blue provide small pops of vibrant color on the beds. Large arched French doors with dark, floor-length curtains open to a balcony beyond, inviting natural light and outdoor views. The tray ceiling with recessed lighting and simple wall sconces enhances the room’s airy and elegant appeal.
Master Bedroom Seating Area

This serene master bedroom lounge features a sunken sleeping area elevated by a few carpeted steps, enclosed by an ornamental wrought iron railing. The bed rests under a softly rounded ceiling detail, adding architectural interest. The space next to the sleeping area serves as a cozy seating zone with a classic-patterned couch and a wooden side table topped with a blue ceramic lamp. Walls are painted in a gentle light grey tone, complementing the plush neutral carpet flooring. Decorative touches include a large gold-framed mirror above the sofa and framed artwork, introducing warmth and elegance to the calm, inviting atmosphere.
Spacious Bedroom

This luxurious bedroom features a soft neutral palette with beige walls and light carpeting that enhances the serene atmosphere. A plush, tufted bed with a cream-colored frame anchors the room, complemented by matching white nightstands topped with aqua blue lamps that add a subtle pop of color. The ceiling offers architectural interest through its tray design and recessed lighting. Natural light flows in from the large double French doors, framed by elegant beige curtains, opening to an outdoor view. A cozy cream loveseat with decorative pillows provides a comfortable sitting area, completing the inviting, refined space.
Bathroom

This bathroom blends classic and contemporary elements with a neutral color palette dominated by beige walls and taupe tiled flooring. The walk-in shower showcases small, square stone tiles in varying shades of gray, adding texture and modern appeal. Adjacent to the shower, a decorative framed art piece enhances the wall with subtle romantic tones. The vanity features a dark granite countertop atop a wooden cabinet with a carved diamond pattern, supported by turned legs, adding vintage charm. Above the sink, an ornate silver-framed round mirror reflects the warm light from tulip-shaped sconces, creating an inviting and elegant atmosphere.
Bedroom Retreat

This spacious master bedroom offers an inviting atmosphere with a vintage-inspired four-poster bed dressed in floral and warm coral bedding. Soft beige carpeting and neutral walls create a calm, cohesive backdrop that highlights the antique-style furniture, including a cream nightstand and a dresser with ornate drawer pulls. French doors framed by luxurious, deep red valances with gold accents lead to a balcony, enhancing natural light and outdoor views. A cozy sitting area with a patterned ottoman and armchair adds comfort, while intricate ceiling details and classic wall sconces contribute to the room’s elegant charm.
Bathroom Vanity and Balcony

This elegant bathroom corner features a classic white vanity with detailed cabinetry and a marble countertop that extends to a small built-in vanity desk. Above the vanity, a large framed mirror is flanked by two pendant lights giving a warm, soft glow. The beige walls and light tiled floor create a neutral backdrop that enhances the traditional style. To the right, French doors with cream sheer curtains and a decorative valance open to a small balcony with intricate wrought iron railing and a herringbone patterned brick floor, inviting natural light and lush garden views inside.
Bathroom Vanity and Tub

This elegant bathroom features a spacious vanity with cream-colored cabinetry accented by dark hardware and classic molding details. The granite countertop adds warmth and texture, complementing the under-mounted sink with bronze fixtures. Two pendant lights with soft glass shades provide gentle illumination above a large mirror with a decorative arch, enhancing the sense of space. Adjacent, a bathtub with a glass shower enclosure showcases beige tilework with a subtle mosaic border. The floor continues the neutral tone in large tiles, creating a cohesive, refined look that blends traditional charm with modern convenience.
Bedroom

This spacious master bedroom features a warm and elegant design with a neutral palette dominated by soft beige and cream tones. The room’s centerpiece is a wooden four-poster bed with a distressed finish, complemented by a floral-patterned comforter and lavender accent pillows that add a subtle pop of color. Large French doors with ornate wrought-iron railings open to an outdoor balcony, allowing natural light to flood the space, enhancing its airy feel. Classic valance curtains frame the glass doors and window. Matching bedside tables and traditional sconces provide symmetry and subtle lighting, while a textured carpet underfoot adds warmth and comfort.
Living Room with Balcony

This spacious living room features a harmonious blend of warm and neutral tones, with a rich terracotta accent wall providing a striking backdrop to the black leather seating arrangement. The room centers around a large, comfortable sofa and two matching armchairs positioned around a low rectangular coffee table, encouraging social gatherings. Soft gray carpeting underfoot adds coziness while contrasting subtly with the vibrant wall color. Recessed ceiling lights illuminate the space evenly, complemented by understated wall sconces. To one side, wide French doors open onto a balcony with intricate wrought iron railings, inviting natural light and scenic views of lush greenery, which enhances the room’s inviting ambiance.
Bathroom with Shower

This bathroom features a contemporary yet inviting design, emphasized by wide horizontal stripes in alternating soft gray and off-white tones that wrap the walls. The round window framed with white trim adds architectural interest and lets in natural light, offering a view of greenery outside. A classic white toilet sits beneath the window, with a sleek towel holder adorned by gray towels nearby. The walk-in shower is partially enclosed with glass and showcases neutral beige tiles with an inset mosaic band, complemented by modern, stainless steel fixtures. The countertop hosting a modern, rectangular vessel sink rests on a dark vanity, balancing the room’s airy palette with its rich floor tiles in dark earth tones, completing the sophisticated and clean aesthetic.
Kitchen Island and Cabinets

This spacious kitchen features rich, warm wood cabinetry that lines the walls and extends to a central island, creating a functional and inviting workspace. The countertops are crafted from a light granite with subtle veining, complementing the cabinetry’s tone. A stainless steel range hood and modern appliances add a sleek contrast to the traditional wood. The flooring consists of polished marble tiles with decorative inlays that echo the granite’s color palette, enhancing the room’s sense of elegance. Three contemporary bar stools at the island provide a casual dining spot, while recessed lighting overhead ensures a bright, welcoming atmosphere.
Entertainment Room

This spacious entertainment room features a cozy yet sporty atmosphere defined by neutral beige walls and a patterned brown carpet that adds warmth underfoot. A large black leather sectional anchors the space, accented by vibrant red pillows for a pop of color. The walls showcase an impressive collection of sports memorabilia artwork, giving the room a personalized, dynamic vibe. Opposite the seating, two large flat-screen TVs are mounted above built-in cabinetry, perfect for immersive viewing. Toward the far end, a curved alcove with a small wood dining table and chairs offers a quieter spot, illuminated by natural light from dual windows.
Spacious Bathroom and Sauna

This elegant bathroom features a large glass-enclosed walk-in shower with intricate tile work and recessed lighting, adding a luxurious touch. The beige tile flooring, accented with darker square tiles, complements the warm, neutral wall paint, creating a calming atmosphere. A wooden vanity with a black stone countertop adds a rich, classic element, paired with traditional brass fixtures and twin sinks. To the side, a doorway leads to a cozy sauna, visible with wooden benches and walls. Two white double doors and an adjacent hallway provide access to adjoining rooms, enhancing the open and spacious feel of this well-appointed area.
Sauna Room

This cozy sauna room features horizontal wooden paneling that wraps the walls and ceiling in warm, natural tones, creating a tranquil and inviting atmosphere. Two-tiered wooden benches line the space in an L-shaped design, providing ample seating for relaxation. The wood’s subtle grain and varied shades of light brown and beige add a rustic yet refined aesthetic. A neat rolled towel sits on the bench, emphasizing comfort. The floor is tiled with light-colored stone, contrasting gently with the wood. A metal heater with sauna stones is positioned in one corner, completing the functional and serene design of this wellness retreat.
Recreation Room

This spacious recreation room features a comfortable and inviting atmosphere with a neutral beige color palette on the walls, complemented by patterned carpeting in earthy tones. At the center lies a classic wooden pool table with a vibrant red felt top, creating a focal point. The far wall hosts a cozy fireplace with a modern, white mantel and black insets, adding warmth and elegance. Toward the back, additional entertainment options include a foosball table and arcade game machines. Recessed ceiling lighting softly brightens the room, emphasizing an open, welcoming design perfect for leisure and gatherings.
Backyard Patio and Lawn

This outdoor space features a spacious stone-paved patio bordered by short stone walls with iron detailing. The patio is furnished with cushioned lounge chairs and a small round table with chairs, offering an inviting spot for relaxation or casual dining. Lush greenery from various shrubs, trees, and potted plants softens the hardscape, enhancing a natural, tranquil ambiance. Beyond the patio, a vast, well-manicured lawn stretches out, edged by mature hedges and tall trees that provide privacy and seclusion. The space combines formal stonework with abundant greenery, blending structured elegance with serene natural elements.
Outdoor Sports Court

This spacious outdoor sports area combines a tennis court and a basketball hoop, offering versatile recreational options. The court surface features a muted blue playing area with white boundary lines, bordered by a light green perimeter. Surrounding lush greenery and tall trees provide privacy and a natural backdrop, enhancing the serene atmosphere. The court is partially enclosed by a black chain-link fence, ensuring safety while maintaining openness. In the background, an impressive stone-finished two-story home with large windows overlooks the court, blending classic architecture with functional luxury in this private estate’s outdoor space.
Indoor Pool Area

This indoor pool area boasts a luxurious and airy design with floor-to-ceiling windows that flood the space with natural light while offering serene views of lush greenery outside. The centerpiece is a large rectangular pool complemented by a raised spa surrounded by beige and cream tilework. The vaulted ceiling, painted in a calming gradient of blues, adds height and elegance alongside recessed lighting. Multiple glass doors provide easy access to an outdoor terrace, seamlessly blending indoor and outdoor relaxation. Neutral earth tones and the gentle blue palette create a tranquil atmosphere perfect for unwinding and bathing in natural light.
Listing Agent: Grace Flatt of @properties Christie’s International Real Estate via Zillow
