
Nestled in the heart of Flushing, NY, 2937 168th Street is a beautifully designed single-family home that exudes timeless charm and modern comfort. Boasting 3 bedrooms and 3 bathrooms, this residence offers a generous layout perfect for both relaxation and entertaining. Elegant architectural details, sun-drenched interiors, and thoughtfully crafted living spaces create an inviting ambiance throughout. With its prime location in a desirable neighborhood, this home provides the perfect balance of tranquility and convenience, making it an exceptional opportunity for refined suburban living.
1. Storybook Tudor Charm in New York

This enchanting Tudor-style home captures timeless elegance with its striking half-timbered façade, red brick accents, and stone foundation. The steeply pitched slate roof, decorative turrets, and leaded-glass windows create a fairy-tale aesthetic, while the towering brick chimney adds a stately presence. A charming arched stone entryway and red garage doors enhance the historic character. Set against a lush green lawn with a brick walkway leading to the entrance, this home exudes old-world charm while offering modern suburban convenience in a picturesque neighborhood.
2. Where is Flushing?

Nestled in the vibrant neighborhood of Flushing, NY, this home enjoys the best of city convenience and suburban charm. Known for its top-rated schools, diverse dining scene, and rich cultural history, Flushing is a sought-after destination for homeowners. The area boasts beautiful parks like Kissena Park and Flushing Meadows-Corona Park, providing ample green space for recreation. With easy access to major highways, public transportation, and LaGuardia Airport, commuting is effortless. Plus, you’re just minutes from bustling shopping centers, world-class entertainment, and renowned healthcare facilities. This location offers an unbeatable mix of tranquility and urban excitement.
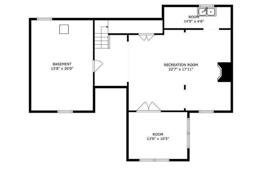
3. Spacious Ground floor for Versatile Use

This well-designed ground floor offers a combination of functionality and flexibility. The expansive recreation room serves as the central hub, perfect for a home theater, game area, or lounge space. Adjacent to it, a separate room can be used as an office, guest suite, or home gym. The basement storage area provides ample space for seasonal items. Additionally, a compact utility room with a sink adds convenience. This lower level offers endless possibilities to fit various lifestyle needs.
4. Functional and Elegant First Floor Layout

The thoughtfully designed first floor balances style and functionality. The foyer creates a welcoming entryway, leading to a spacious living room perfect for entertaining. Adjacent is the dining area flowing seamlessly into a well-equipped kitchen, making meal prep effortless. A half bath is conveniently located nearby. The family room offers a cozy retreat with ample natural light. A curved staircase enhances the aesthetic, while an attached garage adds convenience. This floor plan is ideal for both everyday living and entertaining.
5. Well-Appointed Upper Floor for Comfort and Privacy

The upper level is designed for relaxation and privacy. The primary bedroom is a spacious retreat, complete with a generous walk-in closet for ample storage. It is conveniently connected to a bathroom, offering comfort and accessibility. Two additional bedrooms provide flexibility for family or guests. A second bathroom ensures convenience, while the elegant, curved staircase connects seamlessly to the below level. This well-planned layout prioritizes both functionality and aesthetic appeal.
6. Expansive Attic Space for Versatile Use

This level features a spacious room, offering endless possibilities. Whether used as a media room, home gym, play area, or entertainment space, its open layout allows for customization to fit your lifestyle. Natural light from the large window enhances the bright and airy feel. Additionally, a smaller room near the stairway provides a practical storage solution or a cozy office nook or storage. This floor is the perfect extension of the home, designed for both functionality and leisure.
7. A Fairytale-Inspired Entrance

This storybook-style entrance is a true architectural gem, featuring a charming turret entryway clad in rustic stone with a conical slate roof. The arched glass-paneled door, framed by brick detailing, creates a warm yet regal welcome. A winding brick-and-flagstone staircase adds to the Old-World charm, guiding visitors into a home that feels straight out of a medieval fairytale. The Tudor-style façade, with half-timbered details, red brickwork, and leaded glass windows, enhances the home’s historical character, while whimsical turret accents further elevate its enchanting curb appeal.
8. A Foyer with Old-World Charm

Step through the arched entryway and into a stunning medieval-style foyer that immediately captivates with its unique blend of historic elegance and modern warmth. The solid wood door, adorned with intricate iron studs and hardware, sets a regal tone, evoking the grandeur of a European castle. The curved walls, lined with stone-like textured paneling, create a sense of timeless sophistication, while the slate flooring adds depth and durability. A charming wrought-iron cross sconce enhances the character of this space, making it the perfect first impression for a home that exudes class, craftsmanship, and undeniable architectural beauty.
9. A Character-Filled way to Rooms

This stunning lobby makes a lasting first impression with its old-world charm and character. The rich wood flooring extends throughout, complemented by textured plaster walls and intricate wrought-iron stair railings that add a touch of elegance. A decorative beam with quatrefoil detailing draws the eye upward, while the arched doorway leads seamlessly into the adjacent spaces. Vintage-inspired lighting and built-in cabinetry showcase the home’s timeless craftsmanship, while the warm, earthy tones create a welcoming atmosphere. A gracefully curved iron-railed staircase adding a dramatic architectural touch, blends history with sophistication, making this foyer both grand and inviting.
10. Enchanting Family Room with Stained Glass Windows

This charming family room exudes warmth, featuring a beamed ceiling and textured white walls that enhance its storybook character. The stone fireplace serves as a cozy focal point, framed by built-in arched alcoves with floating shelves that add functional charm. Sunlight filters through the stained-glass windows, casting colorful reflections across the rich hardwood flooring. A gracefully curved iron-railed staircase in the background adds a dramatic architectural touch, leading to the upper level while maintaining the home’s fairytale appeal.
11. Living Room with Timeless Elegance

This living room blends historical charm with distinctive architectural details. The leaded glass windows add a touch of vintage artistry, casting colorful light across the space. Ornate built-in corner cabinets with intricate woodwork provide both storage and character, enhancing the room’s stately appeal. The rich hardwood flooring contrasts beautifully with the wainscoting and crown molding, while the pastoral-themed wallpaper brings a sense of warmth and nostalgia. This space is perfect for those who appreciate timeless design with a story to tell.
12. A Rustic Kitchen with Vintage Charm

This inviting kitchen seamlessly blends old-world character with functional design. Warm terracotta floor tiles complement the rich oak cabinetry, which features intricate glass detailing and scalloped trim. A striking exposed brick wall adds texture and warmth, housing a professional-grade vintage stove with double ovens and brass accents. The leaded glass windows filter in soft, colorful light, enhancing the cozy ambiance. A brass chandelier completes the space, adding a touch of elegance. This kitchen is a perfect balance of rustic charm and timeless appeal.
13. A Cozy Dining Space

This charming dining room effortlessly complements the adjoining kitchen, creating a warm and inviting atmosphere. Terracotta tiles flow seamlessly between the spaces, while dark wood trim and beams add a rich contrast against the crisp white walls. A brass chandelier enhances the classic elegance, casting a soft glow over the space. The leaded glass window, adorned with colorful stained accents, brings in natural light and a touch of vintage artistry. Open shelving provides an opportunity for stylish displays, making this dining area both functional and full of character.
14. An Upper Landing with Historic Charm

This upstairs landing is a stunning blend of character and craftsmanship, featuring rich wood flooring, textured plaster walls, and graceful arched doorways. A wrought iron railing adds an artistic touch, framing the staircase while maintaining an open feel. The standout feature is the medieval-style chandelier, which casts warm, ambient light and enhances the home’s historic charm. At the far end, a leaded glass door with delicate drapery allows natural light to filter through, creating an inviting atmosphere. Every detail in this space speaks to timeless elegance and thoughtful design.
15. A Bedroom with Serene Ambience

This spacious bedroom exudes old-world charm with its soaring vaulted ceiling and intricate wainscoting. Soft gray walls set a serene tone, beautifully complemented by the warmth of the hardwood floors. The true focal points are the stained-glass windows, which add a touch of whimsy and color while allowing natural light to filter in gently. A vintage brass chandelier enhances the room’s historic appeal, creating a refined yet inviting atmosphere. With its graceful architectural details and ample space, this bedroom is a canvas ready for personal touches.
16. A Bedroom with Rustic Elegance

This bedroom blends classic charm with rustic character, featuring exposed dark wood beams that accentuate the vaulted ceiling. Crisp white walls create a fresh contrast, allowing the architectural details to stand out. Stained-glass windows bring in soft, dappled light, while built-in wall shelves offer both function and style. The rich hardwood floors add warmth, complemented by dark wood trim that frames the space beautifully. A vintage brass chandelier adds a refined touch, enhancing the room’s timeless appeal. With its spacious layout and distinctive features, this bedroom is a perfect retreat with a cozy yet sophisticated ambiance.
17. A Vintage Bathroom with Ornate Details

This bathroom is a striking blend of vintage elegance and bold character. The standout feature is the vibrant blue porcelain sink and matching bathtub, adding a pop of color against the soft pink wall tiles. An ornate gilded mirror serves as a statement piece, complemented by intricate brass sconces that cast a warm glow. The delicate hand-painted tile accents add an artisanal touch, enhancing the old-world charm. A brass shower rod and classic fixtures complete the look, preserving the space’s historical integrity. With its mix of antique detailing and rich textures, this bathroom exudes a timeless, European-inspired allure.
18. A Unique Attic Space with Geometric Flair

This attic room is a striking display of architectural creativity, blending geometric patterns with a cozy, rustic ambiance. The sloped ceilings are adorned with an intricate grid of white panels outlined in dark trim, creating a bold visual statement. Recessed lighting holes dot the ceiling, hinting at a modernized touch. Warm-toned hardwood flooring grounds the space, complementing the rich wood accents seen in the staircase railing and window trim. A built-in platform adds functionality, ideal for seating or storage. This attic is truly one-of-a-kind retreat with endless design possibilities.
19. A Basement with Endless Possibilities

This basement exudes character with its blend of classic and rustic elements. The striking black-and-white checkered tile flooring adds a bold, timeless appeal, contrasting beautifully with the textured white walls that mimic stone. Dark wooden beams accent the low ceiling, lending a cozy, intimate feel. An arched doorway leads to a secondary space, while a small stained-glass window introduces a subtle pop of color. The rich wood-paneled alcove and ornate wooden door with wrought-iron details enhance the room’s old-world charm. With its unique architectural features, this space has endless potential for a stylish, one-of-a-kind transformation.
20. A Backyard Retreat

This home’s backyard is a private sanctuary, offering a lush green lawn surrounded by mature landscaping. Thoughtfully placed hedges and shrubs create a natural border, adding both privacy and beauty to the space. A charming wrought-iron gate peeks through the greenery, hinting at the home’s storybook character. The well-maintained grass provides ample room for outdoor gatherings, while the garden beds bring seasonal color and vibrancy. Whether enjoying a quiet morning or hosting an afternoon soiree, this backyard is a serene escape that perfectly complements the home’s historic charm.
Listing agent – Keller Williams @ Rlty Landmark via Zillow
