
This exquisite lakefront home at 286 Chippewa Trail, nestled in the peaceful, wooded environs of Medford Lakes, NJ, perfectly combines natural beauty with elegant design. The outdoor features masterful craftsmanship and functional upgrades including clear cedar siding, AZEK decking, a stone patio, a 12-zone irrigation system, and a 10-foot deer fence with a motion-sensitive wildlife sprayer—perfect for a nature-loving lifestyle. Offered at $1,800,000, this unique property is available exclusively for private, pre-qualified showings, making it an exceptional opportunity for those seeking a tranquil lakefront haven with all the modern conveniences and exquisite details.
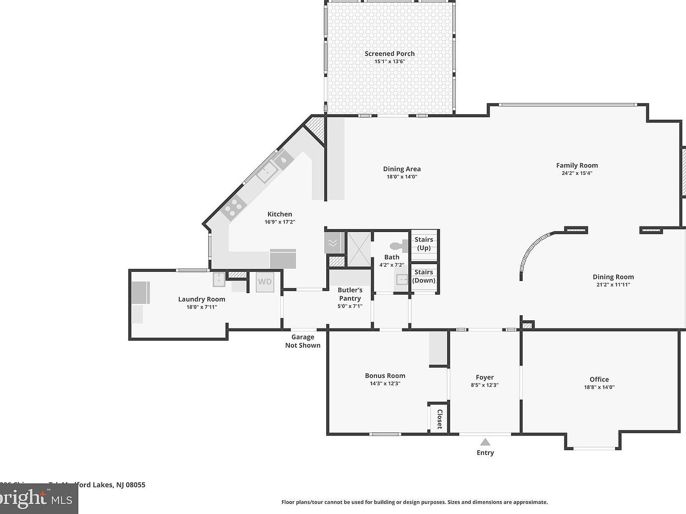
Main Floor Layout

This floor plan highlights a spacious and well-planned main level, featuring multiple interconnected living spaces for flexible use. The expansive family room measuring 24’2″ by 15’4″ offers a generous area for relaxation and gatherings, flowing seamlessly into the dining area and an additional formal dining room that adds elegance. The kitchen, uniquely angled and sized at 16’9″ by 17’2″, includes proximity to a butler’s pantry, enhancing storage and entertaining convenience. Adjacent to the kitchen, the laundry room spans 18′ by 7’11”, while a screened porch extends outdoor living. A versatile bonus room, office, and strategically placed powder bath round out this well-thought layout, accessed via a welcoming foyer near the entry.
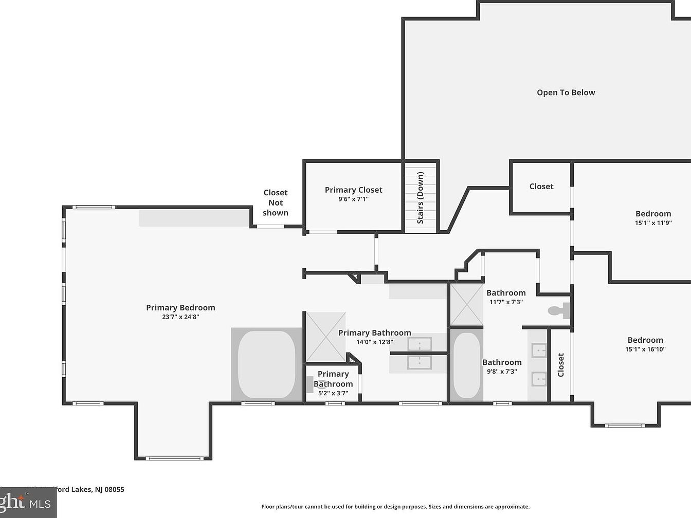
Upper Floor Layout

This floor plan highlights an expansive primary suite area that combines comfort and functionality. The primary bedroom spans an impressive 23’7″ by 24’8″, featuring ample natural light from multiple windows. Adjacent to the bedroom, the large primary bathroom, measuring 14’0″ by 12’8″, includes a separate smaller bathing section for enhanced usability. The suite also contains a spacious primary closet at 9’6″ by 7’1″, ensuring generous storage space. Additional bedrooms and bathrooms are connected seamlessly through a hallway, showing thoughtful separation between private and shared areas. Stairs lead to lower floors, emphasizing a fluid multi-level design.
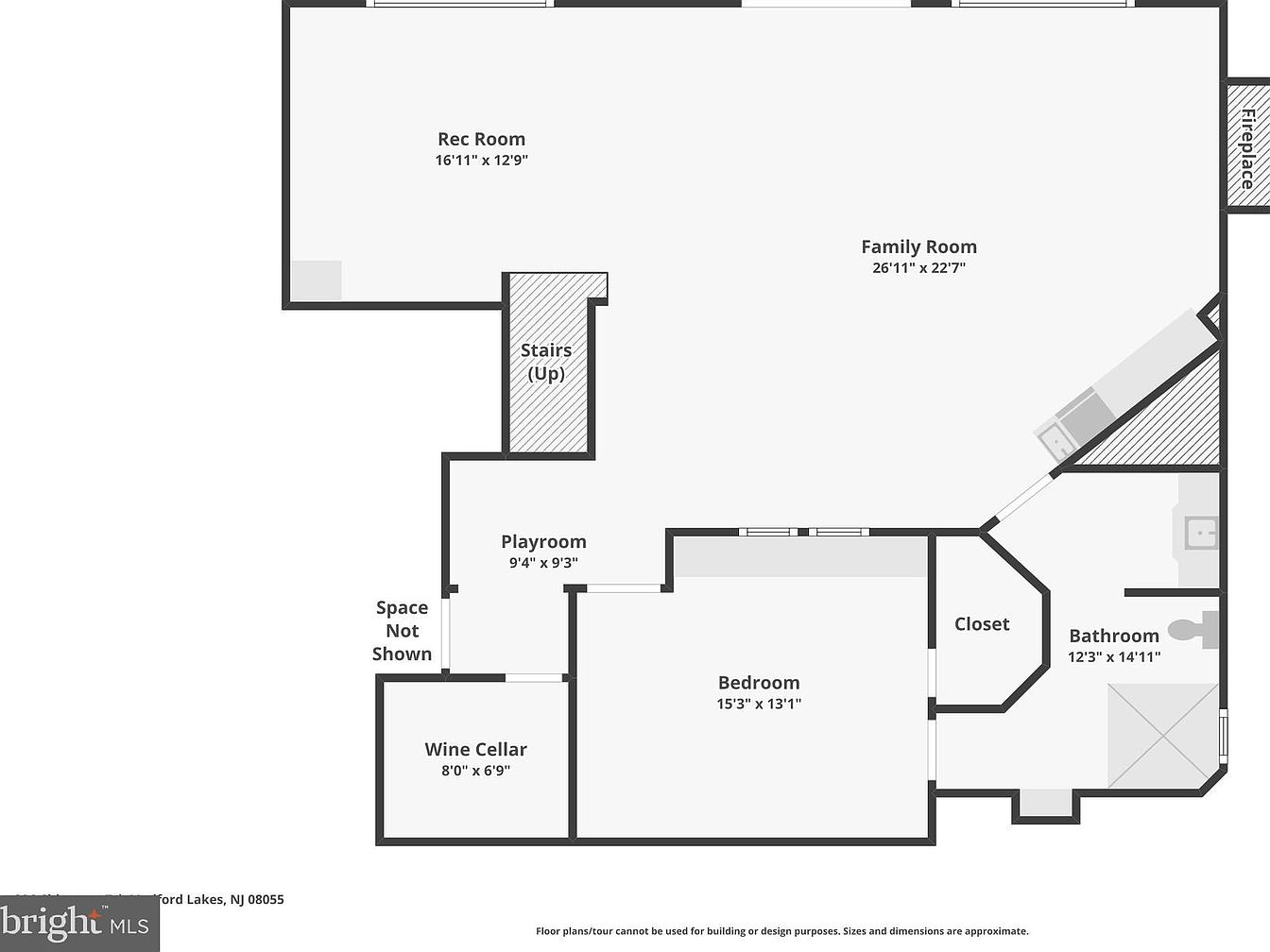
Lower Level Floor Plan

This spacious lower level offers a versatile layout designed for family living and entertainment. The largest area, the Family Room, measures approximately 27 by 23 feet, ideal for gatherings or relaxation with a nearby fireplace. Adjacent to the Family Room is a cozy Rec Room, providing an additional recreational space. A dedicated Playroom next to the bedroom creates a child-friendly zone, while the Wine Cellar adds a touch of luxury and storage functionality. The bedroom is sizable, accompanied by a private bathroom and a closet, enhancing convenience and privacy on this level. Access is provided via stairs leading up to the main floor.
Front Porch Entrance

The entryway features a charming front porch with warm wooden flooring and steps leading up to double wooden doors, accented by decorative glass panels and floral wreaths. White columns support an arched portico, introducing a classic architectural element that contrasts beautifully with the more rustic stone façade framing the doorway. The gray siding complements the natural stone’s earthy tones while greenery in large planters adds vibrant pops of color and life to the symmetrical porch space. A vintage-style hanging lantern under the arch enhances the welcoming atmosphere, blending elegance with cozy natural charm.
Living Room Seating Area

This living room brightens with large wood-framed windows accented by soft, white swagged curtains that allow natural light to flood the space while framing lush greenery outside. A curved, cream-colored sectional sofa with pastel cushions creates a welcoming conversational nook centered around a light wood coffee table. Two upholstered chairs with a floral pattern add delicate charm, complementing the subtle blush tones. The stone fireplace serves as a striking focal point with a large wreath and built-in white shelving on either side, adding both texture and cozy character to this serene, airy room.
Formal Dining Room

This elegant formal dining room features a classic rectangular wooden table surrounded by six chairs with a traditional design, upholstered in a pattern that adds subtle texture and charm. The room is anchored by a large, ornate area rug with muted floral motifs that complement the hardwood floor beneath. A crystal chandelier with a cascading design hangs above the table, providing a focal point of refined lighting. White plantation shutters cover the windows, allowing natural light to softly diffuse the space. To one side, a sophisticated wooden china cabinet displays fine dishware, while an armchair with cushions offers a cozy corner. An adjoining living area is partially visible, framed by stately white columns and highlighted by a rustic stone fireplace adorned with a floral wreath, blending warmth and formality in this inviting space.
Dining Room and Kitchen View

This dining area exudes a warm, inviting atmosphere with soft ivory tones and natural wood accents. A round glass-top table with an ornate stone base is surrounded by six cushioned chairs, upholstered in a textured off-white fabric, resting on a pale patterned area rug. Above, a delicate chandelier with candle-like lights emphasizes a classic, elegant touch. The dining space opens to a kitchen framed by white cabinetry and granite countertops, separated by a breakfast bar with high stools. Expansive wooden-framed French doors lead to an outdoor porch, allowing ample natural light and connecting indoor and outdoor living seamlessly.
Screened Porch Lounge

This inviting screened porch offers a serene space overlooking a tranquil pond surrounded by a natural landscape of tall trees. The ceiling is clad in warm-toned wooden planks, featuring a large arched window and two skylights that flood the room with natural light. A modern ceiling fan with wooden blades hangs centrally for comfort. The flooring consists of natural wood accented by a woven area rug. Furniture includes a wicker dining set with a round glass table and cushioned seating unit with colorful pillows adding a cozy, relaxed vibe to this peaceful retreat.
Kitchen Breakfast Bar

This cozy kitchen breakfast bar features light cream cabinetry with subtle decorative molding, enhanced by warm wood accents on the door frames and furniture. A granite countertop offers a polished, durable surface, extending into a peninsula with seating for three on cushioned, wooden bar stools. Above the cabinets, a decorative ledge adorned with greenery adds a natural touch. The space is well-lit, with recessed lighting above the cabinets and natural light flowing in from large windows. The adjacent kitchen area showcases matching cabinetry and a stove beneath a range hood framed with coordinating wood details. The flooring is a light-toned wood, creating a welcoming, warm atmosphere that blends traditional and comfortable styles seamlessly.
Kitchen Countertop and Window

This bright kitchen highlights a large bay window framed in warm wood, flooding the space with natural light and offering a scenic view outside. Cream-colored cabinets with gold hardware line the lower half, paired with granite countertops that extend across a U-shaped workspace. The backsplash is subtle, with neutral-toned tiles and a decorative hood vent area above the stovetop, softly illuminated by under-cabinet lighting. Two glass globe pendant lights hang gracefully from the ceiling, which is adorned with a botanical patterned wallpaper matching the walls, adding charming texture. Potted plants on the windowsill inject fresh greenery, while a modern area rug anchors the light wood flooring beneath.
Kitchen Corner Detailing

This kitchen corner features a spacious L-shaped counter layout with white cabinetry accented by brass handles, creating an elegant yet warm atmosphere. The granite countertops add a refined touch and complement the wood flooring that extends throughout the space. A built-in refrigerator seamlessly integrates into the cabinetry for a sleek look, while a glass block window allows soft, diffused natural light to illuminate the workspace. The stove area is highlighted by a decorative hood, adorned with subtle patterns and decorative items, enhancing the classic and cozy aesthetic. Floral wallpaper on the vaulted ceiling and upper walls adds a vintage charm.
Mudroom and Laundry Area

This space combines functionality with a sleek design, serving as both a mudroom and laundry area. The muted white walls and cabinetry provide a clean backdrop, highlighting the stainless steel refrigerator at the far end, which complements the washer and dryer stacked on the right side. The patterned cushioned bench on the left offers a cozy spot for removing shoes, accompanied by multiple hooks holding jackets and bags. A beige and gray runner rug adds warmth to the dark flooring, while a small window nook with greenery adds a touch of nature. The organized, practical layout maximizes usage while maintaining an inviting atmosphere.
Bathroom Details

This bathroom combines rustic charm with modern touches for a cozy yet elegant feel. Wood paneling covers the lower walls, providing warmth and texture, while the upper walls are adorned with dark navy floral wallpaper, adding a dramatic contrast. The white hexagonal tile floor brightens the space and complements the wood’s natural tones. A granite countertop sits atop a rich dark wood vanity, paired with matte black fixtures that contribute a contemporary edge. A large mirror framed in antique wood enhances the room’s depth, reflecting light and emphasizing the mix of classic and modern design elements.
Home Office Space

This warm, wood-paneled office features rich, natural wood walls and a matching wood plank ceiling, creating a cozy, cabin-like atmosphere. The workspace centers around a dark polished desk facing two black leather armchairs separated by a small round side table with magazines and remote controls underneath. Framed art pieces line the walls, complementing the wood’s grain. The desk area includes dual computer monitors and a classic decorative lamp with a fringed shade, adding a vintage touch. A hardwood floor under a subtle rug anchors the room, enhanced by a modest wooden credenza with plants and office essentials along the back wall, providing organized functionality.
Master Bedroom Overview

This serene master bedroom combines spacious comfort with a light, airy aesthetic. The vaulted ceiling is clad in pale wood planks, adding natural texture and warmth, complemented by a white ceiling fan that subtly blends into the ceiling. Soft beige carpeting covers the floor, enhancing coziness. Centered is a grand four-poster bed in a light wood finish, flanked by matching nightstands adorned with elegant lamps. The room features multiple large windows and French doors, allowing ample natural light and providing views of the greenery outside. On one side, a delicate curved desk and chair create a charming workstation, while on the other, a dark antique secretary desk and chair offer classic character. Across from the bed, a light wood media cabinet holds a flat-screen TV. The neutral color palette and tasteful mix of vintage and contemporary furnishings create a tranquil retreat perfect for relaxation and productivity.
Bathroom Vanity Area

This bathroom vanity area features a spacious layout with warm-toned marble countertops extending across both a sink vanity and a separate makeup/dressing table. Light brown cabinetry complements the marble flooring, creating a cohesive earthy palette. A skylight above floods the room with natural light, enhancing the airy ambiance. Brass fixtures with frosted glass lamps add vintage elegance, paired with a large mirror framed by matching brass sconces. A framed abstract wall art adds subtle modern flair. An oval mirror near a window overlooks wooded scenery, while a white bathrobe hangs neatly on an ornate brass hook, suggesting relaxation and comfort.
Bathroom Vanity Area

This serene bathroom vanity space features a warm beige and muted rose color palette, anchored by polished marble countertops. A built-in wooden shelving unit offers both display and storage, holding decorative items and toiletries. The vanity has multiple drawers providing ample storage, paired with a wicker chair that blends natural textures with functionality. Two vintage-style brass sconces flank a rectangular mirror, adding classical charm and soft lighting. The walls are painted a crisp white, contrasting gently with the cabinetry and marble surfaces. An elegant, framed abstract artwork and brass fixtures contribute a refined, timeless aesthetic.
Walk-In Closet Storage

This walk-in closet is organized and thoughtfully arranged, showcasing an efficient use of space with dual hanging rods on three sides. The upper rods hold neatly hung shirts, blouses, and jackets in light to dark hues, arranged by type and color, while the lower rods accommodate casual shirts and sweaters. Shelved compartments on the right side provide folded clothing storage, enhancing the room’s functionality. A skylight overhead floods the space with natural light, brightening the soft neutral beige walls and beige carpeted floor. White wire shelving and storage bins atop add extra capacity and a clean, airy feel to the closet.
Balcony Overlooking River

This balcony offers a peaceful outdoor retreat with a serene view of a gently flowing river bordered by lush trees. The space features wide gray wooden deck planks and a simple railing that combines solid panels with horizontal supports, allowing an unobstructed vista. Sliding glass doors with white grids provide access to the interior, adding a classic architectural detail that contrasts softly against the medium gray siding of the house. A small, minimalist metal table in light blue adds a subtle pop of color, enhancing the natural, calming ambiance of this inviting spot.
Children’s Bedroom

This cozy children’s bedroom features a vaulted ceiling that enhances its spaciousness, complemented by soft beige walls and neutral carpeting. Two wooden twin beds with striped bedding sit under a large triple window dressed with sheer white curtains, allowing natural light to flood the room. A vibrant blue futon sofa lines one wall, accented with patterned and solid red throw pillows, creating a playful contrast. Nautical-themed wall decals and a round mirror add charm, while track lighting overhead ensures ample illumination. The overall style is comfortable, colorful, and child-friendly, designed for both rest and play.
Game Room with Pool Table

This game room centers around a classic wooden pool table with a striking navy blue felt surface complemented by red tassel pockets. The space is painted in soft grey tones accented by white trim and wainscoting, creating a calm and inviting atmosphere. A large patterned blue rug grounds the table on warm light wood flooring. Natural light pours in from the sizable window framed with blue-striped roman shades. Unique architectural details include an elevated built-in bench along one wall and a modern gold pendant light hanging above the pool table, adding a touch of contemporary elegance.
Cozy Basement Living Area

This inviting basement living room features a rustic stone fireplace with a broad wooden mantel that anchors the space. Above it, a flat-screen TV is mounted, creating a focal point perfect for relaxation and entertainment. The room is furnished with a comfortable sectional sofa in a soft neutral tone, adorned with an array of throw pillows in shades of blue and gray, contributing to a calm and cozy atmosphere. A large coffee table with a glass top sits centrally, flanked by knitted poufs for additional seating. The back wall showcases deep blue built-in cabinetry with brass hardware, including a small wet bar area with glass-fronted upper cabinets and under-cabinet lighting, blending functionality with elegant design. The carpeted floor and recessed ceiling lights complete this well-balanced and charming lounging space.
Wine Cellar Storage

This space features a well-organized wine cellar corner, crafted with warm, natural wood shelving that lends a rustic yet sophisticated charm. The layout includes multiple vertical racks for individual bottles, open shelves displaying spirits, and diamond-shaped compartments for larger bottle storage. The terracotta tiled floor adds earthy tones, complementing the wooden structure. The shelves are neatly stocked with an assortment of wines, liquors, and glassware, indicating a dedicated area for beverage storage and display. This setup balances function and style, making it an inviting and practical spot for any wine enthusiast.
Basement Dining Area

This cozy basement dining area features soft gray walls paired with a neutral carpet, creating a light and inviting atmosphere. The room is anchored by a carved wooden dining table with four matching chairs that have floral-patterned cushions adding a touch of color. A small wet bar with navy blue cabinetry and glass-front upper cabinets sits in the corner, providing a stylish and functional space for entertaining. White framed clerestory windows near the ceiling allow natural light to filter in subtly. Overall, the design combines comfort with classic elegance in a compact, multi-functional basement space.
Cozy Bedroom Nook

This intimate bedroom space features a striking blue and coral patterned bedspread set against a backdrop of soft cream walls with vertical red and white stripes. Two louvered closet doors in a muted beige occupy one side, adding subtle texture. A modern white nightstand with a simple lamp sits neatly beside the bed, echoing the clean and minimal aesthetic. Recessed ceiling lights create a warm ambiance, and a wooden towel ladder with blue throws introduces a casual, homey touch. The light carpeting and streamlined design provide a cozy, inviting retreat within the home.
Back Patio and Covered Porch

This outdoor space features a large paved patio with light gray stone tiles laid in a staggered pattern, creating a clean and spacious area for gatherings or relaxation. Adjacent to the patio is a covered porch elevated on sturdy white columns with a white railing and screen enclosure, offering protection from the elements while allowing natural light through skylights above. The home’s exterior blends soft gray siding with scalloped trim details, contributing to a charming, cottage-style aesthetic. Large windows and glass doors connect the interior living spaces seamlessly to the patio, enhancing the open, airy ambiance. Greenery around the perimeter adds a natural, inviting touch.
Outdoor Patio Seating

This outdoor patio area features a stone-built bench integrated into a low retaining wall, creating a cozy seating nook. The bench is topped with plush, turquoise cushions paired with colorful, patterned seat pads that add vibrant pops of color against the natural stone backdrop. Surrounding the seating is lush greenery, including dense shrubs and a Japanese maple with striking multicolored leaves, providing a mix of deep green, red, and purple hues. The stone tile flooring enhances the rustic, natural aesthetic while ensuring durability. Potted plants add texture and warmth, making the space inviting and well-designed for outdoor relaxation.
Waterfront Patio and Garden

This tranquil outdoor space features a multi-level patio that gently descends toward a serene lake. The area combines a carefully tended garden with lush greenery and colorful flowers, which border the stone and wooden decking. Two modern, hanging lounge chairs offer a perfect spot for relaxation while taking in views of the water and surrounding woods. A small round table with white chairs creates an inviting dining nook near the water’s edge. The overall design emphasizes seamless connection with nature, blending expansive open sky, reflective water, and vibrant landscaping for a peaceful retreat.
Backyard Deck and Waterfront

This spacious backyard deck offers a serene transition from the home to the tranquil waterfront visible beyond. The large, light gray wooden decking extends generously, inviting outdoor furniture and gatherings. A set of stairs leads down to a lower patio area adjacent to the water, featuring lounge chairs ideal for relaxation while enjoying the waterfront view. The house’s exterior is clad in a dark gray siding with white trim, harmonizing with the natural greens of the mature trees and shrubs surrounding the property. The screened porch above the stairs adds a cozy, sheltered outdoor space. Overall, the setting combines natural beauty with comfortable, functional living areas.
Garage Workshop Area

This spacious garage serves as both a multi-functional storage and workshop area, featuring an unfinished ceiling and walls with exposed wood framing and beams. The concrete floor bears signs of regular foot and equipment traffic, contributing to its utilitarian character. A workbench spans the far end, cluttered with various tools, equipment, and a rolling office chair, illuminated by a bright fluorescent light fixture. The space is organized yet busy, with shelves and hooks holding tools and gear. A white door with window panels leads outside, adding a touch of natural light. The overall aesthetic is rugged and practical.
Community Beach and Lakefront

This serene community beach offers a peaceful sandy shore that gently meets a calm lake, ideal for relaxing and water activities. The lake is bordered by lush greenery and mature trees providing a natural, tranquil backdrop. Wooden docks extend into the water, perfect for swimming or docking small boats. Across the water, charming lakeside homes are visible, showcasing rustic architecture that blends seamlessly with the wooded surroundings. A lifeguard chair with posted rules suggests a family-friendly environment, emphasizing both safety and leisure in this inviting outdoor space.
Want to see more from Remodr?

Drop a comment below, share this with your friends and family, and don’t forget to follow us for more fresh ideas, updates, tips, and home trends.
Listing Agent: Jeremiah F Kobelka of Real Broker, LLC via Zillow
